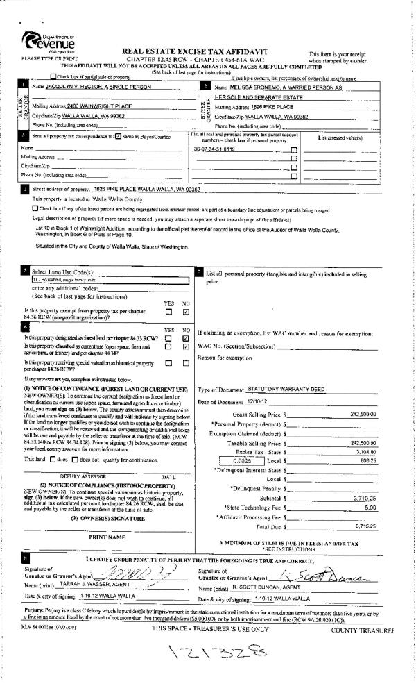
Property
Account |
| Property ID: | 33981 | Abbreviated Legal Description: | HARRISON & RAY INC ADD LOT 3 BLK 5 |
| Parcel Number: | 300812570503 | Agent Code: | |
| Type: | Real | | |
| Tax Area: | 331 - 400-M-5-W4 | Land Use Code | 11 |
| Open Space: | N | DFL | N |
| Historic Property: | N | Remodel Property: | N |
| Multi-Family Redevelopment: | N | | |
| Township: | 8 | Section: | 12 |
| Range: | 30 |
Location |
| Address: | 641 RAY BLVD WA 99323 | Mapsco: | |
| Neighborhood: | Burbank A MH | Map ID: | |
| Neighborhood CD: | 213761 |
Owner |
| Name: | RICARD RYAN RAY & TIFFANY R | Owner ID: | 66955 |
| Mailing Address: | 641 RAY BLVD BURBANK, WA 99323 | % Ownership: | 100.0000000000% |
| | | Exemptions: | |
Taxes and Assessment Details
Values
| (+) Improvement Homesite Value: | + | $0 | |
| (+) Improvement Non-Homesite Value: | + | $316,860 | |
| (+) Land Homesite Value: | + | $0 | |
| (+) Land Non-Homesite Value: | + | $68,660 | |
| (+) Curr Use (HS): | + | $0 | $0 |
| (+) Curr Use (NHS): | + | $0 | $0 |
| | | -------------------------- | |
| (=) Market Value: | = | $385,520 | |
| (–) Productivity Loss: | – | $0 | |
| | | -------------------------- | |
| (=) Subtotal: | = | $385,520 | |
| (+) Senior Appraised Value: | + | $0 | |
| (+) Non-Senior Appraised Value: | + | $385,520 | |
| | | -------------------------- | |
| (=) Total Appraised Value: | = | $385,520 | |
| (–) Senior Exemption Loss: | – | $0 | |
| (–) Exemption Loss: | – | $0 | |
| | | -------------------------- | |
| (=) Taxable Value: | = | $385,520 | |
Taxing Jurisdiction
| Owner: | RICARD RYAN RAY & TIFFANY R | | |
| % Ownership: | 100.0000000000% | | |
| Total Value: | $385,520 | | |
| Tax Area: | 331 - 400-M-5-W4 |
| CERFD | CURRENT EXPENSE REFUND 010 | 0.0000000000 | $385,520 | $385,520 | $0.00 | | |
| CURREXP | CURRENT EXPENSE 010 | 1.0175366760 | $385,520 | $385,520 | $392.28 | | |
| HUMNSERV | HUMAN SERVICES 119 | 0.0250000000 | $385,520 | $385,520 | $9.64 | | |
| SLDREL | SOLDIERS RELIEF 121 | 0.0155990005 | $385,520 | $385,520 | $6.01 | | |
| EMERGSER | EMS 147 | 0.3792580840 | $385,520 | $385,520 | $146.21 | | |
| EMSRFD | EMS REFUND 147 | 0.0000000000 | $385,520 | $385,520 | $0.00 | | |
| FD5EXP | FD #5 EXPENSE 689 | 1.2045331840 | $385,520 | $385,520 | $464.37 | | |
| RLBRFD | RURAL LIBRARY REFUND 623 | 0.0000000000 | $385,520 | $385,520 | $0.00 | | |
| RURALLIB | RURAL LIBRARY 623 | 0.3710609029 | $385,520 | $385,520 | $143.05 | | |
| PORTRFD | PORT REFUND 640 | 0.0000000000 | $385,520 | $385,520 | $0.00 | | |
| PORTWWGEN | PORT OF WW 640 | 0.2460186015 | $385,520 | $385,520 | $94.85 | | |
| SD400BOND | SD #400 BOND 793 | 0.0000000000 | $385,520 | $385,520 | $0.00 | | |
| SD400CAP | SD #400 CP 792 | 0.3443722657 | $385,520 | $385,520 | $132.76 | | |
| SD400GEN | SD #400 GENERAL 790 | 1.9278469916 | $385,520 | $385,520 | $743.22 | | |
| ST2 | STATE SCHOOL PART 2 600 | 0.8131451643 | $385,520 | $385,520 | $313.48 | | |
| STATESCHL | STATE SCHOOL 600 | 1.5158548041 | $385,520 | $385,520 | $584.39 | | |
| STREFUND | STATE REFUND LEVY 603 | 0.0000000000 | $385,520 | $385,520 | $0.00 | | |
| COROAD | COUNTY ROAD 115 | 1.6549953990 | $385,520 | $385,520 | $638.03 | | |
| CRPRD | COUNTY ROAD REFUND 115 | 0.0000000000 | $385,520 | $385,520 | $0.00 | | |
| | Total Tax Rate: | 9.5152210736 | | | | | |
| | | | | Taxes w/Current Exemptions: | $3,668.29 | | |
| | | | | Taxes w/o Exemptions: | $3,668.29 | | |
Improvement / Building
| Improvement #1: | MANUFACTURED HOME | State Code: | 11 | 2610.0 sqft | Value: | $316,860 |
| Exterior Wall: | PLYWOOD | Heating/Cooling: | WARM & COOLED AIR | | Number of Bathrooms: | 3 | Number of Bedrooms: | 4 | | Plumbing: | 12 | Roof Covering: | COMP SHINGLE |
|
| | Type | Description | Class CD | Sub Class CD | Year Built | Area |
| | MOBHOME | MANUFACTURD HOMES | 1 | 40 | 2015 | 2610.0 |
| | MI1 | MH SET-UP COSTS | 1 | 40 | 2015 | 1.0 |
| | POL2 | POLE BUILDING-CONCRETE | 1 | 40 | 2015 | 864.0 |
Sketch
Property Image
Land
| 1 | RES 1 | Converted: Residential | 0.9112 | 39690.00 | 0.00 | 0.00 | 1.00 | $68,660 | $0 |
Roll Value History
| 2025 | N/A | N/A | N/A | N/A | N/A |
| 2024 | $348,550 | $68,660 | $0 | $417,210 | $417,210 |
| 2023 | $316,860 | $68,660 | $0 | $385,520 | $385,520 |
| 2022 | $301,770 | $68,660 | $0 | $370,430 | $370,430 |
| 2021 | $215,550 | $68,660 | $0 | $284,210 | $284,210 |
| 2020 | $162,700 | $36,300 | $0 | $199,000 | $199,000 |
| 2019 | $162,700 | $36,300 | $0 | $199,000 | $199,000 |
| 2018 | $162,700 | $36,300 | $0 | $199,000 | $199,000 |
| 2017 | $147,910 | $36,300 | $0 | $184,210 | $184,210 |
| 2016 | $87,670 | $36,300 | $0 | $123,970 | $123,970 |
| 2015 | $87,670 | $36,300 | $0 | $123,970 | $123,970 |
| 2014 | $79,700 | $36,300 | $0 | $116,000 | $116,000 |
| 2013 | $79,700 | $36,300 | $0 | $116,000 | $116,000 |
| 2012 | $79,700 | $36,300 | $0 | $0 | $0 |
| 2011 | $79,700 | $36,300 | $0 | $0 | $0 |
| 2010 | $79,700 | $36,300 | $0 | $0 | $0 |
| 2009 | $92,100 | $35,000 | $0 | $0 | $0 |
| 2008 | $49,700 | $35,000 | $0 | $0 | $0 |
| 2007 | $49,700 | $35,000 | $0 | $0 | $0 |
| 2006 | $49,700 | $35,000 | $0 | $0 | $0 |
Deed and Sales History
| 1 | 02/24/2020 | QCD | QUIT CLAIM DEED | RICARD RYAN RAY | RICARD RYAN RAY & TIFFANY R | | | $0.00 | 138883 | 2020-02886 |
| 2 | 09/10/2012 | WARRANTY D | WARRANTY DEED | CARNEY, VERDA R | RICARD, RYAN RAY | | | $50,000.00 | 122621 | 2012-07891 |
| 3 | 08/19/2012 | WARRANTY D | WARRANTY DEED | CARNEY, VERDA R | RICARD, RYAN RAY | | | $22,000.00 | 122622 | MHAF-122622 |
Payout Agreement
| No payout information available.. |