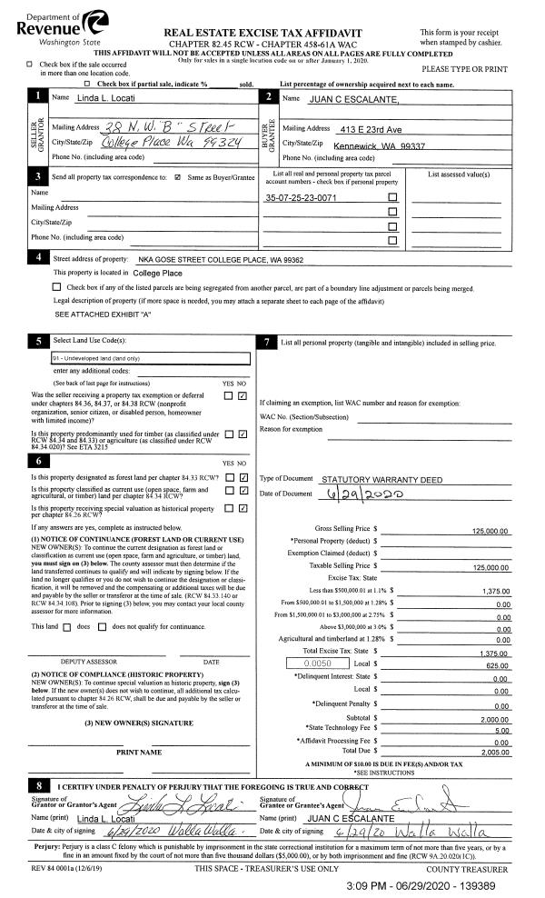
Property
Account |
| Property ID: | 33938 | Abbreviated Legal Description: | WHISPERING MEADOW SUBDIVISION LOT 17 |
| Parcel Number: | 350726650017 | Agent Code: | |
| Type: | Real | | |
| Tax Area: | 311 - 250-4 | Land Use Code | 11 |
| Open Space: | N | DFL | N |
| Historic Property: | N | Remodel Property: | N |
| Multi-Family Redevelopment: | N | | |
| Township: | 7 | Section: | 26 |
| Range: | 35 |
Location |
| Address: | 924 W WHITMAN DR WA 99324 | Mapsco: | |
| Neighborhood: | G SFR Rural/City Inf S | Map ID: | |
| Neighborhood CD: | 114212 |
Owner |
| Name: | ALIVERTI LIVING TRUST | Owner ID: | 51626 |
| Mailing Address: | 1406 DURUM DR WALLA WALLA, WA 99362 | % Ownership: | 100.0000000000% |
| | | Exemptions: | |
Taxes and Assessment Details
Values
| (+) Improvement Homesite Value: | + | $0 | |
| (+) Improvement Non-Homesite Value: | + | $268,850 | |
| (+) Land Homesite Value: | + | $0 | |
| (+) Land Non-Homesite Value: | + | $130,000 | |
| (+) Curr Use (HS): | + | $0 | $0 |
| (+) Curr Use (NHS): | + | $0 | $0 |
| | | -------------------------- | |
| (=) Market Value: | = | $398,850 | |
| (–) Productivity Loss: | – | $0 | |
| | | -------------------------- | |
| (=) Subtotal: | = | $398,850 | |
| (+) Senior Appraised Value: | + | $0 | |
| (+) Non-Senior Appraised Value: | + | $398,850 | |
| | | -------------------------- | |
| (=) Total Appraised Value: | = | $398,850 | |
| (–) Senior Exemption Loss: | – | $0 | |
| (–) Exemption Loss: | – | $0 | |
| | | -------------------------- | |
| (=) Taxable Value: | = | $398,850 | |
Taxing Jurisdiction
| Owner: | ALIVERTI LIVING TRUST | | |
| % Ownership: | 100.0000000000% | | |
| Total Value: | $398,850 | | |
| Tax Area: | 311 - 250-4 |
| CERFD | CURRENT EXPENSE REFUND 010 | 0.0000000000 | $398,850 | $398,850 | $0.00 | | |
| CURREXP | CURRENT EXPENSE 010 | 1.0175366760 | $398,850 | $398,850 | $405.84 | | |
| HUMNSERV | HUMAN SERVICES 119 | 0.0250000000 | $398,850 | $398,850 | $9.97 | | |
| SLDREL | SOLDIERS RELIEF 121 | 0.0155990005 | $398,850 | $398,850 | $6.22 | | |
| EMERGSER | EMS 147 | 0.3792580840 | $398,850 | $398,850 | $151.27 | | |
| EMSRFD | EMS REFUND 147 | 0.0000000000 | $398,850 | $398,850 | $0.00 | | |
| FD4EXP | FD #4 EXPENSE 686 | 0.8836993059 | $398,850 | $398,850 | $352.46 | | |
| RLBRFD | RURAL LIBRARY REFUND 623 | 0.0000000000 | $398,850 | $398,850 | $0.00 | | |
| RURALLIB | RURAL LIBRARY 623 | 0.3710609029 | $398,850 | $398,850 | $148.00 | | |
| PORTRFD | PORT REFUND 640 | 0.0000000000 | $398,850 | $398,850 | $0.00 | | |
| PORTWWGEN | PORT OF WW 640 | 0.2460186015 | $398,850 | $398,850 | $98.12 | | |
| SD250BOND | SD #250 BOND 773 | 1.4560608159 | $398,850 | $398,850 | $580.75 | | |
| SD250GEN | SD #250 GENERAL 770 | 2.3880724087 | $398,850 | $398,850 | $952.48 | | |
| ST2 | STATE SCHOOL PART 2 600 | 0.8131451643 | $398,850 | $398,850 | $324.32 | | |
| STATESCHL | STATE SCHOOL 600 | 1.5158548041 | $398,850 | $398,850 | $604.60 | | |
| STREFUND | STATE REFUND LEVY 603 | 0.0000000000 | $398,850 | $398,850 | $0.00 | | |
| COROAD | COUNTY ROAD 115 | 1.6549953990 | $398,850 | $398,850 | $660.09 | | |
| CRPRD | COUNTY ROAD REFUND 115 | 0.0000000000 | $398,850 | $398,850 | $0.00 | | |
| | Total Tax Rate: | 10.7663011628 | | | | | |
| | | | | Taxes w/Current Exemptions: | $4,294.12 | | |
| | | | | Taxes w/o Exemptions: | $4,294.12 | | |
Improvement / Building
| Improvement #1: | RESIDENTIAL | State Code: | 11 | 1411.0 sqft | Value: | $268,850 |
| Exterior Wall: | SIDING | Heating/Cooling: | WARM & COOLED AIR | | Number of Bathrooms: | 2 | Number of Bedrooms: | 3 | | Plumbing: | 9 | Roof Covering: | COMP SHINGLE |
|
| | Type | Description | Class CD | Sub Class CD | Year Built | Area |
| | MA | Main Area | 1 | 30 | 1951 | 1411.0 |
| | SI1 | SITE IMPROVEMENT | 1 | 30 | 1951 | 2.0 |
| | BASE | BASEMENT | 1 | 30 | 1951 | 1411.0 |
| | RPS | PORCH W/STEPS,ROOF | 1 | 30 | 1951 | 56.0 |
| | CPC | COVERED CARPORT/PATIO | 1 | 30 | 1951 | 300.0 |
| | DTG | Detached Garage | 1 | 30 | 1951 | 1200.0 |
| | CPC | COVERED CARPORT/PATIO | 1 | 30 | 1951 | 616.0 |
Sketch
Property Image
Land
| 1 | RES 1 | Converted: Residential | 0.6401 | 27881.00 | 0.00 | 0.00 | 1.00 | $130,000 | $0 |
Roll Value History
| 2025 | N/A | N/A | N/A | N/A | N/A |
| 2024 | $268,850 | $130,000 | $0 | $398,850 | $398,850 |
| 2023 | $268,850 | $130,000 | $0 | $398,850 | $398,850 |
| 2022 | $153,630 | $130,000 | $0 | $283,630 | $283,630 |
| 2021 | $146,310 | $130,000 | $0 | $276,310 | $276,310 |
| 2020 | $104,510 | $130,000 | $0 | $234,510 | $234,510 |
| 2019 | $159,510 | $75,000 | $0 | $234,510 | $234,510 |
| 2018 | $138,710 | $75,000 | $0 | $213,710 | $213,710 |
| 2017 | $138,710 | $75,000 | $0 | $213,710 | $213,710 |
| 2016 | $138,710 | $75,000 | $0 | $213,710 | $213,710 |
| 2015 | $132,100 | $75,000 | $0 | $207,100 | $207,100 |
| 2014 | $132,100 | $75,000 | $0 | $207,100 | $207,100 |
| 2013 | $132,100 | $75,000 | $0 | $207,100 | $207,100 |
| 2012 | $132,100 | $75,000 | $0 | $0 | $0 |
| 2011 | $117,100 | $90,000 | $0 | $0 | $0 |
| 2010 | $117,100 | $90,000 | $0 | $0 | $0 |
| 2009 | $128,000 | $90,000 | $0 | $0 | $0 |
| 2008 | $95,200 | $60,000 | $0 | $0 | $0 |
| 2007 | $95,200 | $60,000 | $0 | $0 | $0 |
| 2006 | $95,200 | $60,000 | $0 | $0 | $0 |
Deed and Sales History
| 1 | 11/15/2024 | GIFT | GIFT DEED | ALIVERTI LIVING TRUST | ALIVERTI STEVEN E | | | | 148521 | 2024-06642 |
| 2 | 08/31/2012 | WARRANTY D | WARRANTY DEED | ALIVERTI, EUGENE | ALIVERTI LIVING TRUST | | | $0.00 | 122566 | 2012-07667 |
| 3 | 06/07/2012 | WARRANTY D | WARRANTY DEED | ALIVERTI, LINDA ESTATE OF | ALIVERTI, EUGENE | | | | 122148 | 2012-04720 |
| 4 | 06/06/2012 | WARRANTY D | WARRANTY DEED | ALIVERTI, LINDA ESTATE OF | ALIVERTI, EUGENE | | | | 0 | CC #12-4-00064-4 |
Payout Agreement
| No payout information available.. |