Property
Account |
| Property ID: | 33927 | Abbreviated Legal Description: | WAINWRIGHT SECOND ADDN LOT 3 |
| Parcel Number: | 360734520003 | Agent Code: | |
| Type: | Real | | |
| Tax Area: | 101 - 140-4 | Land Use Code | 11 |
| Open Space: | N | DFL | N |
| Historic Property: | N | Remodel Property: | N |
| Multi-Family Redevelopment: | N | | |
| Township: | 7 | Section: | 34 |
| Range: | 36 |
Location |
| Address: | 2226 ROBERTS PL WA 99362 | Mapsco: | |
| Neighborhood: | VG Res Rural/City Inf | Map ID: | |
| Neighborhood CD: | 415012 |
Owner |
| Name: | GROVE JASON L & MARNE M | Owner ID: | 68891 |
| Mailing Address: | 2226 ROBERTS PLACE WALLA WALLA, WA 99362 | % Ownership: | 100.0000000000% |
| | | Exemptions: | |
Taxes and Assessment Details
Values
| (+) Improvement Homesite Value: | + | $0 | |
| (+) Improvement Non-Homesite Value: | + | $401,770 | |
| (+) Land Homesite Value: | + | $0 | |
| (+) Land Non-Homesite Value: | + | $137,100 | |
| (+) Curr Use (HS): | + | $0 | $0 |
| (+) Curr Use (NHS): | + | $0 | $0 |
| | | -------------------------- | |
| (=) Market Value: | = | $538,870 | |
| (–) Productivity Loss: | – | $0 | |
| | | -------------------------- | |
| (=) Subtotal: | = | $538,870 | |
| (+) Senior Appraised Value: | + | $0 | |
| (+) Non-Senior Appraised Value: | + | $538,870 | |
| | | -------------------------- | |
| (=) Total Appraised Value: | = | $538,870 | |
| (–) Senior Exemption Loss: | – | $0 | |
| (–) Exemption Loss: | – | $0 | |
| | | -------------------------- | |
| (=) Taxable Value: | = | $538,870 | |
Taxing Jurisdiction
| Owner: | GROVE JASON L & MARNE M | | |
| % Ownership: | 100.0000000000% | | |
| Total Value: | $538,870 | | |
| Tax Area: | 101 - 140-4 |
| CERFD | CURRENT EXPENSE REFUND 010 | 0.0000000000 | $538,870 | $538,870 | $0.00 | | |
| CURREXP | CURRENT EXPENSE 010 | 1.0175366760 | $538,870 | $538,870 | $548.32 | | |
| HUMNSERV | HUMAN SERVICES 119 | 0.0250000000 | $538,870 | $538,870 | $13.47 | | |
| SLDREL | SOLDIERS RELIEF 121 | 0.0155990005 | $538,870 | $538,870 | $8.41 | | |
| EMERGSER | EMS 147 | 0.3792580840 | $538,870 | $538,870 | $204.37 | | |
| EMSRFD | EMS REFUND 147 | 0.0000000000 | $538,870 | $538,870 | $0.00 | | |
| FD4EXP | FD #4 EXPENSE 686 | 0.8836993059 | $538,870 | $538,870 | $476.20 | | |
| RLBRFD | RURAL LIBRARY REFUND 623 | 0.0000000000 | $538,870 | $538,870 | $0.00 | | |
| RURALLIB | RURAL LIBRARY 623 | 0.3710609029 | $538,870 | $538,870 | $199.95 | | |
| PORTRFD | PORT REFUND 640 | 0.0000000000 | $538,870 | $538,870 | $0.00 | | |
| PORTWWGEN | PORT OF WW 640 | 0.2460186015 | $538,870 | $538,870 | $132.57 | | |
| SD140BOND | SD #140 BOND 764 | 0.8342371393 | $538,870 | $538,870 | $449.55 | | |
| SD140GEN | SD #140 GENERAL 760 | 2.0646500647 | $538,870 | $538,870 | $1,112.58 | | |
| ST2 | STATE SCHOOL PART 2 600 | 0.8131451643 | $538,870 | $538,870 | $438.18 | | |
| STATESCHL | STATE SCHOOL 600 | 1.5158548041 | $538,870 | $538,870 | $816.85 | | |
| STREFUND | STATE REFUND LEVY 603 | 0.0000000000 | $538,870 | $538,870 | $0.00 | | |
| COROAD | COUNTY ROAD 115 | 1.6549953990 | $538,870 | $538,870 | $891.83 | | |
| CRPRD | COUNTY ROAD REFUND 115 | 0.0000000000 | $538,870 | $538,870 | $0.00 | | |
| | Total Tax Rate: | 9.8210551422 | | | | | |
| | | | | Taxes w/Current Exemptions: | $5,292.28 | | |
| | | | | Taxes w/o Exemptions: | $5,292.28 | | |
Improvement / Building
| Improvement #1: | RESIDENTIAL | State Code: | 11 | 2110.0 sqft | Value: | $401,770 |
| Exterior Wall: | SIDING | Heating/Cooling: | WARM & COOLED AIR | | Number of Bathrooms: | 2.5 | Number of Bedrooms: | 4 | | Plumbing: | 14 | Roof Covering: | COMP SHINGLE |
|
| | Type | Description | Class CD | Sub Class CD | Year Built | Area |
| | MA | Main Area | 1 | 35 | 1966 | 2110.0 |
| | SI1 | SITE IMPROVEMENT | 1 | 35 | 0 | 4.0 |
| | OPS | OPEN PORCH W/STEPS | 1 | 35 | 1966 | 25.0 |
| | ATG | Attached Garage | 1 | 35 | 1966 | 440.0 |
| | S1F | Single One Story Fireplace | 1 | 35 | 1966 | 1.0 |
| | TOOL | TOOL SHED | 1 | 35 | 1966 | 192.0 |
Sketch
Property Image
Land
| 1 | RES 1 | Converted: Residential | 0.4918 | 21422.00 | 0.00 | 0.00 | 1.00 | $137,100 | $0 |
Roll Value History
| 2025 | N/A | N/A | N/A | N/A | N/A |
| 2024 | $421,850 | $137,100 | $0 | $558,950 | $558,950 |
| 2023 | $401,770 | $137,100 | $0 | $538,870 | $538,870 |
| 2022 | $422,910 | $67,050 | $0 | $489,960 | $489,960 |
| 2021 | $270,190 | $67,050 | $0 | $337,240 | $337,240 |
| 2020 | $225,160 | $67,050 | $0 | $292,210 | $292,210 |
| 2019 | $225,160 | $67,050 | $0 | $292,210 | $292,210 |
| 2018 | $204,690 | $67,050 | $0 | $271,740 | $271,740 |
| 2017 | $204,690 | $67,050 | $0 | $271,740 | $271,740 |
| 2016 | $214,940 | $56,800 | $0 | $271,740 | $271,740 |
| 2015 | $195,400 | $56,800 | $0 | $252,200 | $252,200 |
| 2014 | $195,400 | $56,800 | $0 | $252,200 | $252,200 |
| 2013 | $195,400 | $56,800 | $0 | $252,200 | $252,200 |
| 2012 | $195,400 | $56,800 | $0 | $0 | $0 |
| 2011 | $189,500 | $56,800 | $0 | $0 | $0 |
| 2010 | $177,800 | $56,800 | $0 | $0 | $0 |
| 2009 | $203,900 | $56,800 | $0 | $0 | $0 |
| 2008 | $203,900 | $56,800 | $0 | $0 | $0 |
| 2007 | $142,500 | $34,300 | $0 | $0 | $0 |
| 2006 | $142,500 | $34,300 | $0 | $0 | $0 |
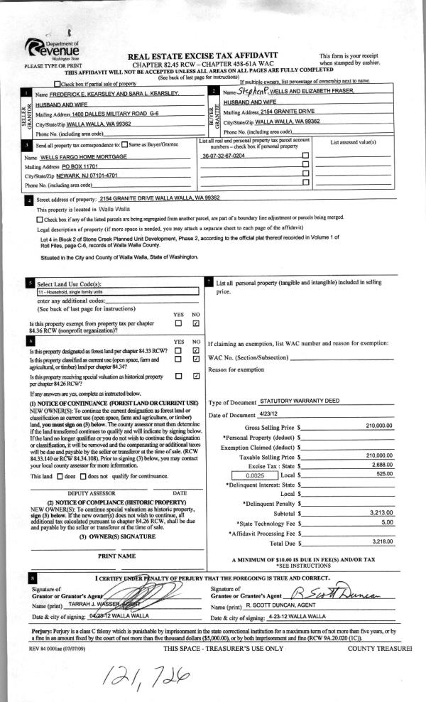
Deed and Sales History
| 1 | 01/27/2021 | QCD | QUIT CLAIM DEED | GROVE JASON L | GROVE JASON L & MARNE M | | | $0.00 | 140972 | 2021-02121 |
| 2 | 02/04/2021 | QCD | QUIT CLAIM DEED | GROVE TABITHA S PENNINGTON | GROVE JASON L | | | $0.00 | 140971 | 2021-02120 |
| 3 | 01/27/2021 | QCD | QUIT CLAIM DEED | GROVE JASON L | GROVE JASON L | | | $0.00 | 140970 | 2021-02119 |
| 4 | | COURT CASE | COURT CASE | GROVE TABITHA S | GROVE JASON | | | | 0 | SEE IMAGES |
| 5 | 09/21/2012 | QCD | QUIT CLAIM DEED | GROVE, JASON | GROVE, JASON L & TABITHA S | | | $0.00 | 122677 | 2012-08257 |
| 6 | 05/29/2009 | WARRANTY D | WARRANTY DEED | BRINLEE, JANA L | GROVE, JASON | | | $259,900.00 | 116809 | 2009-05403 |
| 7 | 01/02/2002 | WARRANTY D | WARRANTY DEED | | | | | $179,900.00 | 98674 | 3260-200037 |
Payout Agreement
| No payout information available.. |