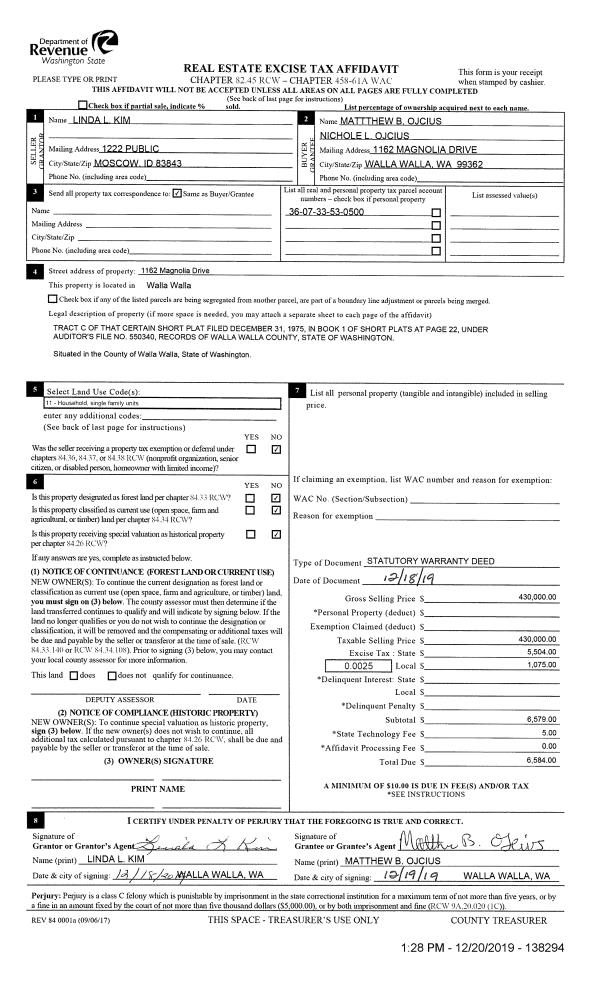
Property
Account |
| Property ID: | 33914 | Abbreviated Legal Description: | KREBS ADDN LOT 1 |
| Parcel Number: | 360728820001 | Agent Code: | |
| Type: | Real | | |
| Tax Area: | 105 - 140-F-4 | Land Use Code | 11 |
| Open Space: | N | DFL | N |
| Historic Property: | N | Remodel Property: | N |
| Multi-Family Redevelopment: | N | | |
| Township: | 7 | Section: | 28 |
| Range: | 36 |
Location |
| Address: | 1388 CRYSTAL CT WA 99362 | Mapsco: | |
| Neighborhood: | G Res | Map ID: | |
| Neighborhood CD: | 614011 |
Owner |
| Name: | SCHAFFER CYNTHIA PEARL | Owner ID: | 63087 |
| Mailing Address: | 1388 CRYSTAL CT WALLA WALLA, WA 99362 | % Ownership: | 100.0000000000% |
| | | Exemptions: | SNR/DSBL |
Taxes and Assessment Details
Values
| (+) Improvement Homesite Value: | + | $442,730 | |
| (+) Improvement Non-Homesite Value: | + | $0 | |
| (+) Land Homesite Value: | + | $120,000 | |
| (+) Land Non-Homesite Value: | + | $0 | |
| (+) Curr Use (HS): | + | $0 | $0 |
| (+) Curr Use (NHS): | + | $0 | $0 |
| | | -------------------------- | |
| (=) Market Value: | = | $562,730 | |
| (–) Productivity Loss: | – | $0 | |
| | | -------------------------- | |
| (=) Subtotal: | = | $562,730 | |
| (+) Senior Appraised Value: | + | $274,830 | |
| (+) Non-Senior Appraised Value: | + | $0 | |
| | | -------------------------- | |
| (=) Total Appraised Value: | = | $274,830 | |
| (–) Senior Exemption Loss: | – | $164,898 | |
| (–) Exemption Loss: | – | $0 | |
| | | -------------------------- | |
| (=) Taxable Value: | = | $109,932 | |
Taxing Jurisdiction
| Owner: | SCHAFFER CYNTHIA PEARL | | |
| % Ownership: | 100.0000000000% | | |
| Total Value: | $562,730 | | |
| Tax Area: | 105 - 140-F-4 |
| CERFD | CURRENT EXPENSE REFUND 010 | 0.0000000000 | $562,730 | $109,932 | $0.00 | | |
| CURREXP | CURRENT EXPENSE 010 | 1.0175366760 | $562,730 | $109,932 | $111.86 | | |
| HUMNSERV | HUMAN SERVICES 119 | 0.0250000000 | $562,730 | $109,932 | $2.75 | | |
| SLDREL | SOLDIERS RELIEF 121 | 0.0155990005 | $562,730 | $109,932 | $1.71 | | |
| EMERGSER | EMS 147 | 0.3792580840 | $562,730 | $109,932 | $41.69 | | |
| EMSRFD | EMS REFUND 147 | 0.0000000000 | $562,730 | $109,932 | $0.00 | | |
| FD4EXP | FD #4 EXPENSE 686 | 0.8836993059 | $562,730 | $109,932 | $97.15 | | |
| RLBRFD | RURAL LIBRARY REFUND 623 | 0.0000000000 | $562,730 | $109,932 | $0.00 | | |
| RURALLIB | RURAL LIBRARY 623 | 0.3710609029 | $562,730 | $109,932 | $40.79 | | |
| PORTRFD | PORT REFUND 640 | 0.0000000000 | $562,730 | $109,932 | $0.00 | | |
| PORTWWGEN | PORT OF WW 640 | 0.2460186015 | $562,730 | $109,932 | $27.05 | | |
| SD140BOND | SD #140 BOND 764 | 0.0000000000 | $562,730 | $0 | $0.00 | | |
| SD140GEN | SD #140 GENERAL 760 | 0.0000000000 | $562,730 | $0 | $0.00 | | |
| ST2 | STATE SCHOOL PART 2 600 | 0.0000000000 | $562,730 | $0 | $0.00 | | |
| STATESCHL | STATE SCHOOL 600 | 1.5158548041 | $562,730 | $109,932 | $166.64 | | |
| STREFUND | STATE REFUND LEVY 603 | 0.0000000000 | $562,730 | $109,932 | $0.00 | | |
| COROAD | COUNTY ROAD 115 | 1.6549953990 | $562,730 | $109,932 | $181.94 | | |
| CRPRD | COUNTY ROAD REFUND 115 | 0.0000000000 | $562,730 | $109,932 | $0.00 | | |
| | Total Tax Rate: | 6.1090227739 | | | | | |
| | | | | Taxes w/Current Exemptions: | $671.58 | | |
| | | | | Taxes w/o Exemptions: | $5,526.61 | | |
Improvement / Building
| Improvement #1: | RESIDENTIAL | State Code: | 11 | 1941.0 sqft | Value: | $442,730 |
| Exterior Wall: | VINYL | Heating/Cooling: | WARM & COOLED AIR | | Number of Bathrooms: | 4 | Number of Bedrooms: | 3 | | Plumbing: | 14 | Roof Covering: | COMP SHINGLE |
|
| | Type | Description | Class CD | Sub Class CD | Year Built | Area |
| | MA | Main Area | 1 | 40 | 2001 | 1941.0 |
| | SI1 | SITE IMPROVEMENT | 1 | 40 | 2001 | 2.5 |
| | GFP | GAS FIREPLACE | 1 | 40 | 2001 | 1.0 |
| | ATG | Attached Garage | 1 | 40 | 2001 | 556.0 |
| | BONU | BONUS ROOM W/FINISH | 1 | 40 | 2001 | 288.0 |
Sketch
Property Image
Land
| 1 | RES 1 | Converted: Residential | 0.3330 | 14506.00 | 0.00 | 0.00 | 1.00 | $120,000 | $0 |
Roll Value History
| 2025 | N/A | N/A | N/A | N/A | N/A |
| 2024 | $442,730 | $120,000 | $0 | $562,730 | $109,932 |
| 2023 | $442,730 | $120,000 | $0 | $562,730 | $109,932 |
| 2022 | $421,640 | $85,000 | $0 | $506,640 | $109,932 |
| 2021 | $366,650 | $85,000 | $0 | $451,650 | $109,932 |
| 2020 | $261,890 | $85,000 | $0 | $346,890 | $109,932 |
| 2019 | $261,890 | $85,000 | $0 | $346,890 | $109,932 |
| 2018 | $225,570 | $60,000 | $0 | $285,570 | $109,932 |
| 2017 | $214,830 | $60,000 | $0 | $274,830 | $109,932 |
| 2016 | $214,830 | $60,000 | $0 | $274,830 | $274,830 |
| 2015 | $214,830 | $60,000 | $0 | $274,830 | $274,830 |
| 2014 | $195,300 | $60,000 | $0 | $255,300 | $255,300 |
| 2013 | $195,300 | $60,000 | $0 | $255,300 | $255,300 |
| 2012 | $200,600 | $60,000 | $0 | $0 | $0 |
| 2011 | $200,600 | $60,000 | $0 | $0 | $0 |
| 2010 | $200,600 | $60,000 | $0 | $0 | $0 |
| 2009 | $229,500 | $60,000 | $0 | $0 | $0 |
| 2008 | $229,500 | $60,000 | $0 | $0 | $0 |
| 2007 | $152,900 | $35,000 | $0 | $0 | $0 |
| 2006 | $152,900 | $35,000 | $0 | $0 | $0 |
Deed and Sales History
| 1 | 05/16/2018 | QCD | QUIT CLAIM DEED | SCHAFFER CINDY P | SCHAFFER CYNTHIA PEARL | | | $0.00 | 134720 | 2018-03866 |
| 2 | 04/03/2018 | TODD | TRANSFER ON DEATH DEED | SCHAFFER CINDY P | WILLIAMS CHERIE ET AL | | | | 0 | 2018-02760 |
| 3 | 01/23/2018 | DEATH CERT | DEATH CERTIFICATE | BURLEY PEARL ETHEL | | | | | 0 | 2018-00504 |
| 4 | 05/24/2012 | QCD | QUIT CLAIM DEED | BURLEY, PEARL E | BURLEY, PEARL E | | | | 121858 | 2012-04271 |
| 5 | 05/14/2001 | WARRANTY D | WARRANTY DEED | | | | | $34,000.00 | 97159 | 3130-104935 |
Payout Agreement
| No payout information available.. |