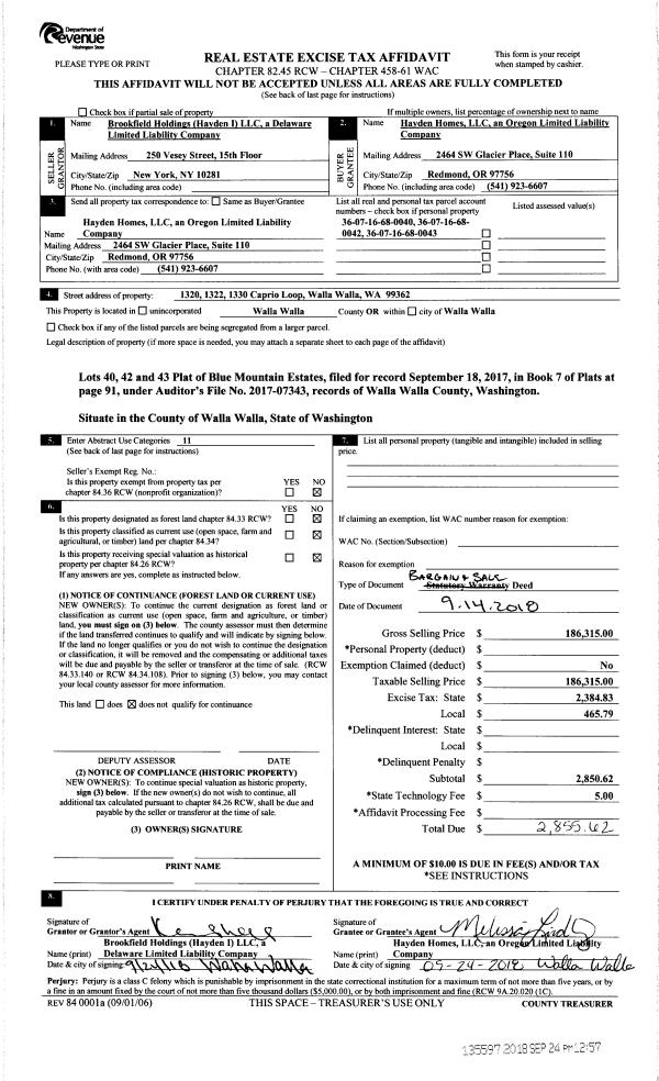
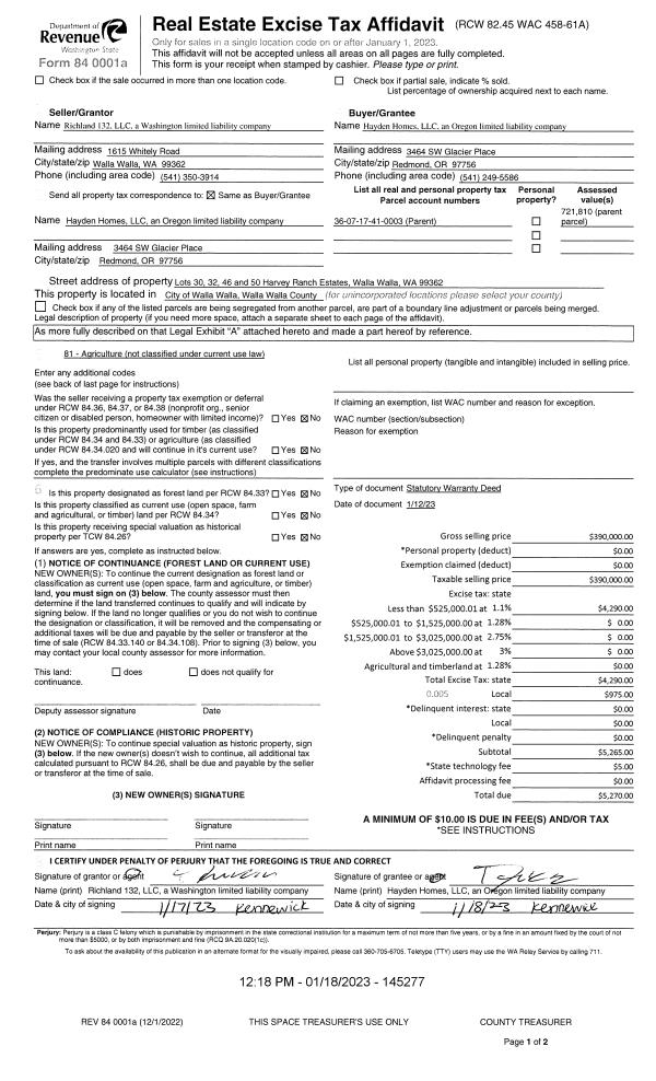
Property
Account |
| Property ID: | 33901 | Abbreviated Legal Description: | PROSPECT TERRACE LOT 43 |
| Parcel Number: | 360732810043 | Agent Code: | |
| Type: | Real | | |
| Tax Area: | 6 - OL-140-F-FB | Land Use Code | 11 |
| Open Space: | N | DFL | N |
| Historic Property: | N | Remodel Property: | N |
| Multi-Family Redevelopment: | N | | |
| Township: | 7 | Section: | 32 |
| Range: | 36 |
Location |
| Address: | 952 HIGHLAND RD WA 99362 | Mapsco: | |
| Neighborhood: | G Res Rural/City Inf | Map ID: | |
| Neighborhood CD: | 614012 |
Owner |
| Name: | HESSLER SPENCER W & KRISTIN G | Owner ID: | 67054 |
| Mailing Address: | 952 HIGHLAND DR WALLA WALLA, WA 99362 | % Ownership: | 100.0000000000% |
| | | Exemptions: | |
Taxes and Assessment Details
Values
| (+) Improvement Homesite Value: | + | $0 | |
| (+) Improvement Non-Homesite Value: | + | $315,610 | |
| (+) Land Homesite Value: | + | $0 | |
| (+) Land Non-Homesite Value: | + | $85,000 | |
| (+) Curr Use (HS): | + | $0 | $0 |
| (+) Curr Use (NHS): | + | $0 | $0 |
| | | -------------------------- | |
| (=) Market Value: | = | $400,610 | |
| (–) Productivity Loss: | – | $0 | |
| | | -------------------------- | |
| (=) Subtotal: | = | $400,610 | |
| (+) Senior Appraised Value: | + | $0 | |
| (+) Non-Senior Appraised Value: | + | $400,610 | |
| | | -------------------------- | |
| (=) Total Appraised Value: | = | $400,610 | |
| (–) Senior Exemption Loss: | – | $0 | |
| (–) Exemption Loss: | – | $0 | |
| | | -------------------------- | |
| (=) Taxable Value: | = | $400,610 | |
Taxing Jurisdiction
| Owner: | HESSLER SPENCER W & KRISTIN G | | |
| % Ownership: | 100.0000000000% | | |
| Total Value: | $400,610 | | |
| Tax Area: | 6 - OL-140-F-FB |
| CERFD | CURRENT EXPENSE REFUND 010 | 0.0000000000 | $400,610 | $400,610 | $0.00 | | |
| CURREXP | CURRENT EXPENSE 010 | 1.0175366760 | $400,610 | $400,610 | $407.64 | | |
| HUMNSERV | HUMAN SERVICES 119 | 0.0250000000 | $400,610 | $400,610 | $10.02 | | |
| SLDREL | SOLDIERS RELIEF 121 | 0.0155990005 | $400,610 | $400,610 | $6.25 | | |
| EMERGSER | EMS 147 | 0.3792580840 | $400,610 | $400,610 | $151.93 | | |
| EMSRFD | EMS REFUND 147 | 0.0000000000 | $400,610 | $400,610 | $0.00 | | |
| PORTRFD | PORT REFUND 640 | 0.0000000000 | $400,610 | $400,610 | $0.00 | | |
| PORTWWGEN | PORT OF WW 640 | 0.2460186015 | $400,610 | $400,610 | $98.56 | | |
| SD140BOND | SD #140 BOND 764 | 0.8342371393 | $400,610 | $400,610 | $334.20 | | |
| SD140GEN | SD #140 GENERAL 760 | 2.0646500647 | $400,610 | $400,610 | $827.12 | | |
| ST2 | STATE SCHOOL PART 2 600 | 0.8131451643 | $400,610 | $400,610 | $325.75 | | |
| STATESCHL | STATE SCHOOL 600 | 1.5158548041 | $400,610 | $400,610 | $607.27 | | |
| STREFUND | STATE REFUND LEVY 603 | 0.0000000000 | $400,610 | $400,610 | $0.00 | | |
| CWWBOND | C OF WW BOND 643 | 0.2760494372 | $400,610 | $400,610 | $110.59 | | |
| CWWGEN | CITY OF WW 631 | 1.6100204973 | $400,610 | $400,610 | $644.99 | | |
| CWWRFD | CITY OF WALLA WALLA REFUND 631 | 0.0000000000 | $400,610 | $400,610 | $0.00 | | |
| | Total Tax Rate: | 8.7973694689 | | | | | |
| | | | | Taxes w/Current Exemptions: | $3,524.32 | | |
| | | | | Taxes w/o Exemptions: | $3,524.32 | | |
Improvement / Building
| Improvement #1: | RESIDENTIAL | State Code: | 11 | 1556.0 sqft | Value: | $315,610 |
| Exterior Wall: | HARDBOARD | Heating/Cooling: | WARM & COOLED AIR | | Number of Bathrooms: | 2 | Number of Bedrooms: | 3 | | Plumbing: | 10 | Roof Covering: | COMP SHINGLE |
|
| | Type | Description | Class CD | Sub Class CD | Year Built | Area |
| | MA | Main Area | 1 | 30 | 2010 | 1556.0 |
| | SI1 | SITE IMPROVEMENT | 1 | 30 | 2010 | 2.2 |
| | ATG | Attached Garage | 1 | 30 | 2010 | 400.0 |
| | RPO | OPEN PORCH W/ROOF | 1 | 30 | 2010 | 80.0 |
| | GFP | GAS FIREPLACE | 1 | 30 | 2010 | 1.0 |
Sketch
Property Image
Land
| 1 | RES 1 | Converted: Residential | 0.1786 | 7779.00 | 0.00 | 0.00 | 1.00 | $85,000 | $0 |
Roll Value History
| 2025 | N/A | N/A | N/A | N/A | N/A |
| 2024 | $331,390 | $85,000 | $0 | $416,390 | $416,390 |
| 2023 | $315,610 | $85,000 | $0 | $400,610 | $400,610 |
| 2022 | $300,580 | $70,000 | $0 | $370,580 | $370,580 |
| 2021 | $246,380 | $70,000 | $0 | $316,380 | $316,380 |
| 2020 | $182,500 | $70,000 | $0 | $252,500 | $252,500 |
| 2019 | $182,500 | $70,000 | $0 | $252,500 | $252,500 |
| 2018 | $158,450 | $60,000 | $0 | $218,450 | $218,450 |
| 2017 | $153,840 | $60,000 | $0 | $213,840 | $213,840 |
| 2016 | $150,820 | $60,000 | $0 | $210,820 | $210,820 |
| 2015 | $143,640 | $60,000 | $0 | $203,640 | $203,640 |
| 2014 | $136,800 | $60,000 | $0 | $196,800 | $196,800 |
| 2013 | $136,800 | $60,000 | $0 | $196,800 | $196,800 |
| 2012 | $132,600 | $60,000 | $0 | $0 | $0 |
| 2011 | $138,600 | $60,000 | $0 | $0 | $0 |
| 2010 | $0 | $60,000 | $0 | $0 | $0 |
| 2009 | $0 | $60,000 | $0 | $0 | $0 |
| 2008 | $0 | $3,800 | $0 | $0 | $0 |
| 2007 | $136,800 | $60,000 | $0 | $0 | $0 |
Deed and Sales History
| 1 | 04/25/2020 | QCD | QUIT CLAIM DEED | HESSLER SPENCER W | HESSLER SPENCER W & KRISTIN G | | | $0.00 | 139006 | 2020-03714 |
| 2 | 11/29/2018 | SWD | STATUTORY WARRANTY DEED | NEVSHEMAL JOSEPH P & CASSANDRA E | HESSLER SPENCER W | | | $285,000.00 | 136002 | 2018-09852 |
| 3 | 08/08/2012 | WARRANTY D | WARRANTY DEED | PERKINS, ELIJAH & ASHLEY | NEVSHEMAL, JOSEPH P & CASSANDR | | | $200,000.00 | 122465 | 2012-06793 |
| 4 | 01/31/2011 | WARRANTY D | WARRANTY DEED | HAYDEN HOMES LLC | PERKINS, ELIJAH & ASHLEY | | | $193,619.00 | 119676 | 2011-00990 |
| 5 | 12/05/2007 | WARRANTY D | WARRANTY DEED | HAYDEN ENTERPRISES INC | | | | | 114183 | 2007-13846 |
Payout Agreement
| No payout information available.. |