Property
Account |
| Property ID: | 33897 | Abbreviated Legal Description: | KNAPP ADDN PARCEL 6 BLK 2 |
| Parcel Number: | 350736620206 | Agent Code: | |
| Type: | Real | | |
| Tax Area: | 77 - CP-250-F | Land Use Code | 11 |
| Open Space: | N | DFL | N |
| Historic Property: | N | Remodel Property: | N |
| Multi-Family Redevelopment: | N | | |
| Township: | 7 | Section: | 36 |
| Range: | 35 |
Location |
| Address: | 1326 SE INDEPENDENCE DR WA 99324 | Mapsco: | |
| Neighborhood: | A SFR Rural/City Inf | Map ID: | |
| Neighborhood CD: | 113012 |
Owner |
| Name: | ORTIZ TOMMY | Owner ID: | 69071 |
| Mailing Address: | 1326 SE INDEPENDENCE DR COLLEGE PLACE, WA 99324 | % Ownership: | 100.0000000000% |
| | | Exemptions: | |
Taxes and Assessment Details
Values
| (+) Improvement Homesite Value: | + | $0 | |
| (+) Improvement Non-Homesite Value: | + | $237,020 | |
| (+) Land Homesite Value: | + | $0 | |
| (+) Land Non-Homesite Value: | + | $70,000 | |
| (+) Curr Use (HS): | + | $0 | $0 |
| (+) Curr Use (NHS): | + | $0 | $0 |
| | | -------------------------- | |
| (=) Market Value: | = | $307,020 | |
| (–) Productivity Loss: | – | $0 | |
| | | -------------------------- | |
| (=) Subtotal: | = | $307,020 | |
| (+) Senior Appraised Value: | + | $0 | |
| (+) Non-Senior Appraised Value: | + | $307,020 | |
| | | -------------------------- | |
| (=) Total Appraised Value: | = | $307,020 | |
| (–) Senior Exemption Loss: | – | $0 | |
| (–) Exemption Loss: | – | $0 | |
| | | -------------------------- | |
| (=) Taxable Value: | = | $307,020 | |
Taxing Jurisdiction
| Owner: | ORTIZ TOMMY | | |
| % Ownership: | 100.0000000000% | | |
| Total Value: | $307,020 | | |
| Tax Area: | 77 - CP-250-F |
| CERFD | CURRENT EXPENSE REFUND 010 | 0.0000000000 | $307,020 | $307,020 | $0.00 | | |
| CURREXP | CURRENT EXPENSE 010 | 1.0175366760 | $307,020 | $307,020 | $312.40 | | |
| HUMNSERV | HUMAN SERVICES 119 | 0.0250000000 | $307,020 | $307,020 | $7.68 | | |
| SLDREL | SOLDIERS RELIEF 121 | 0.0155990005 | $307,020 | $307,020 | $4.79 | | |
| COLLPLBOND | C OF CP BOND 644 | 0.4374241808 | $307,020 | $307,020 | $134.30 | | |
| COLLPLGEN | CITY OF CP 632 | 1.4453819216 | $307,020 | $307,020 | $443.76 | | |
| EMERGSER | EMS 147 | 0.3792580840 | $307,020 | $307,020 | $116.44 | | |
| EMSRFD | EMS REFUND 147 | 0.0000000000 | $307,020 | $307,020 | $0.00 | | |
| RURALLIB | RURAL LIBRARY 623 | 0.3710609029 | $307,020 | $307,020 | $113.92 | | |
| PORTRFD | PORT REFUND 640 | 0.0000000000 | $307,020 | $307,020 | $0.00 | | |
| PORTWWGEN | PORT OF WW 640 | 0.2460186015 | $307,020 | $307,020 | $75.53 | | |
| SD250BOND | SD #250 BOND 773 | 1.4560608159 | $307,020 | $307,020 | $447.04 | | |
| SD250GEN | SD #250 GENERAL 770 | 2.3880724087 | $307,020 | $307,020 | $733.19 | | |
| ST2 | STATE SCHOOL PART 2 600 | 0.8131451643 | $307,020 | $307,020 | $249.65 | | |
| STATESCHL | STATE SCHOOL 600 | 1.5158548041 | $307,020 | $307,020 | $465.40 | | |
| STREFUND | STATE REFUND LEVY 603 | 0.0000000000 | $307,020 | $307,020 | $0.00 | | |
| | Total Tax Rate: | 10.1104125603 | | | | | |
| | | | | Taxes w/Current Exemptions: | $3,104.10 | | |
| | | | | Taxes w/o Exemptions: | $3,104.10 | | |
Improvement / Building
| Improvement #1: | RESIDENTIAL | State Code: | 11 | 996.0 sqft | Value: | $237,020 |
| Exterior Wall: | HARDBOARD | Heating/Cooling: | WARM & COOLED AIR | | Number of Bathrooms: | 2 | Number of Bedrooms: | 4 | | Plumbing: | 8 | Roof Covering: | COMP SHINGLE |
|
| | Type | Description | Class CD | Sub Class CD | Year Built | Area |
| | MA | Main Area | 11 | 30 | 1979 | 996.0 |
| | SI1 | SITE IMPROVEMENT | 11 | 30 | 1979 | 2.0 |
| | BASE | BASEMENT | 11 | 30 | 1979 | 936.0 |
| | BPF | BASEMENT -PARTITIONED FINISH | 11 | 30 | 1979 | 936.0 |
| | ATG | Attached Garage | 11 | 30 | 1979 | 440.0 |
| | D2F | Double 2 Story Fireplace | 11 | 30 | 1979 | 1.0 |
| | WOD | Wood Deck | 11 | 30 | 1979 | 120.0 |
| | OPS | OPEN PORCH W/STEPS | 1 | | 1979 | 30.0 |
Sketch
Property Image
Land
| 1 | RES 1 | Converted: Residential | 0.2152 | 9375.00 | 0.00 | 0.00 | 1.00 | $70,000 | $0 |
Roll Value History
| 2025 | N/A | N/A | N/A | N/A | N/A |
| 2024 | $237,020 | $70,000 | $0 | $307,020 | $307,020 |
| 2023 | $237,020 | $70,000 | $0 | $307,020 | $307,020 |
| 2022 | $225,730 | $70,000 | $0 | $295,730 | $295,730 |
| 2021 | $214,980 | $70,000 | $0 | $284,980 | $284,980 |
| 2020 | $186,940 | $70,000 | $0 | $256,940 | $256,940 |
| 2019 | $201,940 | $55,000 | $0 | $256,940 | $256,940 |
| 2018 | $192,330 | $55,000 | $0 | $247,330 | $247,330 |
| 2017 | $160,270 | $55,000 | $0 | $215,270 | $215,270 |
| 2016 | $133,560 | $55,000 | $0 | $188,560 | $188,560 |
| 2015 | $127,200 | $55,000 | $0 | $182,200 | $182,200 |
| 2014 | $127,200 | $55,000 | $0 | $182,200 | $182,200 |
| 2013 | $127,200 | $55,000 | $0 | $182,200 | $182,200 |
| 2012 | $147,400 | $55,000 | $0 | $0 | $0 |
| 2011 | $169,900 | $55,000 | $0 | $0 | $0 |
| 2010 | $169,900 | $55,000 | $0 | $0 | $0 |
| 2009 | $181,700 | $55,000 | $0 | $0 | $0 |
| 2008 | $107,200 | $30,000 | $0 | $0 | $0 |
| 2007 | $107,200 | $30,000 | $0 | $0 | $0 |
| 2006 | $107,200 | $30,000 | $0 | $0 | $0 |
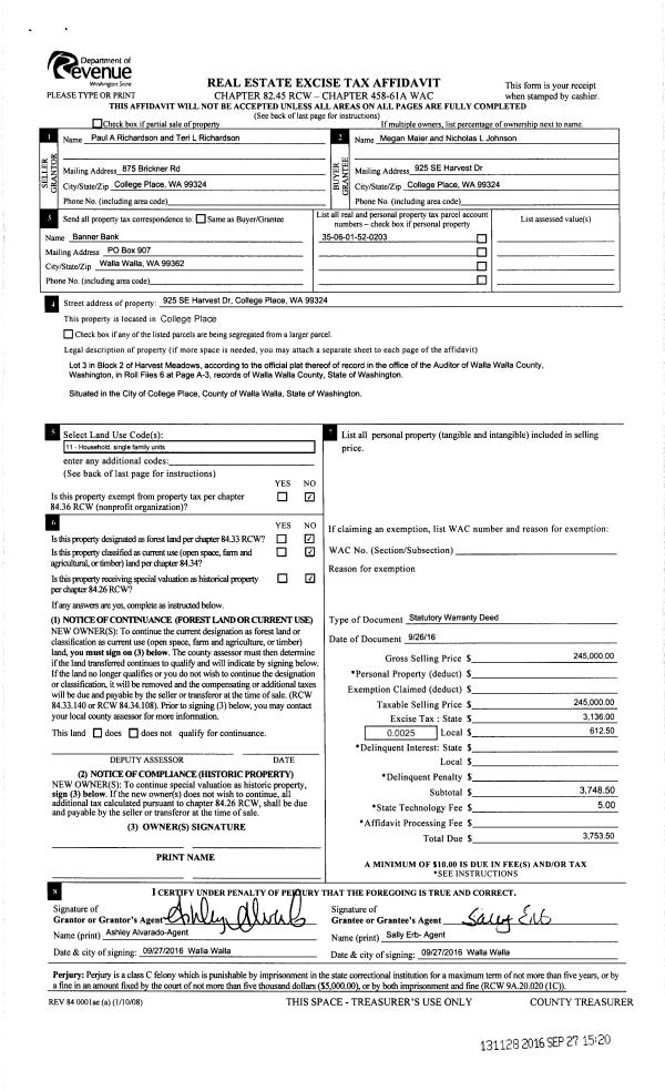
Deed and Sales History
| 1 | 03/25/2021 | SWD | STATUTORY WARRANTY DEED | HARRIS STEVEN M | ORTIZ TOMMY | | | $300,000.00 | 141176 | 2021-03406 |
| 2 | 09/27/2016 | QCD | QUIT CLAIM DEED | HARRIS KATHRYN | HARRIS STEVEN M | | | | 131147 | 2016-07981 |
| 3 | 09/28/2016 | SWD | STATUTORY WARRANTY DEED | MARTINEZ ALFONSO L & BRENDA E | HARRIS STEVEN M | | | $247,500.00 | 131145 | 2016-07980 |
| 4 | 08/15/2012 | WARRANTY D | WARRANTY DEED | RUIZ, CALIXTO & NINFA | MARTINEZ, ALFONSO L & BRENDA E | | | $150,000.00 | 122493 | 2012-06989 |
| 5 | 09/06/2007 | WARRANTY D | WARRANTY DEED | MILLER, KENNETH G & CRISTEN M | RUIZ, CALIXTO & NINFA | | | $239,900.00 | 113659 | 2007-10476 |
| 6 | 03/15/2000 | WARRANTY D | WARRANTY DEED | | | | | $122,500.00 | 94710 | 2960-002535 |
Payout Agreement
| No payout information available.. |