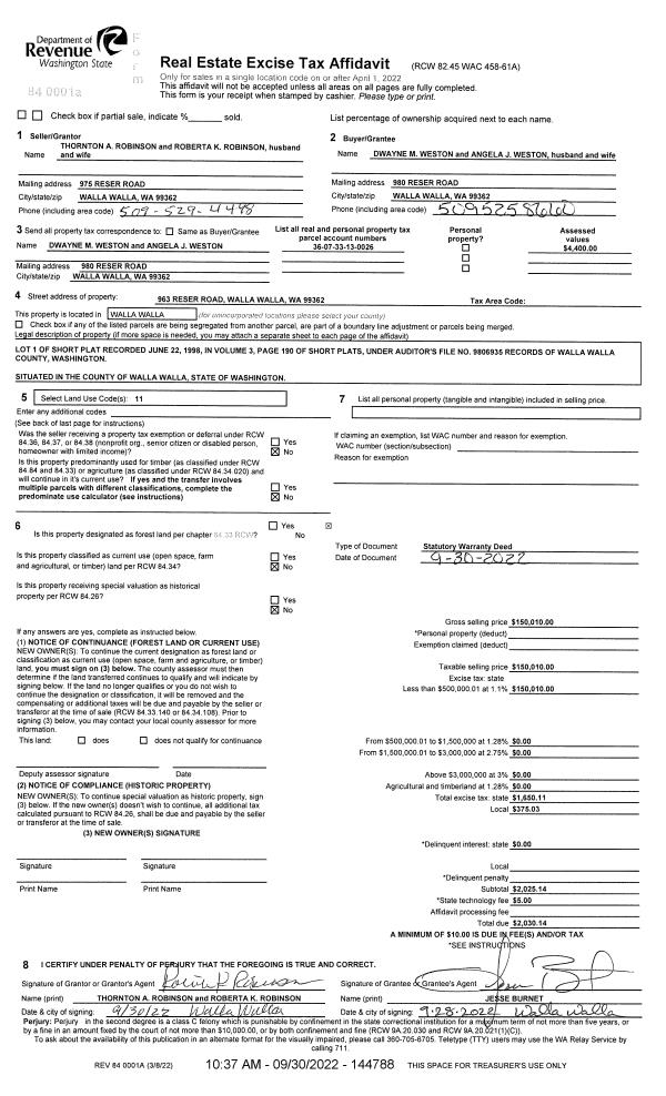
Property
Account |
| Property ID: | 33730 | Abbreviated Legal Description: | HENDERSON TAX 2B BLK 32(F) |
| Parcel Number: | 360729683208 | Agent Code: | |
| Type: | Real | | |
| Tax Area: | 1 - OL-140-F | Land Use Code | 11 |
| Open Space: | N | DFL | N |
| Historic Property: | N | Remodel Property: | N |
| Multi-Family Redevelopment: | N | | |
| Township: | 7 | Section: | 29 |
| Range: | 36 |
Location |
| Address: | 241 HARRISON ST WA 99362 | Mapsco: | |
| Neighborhood: | Fair Res | Map ID: | |
| Neighborhood CD: | 612011 |
Owner |
| Name: | TRI CONSTRUCTION LLC | Owner ID: | 73507 |
| Mailing Address: | PO BOX 6004 KENNEWICK, WA 99336 | % Ownership: | 100.0000000000% |
| | | Exemptions: | |
Taxes and Assessment Details
Values
| (+) Improvement Homesite Value: | + | $69,750 | |
| (+) Improvement Non-Homesite Value: | + | $69,750 | |
| (+) Land Homesite Value: | + | $14,000 | |
| (+) Land Non-Homesite Value: | + | $14,000 | |
| (+) Curr Use (HS): | + | $0 | $0 |
| (+) Curr Use (NHS): | + | $0 | $0 |
| | | -------------------------- | |
| (=) Market Value: | = | $167,500 | |
| (–) Productivity Loss: | – | $0 | |
| | | -------------------------- | |
| (=) Subtotal: | = | $167,500 | |
| (+) Senior Appraised Value: | + | $0 | |
| (+) Non-Senior Appraised Value: | + | $167,500 | |
| | | -------------------------- | |
| (=) Total Appraised Value: | = | $167,500 | |
| (–) Senior Exemption Loss: | – | $0 | |
| (–) Exemption Loss: | – | $0 | |
| | | -------------------------- | |
| (=) Taxable Value: | = | $167,500 | |
Taxing Jurisdiction
| Owner: | TRI CONSTRUCTION LLC | | |
| % Ownership: | 100.0000000000% | | |
| Total Value: | $167,500 | | |
| Tax Area: | 1 - OL-140-F |
| CERFD | CURRENT EXPENSE REFUND 010 | 0.0000000000 | $167,500 | $167,500 | $0.00 | | |
| CURREXP | CURRENT EXPENSE 010 | 1.0175366760 | $167,500 | $167,500 | $170.44 | | |
| HUMNSERV | HUMAN SERVICES 119 | 0.0250000000 | $167,500 | $167,500 | $4.19 | | |
| SLDREL | SOLDIERS RELIEF 121 | 0.0155990005 | $167,500 | $167,500 | $2.61 | | |
| EMERGSER | EMS 147 | 0.3792580840 | $167,500 | $167,500 | $63.53 | | |
| EMSRFD | EMS REFUND 147 | 0.0000000000 | $167,500 | $167,500 | $0.00 | | |
| PORTRFD | PORT REFUND 640 | 0.0000000000 | $167,500 | $167,500 | $0.00 | | |
| PORTWWGEN | PORT OF WW 640 | 0.2460186015 | $167,500 | $167,500 | $41.21 | | |
| SD140BOND | SD #140 BOND 764 | 0.8342371393 | $167,500 | $167,500 | $139.73 | | |
| SD140GEN | SD #140 GENERAL 760 | 2.0646500647 | $167,500 | $167,500 | $345.83 | | |
| ST2 | STATE SCHOOL PART 2 600 | 0.8131451643 | $167,500 | $167,500 | $136.20 | | |
| STATESCHL | STATE SCHOOL 600 | 1.5158548041 | $167,500 | $167,500 | $253.91 | | |
| STREFUND | STATE REFUND LEVY 603 | 0.0000000000 | $167,500 | $167,500 | $0.00 | | |
| CWWBOND | C OF WW BOND 643 | 0.2760494372 | $167,500 | $167,500 | $46.24 | | |
| CWWGEN | CITY OF WW 631 | 1.6100204973 | $167,500 | $167,500 | $269.68 | | |
| CWWRFD | CITY OF WALLA WALLA REFUND 631 | 0.0000000000 | $167,500 | $167,500 | $0.00 | | |
| | Total Tax Rate: | 8.7973694689 | | | | | |
| | | | | Taxes w/Current Exemptions: | $1,473.57 | | |
| | | | | Taxes w/o Exemptions: | $1,473.57 | | |
Improvement / Building
| Improvement #1: | RESIDENTIAL | State Code: | 11 | 869.0 sqft | Value: | $139,490 |
| Exterior Wall: | SIDING | Heating/Cooling: | FLOOR FURNACE | | Number of Bathrooms: | 1 | Number of Bedrooms: | 2 | | Plumbing: | 7 | Roof Covering: | COMP SHINGLE |
|
| | Type | Description | Class CD | Sub Class CD | Year Built | Area |
| | MA | Main Area | 1 | 20 | 1948 | 869.0 |
| | SI1 | SITE IMPROVEMENT | 1 | 20 | 1948 | 1.0 |
| | OSP | Open | 1 | 20 | 1948 | 12.0 |
Sketch
Property Image
Land
| 1 | RES 1 | Converted: Residential | 0.0803 | 3500.00 | 0.00 | 0.00 | 1.00 | $28,000 | $0 |
Roll Value History
| 2025 | N/A | N/A | N/A | N/A | N/A |
| 2024 | $139,500 | $28,000 | $0 | $167,500 | $167,500 |
| 2023 | $139,500 | $28,000 | $0 | $167,500 | $167,500 |
| 2022 | $199,280 | $21,880 | $0 | $221,160 | $110,580 |
| 2021 | $117,220 | $21,880 | $0 | $139,100 | $69,550 |
| 2020 | $73,260 | $21,880 | $0 | $95,140 | $47,570 |
| 2019 | $73,260 | $21,880 | $0 | $95,140 | $47,570 |
| 2018 | $34,850 | $10,500 | $0 | $45,350 | $0 |
| 2017 | $34,850 | $10,500 | $0 | $45,350 | $0 |
| 2016 | $31,680 | $10,500 | $0 | $42,180 | $0 |
| 2015 | $26,400 | $10,500 | $0 | $36,900 | $0 |
| 2014 | $26,400 | $10,500 | $0 | $36,900 | $0 |
| 2013 | $26,400 | $10,500 | $0 | $36,900 | $0 |
| 2012 | $26,400 | $10,500 | $0 | $0 | $0 |
| 2011 | $26,400 | $10,500 | $0 | $0 | $0 |
| 2010 | $26,400 | $10,500 | $0 | $0 | $0 |
| 2009 | $30,500 | $10,500 | $0 | $0 | $0 |
| 2008 | $30,500 | $10,500 | $0 | $0 | $0 |
| 2007 | $15,200 | $3,500 | $0 | $0 | $0 |
| 2006 | $15,200 | $3,500 | $0 | $0 | $0 |
Deed and Sales History
| 1 | 04/19/2024 | SWD | STATUTORY WARRANTY DEED | TRI CONSTRUCTION LLC | CANFIELD LESLIE | | | $249,100.00 | 147421 | 2024-01967 |
| 2 | 04/27/2023 | SWD | STATUTORY WARRANTY DEED | ROMERO FORTUNATO | TRI CONSTRUCTION LLC | | | $165,000.00 | 145721 | 2023-02213 |
| 3 | 05/15/2020 | COMMUNITY | COMMUNITY PROPERTY AGREEMENT | ROMERO LORITA REECE | ROMERO FORTUNATO | | | | 0 | 2020-04263 |
| 4 | 06/09/1982 | WARRANTY D | WARRANTY DEED | | | | | $6,000.00 | 0 | 1338-204170 |
Payout Agreement
| No payout information available.. |