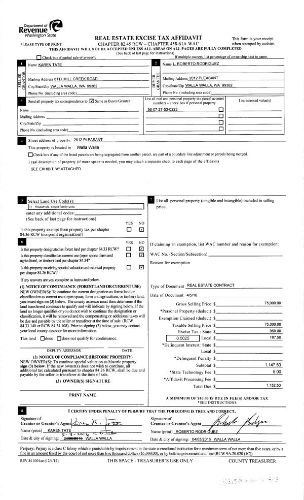
Property
Account |
| Property ID: | 33711 | Abbreviated Legal Description: | 22-7-37 AMENDED PARCEL B-1 OF SHORT PLAT (NWLY PTN NE1/4NW1/4, PLUSSM CORNER OF SEC 15) |
| Parcel Number: | 370722210007 | Agent Code: | |
| Type: | Real | | |
| Tax Area: | 101 - 140-4 | Land Use Code | 11 |
| Open Space: | N | DFL | N |
| Historic Property: | N | Remodel Property: | N |
| Multi-Family Redevelopment: | N | | |
| Township: | 7 | Section: | 22 |
| Range: | 37 |
Location |
| Address: | 4728 MILL CREEK RD WA 99362 | Mapsco: | |
| Neighborhood: | VG Res Rural/City Inf | Map ID: | |
| Neighborhood CD: | 415012 |
Owner |
| Name: | BLANKENSHIP BARBARA A | Owner ID: | 63673 |
| Mailing Address: | 4728 MILL CREEK RD WALLA WALLA, WA 99362 | % Ownership: | 100.0000000000% |
| | | Exemptions: | |
Taxes and Assessment Details
Values
| (+) Improvement Homesite Value: | + | $0 | |
| (+) Improvement Non-Homesite Value: | + | $679,770 | |
| (+) Land Homesite Value: | + | $0 | |
| (+) Land Non-Homesite Value: | + | $208,330 | |
| (+) Curr Use (HS): | + | $0 | $0 |
| (+) Curr Use (NHS): | + | $0 | $0 |
| | | -------------------------- | |
| (=) Market Value: | = | $888,100 | |
| (–) Productivity Loss: | – | $0 | |
| | | -------------------------- | |
| (=) Subtotal: | = | $888,100 | |
| (+) Senior Appraised Value: | + | $0 | |
| (+) Non-Senior Appraised Value: | + | $888,100 | |
| | | -------------------------- | |
| (=) Total Appraised Value: | = | $888,100 | |
| (–) Senior Exemption Loss: | – | $0 | |
| (–) Exemption Loss: | – | $0 | |
| | | -------------------------- | |
| (=) Taxable Value: | = | $888,100 | |
Taxing Jurisdiction
| Owner: | BLANKENSHIP BARBARA A | | |
| % Ownership: | 100.0000000000% | | |
| Total Value: | $888,100 | | |
| Tax Area: | 101 - 140-4 |
| CERFD | CURRENT EXPENSE REFUND 010 | 0.0000000000 | $888,100 | $888,100 | $0.00 | | |
| CURREXP | CURRENT EXPENSE 010 | 1.0175366760 | $888,100 | $888,100 | $903.67 | | |
| HUMNSERV | HUMAN SERVICES 119 | 0.0250000000 | $888,100 | $888,100 | $22.20 | | |
| SLDREL | SOLDIERS RELIEF 121 | 0.0155990005 | $888,100 | $888,100 | $13.85 | | |
| EMERGSER | EMS 147 | 0.3792580840 | $888,100 | $888,100 | $336.82 | | |
| EMSRFD | EMS REFUND 147 | 0.0000000000 | $888,100 | $888,100 | $0.00 | | |
| FD4EXP | FD #4 EXPENSE 686 | 0.8836993059 | $888,100 | $888,100 | $784.81 | | |
| RLBRFD | RURAL LIBRARY REFUND 623 | 0.0000000000 | $888,100 | $888,100 | $0.00 | | |
| RURALLIB | RURAL LIBRARY 623 | 0.3710609029 | $888,100 | $888,100 | $329.54 | | |
| PORTRFD | PORT REFUND 640 | 0.0000000000 | $888,100 | $888,100 | $0.00 | | |
| PORTWWGEN | PORT OF WW 640 | 0.2460186015 | $888,100 | $888,100 | $218.49 | | |
| SD140BOND | SD #140 BOND 764 | 0.8342371393 | $888,100 | $888,100 | $740.89 | | |
| SD140GEN | SD #140 GENERAL 760 | 2.0646500647 | $888,100 | $888,100 | $1,833.62 | | |
| ST2 | STATE SCHOOL PART 2 600 | 0.8131451643 | $888,100 | $888,100 | $722.15 | | |
| STATESCHL | STATE SCHOOL 600 | 1.5158548041 | $888,100 | $888,100 | $1,346.23 | | |
| STREFUND | STATE REFUND LEVY 603 | 0.0000000000 | $888,100 | $888,100 | $0.00 | | |
| COROAD | COUNTY ROAD 115 | 1.6549953990 | $888,100 | $888,100 | $1,469.80 | | |
| CRPRD | COUNTY ROAD REFUND 115 | 0.0000000000 | $888,100 | $888,100 | $0.00 | | |
| | Total Tax Rate: | 9.8210551422 | | | | | |
| | | | | Taxes w/Current Exemptions: | $8,722.07 | | |
| | | | | Taxes w/o Exemptions: | $8,722.07 | | |
Improvement / Building
| Improvement #1: | RESIDENTIAL | State Code: | 11 | 2467.0 sqft | Value: | $679,770 |
| Exterior Wall: | HARDBOARD | Heating/Cooling: | HEAT PUMP | | Number of Bathrooms: | 2.5 | Number of Bedrooms: | 4 | | Plumbing: | 13 | Roof Covering: | COMP SHINGLE |
|
| | Type | Description | Class CD | Sub Class CD | Year Built | Area |
| | MA | Main Area | 1 | 40 | 2013 | 2467.0 |
| | RPC | OPEN PORCH W/ROOF , CEILED | 1 | 40 | 2013 | 396.0 |
| | CPCD | CARPORT/DIRT FLOOR | 1 | 40 | 2013 | 1444.0 |
| | CPCG | CARPORT/ GABLE ROOF | 1 | 40 | 2013 | 70.0 |
| | GFP | GAS FIREPLACE | 1 | 40 | 2013 | 1.0 |
| | POL2 | POLE BUILDING-CONCRETE | 1 | 40 | 2013 | 1444.0 |
| | RPC | OPEN PORCH W/ROOF , CEILED | 1 | 40 | 2013 | 66.0 |
| | RPC | OPEN PORCH W/ROOF , CEILED | 1 | 40 | 2013 | 70.0 |
| | SI1 | SITE IMPROVEMENT | 1 | 40 | 0 | 2.0 |
| | ATG | Attached Garage | 1 | 40 | 2013 | 781.0 |
| | BON2 | BONUS RM ATT/REC OR APT FINISH | 1 | 40 | 2013 | 492.0 |
Sketch
Property Image
Land
| 1 | RES 1 | Converted: Residential | 5.0300 | 0.00 | 0.00 | 0.00 | 1.00 | $208,330 | $0 |
Roll Value History
| 2025 | N/A | N/A | N/A | N/A | N/A |
| 2024 | $815,720 | $208,330 | $0 | $1,024,050 | $1,024,050 |
| 2023 | $679,770 | $208,330 | $0 | $888,100 | $888,100 |
| 2022 | $755,300 | $117,200 | $0 | $872,500 | $872,500 |
| 2021 | $656,780 | $117,200 | $0 | $773,980 | $773,980 |
| 2020 | $597,080 | $117,200 | $0 | $714,280 | $714,280 |
| 2019 | $597,080 | $117,200 | $0 | $714,280 | $714,280 |
| 2018 | $398,050 | $117,200 | $0 | $515,250 | $515,250 |
| 2017 | $398,050 | $117,200 | $0 | $515,250 | $515,250 |
| 2016 | $402,130 | $117,200 | $0 | $519,330 | $519,330 |
| 2015 | $402,130 | $117,200 | $0 | $519,330 | $519,330 |
| 2014 | $321,700 | $117,200 | $0 | $438,900 | $438,900 |
| 2013 | $321,700 | $117,200 | $0 | $438,900 | $438,900 |
| 2012 | $0 | $117,200 | $0 | $0 | $0 |
| 2011 | $0 | $117,200 | $0 | $0 | $0 |
| 2010 | $0 | $117,200 | $0 | $0 | $0 |
| 2009 | $0 | $117,200 | $0 | $0 | $0 |
| 2008 | $0 | $117,200 | $0 | $0 | $0 |
| 2007 | $0 | $6,900 | $0 | $0 | $0 |
| 2006 | $321,700 | $117,200 | $0 | $0 | $0 |
Deed and Sales History
| 1 | 07/10/2018 | QCD | QUIT CLAIM DEED | MORRIS JON ALAN | BLANKENSHIP BARBARA A | | | | 135077 | 2018-05501 |
| 2 | 07/10/2018 | SWD | STATUTORY WARRANTY DEED | MC INTYRE CAROL J REVOCABLE TRUST | BLANKENSHIP BARBARA A | | | $759,000.00 | 135076 | 2018-05500 |
| 3 | 09/29/2016 | QCD | QUIT CLAIM DEED | MC INTYRE CAROL J | MC INTYRE CAROL J REVOCABLE TRUST | | | $0.00 | 131192 | 2016-08148 |
| 4 | 06/16/2014 | QCD | QUIT CLAIM DEED | MC INTYRE THOMAS L & CAROL J | MC INTYRE CAROL J | | | | 126078 | 2014-04140 |
| 5 | 06/20/2012 | WARRANTY D | WARRANTY DEED | VOTH, RICK & TERI | MC INTYRE, THOMAS L & CAROL J | | | $175,000.00 | 122209 | 2012-05160 |
| 6 | 05/31/2007 | WARRANTY D | WARRANTY DEED | WICKERSHAM, FRANK & MAUREEN | VOTH, RICK & TERI | | | $235,000.00 | 112953 | 2007-06239 |
| 7 | 03/08/2006 | WARRANTY D | WARRANTY DEED | LYONS, EDWARD | WICKERSHAM, FRANK & MAUREEN | | | $165,000.00 | 109800 | 2006-02581 |
Payout Agreement
| No payout information available.. |