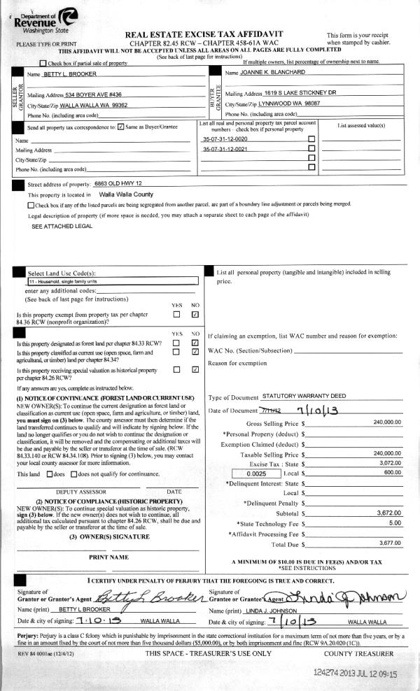
Property
Account |
| Property ID: | 33611 | Abbreviated Legal Description: | CP #2 TAX 9 LOT 2 BLK 23 |
| Parcel Number: | 350735602316 | Agent Code: | |
| Type: | Real | | |
| Tax Area: | 75 - CP 250 | Land Use Code | 11 |
| Open Space: | N | DFL | N |
| Historic Property: | N | Remodel Property: | N |
| Multi-Family Redevelopment: | N | | |
| Township: | 7 | Section: | 35 |
| Range: | 35 |
Location |
| Address: | 327 SW 6TH ST WA 99324 | Mapsco: | |
| Neighborhood: | A SFR | Map ID: | |
| Neighborhood CD: | 113011 |
Owner |
| Name: | KIMES DON & TINA FAMILY TRUST | Owner ID: | 68844 |
| Mailing Address: | PO BOX 189 MURRIETA, CA 92564 | % Ownership: | 100.0000000000% |
| | | Exemptions: | |
Taxes and Assessment Details
Values
| (+) Improvement Homesite Value: | + | $0 | |
| (+) Improvement Non-Homesite Value: | + | $307,020 | |
| (+) Land Homesite Value: | + | $0 | |
| (+) Land Non-Homesite Value: | + | $48,970 | |
| (+) Curr Use (HS): | + | $0 | $0 |
| (+) Curr Use (NHS): | + | $0 | $0 |
| | | -------------------------- | |
| (=) Market Value: | = | $355,990 | |
| (–) Productivity Loss: | – | $0 | |
| | | -------------------------- | |
| (=) Subtotal: | = | $355,990 | |
| (+) Senior Appraised Value: | + | $0 | |
| (+) Non-Senior Appraised Value: | + | $355,990 | |
| | | -------------------------- | |
| (=) Total Appraised Value: | = | $355,990 | |
| (–) Senior Exemption Loss: | – | $0 | |
| (–) Exemption Loss: | – | $0 | |
| | | -------------------------- | |
| (=) Taxable Value: | = | $355,990 | |
Taxing Jurisdiction
| Owner: | KIMES DON & TINA FAMILY TRUST | | |
| % Ownership: | 100.0000000000% | | |
| Total Value: | $355,990 | | |
| Tax Area: | 75 - CP 250 |
| CERFD | CURRENT EXPENSE REFUND 010 | 0.0000000000 | $355,990 | $355,990 | $0.00 | | |
| CURREXP | CURRENT EXPENSE 010 | 1.0175366760 | $355,990 | $355,990 | $362.23 | | |
| HUMNSERV | HUMAN SERVICES 119 | 0.0250000000 | $355,990 | $355,990 | $8.90 | | |
| SLDREL | SOLDIERS RELIEF 121 | 0.0155990005 | $355,990 | $355,990 | $5.55 | | |
| COLLPLBOND | C OF CP BOND 644 | 0.4374241808 | $355,990 | $355,990 | $155.72 | | |
| COLLPLGEN | CITY OF CP 632 | 1.4453819216 | $355,990 | $355,990 | $514.54 | | |
| EMERGSER | EMS 147 | 0.3792580840 | $355,990 | $355,990 | $135.01 | | |
| EMSRFD | EMS REFUND 147 | 0.0000000000 | $355,990 | $355,990 | $0.00 | | |
| RURALLIB | RURAL LIBRARY 623 | 0.3710609029 | $355,990 | $355,990 | $132.09 | | |
| PORTRFD | PORT REFUND 640 | 0.0000000000 | $355,990 | $355,990 | $0.00 | | |
| PORTWWGEN | PORT OF WW 640 | 0.2460186015 | $355,990 | $355,990 | $87.58 | | |
| SD250BOND | SD #250 BOND 773 | 1.4560608159 | $355,990 | $355,990 | $518.34 | | |
| SD250GEN | SD #250 GENERAL 770 | 2.3880724087 | $355,990 | $355,990 | $850.13 | | |
| ST2 | STATE SCHOOL PART 2 600 | 0.8131451643 | $355,990 | $355,990 | $289.47 | | |
| STATESCHL | STATE SCHOOL 600 | 1.5158548041 | $355,990 | $355,990 | $539.63 | | |
| STREFUND | STATE REFUND LEVY 603 | 0.0000000000 | $355,990 | $355,990 | $0.00 | | |
| | Total Tax Rate: | 10.1104125603 | | | | | |
| | | | | Taxes w/Current Exemptions: | $3,599.19 | | |
| | | | | Taxes w/o Exemptions: | $3,599.19 | | |
Improvement / Building
| Improvement #1: | RESIDENTIAL | State Code: | 11 | 1276.0 sqft | Value: | $307,020 |
| Exterior Wall: | STUCCO | Heating/Cooling: | WARM & COOLED AIR | | Number of Bathrooms: | 2 | Number of Bedrooms: | 4 | | Plumbing: | 11 | Roof Covering: | COMP SHINGLE |
|
| | Type | Description | Class CD | Sub Class CD | Year Built | Area |
| | MA | Main Area | 1 | 30 | 1935 | 1276.0 |
| | UPFL | Upper Floor (included in main area) | 1 | 30 | 1935 | 340.0 |
| | SI1 | SITE IMPROVEMENT | 1 | 30 | 1935 | 1.5 |
| | BASE | BASEMENT | 1 | 30 | 1935 | 884.0 |
| | BPF | BASEMENT -PARTITIONED FINISH | 1 | 30 | 1935 | 760.0 |
| | DTG | Detached Garage | 1 | 30 | 1935 | 360.0 |
| | OPS | OPEN PORCH W/STEPS | 1 | 30 | 1935 | 35.0 |
| | CPCS | CARPORT/SHED OR FLAT ROOF | 1 | 30 | 1935 | 747.0 |
Sketch
Property Image
Land
| 1 | RES 1 | Converted: Residential | 0.1665 | 7254.00 | 0.00 | 0.00 | 1.00 | $48,970 | $0 |
Roll Value History
| 2025 | N/A | N/A | N/A | N/A | N/A |
| 2024 | $308,100 | $49,000 | $0 | $357,100 | $357,100 |
| 2023 | $307,020 | $48,970 | $0 | $355,990 | $355,990 |
| 2022 | $279,110 | $48,970 | $0 | $328,080 | $328,080 |
| 2021 | $223,290 | $48,970 | $0 | $272,260 | $272,260 |
| 2020 | $178,630 | $48,970 | $0 | $227,600 | $227,600 |
| 2019 | $184,100 | $43,500 | $0 | $227,600 | $227,600 |
| 2018 | $184,100 | $43,500 | $0 | $227,600 | $227,600 |
| 2017 | $131,500 | $43,500 | $0 | $175,000 | $175,000 |
| 2016 | $119,550 | $43,500 | $0 | $163,050 | $163,050 |
| 2015 | $108,680 | $43,500 | $0 | $152,180 | $152,180 |
| 2014 | $114,400 | $43,500 | $0 | $157,900 | $157,900 |
| 2013 | $114,400 | $43,500 | $0 | $157,900 | $157,900 |
| 2012 | $122,700 | $43,500 | $0 | $0 | $0 |
| 2011 | $122,700 | $43,500 | $0 | $0 | $0 |
| 2010 | $107,600 | $43,500 | $0 | $0 | $0 |
| 2009 | $124,400 | $43,500 | $0 | $0 | $0 |
| 2008 | $100,300 | $21,800 | $0 | $0 | $0 |
| 2007 | $100,300 | $21,800 | $0 | $0 | $0 |
| 2006 | $100,300 | $21,800 | $0 | $0 | $0 |
Deed and Sales History
| 1 | 02/03/2021 | QCD | QUIT CLAIM DEED | KIMES DONALD M & TINA T | KIMES DON & TINA FAMILY TRUST | | | $0.00 | 140917 | 2021-01840 |
| 2 | 03/02/2020 | SWD | STATUTORY WARRANTY DEED | MC SHANE NICHOLAS D | KIMES DONALD M & TINA T | | | $270,000.00 | 138728 | 2020-01942 |
| 3 | 06/08/2012 | WARRANTY D | WARRANTY DEED | EASON, CAROLYN | MC SHANE, NICHOLAS D | | | $165,000.00 | 122157 | 2012-04774 |
| 4 | 08/10/2011 | WARRANTY D | WARRANTY DEED | PROF WINTER RENTALS LLC | | | | | 120523 | 2011-06230 |
| 5 | 06/03/2009 | WARRANTY D | WARRANTY DEED | "WINTER, CAROLYN" | | | | | 116830 | 2009-05565 |
| 6 | 03/04/2009 | QCD | QUIT CLAIM DEED | PROF WINTER RENTALS, LLC | WINTER, CAROLYN | | | | 116416 | 2009-02123 |
| 7 | 04/11/2005 | QCD | QUIT CLAIM DEED | WINTER, EUGENE & CAROLYN | PROF WINTER RENTALS, LLC | | | | 107216 | 2005-04104 |
| 8 | 03/12/2004 | WARRANTY D | WARRANTY DEED | HUTSON, EDITH H ESTATE | WINTER, EUGENE & CAROLYN | | | $124,900.00 | 104246 | 2004-02608 |
| 9 | 10/07/1980 | QCD | QUIT CLAIM DEED | | | | | $0.00 | 0 | 1248-007936 |
Payout Agreement
| No payout information available.. |