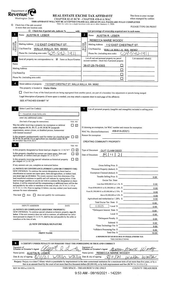
Property
Account |
| Property ID: | 3357 | Abbreviated Legal Description: | 11-6-35 SUBD OF NW1/4SW1/4 PARCEL 71 |
| Parcel Number: | 350611320071 | Agent Code: | |
| Type: | Real | | |
| Tax Area: | 311 - 250-4 | Land Use Code | 11 |
| Open Space: | N | DFL | N |
| Historic Property: | N | Remodel Property: | N |
| Multi-Family Redevelopment: | N | | |
| Township: | 6 | Section: | 11 |
| Range: | 35 |
Location |
| Address: | 327 SPRINGDALE RD WA 99324 | Mapsco: | |
| Neighborhood: | VG SFR RURAL | Map ID: | |
| Neighborhood CD: | 215013 |
Owner |
| Name: | ROMANIK RONALD J & TERESA M | Owner ID: | 2575 |
| Mailing Address: | 327 SPRINGDALE RD WALLA WALLA, WA 99362 | % Ownership: | 100.0000000000% |
| | | Exemptions: | |
Taxes and Assessment Details
Values
| (+) Improvement Homesite Value: | + | $0 | |
| (+) Improvement Non-Homesite Value: | + | $334,300 | |
| (+) Land Homesite Value: | + | $0 | |
| (+) Land Non-Homesite Value: | + | $150,000 | |
| (+) Curr Use (HS): | + | $0 | $0 |
| (+) Curr Use (NHS): | + | $0 | $0 |
| | | -------------------------- | |
| (=) Market Value: | = | $484,300 | |
| (–) Productivity Loss: | – | $0 | |
| | | -------------------------- | |
| (=) Subtotal: | = | $484,300 | |
| (+) Senior Appraised Value: | + | $0 | |
| (+) Non-Senior Appraised Value: | + | $484,300 | |
| | | -------------------------- | |
| (=) Total Appraised Value: | = | $484,300 | |
| (–) Senior Exemption Loss: | – | $0 | |
| (–) Exemption Loss: | – | $0 | |
| | | -------------------------- | |
| (=) Taxable Value: | = | $484,300 | |
Taxing Jurisdiction
| Owner: | ROMANIK RONALD J & TERESA M | | |
| % Ownership: | 100.0000000000% | | |
| Total Value: | $484,300 | | |
| Tax Area: | 311 - 250-4 |
| CERFD | CURRENT EXPENSE REFUND 010 | 0.0000000000 | $484,300 | $484,300 | $0.00 | | |
| CURREXP | CURRENT EXPENSE 010 | 1.0175366760 | $484,300 | $484,300 | $492.79 | | |
| HUMNSERV | HUMAN SERVICES 119 | 0.0250000000 | $484,300 | $484,300 | $12.11 | | |
| SLDREL | SOLDIERS RELIEF 121 | 0.0155990005 | $484,300 | $484,300 | $7.55 | | |
| EMERGSER | EMS 147 | 0.3792580840 | $484,300 | $484,300 | $183.67 | | |
| EMSRFD | EMS REFUND 147 | 0.0000000000 | $484,300 | $484,300 | $0.00 | | |
| FD4EXP | FD #4 EXPENSE 686 | 0.8836993059 | $484,300 | $484,300 | $427.98 | | |
| RLBRFD | RURAL LIBRARY REFUND 623 | 0.0000000000 | $484,300 | $484,300 | $0.00 | | |
| RURALLIB | RURAL LIBRARY 623 | 0.3710609029 | $484,300 | $484,300 | $179.70 | | |
| PORTRFD | PORT REFUND 640 | 0.0000000000 | $484,300 | $484,300 | $0.00 | | |
| PORTWWGEN | PORT OF WW 640 | 0.2460186015 | $484,300 | $484,300 | $119.15 | | |
| SD250BOND | SD #250 BOND 773 | 1.4560608159 | $484,300 | $484,300 | $705.17 | | |
| SD250GEN | SD #250 GENERAL 770 | 2.3880724087 | $484,300 | $484,300 | $1,156.54 | | |
| ST2 | STATE SCHOOL PART 2 600 | 0.8131451643 | $484,300 | $484,300 | $393.81 | | |
| STATESCHL | STATE SCHOOL 600 | 1.5158548041 | $484,300 | $484,300 | $734.13 | | |
| STREFUND | STATE REFUND LEVY 603 | 0.0000000000 | $484,300 | $484,300 | $0.00 | | |
| COROAD | COUNTY ROAD 115 | 1.6549953990 | $484,300 | $484,300 | $801.51 | | |
| CRPRD | COUNTY ROAD REFUND 115 | 0.0000000000 | $484,300 | $484,300 | $0.00 | | |
| | Total Tax Rate: | 10.7663011628 | | | | | |
| | | | | Taxes w/Current Exemptions: | $5,214.11 | | |
| | | | | Taxes w/o Exemptions: | $5,214.11 | | |
Improvement / Building
| Improvement #1: | RESIDENTIAL | State Code: | 11 | 1813.0 sqft | Value: | $334,300 |
| Exterior Wall: | STUCCO | Heating/Cooling: | BASEBOARD ELECTRIC | | Number of Bathrooms: | 2 | Number of Bedrooms: | 3 | | Plumbing: | 9 | Roof Covering: | COMP SHINGLE |
|
| | Type | Description | Class CD | Sub Class CD | Year Built | Area |
| | MA | Main Area | 1 | 35 | 1962 | 1813.0 |
| | CPC | COVERED CARPORT/PATIO | 1 | 35 | 1962 | 483.0 |
| | SI1 | SITE IMPROVEMENT | 1 | 35 | 1962 | 1.5 |
| | BASE | BASEMENT | 1 | 35 | 1962 | 1489.0 |
| | D2F | Double 2 Story Fireplace | 1 | 35 | 1962 | 1.0 |
| | RPO | OPEN PORCH W/ROOF | 1 | 35 | 1962 | 112.0 |
| | WOD | Wood Deck | 1 | 35 | 1962 | 176.0 |
| | DTG | Detached Garage | 1 | 35 | 1962 | 625.0 |
| | BPF | BASEMENT -PARTITIONED FINISH | 1 | 35 | 1962 | 144.0 |
| | RPO | OPEN PORCH W/ROOF | 1 | 35 | 1962 | 12.0 |
Sketch
Property Image
Land
| 1 | RES 1 | Converted: Residential | 1.0000 | 0.00 | 0.00 | 0.00 | 1.00 | $150,000 | $0 |
Roll Value History
| 2025 | N/A | N/A | N/A | N/A | N/A |
| 2024 | $401,160 | $150,000 | $0 | $551,160 | $551,160 |
| 2023 | $334,300 | $150,000 | $0 | $484,300 | $484,300 |
| 2022 | $318,380 | $150,000 | $0 | $468,380 | $468,380 |
| 2021 | $265,320 | $150,000 | $0 | $415,320 | $415,320 |
| 2020 | $265,320 | $75,000 | $0 | $340,320 | $340,320 |
| 2019 | $265,320 | $75,000 | $0 | $340,320 | $340,320 |
| 2018 | $241,200 | $75,000 | $0 | $316,200 | $316,200 |
| 2017 | $241,200 | $75,000 | $0 | $316,200 | $316,200 |
| 2016 | $160,800 | $75,000 | $0 | $235,800 | $235,800 |
| 2015 | $160,800 | $75,000 | $0 | $235,800 | $235,800 |
| 2014 | $160,800 | $75,000 | $0 | $235,800 | $235,800 |
| 2013 | $160,800 | $75,000 | $0 | $235,800 | $235,800 |
| 2012 | $160,800 | $75,000 | $0 | $0 | $0 |
| 2011 | $160,800 | $75,000 | $0 | $0 | $0 |
| 2010 | $160,800 | $75,000 | $0 | $0 | $0 |
| 2009 | $211,000 | $45,000 | $0 | $0 | $0 |
| 2008 | $130,700 | $45,000 | $0 | $0 | $0 |
| 2007 | $130,700 | $45,000 | $0 | $0 | $0 |
| 2006 | $130,700 | $45,000 | $0 | $0 | $0 |
Deed and Sales History
| 1 | 01/03/1979 | WARRANTY D | WARRANTY DEED | | | | | $72,000.00 | 0 | 9579-00070 |
Payout Agreement
| No payout information available.. |