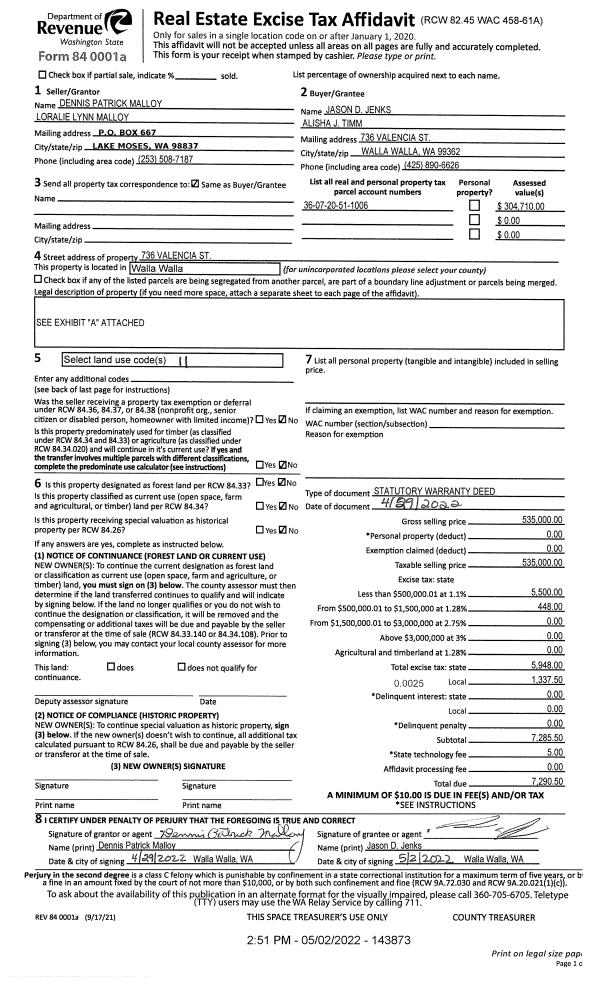
Property
Account |
| Property ID: | 3355 | Abbreviated Legal Description: | 11-6-35 TAX 46A PT TAX 46 PARCEL 67 |
| Parcel Number: | 350611320067 | Agent Code: | |
| Type: | Real | | |
| Tax Area: | 311 - 250-4 | Land Use Code | 11 |
| Open Space: | N | DFL | N |
| Historic Property: | N | Remodel Property: | N |
| Multi-Family Redevelopment: | N | | |
| Township: | 6 | Section: | 11 |
| Range: | 35 |
Location |
| Address: | 201 SPRINGDALE RD WA 99324 | Mapsco: | |
| Neighborhood: | VG SFR RURAL | Map ID: | |
| Neighborhood CD: | 215013 |
Owner |
| Name: | ANDERSON ERIC RANDALL & LEWISIA MARYANNE | Owner ID: | 71547 |
| Mailing Address: | 201 SPRINGDALE RD WALLA WALLA, WA 99362 | % Ownership: | 100.0000000000% |
| | | Exemptions: | |
Taxes and Assessment Details
Values
| (+) Improvement Homesite Value: | + | $0 | |
| (+) Improvement Non-Homesite Value: | + | $409,610 | |
| (+) Land Homesite Value: | + | $0 | |
| (+) Land Non-Homesite Value: | + | $163,640 | |
| (+) Curr Use (HS): | + | $0 | $0 |
| (+) Curr Use (NHS): | + | $0 | $0 |
| | | -------------------------- | |
| (=) Market Value: | = | $573,250 | |
| (–) Productivity Loss: | – | $0 | |
| | | -------------------------- | |
| (=) Subtotal: | = | $573,250 | |
| (+) Senior Appraised Value: | + | $0 | |
| (+) Non-Senior Appraised Value: | + | $573,250 | |
| | | -------------------------- | |
| (=) Total Appraised Value: | = | $573,250 | |
| (–) Senior Exemption Loss: | – | $0 | |
| (–) Exemption Loss: | – | $0 | |
| | | -------------------------- | |
| (=) Taxable Value: | = | $573,250 | |
Taxing Jurisdiction
| Owner: | ANDERSON ERIC RANDALL & LEWISIA MARYANNE | | |
| % Ownership: | 100.0000000000% | | |
| Total Value: | $573,250 | | |
| Tax Area: | 311 - 250-4 |
| CERFD | CURRENT EXPENSE REFUND 010 | 0.0000000000 | $573,250 | $573,250 | $0.00 | | |
| CURREXP | CURRENT EXPENSE 010 | 1.0175366760 | $573,250 | $573,250 | $583.30 | | |
| HUMNSERV | HUMAN SERVICES 119 | 0.0250000000 | $573,250 | $573,250 | $14.33 | | |
| SLDREL | SOLDIERS RELIEF 121 | 0.0155990005 | $573,250 | $573,250 | $8.94 | | |
| EMERGSER | EMS 147 | 0.3792580840 | $573,250 | $573,250 | $217.41 | | |
| EMSRFD | EMS REFUND 147 | 0.0000000000 | $573,250 | $573,250 | $0.00 | | |
| FD4EXP | FD #4 EXPENSE 686 | 0.8836993059 | $573,250 | $573,250 | $506.58 | | |
| RLBRFD | RURAL LIBRARY REFUND 623 | 0.0000000000 | $573,250 | $573,250 | $0.00 | | |
| RURALLIB | RURAL LIBRARY 623 | 0.3710609029 | $573,250 | $573,250 | $212.71 | | |
| PORTRFD | PORT REFUND 640 | 0.0000000000 | $573,250 | $573,250 | $0.00 | | |
| PORTWWGEN | PORT OF WW 640 | 0.2460186015 | $573,250 | $573,250 | $141.03 | | |
| SD250BOND | SD #250 BOND 773 | 1.4560608159 | $573,250 | $573,250 | $834.69 | | |
| SD250GEN | SD #250 GENERAL 770 | 2.3880724087 | $573,250 | $573,250 | $1,368.96 | | |
| ST2 | STATE SCHOOL PART 2 600 | 0.8131451643 | $573,250 | $573,250 | $466.14 | | |
| STATESCHL | STATE SCHOOL 600 | 1.5158548041 | $573,250 | $573,250 | $868.96 | | |
| STREFUND | STATE REFUND LEVY 603 | 0.0000000000 | $573,250 | $573,250 | $0.00 | | |
| COROAD | COUNTY ROAD 115 | 1.6549953990 | $573,250 | $573,250 | $948.73 | | |
| CRPRD | COUNTY ROAD REFUND 115 | 0.0000000000 | $573,250 | $573,250 | $0.00 | | |
| | Total Tax Rate: | 10.7663011628 | | | | | |
| | | | | Taxes w/Current Exemptions: | $6,171.78 | | |
| | | | | Taxes w/o Exemptions: | $6,171.78 | | |
Improvement / Building
| Improvement #1: | RESIDENTIAL | State Code: | 11 | 2241.0 sqft | Value: | $409,610 |
| Exterior Wall: | PLYWOOD | Heating/Cooling: | REV-HEAT-PUMP-W/DUCT | | Number of Bathrooms: | 3 | Number of Bedrooms: | 5 | | Plumbing: | 12 | Roof Covering: | COMP SHINGLE |
|
| | Type | Description | Class CD | Sub Class CD | Year Built | Area |
| | MA | Main Area | 2 | 30 | 1969 | 2241.0 |
| | FBAT | FULL BATH | 2 | 30 | 2011 | 1.0 |
| | FIXT | AVERAGE FIXTURE | 2 | 30 | 2011 | 2.0 |
| | GIF | GARAGE INTERIOR FINISH | 2 | 30 | 2011 | 1296.0 |
| | POL3 | POLE BUILDING-CON,ELEC,INSU | 2 | 30 | 1969 | 1296.0 |
| | SI1 | SITE IMPROVEMENT | 2 | 30 | 1969 | 3.0 |
| | APP | APPLIANCE ALLOWANCE | 2 | 30 | 1969 | 1.0 |
| | S2F | Single 2S Fireplace | 2 | 30 | 1969 | 1.0 |
| | RPO | OPEN PORCH W/ROOF | 2 | 30 | 1969 | 126.0 |
| | WOD | Wood Deck | 2 | 30 | 1969 | 144.0 |
| | ATG | Attached Garage | 2 | 30 | 1969 | 525.0 |
| | UPFL | Upper Floor (included in main area) | 2 | 30 | 1969 | 1062.0 |
Sketch
Property Image
Land
| 1 | RES 1 | Converted: Residential | 2.6700 | 0.00 | 0.00 | 0.00 | 1.00 | $163,640 | $0 |
Roll Value History
| 2025 | N/A | N/A | N/A | N/A | N/A |
| 2024 | $450,570 | $163,640 | $0 | $614,210 | $614,210 |
| 2023 | $409,610 | $163,640 | $0 | $573,250 | $573,250 |
| 2022 | $372,380 | $163,640 | $0 | $536,020 | $536,020 |
| 2021 | $256,810 | $163,640 | $0 | $420,450 | $420,450 |
| 2020 | $268,090 | $83,400 | $0 | $351,490 | $351,490 |
| 2019 | $268,090 | $83,400 | $0 | $351,490 | $351,490 |
| 2018 | $223,410 | $83,400 | $0 | $306,810 | $306,810 |
| 2017 | $223,410 | $83,400 | $0 | $306,810 | $306,810 |
| 2016 | $203,100 | $83,400 | $0 | $286,500 | $286,500 |
| 2015 | $203,100 | $83,400 | $0 | $286,500 | $286,500 |
| 2014 | $203,100 | $83,400 | $0 | $286,500 | $286,500 |
| 2013 | $203,100 | $83,400 | $0 | $286,500 | $286,500 |
| 2012 | $203,100 | $83,400 | $0 | $0 | $0 |
| 2011 | $184,800 | $83,400 | $0 | $0 | $0 |
| 2010 | $176,500 | $83,400 | $0 | $0 | $0 |
| 2009 | $208,300 | $51,700 | $0 | $0 | $0 |
| 2008 | $126,400 | $51,700 | $0 | $0 | $0 |
| 2007 | $126,400 | $51,700 | $0 | $0 | $0 |
| 2006 | $126,400 | $51,700 | $0 | $0 | $0 |
Deed and Sales History
| 1 | 04/28/2022 | SWD | STATUTORY WARRANTY DEED | MACIVOR KAREN L | ANDERSON ERIC RANDALL & LEWISIA MARYANNE | | | $293,322.00 | 143850 | 2022-03611 |
| 2 | 09/20/1989 | WARRANTY D | WARRANTY DEED | | | | | $85,000.00 | 71554 | 1788-905991 |
Payout Agreement
| No payout information available.. |