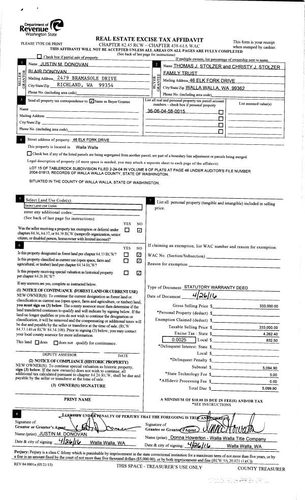
Property
Account |
| Property ID: | 33464 | Abbreviated Legal Description: | RITZ LOT 4 BLK 11 AND TRACT |
| Parcel Number: | 360730541104 | Agent Code: | |
| Type: | Real | | |
| Tax Area: | 1 - OL-140-F | Land Use Code | 11 |
| Open Space: | N | DFL | N |
| Historic Property: | N | Remodel Property: | N |
| Multi-Family Redevelopment: | N | | |
| Township: | 7 | Section: | 30 |
| Range: | 36 |
Location |
| Address: | 1017 W BIRCH ST WA 99362 | Mapsco: | |
| Neighborhood: | A-SFR | Map ID: | |
| Neighborhood CD: | 313011 |
Owner |
| Name: | GONZALEZ JULIO L LIFE ESTATE | Owner ID: | 58983 |
| Mailing Address: | ESCALANTE JULIE ANN ET AL 1017 W BIRCH ST WALLA WALLA, WA 99362 | % Ownership: | 100.0000000000% |
| | | Exemptions: | SNR/DSBL |
Taxes and Assessment Details
Values
| (+) Improvement Homesite Value: | + | $132,410 | |
| (+) Improvement Non-Homesite Value: | + | $0 | |
| (+) Land Homesite Value: | + | $53,630 | |
| (+) Land Non-Homesite Value: | + | $0 | |
| (+) Curr Use (HS): | + | $0 | $0 |
| (+) Curr Use (NHS): | + | $0 | $0 |
| | | -------------------------- | |
| (=) Market Value: | = | $186,040 | |
| (–) Productivity Loss: | – | $0 | |
| | | -------------------------- | |
| (=) Subtotal: | = | $186,040 | |
| (+) Senior Appraised Value: | + | $98,400 | |
| (+) Non-Senior Appraised Value: | + | $0 | |
| | | -------------------------- | |
| (=) Total Appraised Value: | = | $98,400 | |
| (–) Senior Exemption Loss: | – | $60,000 | |
| (–) Exemption Loss: | – | $0 | |
| | | -------------------------- | |
| (=) Taxable Value: | = | $38,400 | |
Taxing Jurisdiction
| Owner: | GONZALEZ JULIO L LIFE ESTATE | | |
| % Ownership: | 100.0000000000% | | |
| Total Value: | $186,040 | | |
| Tax Area: | 1 - OL-140-F |
| CERFD | CURRENT EXPENSE REFUND 010 | 0.0000000000 | $186,040 | $38,400 | $0.00 | | |
| CURREXP | CURRENT EXPENSE 010 | 1.0175366760 | $186,040 | $38,400 | $39.07 | | |
| HUMNSERV | HUMAN SERVICES 119 | 0.0250000000 | $186,040 | $38,400 | $0.96 | | |
| SLDREL | SOLDIERS RELIEF 121 | 0.0155990005 | $186,040 | $38,400 | $0.60 | | |
| EMERGSER | EMS 147 | 0.3792580840 | $186,040 | $38,400 | $14.56 | | |
| EMSRFD | EMS REFUND 147 | 0.0000000000 | $186,040 | $38,400 | $0.00 | | |
| PORTRFD | PORT REFUND 640 | 0.0000000000 | $186,040 | $38,400 | $0.00 | | |
| PORTWWGEN | PORT OF WW 640 | 0.2460186015 | $186,040 | $38,400 | $9.45 | | |
| SD140BOND | SD #140 BOND 764 | 0.0000000000 | $186,040 | $0 | $0.00 | | |
| SD140GEN | SD #140 GENERAL 760 | 0.0000000000 | $186,040 | $0 | $0.00 | | |
| ST2 | STATE SCHOOL PART 2 600 | 0.0000000000 | $186,040 | $0 | $0.00 | | |
| STATESCHL | STATE SCHOOL 600 | 1.5158548041 | $186,040 | $38,400 | $58.21 | | |
| STREFUND | STATE REFUND LEVY 603 | 0.0000000000 | $186,040 | $38,400 | $0.00 | | |
| CWWBOND | C OF WW BOND 643 | 0.0000000000 | $186,040 | $0 | $0.00 | | |
| CWWGEN | CITY OF WW 631 | 1.6100204973 | $186,040 | $38,400 | $61.82 | | |
| CWWRFD | CITY OF WALLA WALLA REFUND 631 | 0.0000000000 | $186,040 | $38,400 | $0.00 | | |
| | Total Tax Rate: | 4.8092876634 | | | | | |
| | | | | Taxes w/Current Exemptions: | $184.67 | | |
| | | | | Taxes w/o Exemptions: | $1,636.67 | | |
Improvement / Building
| Improvement #1: | RESIDENTIAL | State Code: | 11 | 958.0 sqft | Value: | $132,410 |
| Exterior Wall: | SIDING | Heating/Cooling: | FLOOR FURNACE | | Number of Bathrooms: | 1 | Number of Bedrooms: | 3 | | Plumbing: | 7 | Roof Covering: | COMP SHINGLE |
|
| | Type | Description | Class CD | Sub Class CD | Year Built | Area |
| | MA | Main Area | 1 | 25 | 1941 | 958.0 |
| | SI1 | SITE IMPROVEMENT | 1 | 25 | 0 | 1.0 |
| | RPS | PORCH W/STEPS,ROOF | 1 | 25 | 1941 | 9.0 |
| | UTST | Utility Storage Shed | 1 | 25 | 1941 | 96.0 |
Sketch
Property Image
Land
| 1 | RES 1 | Converted: Residential | 0.1492 | 6500.00 | 0.00 | 0.00 | 1.00 | $53,630 | $0 |
Roll Value History
| 2025 | N/A | N/A | N/A | N/A | N/A |
| 2024 | $132,410 | $53,630 | $0 | $186,040 | $38,400 |
| 2023 | $132,410 | $53,630 | $0 | $186,040 | $38,400 |
| 2022 | $101,850 | $53,630 | $0 | $155,480 | $38,400 |
| 2021 | $126,300 | $24,800 | $0 | $151,100 | $38,400 |
| 2020 | $105,250 | $24,800 | $0 | $130,050 | $38,400 |
| 2019 | $105,250 | $24,800 | $0 | $130,050 | $38,400 |
| 2018 | $95,680 | $24,800 | $0 | $120,480 | $38,400 |
| 2017 | $73,600 | $24,800 | $0 | $98,400 | $38,400 |
| 2016 | $73,600 | $24,800 | $0 | $98,400 | $38,400 |
| 2015 | $73,600 | $24,800 | $0 | $98,400 | $38,400 |
| 2014 | $73,600 | $24,800 | $0 | $98,400 | $98,400 |
| 2013 | $73,600 | $24,800 | $0 | $98,400 | $98,400 |
| 2012 | $73,600 | $24,800 | $0 | $0 | $0 |
| 2011 | $73,600 | $24,800 | $0 | $0 | $0 |
| 2010 | $81,100 | $24,800 | $0 | $0 | $0 |
| 2009 | $90,000 | $11,400 | $0 | $0 | $0 |
| 2008 | $40,600 | $11,400 | $0 | $0 | $0 |
| 2007 | $40,600 | $11,400 | $0 | $0 | $0 |
| 2006 | $40,600 | $11,400 | $0 | $0 | $0 |
Deed and Sales History
| 1 | 06/20/2016 | QCD | QUIT CLAIM DEED | GONZALEZ JULIO | GONZALEZ JULIO L LIFE ESTATE | | | $0.00 | 130454 | 2016-04716 |
| 2 | 06/14/2016 | DEATH CERT | DEATH CERTIFICATE | GONZALEZ MARY ANN | | | | | 0 | 2016-04562 |
| 3 | 06/27/2016 | COMMUNITY | COMMUNITY PROPERTY AGREEMENT | GONZALES JULIO & MARY | GONZALES JULIO & MARY | | | | 0 | 2016-04563 |
| 4 | 10/05/1977 | WARRANTY D | WARRANTY DEED | | | | | $3,500.00 | 32215 | 6905-69400 |
Payout Agreement
| No payout information available.. |