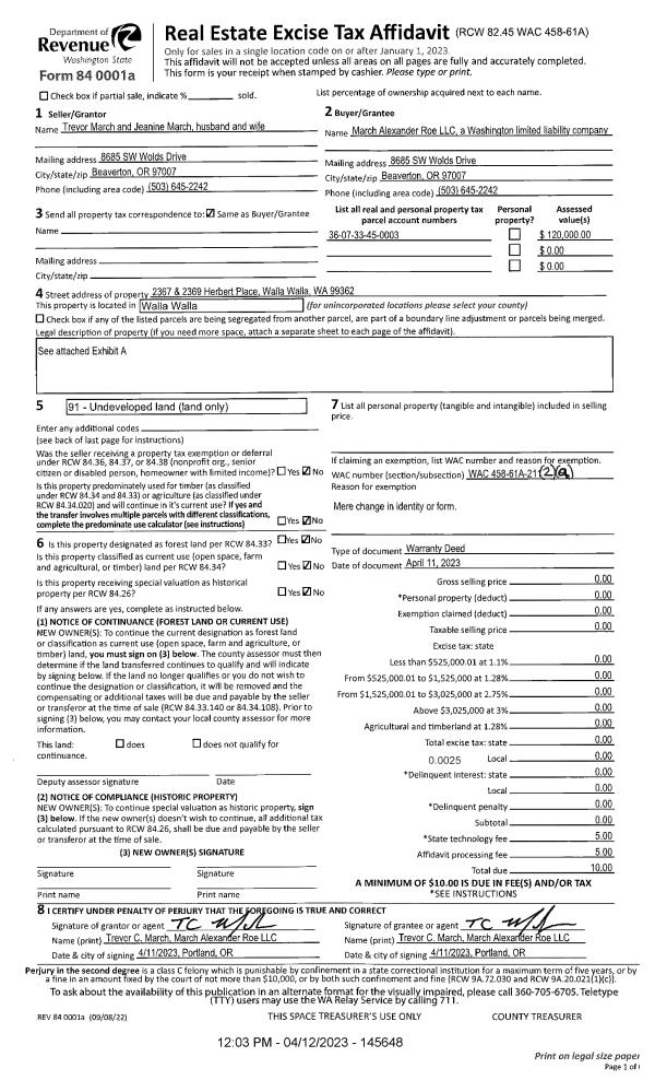
Property
Account |
| Property ID: | 33418 | Abbreviated Legal Description: | DIXIE LOTS 1 THRU 12 BLK 47 |
| Parcel Number: | 370826514701 | Agent Code: | |
| Type: | Real | | |
| Tax Area: | 310 - 101-8 | Land Use Code | 11 |
| Open Space: | N | DFL | N |
| Historic Property: | N | Remodel Property: | N |
| Multi-Family Redevelopment: | N | | |
| Township: | 8 | Section: | 26 |
| Range: | 37 |
Location |
| Address: | 402 THIRD ST WA 99329 | Mapsco: | |
| Neighborhood: | Cycle 4 Dixie (SF) | Map ID: | |
| Neighborhood CD: | 413511 |
Owner |
| Name: | STUBBLEFIELD STEPHEN & DEBORAH | Owner ID: | 2940 |
| Mailing Address: | 116 N 11TH AVE WALLA WALLA, WA 99362 | % Ownership: | 100.0000000000% |
| | | Exemptions: | |
Taxes and Assessment Details
Values
| (+) Improvement Homesite Value: | + | $0 | |
| (+) Improvement Non-Homesite Value: | + | $325,330 | |
| (+) Land Homesite Value: | + | $0 | |
| (+) Land Non-Homesite Value: | + | $67,030 | |
| (+) Curr Use (HS): | + | $0 | $0 |
| (+) Curr Use (NHS): | + | $0 | $0 |
| | | -------------------------- | |
| (=) Market Value: | = | $392,360 | |
| (–) Productivity Loss: | – | $0 | |
| | | -------------------------- | |
| (=) Subtotal: | = | $392,360 | |
| (+) Senior Appraised Value: | + | $0 | |
| (+) Non-Senior Appraised Value: | + | $392,360 | |
| | | -------------------------- | |
| (=) Total Appraised Value: | = | $392,360 | |
| (–) Senior Exemption Loss: | – | $0 | |
| (–) Exemption Loss: | – | $0 | |
| | | -------------------------- | |
| (=) Taxable Value: | = | $392,360 | |
Taxing Jurisdiction
| Owner: | STUBBLEFIELD STEPHEN & DEBORAH | | |
| % Ownership: | 100.0000000000% | | |
| Total Value: | $392,360 | | |
| Tax Area: | 310 - 101-8 |
| CERFD | CURRENT EXPENSE REFUND 010 | 0.0000000000 | $392,360 | $392,360 | $0.00 | | |
| CURREXP | CURRENT EXPENSE 010 | 1.0175366760 | $392,360 | $392,360 | $399.24 | | |
| HUMNSERV | HUMAN SERVICES 119 | 0.0250000000 | $392,360 | $392,360 | $9.81 | | |
| SLDREL | SOLDIERS RELIEF 121 | 0.0155990005 | $392,360 | $392,360 | $6.12 | | |
| EMERGSER | EMS 147 | 0.3792580840 | $392,360 | $392,360 | $148.81 | | |
| EMSRFD | EMS REFUND 147 | 0.0000000000 | $392,360 | $392,360 | $0.00 | | |
| FD8EXP | FD #8 EXPENSE 697 | 0.6647992540 | $392,360 | $392,360 | $260.84 | | |
| RLBRFD | RURAL LIBRARY REFUND 623 | 0.0000000000 | $392,360 | $392,360 | $0.00 | | |
| RURALLIB | RURAL LIBRARY 623 | 0.3710609029 | $392,360 | $392,360 | $145.59 | | |
| PORTRFD | PORT REFUND 640 | 0.0000000000 | $392,360 | $392,360 | $0.00 | | |
| PORTWWGEN | PORT OF WW 640 | 0.2460186015 | $392,360 | $392,360 | $96.53 | | |
| SD101CAP | SD #101 CAP 752 | 0.5894423472 | $392,360 | $392,360 | $231.27 | | |
| SD101GEN | SD #101 GENERAL 750 | 0.7455117868 | $392,360 | $392,360 | $292.51 | | |
| ST2 | STATE SCHOOL PART 2 600 | 0.8131451643 | $392,360 | $392,360 | $319.05 | | |
| STATESCHL | STATE SCHOOL 600 | 1.5158548041 | $392,360 | $392,360 | $594.76 | | |
| STREFUND | STATE REFUND LEVY 603 | 0.0000000000 | $392,360 | $392,360 | $0.00 | | |
| COROAD | COUNTY ROAD 115 | 1.6549953990 | $392,360 | $392,360 | $649.35 | | |
| CRPRD | COUNTY ROAD REFUND 115 | 0.0000000000 | $392,360 | $392,360 | $0.00 | | |
| | Total Tax Rate: | 8.0382220203 | | | | | |
| | | | | Taxes w/Current Exemptions: | $3,153.88 | | |
| | | | | Taxes w/o Exemptions: | $3,153.88 | | |
Improvement / Building
| Improvement #1: | RESIDENTIAL | State Code: | 11 | 2715.0 sqft | Value: | $325,330 |
| Exterior Wall: | VINYL | Heating/Cooling: | BASEBOARD ELECTRIC | | Number of Bathrooms: | 3 | Number of Bedrooms: | 4 | | Plumbing: | 13 | Roof Covering: | COMP SHINGLE |
|
| | Type | Description | Class CD | Sub Class CD | Year Built | Area |
| | MA | Main Area | 4 | 35 | 1908 | 2715.0 |
| | SI1 | SITE IMPROVEMENT | 4 | 35 | 1908 | 3.5 |
| | UPFL | Upper Floor (included in main area) | 4 | 35 | 1908 | 1089.0 |
| | BASE | BASEMENT | 4 | 35 | 1908 | 480.0 |
| | S1F | Single One Story Fireplace | 4 | 35 | 1908 | 1.0 |
| | BRW | BREEZEWAY | 4 | 35 | 1908 | 108.0 |
| | UTST | Utility Storage Shed | 4 | 35 | 1908 | 180.0 |
| | POL1 | POLE BUILDING-GRAVEL | 4 | 35 | 0 | 2160.0 |
| | LOAF-SHED | LOAFING SHED | 4 | 30 | 1908 | 144.0 |
| | LOAF-SHED | LOAFING SHED | 4 | 30 | 1908 | 144.0 |
| | LOAF-SHED | LOAFING SHED | 4 | 30 | 1908 | 144.0 |
Sketch
Property Image
Land
| 1 | RES 1 | Converted: Residential | 1.3800 | 60112.80 | 0.00 | 0.00 | 1.00 | $67,030 | $0 |
Roll Value History
| 2025 | N/A | N/A | N/A | N/A | N/A |
| 2024 | $325,330 | $67,030 | $0 | $392,360 | $392,360 |
| 2023 | $325,330 | $67,030 | $0 | $392,360 | $392,360 |
| 2022 | $328,970 | $40,200 | $0 | $369,170 | $369,170 |
| 2021 | $299,070 | $40,200 | $0 | $339,270 | $339,270 |
| 2020 | $260,060 | $40,200 | $0 | $300,260 | $300,260 |
| 2019 | $260,060 | $40,200 | $0 | $300,260 | $300,260 |
| 2018 | $236,420 | $40,200 | $0 | $276,620 | $276,620 |
| 2017 | $236,420 | $40,200 | $0 | $276,620 | $276,620 |
| 2016 | $224,800 | $40,200 | $0 | $265,000 | $265,000 |
| 2015 | $224,800 | $40,200 | $0 | $265,000 | $265,000 |
| 2014 | $224,800 | $40,200 | $0 | $265,000 | $265,000 |
| 2013 | $224,800 | $40,200 | $0 | $265,000 | $265,000 |
| 2012 | $184,700 | $40,200 | $0 | $0 | $0 |
| 2011 | $56,600 | $40,200 | $0 | $0 | $0 |
| 2010 | $52,600 | $40,200 | $0 | $0 | $0 |
| 2009 | $69,700 | $23,100 | $0 | $0 | $0 |
| 2008 | $69,700 | $23,100 | $0 | $0 | $0 |
| 2007 | $69,700 | $23,100 | $0 | $0 | $0 |
| 2006 | $69,700 | $23,100 | $0 | $0 | $0 |
Deed and Sales History
| 1 | 05/15/2012 | WARRANTY D | WARRANTY DEED | KAAEN WAYNE H & BECKY LEE | STUBBLEFIELD STEPHEN & DEBORAH | | | $360,000.00 | 121815 | 2012-`03944 |
|   | |
| 2 | 06/21/1976 | WARRANTY D | WARRANTY DEED | | | | | $0.00 | 0 | 1678-708233 |
Payout Agreement
| No payout information available.. |