Property
Account |
| Property ID: | 33398 | Abbreviated Legal Description: | EDAIR VISTAS LOT 25 BLK 4 |
| Parcel Number: | 360715500425 | Agent Code: | |
| Type: | Real | | |
| Tax Area: | 5 - OL-140 | Land Use Code | 11 |
| Open Space: | N | DFL | N |
| Historic Property: | N | Remodel Property: | N |
| Multi-Family Redevelopment: | N | | |
| Township: | 7 | Section: | 15 |
| Range: | 36 |
Location |
| Address: | 942 FRAZIER DR WA 99362 | Mapsco: | |
| Neighborhood: | A-SFR | Map ID: | |
| Neighborhood CD: | 313011 |
Owner |
| Name: | HEAGY JOSEPH K | Owner ID: | 63401 |
| Mailing Address: | 942 FRAZIER DR WALLA WALLA, WA 99362 | % Ownership: | 100.0000000000% |
| | | Exemptions: | |
Taxes and Assessment Details
Values
| (+) Improvement Homesite Value: | + | $200,640 | |
| (+) Improvement Non-Homesite Value: | + | $0 | |
| (+) Land Homesite Value: | + | $90,000 | |
| (+) Land Non-Homesite Value: | + | $0 | |
| (+) Curr Use (HS): | + | $0 | $0 |
| (+) Curr Use (NHS): | + | $0 | $0 |
| | | -------------------------- | |
| (=) Market Value: | = | $290,640 | |
| (–) Productivity Loss: | – | $0 | |
| | | -------------------------- | |
| (=) Subtotal: | = | $290,640 | |
| (+) Senior Appraised Value: | + | $0 | |
| (+) Non-Senior Appraised Value: | + | $290,640 | |
| | | -------------------------- | |
| (=) Total Appraised Value: | = | $290,640 | |
| (–) Senior Exemption Loss: | – | $0 | |
| (–) Exemption Loss: | – | $0 | |
| | | -------------------------- | |
| (=) Taxable Value: | = | $290,640 | |
Taxing Jurisdiction
| Owner: | HEAGY JOSEPH K | | |
| % Ownership: | 100.0000000000% | | |
| Total Value: | $290,640 | | |
| Tax Area: | 5 - OL-140 |
| CERFD | CURRENT EXPENSE REFUND 010 | 0.0000000000 | $290,640 | $290,640 | $0.00 | | |
| CURREXP | CURRENT EXPENSE 010 | 1.0175366760 | $290,640 | $290,640 | $295.74 | | |
| HUMNSERV | HUMAN SERVICES 119 | 0.0250000000 | $290,640 | $290,640 | $7.27 | | |
| SLDREL | SOLDIERS RELIEF 121 | 0.0155990005 | $290,640 | $290,640 | $4.53 | | |
| EMERGSER | EMS 147 | 0.3792580840 | $290,640 | $290,640 | $110.23 | | |
| EMSRFD | EMS REFUND 147 | 0.0000000000 | $290,640 | $290,640 | $0.00 | | |
| PORTRFD | PORT REFUND 640 | 0.0000000000 | $290,640 | $290,640 | $0.00 | | |
| PORTWWGEN | PORT OF WW 640 | 0.2460186015 | $290,640 | $290,640 | $71.50 | | |
| SD140BOND | SD #140 BOND 764 | 0.8342371393 | $290,640 | $290,640 | $242.46 | | |
| SD140GEN | SD #140 GENERAL 760 | 2.0646500647 | $290,640 | $290,640 | $600.07 | | |
| ST2 | STATE SCHOOL PART 2 600 | 0.8131451643 | $290,640 | $290,640 | $236.33 | | |
| STATESCHL | STATE SCHOOL 600 | 1.5158548041 | $290,640 | $290,640 | $440.57 | | |
| STREFUND | STATE REFUND LEVY 603 | 0.0000000000 | $290,640 | $290,640 | $0.00 | | |
| CWWBOND | C OF WW BOND 643 | 0.2760494372 | $290,640 | $290,640 | $80.23 | | |
| CWWGEN | CITY OF WW 631 | 1.6100204973 | $290,640 | $290,640 | $467.94 | | |
| CWWRFD | CITY OF WALLA WALLA REFUND 631 | 0.0000000000 | $290,640 | $290,640 | $0.00 | | |
| | Total Tax Rate: | 8.7973694689 | | | | | |
| | | | | Taxes w/Current Exemptions: | $2,556.87 | | |
| | | | | Taxes w/o Exemptions: | $2,556.87 | | |
Improvement / Building
| Improvement #1: | RESIDENTIAL | State Code: | 11 | 1146.0 sqft | Value: | $200,640 |
| Exterior Wall: | SIDING | Heating/Cooling: | HEAT PUMP | | Number of Bathrooms: | 2 | Number of Bedrooms: | 3 | | Plumbing: | 7 | Roof Covering: | COMP SHINGLE |
|
| | Type | Description | Class CD | Sub Class CD | Year Built | Area |
| | MA | Main Area | 1 | 30 | 1949 | 1146.0 |
| | SI1 | SITE IMPROVEMENT | 1 | 30 | 1949 | 1.5 |
| | BASE | BASEMENT | 1 | 30 | 1949 | 1146.0 |
| | DTG | Detached Garage | 1 | 30 | 1949 | 240.0 |
| | WOD | Wood Deck | 1 | 30 | 1949 | 128.0 |
| | D2F | Double 2 Story Fireplace | 1 | 30 | 1949 | 1.0 |
| | CPC | COVERED CARPORT/PATIO | 1 | 30 | 1949 | 200.0 |
| | RPC | OPEN PORCH W/ROOF , CEILED | 1 | 30 | 1949 | 25.0 |
Sketch
Property Image
Land
| 1 | RES 1 | Converted: Residential | 0.3673 | 16000.00 | 0.00 | 0.00 | 1.00 | $90,000 | $0 |
Roll Value History
| 2025 | N/A | N/A | N/A | N/A | N/A |
| 2024 | $200,640 | $90,000 | $0 | $290,640 | $290,640 |
| 2023 | $200,640 | $90,000 | $0 | $290,640 | $290,640 |
| 2022 | $182,400 | $90,000 | $0 | $272,400 | $272,400 |
| 2021 | $121,550 | $55,000 | $0 | $176,550 | $176,550 |
| 2020 | $110,500 | $55,000 | $0 | $165,500 | $165,500 |
| 2019 | $110,500 | $55,000 | $0 | $165,500 | $165,500 |
| 2018 | $100,450 | $55,000 | $0 | $155,450 | $155,450 |
| 2017 | $100,450 | $55,000 | $0 | $155,450 | $155,450 |
| 2016 | $95,670 | $55,000 | $0 | $150,670 | $51,120 |
| 2015 | $85,600 | $55,000 | $0 | $140,600 | $51,120 |
| 2014 | $85,600 | $55,000 | $0 | $140,600 | $51,120 |
| 2013 | $85,600 | $55,000 | $0 | $140,600 | $51,120 |
| 2012 | $72,800 | $55,000 | $0 | $0 | $0 |
| 2011 | $72,800 | $55,000 | $0 | $0 | $0 |
| 2010 | $116,200 | $40,000 | $0 | $0 | $0 |
| 2009 | $133,600 | $40,000 | $0 | $0 | $0 |
| 2008 | $98,900 | $40,000 | $0 | $0 | $0 |
| 2007 | $98,900 | $40,000 | $0 | $0 | $0 |
| 2006 | $80,300 | $25,000 | $0 | $0 | $0 |
Deed and Sales History
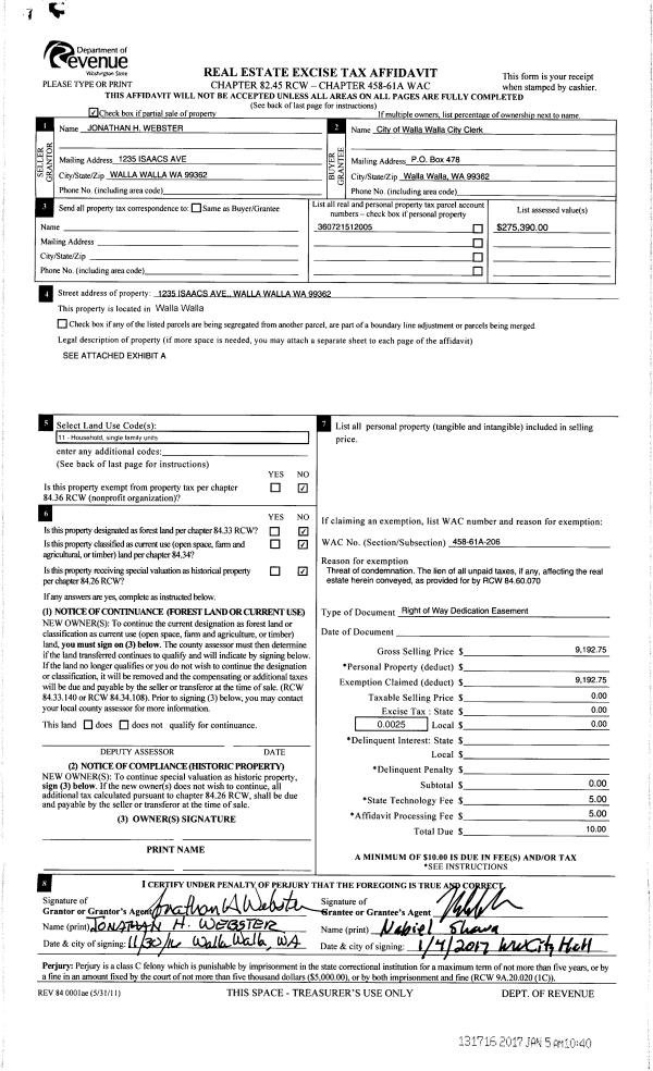
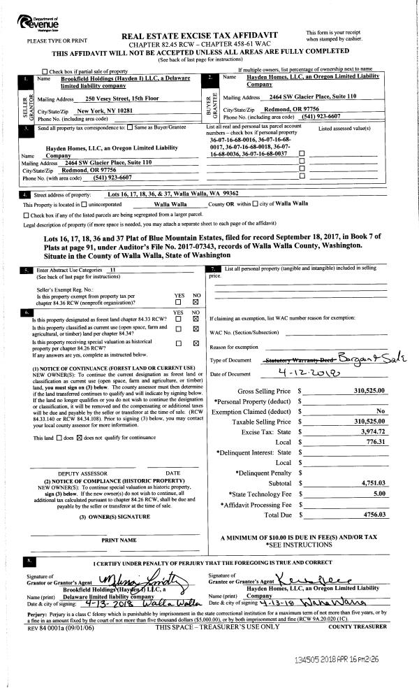
| 1 | 07/02/2018 | BARGAIN & | BARGAIN & SALE DEED | FEDERAL NATIONAL MORTGAGE ASSOC | HEAGY JOSEPH K | | | $175,000.00 | 135042 | 2018-05300 |
| 2 | 10/20/2017 | DFL | DEED IN LIEU OF FORECLOSURE | WEED CLARENCE L & DORIS | FEDERAL NATIONAL MORTGAGE ASSOC | | | $149,855.00 | 133446 | 2017-08372 |
| 3 | 10/20/2017 | SWD | STATUTORY WARRANTY DEED | WEED CLARENCE L & DORIS | FEDERAL NATIONAL MORTGAGE ASSOC | | | $149,855.00 | 133446 | 2017-08371 |
| 4 | 10/20/2017 | DEATH CERT | DEATH CERTIFICATE | WEED CLARENCE LAWRENCE | | | | | 0 | 2017-08370 |
| 5 | 11/28/1983 | WARRANTY D | WARRANTY DEED | | | | | $59,700.00 | 0 | 1418-308480 |
Payout Agreement
| No payout information available.. |