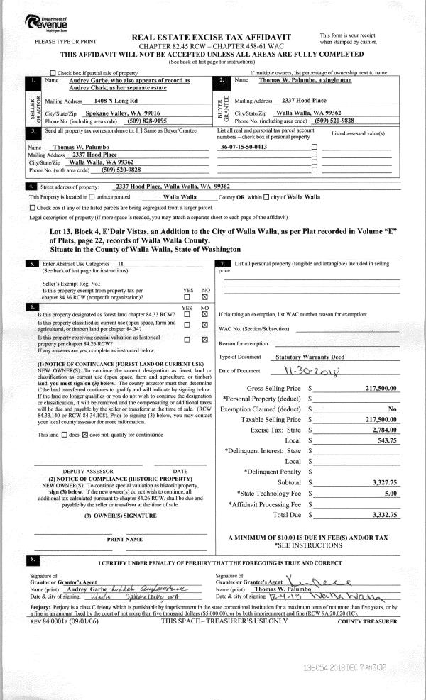
Property
Account |
| Property ID: | 33394 | Abbreviated Legal Description: | REEDS E 20' OF LOT 11 BLK 1; W 20' OF LOT 12 BLK 1 |
| Parcel Number: | 360721710113 | Agent Code: | |
| Type: | Real | | |
| Tax Area: | 1 - OL-140-F | Land Use Code | 11 |
| Open Space: | N | DFL | N |
| Historic Property: | N | Remodel Property: | N |
| Multi-Family Redevelopment: | N | | |
| Township: | 7 | Section: | 21 |
| Range: | 36 |
Location |
| Address: | 633 WASHINGTON ST WA 99362 | Mapsco: | |
| Neighborhood: | G-SFR | Map ID: | |
| Neighborhood CD: | 514011 |
Owner |
| Name: | FROESE PAUL STANLEY | Owner ID: | 64463 |
| Mailing Address: | 633 WASHINGTON ST WALLA WALLA, WA 99362 | % Ownership: | 100.0000000000% |
| | | Exemptions: | |
Taxes and Assessment Details
Values
| (+) Improvement Homesite Value: | + | $260,800 | |
| (+) Improvement Non-Homesite Value: | + | $0 | |
| (+) Land Homesite Value: | + | $34,800 | |
| (+) Land Non-Homesite Value: | + | $0 | |
| (+) Curr Use (HS): | + | $0 | $0 |
| (+) Curr Use (NHS): | + | $0 | $0 |
| | | -------------------------- | |
| (=) Market Value: | = | $295,600 | |
| (–) Productivity Loss: | – | $0 | |
| | | -------------------------- | |
| (=) Subtotal: | = | $295,600 | |
| (+) Senior Appraised Value: | + | $0 | |
| (+) Non-Senior Appraised Value: | + | $295,600 | |
| | | -------------------------- | |
| (=) Total Appraised Value: | = | $295,600 | |
| (–) Senior Exemption Loss: | – | $0 | |
| (–) Exemption Loss: | – | $0 | |
| | | -------------------------- | |
| (=) Taxable Value: | = | $295,600 | |
Taxing Jurisdiction
| Owner: | FROESE PAUL STANLEY | | |
| % Ownership: | 100.0000000000% | | |
| Total Value: | $295,600 | | |
| Tax Area: | 1 - OL-140-F |
| CERFD | CURRENT EXPENSE REFUND 010 | 0.0000000000 | $295,600 | $295,600 | $0.00 | | |
| CURREXP | CURRENT EXPENSE 010 | 1.0175366760 | $295,600 | $295,600 | $300.78 | | |
| HUMNSERV | HUMAN SERVICES 119 | 0.0250000000 | $295,600 | $295,600 | $7.39 | | |
| SLDREL | SOLDIERS RELIEF 121 | 0.0155990005 | $295,600 | $295,600 | $4.61 | | |
| EMERGSER | EMS 147 | 0.3792580840 | $295,600 | $295,600 | $112.11 | | |
| EMSRFD | EMS REFUND 147 | 0.0000000000 | $295,600 | $295,600 | $0.00 | | |
| PORTRFD | PORT REFUND 640 | 0.0000000000 | $295,600 | $295,600 | $0.00 | | |
| PORTWWGEN | PORT OF WW 640 | 0.2460186015 | $295,600 | $295,600 | $72.72 | | |
| SD140BOND | SD #140 BOND 764 | 0.8342371393 | $295,600 | $295,600 | $246.60 | | |
| SD140GEN | SD #140 GENERAL 760 | 2.0646500647 | $295,600 | $295,600 | $610.31 | | |
| ST2 | STATE SCHOOL PART 2 600 | 0.8131451643 | $295,600 | $295,600 | $240.37 | | |
| STATESCHL | STATE SCHOOL 600 | 1.5158548041 | $295,600 | $295,600 | $448.09 | | |
| STREFUND | STATE REFUND LEVY 603 | 0.0000000000 | $295,600 | $295,600 | $0.00 | | |
| CWWBOND | C OF WW BOND 643 | 0.2760494372 | $295,600 | $295,600 | $81.60 | | |
| CWWGEN | CITY OF WW 631 | 1.6100204973 | $295,600 | $295,600 | $475.92 | | |
| CWWRFD | CITY OF WALLA WALLA REFUND 631 | 0.0000000000 | $295,600 | $295,600 | $0.00 | | |
| | Total Tax Rate: | 8.7973694689 | | | | | |
| | | | | Taxes w/Current Exemptions: | $2,600.50 | | |
| | | | | Taxes w/o Exemptions: | $2,600.50 | | |
Improvement / Building
| Improvement #1: | RESIDENTIAL | State Code: | 11 | 894.0 sqft | Value: | $260,800 |
| Exterior Wall: | SIDING | Heating/Cooling: | MINI-SPLIT HP SYSTEM | | Number of Bathrooms: | 1 | Number of Bedrooms: | 2 | | Plumbing: | 7 | Roof Covering: | COMP SHINGLE |
|
| | Type | Description | Class CD | Sub Class CD | Year Built | Area |
| | MA | Main Area | 1 | 25 | 1936 | 894.0 |
| | SI1 | SITE IMPROVEMENT | 1 | 25 | 1936 | 2.0 |
| | BASE | BASEMENT | 1 | 25 | 1936 | 894.0 |
| | RPS | PORCH W/STEPS,ROOF | 1 | 25 | 1936 | 48.0 |
| | DTG | Detached Garage | 1 | 25 | 1936 | 286.0 |
Sketch
Property Image
Land
| 1 | RES 1 | Converted: Residential | 0.1102 | 4800.00 | 0.00 | 0.00 | 1.00 | $34,800 | $0 |
Roll Value History
| 2025 | N/A | N/A | N/A | N/A | N/A |
| 2024 | $279,360 | $52,800 | $0 | $332,160 | $332,160 |
| 2023 | $260,800 | $34,800 | $0 | $295,600 | $295,600 |
| 2022 | $237,090 | $34,800 | $0 | $271,890 | $271,890 |
| 2021 | $169,350 | $34,800 | $0 | $204,150 | $204,150 |
| 2020 | $121,380 | $34,800 | $0 | $156,180 | $156,180 |
| 2019 | $108,310 | $34,800 | $0 | $143,110 | $143,110 |
| 2018 | $108,310 | $34,800 | $0 | $143,110 | $143,110 |
| 2017 | $112,680 | $21,600 | $0 | $134,280 | $134,280 |
| 2016 | $93,900 | $21,600 | $0 | $115,500 | $115,500 |
| 2015 | $93,900 | $21,600 | $0 | $115,500 | $115,500 |
| 2014 | $93,900 | $21,600 | $0 | $115,500 | $0 |
| 2013 | $93,900 | $21,600 | $0 | $115,500 | $0 |
| 2012 | $93,200 | $21,600 | $0 | $0 | $0 |
| 2011 | $93,200 | $21,600 | $0 | $0 | $0 |
| 2010 | $93,200 | $21,600 | $0 | $0 | $0 |
| 2009 | $106,000 | $21,600 | $0 | $0 | $0 |
| 2008 | $75,300 | $19,200 | $0 | $0 | $0 |
| 2007 | $75,300 | $19,200 | $0 | $0 | $0 |
| 2006 | $59,900 | $9,600 | $0 | $0 | $0 |
Deed and Sales History
| 1 | 12/19/2018 | SWP | Special Warranty Deed | REVERSE MORTGAGE SOLUTIONS INC | FROESE PAUL STANLEY | | | $150,000.00 | 136115 | 2018-10481 |
| 2 | 07/25/2018 | TRUSTEES D | TRUSTEE'S DEED | MALDONADO DOLORES | REVERSE MORTGAGE SOLUTIONS INC | | | $159,624.00 | 135188 | 2018-06022 |
| 3 | 07/29/1976 | WARRANTY D | WARRANTY DEED | | | | | $26,500.00 | 0 | 4505-56383 |
Payout Agreement
| No payout information available.. |