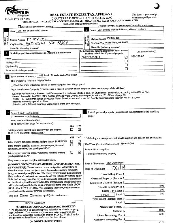
Property
Account |
| Property ID: | 33372 | Abbreviated Legal Description: | COLUMBIA VIEW LOT 7 |
| Parcel Number: | 300812530007 | Agent Code: | |
| Type: | Real | | |
| Tax Area: | 328 - 400-M-5 | Land Use Code | 11 |
| Open Space: | N | DFL | N |
| Historic Property: | N | Remodel Property: | N |
| Multi-Family Redevelopment: | N | | |
| Township: | 8 | Section: | 12 |
| Range: | 30 |
Location |
| Address: | 110 HARRISON PL WA 99323 | Mapsco: | |
| Neighborhood: | Burbank A SFR | Map ID: | |
| Neighborhood CD: | 213711 |
Owner |
| Name: | RUTZ FREDERICK C | Owner ID: | 56188 |
| Mailing Address: | JENNIFER L RUTZ 6305 SW ARGENT PASCO, WA 99301 | % Ownership: | 100.0000000000% |
| | | Exemptions: | |
Taxes and Assessment Details
Values
| (+) Improvement Homesite Value: | + | $0 | |
| (+) Improvement Non-Homesite Value: | + | $191,740 | |
| (+) Land Homesite Value: | + | $0 | |
| (+) Land Non-Homesite Value: | + | $60,450 | |
| (+) Curr Use (HS): | + | $0 | $0 |
| (+) Curr Use (NHS): | + | $0 | $0 |
| | | -------------------------- | |
| (=) Market Value: | = | $252,190 | |
| (–) Productivity Loss: | – | $0 | |
| | | -------------------------- | |
| (=) Subtotal: | = | $252,190 | |
| (+) Senior Appraised Value: | + | $0 | |
| (+) Non-Senior Appraised Value: | + | $252,190 | |
| | | -------------------------- | |
| (=) Total Appraised Value: | = | $252,190 | |
| (–) Senior Exemption Loss: | – | $0 | |
| (–) Exemption Loss: | – | $0 | |
| | | -------------------------- | |
| (=) Taxable Value: | = | $252,190 | |
Taxing Jurisdiction
| Owner: | RUTZ FREDERICK C | | |
| % Ownership: | 100.0000000000% | | |
| Total Value: | $252,190 | | |
| Tax Area: | 328 - 400-M-5 |
| CERFD | CURRENT EXPENSE REFUND 010 | 0.0000000000 | $252,190 | $252,190 | $0.00 | | |
| CURREXP | CURRENT EXPENSE 010 | 1.0175366760 | $252,190 | $252,190 | $256.61 | | |
| HUMNSERV | HUMAN SERVICES 119 | 0.0250000000 | $252,190 | $252,190 | $6.30 | | |
| SLDREL | SOLDIERS RELIEF 121 | 0.0155990005 | $252,190 | $252,190 | $3.93 | | |
| EMERGSER | EMS 147 | 0.3792580840 | $252,190 | $252,190 | $95.65 | | |
| EMSRFD | EMS REFUND 147 | 0.0000000000 | $252,190 | $252,190 | $0.00 | | |
| FD5EXP | FD #5 EXPENSE 689 | 1.2045331840 | $252,190 | $252,190 | $303.77 | | |
| RLBRFD | RURAL LIBRARY REFUND 623 | 0.0000000000 | $252,190 | $252,190 | $0.00 | | |
| RURALLIB | RURAL LIBRARY 623 | 0.3710609029 | $252,190 | $252,190 | $93.58 | | |
| PORTRFD | PORT REFUND 640 | 0.0000000000 | $252,190 | $252,190 | $0.00 | | |
| PORTWWGEN | PORT OF WW 640 | 0.2460186015 | $252,190 | $252,190 | $62.04 | | |
| SD400BOND | SD #400 BOND 793 | 0.0000000000 | $252,190 | $252,190 | $0.00 | | |
| SD400CAP | SD #400 CP 792 | 0.3443722657 | $252,190 | $252,190 | $86.85 | | |
| SD400GEN | SD #400 GENERAL 790 | 1.9278469916 | $252,190 | $252,190 | $486.18 | | |
| ST2 | STATE SCHOOL PART 2 600 | 0.8131451643 | $252,190 | $252,190 | $205.07 | | |
| STATESCHL | STATE SCHOOL 600 | 1.5158548041 | $252,190 | $252,190 | $382.28 | | |
| STREFUND | STATE REFUND LEVY 603 | 0.0000000000 | $252,190 | $252,190 | $0.00 | | |
| COROAD | COUNTY ROAD 115 | 1.6549953990 | $252,190 | $252,190 | $417.37 | | |
| CRPRD | COUNTY ROAD REFUND 115 | 0.0000000000 | $252,190 | $252,190 | $0.00 | | |
| | Total Tax Rate: | 9.5152210736 | | | | | |
| | | | | Taxes w/Current Exemptions: | $2,399.63 | | |
| | | | | Taxes w/o Exemptions: | $2,399.63 | | |
Improvement / Building
| Improvement #1: | RESIDENTIAL | State Code: | 11 | 1852.0 sqft | Value: | $191,740 |
| Exterior Wall: | VINYL | Heating/Cooling: | WARM & COOLED AIR | | Number of Bathrooms: | 3 | Number of Bedrooms: | 5 | | Plumbing: | 10 | Roof Covering: | COMP SHINGLE |
|
| | Type | Description | Class CD | Sub Class CD | Year Built | Area |
| | MA | Main Area | 2 | 20 | 1974 | 1852.0 |
| | UPFL | Upper Floor (included in main area) | 2 | 20 | 1974 | 960.0 |
| | SI1 | SITE IMPROVEMENT | 2 | 20 | 1974 | 1.0 |
| | BASE | BASEMENT | 2 | 20 | 1974 | 864.0 |
| | ATG | Attached Garage | 2 | 20 | 1974 | 484.0 |
| | S1F | Single One Story Fireplace | 2 | 20 | 1974 | 1.0 |
Sketch
Property Image
Land
| 1 | RES 1 | Converted: Residential | 0.3444 | 15000.00 | 0.00 | 0.00 | 1.00 | $60,450 | $0 |
Roll Value History
| 2025 | N/A | N/A | N/A | N/A | N/A |
| 2024 | $268,440 | $60,450 | $0 | $328,890 | $328,890 |
| 2023 | $191,740 | $60,450 | $0 | $252,190 | $252,190 |
| 2022 | $191,740 | $60,450 | $0 | $252,190 | $252,190 |
| 2021 | $95,870 | $60,450 | $0 | $156,320 | $156,320 |
| 2020 | $96,640 | $24,000 | $0 | $120,640 | $120,640 |
| 2019 | $96,640 | $24,000 | $0 | $120,640 | $120,640 |
| 2018 | $80,540 | $24,000 | $0 | $104,540 | $104,540 |
| 2017 | $80,540 | $24,000 | $0 | $104,540 | $104,540 |
| 2016 | $76,700 | $24,000 | $0 | $100,700 | $100,700 |
| 2015 | $76,700 | $24,000 | $0 | $100,700 | $100,700 |
| 2014 | $76,700 | $24,000 | $0 | $100,700 | $100,700 |
| 2013 | $76,700 | $24,000 | $0 | $100,700 | $100,700 |
| 2012 | $76,700 | $24,000 | $0 | $0 | $0 |
| 2011 | $76,700 | $24,000 | $0 | $0 | $0 |
| 2010 | $76,700 | $24,000 | $0 | $0 | $0 |
| 2009 | $78,500 | $20,500 | $0 | $0 | $0 |
| 2008 | $78,500 | $20,500 | $0 | $0 | $0 |
| 2007 | $78,500 | $20,500 | $0 | $0 | $0 |
| 2006 | $78,500 | $20,500 | $0 | $0 | $0 |
Deed and Sales History
| 1 | 03/12/2015 | DPR | DEED OF PERSONAL REPRESENTATIVE | RUTZ ROXANNA L | RUTZ FREDERICK C | | | $0.00 | 127600 | 2015-02225 |
| 2 | 07/24/2012 | QCD | QUIT CLAIM DEED | RUTZ, NORMAN R | RUTZ, ROXANNA L | | | $0.00 | 122381 | 2012-06274 |
| 3 | 07/26/1974 | WARRANTY D | WARRANTY DEED | | | | | | 0 | 1338-201521 |
Payout Agreement
| No payout information available.. |