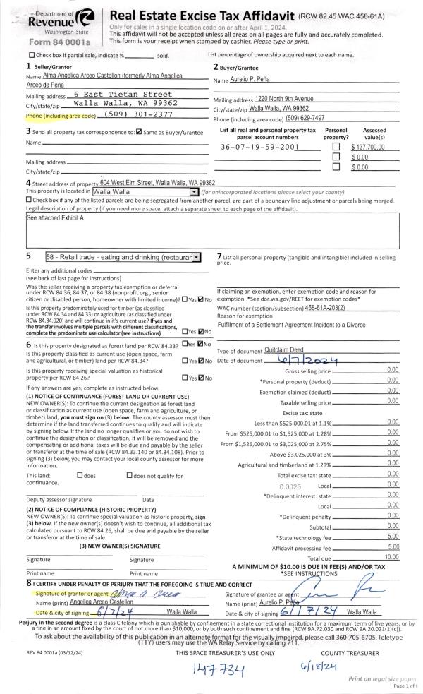
Property
Account |
| Property ID: | 33299 | Abbreviated Legal Description: | DAVISONS HOME LOT 5 BLK 9; WLY 10' OF LOT 4 BLK 9 |
| Parcel Number: | 360728560905 | Agent Code: | |
| Type: | Real | | |
| Tax Area: | 105 - 140-F-4 | Land Use Code | 11 |
| Open Space: | N | DFL | N |
| Historic Property: | N | Remodel Property: | N |
| Multi-Family Redevelopment: | N | | |
| Township: | 7 | Section: | 28 |
| Range: | 36 |
Location |
| Address: | 1005 BRYANT AVE WA 99362 | Mapsco: | |
| Neighborhood: | G Res | Map ID: | |
| Neighborhood CD: | 614011 |
Owner |
| Name: | SMITH ESTHER I LIVING TRUST | Owner ID: | 51007 |
| Mailing Address: | 1400 DALLES MILTIARY RD APT 136 WALLA WALLA, WA 99362 | % Ownership: | 100.0000000000% |
| | | Exemptions: | |
Taxes and Assessment Details
Values
| (+) Improvement Homesite Value: | + | $0 | |
| (+) Improvement Non-Homesite Value: | + | $150,070 | |
| (+) Land Homesite Value: | + | $0 | |
| (+) Land Non-Homesite Value: | + | $77,290 | |
| (+) Curr Use (HS): | + | $0 | $0 |
| (+) Curr Use (NHS): | + | $0 | $0 |
| | | -------------------------- | |
| (=) Market Value: | = | $227,360 | |
| (–) Productivity Loss: | – | $0 | |
| | | -------------------------- | |
| (=) Subtotal: | = | $227,360 | |
| (+) Senior Appraised Value: | + | $0 | |
| (+) Non-Senior Appraised Value: | + | $227,360 | |
| | | -------------------------- | |
| (=) Total Appraised Value: | = | $227,360 | |
| (–) Senior Exemption Loss: | – | $0 | |
| (–) Exemption Loss: | – | $0 | |
| | | -------------------------- | |
| (=) Taxable Value: | = | $227,360 | |
Taxing Jurisdiction
| Owner: | SMITH ESTHER I LIVING TRUST | | |
| % Ownership: | 100.0000000000% | | |
| Total Value: | $227,360 | | |
| Tax Area: | 105 - 140-F-4 |
| CERFD | CURRENT EXPENSE REFUND 010 | 0.0000000000 | $227,360 | $227,360 | $0.00 | | |
| CURREXP | CURRENT EXPENSE 010 | 1.0175366760 | $227,360 | $227,360 | $231.35 | | |
| HUMNSERV | HUMAN SERVICES 119 | 0.0250000000 | $227,360 | $227,360 | $5.68 | | |
| SLDREL | SOLDIERS RELIEF 121 | 0.0155990005 | $227,360 | $227,360 | $3.55 | | |
| EMERGSER | EMS 147 | 0.3792580840 | $227,360 | $227,360 | $86.23 | | |
| EMSRFD | EMS REFUND 147 | 0.0000000000 | $227,360 | $227,360 | $0.00 | | |
| FD4EXP | FD #4 EXPENSE 686 | 0.8836993059 | $227,360 | $227,360 | $200.92 | | |
| RLBRFD | RURAL LIBRARY REFUND 623 | 0.0000000000 | $227,360 | $227,360 | $0.00 | | |
| RURALLIB | RURAL LIBRARY 623 | 0.3710609029 | $227,360 | $227,360 | $84.36 | | |
| PORTRFD | PORT REFUND 640 | 0.0000000000 | $227,360 | $227,360 | $0.00 | | |
| PORTWWGEN | PORT OF WW 640 | 0.2460186015 | $227,360 | $227,360 | $55.93 | | |
| SD140BOND | SD #140 BOND 764 | 0.8342371393 | $227,360 | $227,360 | $189.67 | | |
| SD140GEN | SD #140 GENERAL 760 | 2.0646500647 | $227,360 | $227,360 | $469.42 | | |
| ST2 | STATE SCHOOL PART 2 600 | 0.8131451643 | $227,360 | $227,360 | $184.88 | | |
| STATESCHL | STATE SCHOOL 600 | 1.5158548041 | $227,360 | $227,360 | $344.64 | | |
| STREFUND | STATE REFUND LEVY 603 | 0.0000000000 | $227,360 | $227,360 | $0.00 | | |
| COROAD | COUNTY ROAD 115 | 1.6549953990 | $227,360 | $227,360 | $376.28 | | |
| CRPRD | COUNTY ROAD REFUND 115 | 0.0000000000 | $227,360 | $227,360 | $0.00 | | |
| | Total Tax Rate: | 9.8210551422 | | | | | |
| | | | | Taxes w/Current Exemptions: | $2,232.91 | | |
| | | | | Taxes w/o Exemptions: | $2,232.91 | | |
Improvement / Building
| Improvement #1: | RESIDENTIAL | State Code: | 11 | 1290.0 sqft | Value: | $150,070 |
| Exterior Wall: | SIDING | Foundation: | SLAB FOUNDATION | | Heating/Cooling: | BASEBOARD ELECTRIC | Number of Bathrooms: | 2 | | Number of Bedrooms: | 3 | Plumbing: | 8 | | Roof Covering: | GALVANIZED METAL |   |   |
|
| | Type | Description | Class CD | Sub Class CD | Year Built | Area |
| | MA | Main Area | 1 | 20 | 1935 | 1290.0 |
| | SI1 | SITE IMPROVEMENT | 1 | 20 | 1935 | 1.0 |
| | OSP | Open | 1 | 20 | 1935 | 16.0 |
| | SWP | Solid Wall Porch | 1 | 20 | 1935 | 450.0 |
Sketch
Property Image
Land
| 1 | RES 1 | Converted: Residential | 0.1774 | 7729.00 | 0.00 | 0.00 | 1.00 | $77,290 | $0 |
Roll Value History
| 2025 | N/A | N/A | N/A | N/A | N/A |
| 2024 | $165,080 | $77,290 | $0 | $242,370 | $242,370 |
| 2023 | $150,070 | $77,290 | $0 | $227,360 | $227,360 |
| 2022 | $150,070 | $63,760 | $0 | $213,830 | $213,830 |
| 2021 | $125,060 | $63,760 | $0 | $188,820 | $188,820 |
| 2020 | $96,200 | $63,760 | $0 | $159,960 | $159,960 |
| 2019 | $96,200 | $63,760 | $0 | $159,960 | $159,960 |
| 2018 | $63,380 | $45,200 | $0 | $108,580 | $108,580 |
| 2017 | $48,760 | $45,200 | $0 | $93,960 | $93,960 |
| 2016 | $48,760 | $45,200 | $0 | $93,960 | $93,960 |
| 2015 | $48,760 | $45,200 | $0 | $93,960 | $93,960 |
| 2014 | $47,800 | $45,200 | $0 | $93,000 | $93,000 |
| 2013 | $47,800 | $45,200 | $0 | $93,000 | $93,000 |
| 2012 | $44,300 | $45,200 | $0 | $0 | $0 |
| 2011 | $44,300 | $45,200 | $0 | $0 | $0 |
| 2010 | $60,100 | $45,200 | $0 | $0 | $0 |
| 2009 | $71,800 | $45,200 | $0 | $0 | $0 |
| 2008 | $71,800 | $45,200 | $0 | $0 | $0 |
| 2007 | $55,400 | $22,700 | $0 | $0 | $0 |
| 2006 | $55,400 | $22,700 | $0 | $0 | $0 |
Deed and Sales History
| 1 | 04/17/2012 | QCD | QUIT CLAIM DEED | SMITH, ESTHER I | SMITH, ESTHER I LIVING TRUST | | | | 121681 | 2012-03091 |
| 2 | 12/07/1976 | WARRANTY D | WARRANTY DEED | | | | | $30,000.00 | 0 | 5105-60052 |
Payout Agreement
| No payout information available.. |