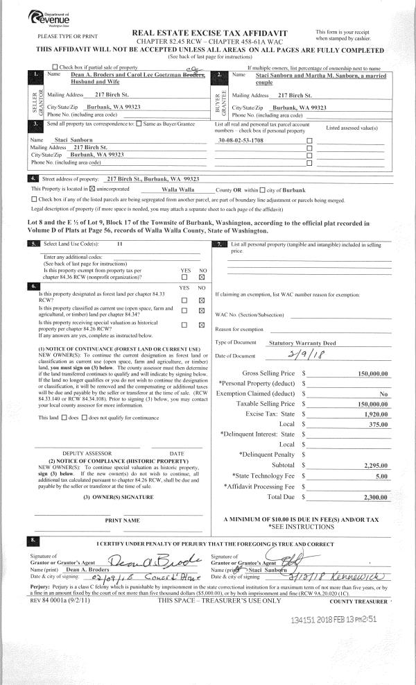
Property
Account |
| Property ID: | 3321 | Abbreviated Legal Description: | 9-6-35 TAX 28 |
| Parcel Number: | 350609220026 | Agent Code: | |
| Type: | Real | | |
| Tax Area: | 311 - 250-4 | Land Use Code | 11 |
| Open Space: | N | DFL | N |
| Historic Property: | N | Remodel Property: | N |
| Multi-Family Redevelopment: | N | | |
| Township: | 6 | Section: | 9 |
| Range: | 35 |
Location |
| Address: | 1173 FROG HOLLOW RD WA 99324 | Mapsco: | |
| Neighborhood: | VG SFR RURAL | Map ID: | |
| Neighborhood CD: | 215013 |
Owner |
| Name: | FISK DAVID EARL | Owner ID: | 67866 |
| Mailing Address: | 1173 FROG HOLLOW RD WALLA WALLA, WA 99362 | % Ownership: | 100.0000000000% |
| | | Exemptions: | |
Taxes and Assessment Details
Values
| (+) Improvement Homesite Value: | + | $0 | |
| (+) Improvement Non-Homesite Value: | + | $342,500 | |
| (+) Land Homesite Value: | + | $0 | |
| (+) Land Non-Homesite Value: | + | $155,100 | |
| (+) Curr Use (HS): | + | $0 | $0 |
| (+) Curr Use (NHS): | + | $0 | $0 |
| | | -------------------------- | |
| (=) Market Value: | = | $497,600 | |
| (–) Productivity Loss: | – | $0 | |
| | | -------------------------- | |
| (=) Subtotal: | = | $497,600 | |
| (+) Senior Appraised Value: | + | $0 | |
| (+) Non-Senior Appraised Value: | + | $497,600 | |
| | | -------------------------- | |
| (=) Total Appraised Value: | = | $497,600 | |
| (–) Senior Exemption Loss: | – | $0 | |
| (–) Exemption Loss: | – | $0 | |
| | | -------------------------- | |
| (=) Taxable Value: | = | $497,600 | |
Taxing Jurisdiction
| Owner: | FISK DAVID EARL | | |
| % Ownership: | 100.0000000000% | | |
| Total Value: | $497,600 | | |
| Tax Area: | 311 - 250-4 |
| CERFD | CURRENT EXPENSE REFUND 010 | 0.0000000000 | $497,600 | $497,600 | $0.00 | | |
| CURREXP | CURRENT EXPENSE 010 | 1.0175366760 | $497,600 | $497,600 | $506.33 | | |
| HUMNSERV | HUMAN SERVICES 119 | 0.0250000000 | $497,600 | $497,600 | $12.44 | | |
| SLDREL | SOLDIERS RELIEF 121 | 0.0155990005 | $497,600 | $497,600 | $7.76 | | |
| EMERGSER | EMS 147 | 0.3792580840 | $497,600 | $497,600 | $188.72 | | |
| EMSRFD | EMS REFUND 147 | 0.0000000000 | $497,600 | $497,600 | $0.00 | | |
| FD4EXP | FD #4 EXPENSE 686 | 0.8836993059 | $497,600 | $497,600 | $439.73 | | |
| RLBRFD | RURAL LIBRARY REFUND 623 | 0.0000000000 | $497,600 | $497,600 | $0.00 | | |
| RURALLIB | RURAL LIBRARY 623 | 0.3710609029 | $497,600 | $497,600 | $184.64 | | |
| PORTRFD | PORT REFUND 640 | 0.0000000000 | $497,600 | $497,600 | $0.00 | | |
| PORTWWGEN | PORT OF WW 640 | 0.2460186015 | $497,600 | $497,600 | $122.42 | | |
| SD250BOND | SD #250 BOND 773 | 1.4560608159 | $497,600 | $497,600 | $724.54 | | |
| SD250GEN | SD #250 GENERAL 770 | 2.3880724087 | $497,600 | $497,600 | $1,188.30 | | |
| ST2 | STATE SCHOOL PART 2 600 | 0.8131451643 | $497,600 | $497,600 | $404.62 | | |
| STATESCHL | STATE SCHOOL 600 | 1.5158548041 | $497,600 | $497,600 | $754.29 | | |
| STREFUND | STATE REFUND LEVY 603 | 0.0000000000 | $497,600 | $497,600 | $0.00 | | |
| COROAD | COUNTY ROAD 115 | 1.6549953990 | $497,600 | $497,600 | $823.53 | | |
| CRPRD | COUNTY ROAD REFUND 115 | 0.0000000000 | $497,600 | $497,600 | $0.00 | | |
| | Total Tax Rate: | 10.7663011628 | | | | | |
| | | | | Taxes w/Current Exemptions: | $5,357.32 | | |
| | | | | Taxes w/o Exemptions: | $5,357.32 | | |
Improvement / Building
| Improvement #1: | RESIDENTIAL | State Code: | 11 | 1800.0 sqft | Value: | $342,500 |
| Exterior Wall: | SIDING | Heating/Cooling: | FORCED AIR | | Number of Bathrooms: | 1.5 | Number of Bedrooms: | 4 | | Plumbing: | 8 | Roof Covering: | COMP SHINGLE |
|
| | Type | Description | Class CD | Sub Class CD | Year Built | Area |
| | MA | Main Area | 4 | 30 | 1947 | 1800.0 |
| | SI1 | SITE IMPROVEMENT | 4 | 30 | 1947 | 2.5 |
| | S1F | Single One Story Fireplace | 4 | 30 | 1947 | 1.0 |
| | UTILITY | UTILITY BUILDING | 1 | 30 | 1947 | 600.0 |
| | UTST | Utility Storage Shed | 1 | 30 | 1947 | 400.0 |
| | UPFL | Upper Floor (included in main area) | 4 | 30 | 1947 | 412.0 |
| | UTST | Utility Storage Shed | 1 | 30 | 1947 | 240.0 |
| | WOD | Wood Deck | 1 | 30 | 2019 | 340.0 |
| | RPO | OPEN PORCH W/ROOF | 4 | 30 | 1947 | 16.0 |
| | ATG | Attached Garage | 4 | 30 | 2020 | 374.0 |
| | CPCG | CARPORT/ GABLE ROOF | 4 | 30 | 2020 | 280.0 |
Sketch
Property Image
Land
| 1 | RES 1 | Converted: Residential | 1.5600 | 0.00 | 0.00 | 0.00 | 1.00 | $155,100 | $0 |
Roll Value History
| 2025 | N/A | N/A | N/A | N/A | N/A |
| 2024 | $359,620 | $155,100 | $0 | $514,720 | $514,720 |
| 2023 | $342,500 | $155,100 | $0 | $497,600 | $497,600 |
| 2022 | $311,360 | $155,100 | $0 | $466,460 | $466,460 |
| 2021 | $194,600 | $155,100 | $0 | $349,700 | $349,700 |
| 2020 | $194,600 | $77,800 | $0 | $272,400 | $272,400 |
| 2019 | $184,750 | $77,800 | $0 | $262,550 | $262,550 |
| 2018 | $176,900 | $77,800 | $0 | $254,700 | $254,700 |
| 2017 | $176,900 | $77,800 | $0 | $254,700 | $254,700 |
| 2016 | $168,480 | $77,800 | $0 | $246,280 | $246,280 |
| 2015 | $140,400 | $77,800 | $0 | $218,200 | $218,200 |
| 2014 | $108,000 | $77,800 | $0 | $185,800 | $185,800 |
| 2013 | $108,000 | $77,800 | $0 | $185,800 | $185,800 |
| 2012 | $108,000 | $77,800 | $0 | $0 | $0 |
| 2011 | $108,000 | $77,800 | $0 | $0 | $0 |
| 2010 | $108,000 | $77,800 | $0 | $0 | $0 |
| 2009 | $149,100 | $47,200 | $0 | $0 | $0 |
| 2008 | $83,700 | $47,200 | $0 | $0 | $0 |
| 2007 | $83,700 | $47,200 | $0 | $0 | $0 |
| 2006 | $83,700 | $47,200 | $0 | $0 | $0 |
Deed and Sales History
| 1 | 09/11/2020 | QCD | QUIT CLAIM DEED | FISK DAVID E & LEAH C | FISK DAVID EARL | | | | 139895 | 2020-09258 |
| 2 | 05/05/2017 | SWD | STATUTORY WARRANTY DEED | SPAIN JOHN R | FISK DAVID E & LEAH C | | | $255,000.00 | 132335 | 2017-03411 |
| 3 | 05/05/2017 | QCD | QUIT CLAIM DEED | SPAIN JOHN F & SHANNON D | SPAIN JOHN R | | | $0.00 | 132334 | 2017-03410 |
| 4 | 03/09/1989 | WARRANTY D | WARRANTY DEED | | | | | $62,500.00 | 0 | 1758-901470 |
Payout Agreement
| No payout information available.. |