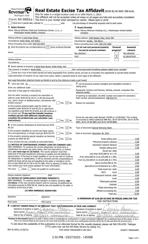
Property
Account |
| Property ID: | 33202 | Abbreviated Legal Description: | 18-6-36 TRACT C OF S/P (WLY 449' OF ELY 898' OF SLY 968' OF TAX 3)LESS RD |
| Parcel Number: | 360618210006 | Agent Code: | |
| Type: | Real | | |
| Tax Area: | 101 - 140-4 | Land Use Code | 11 |
| Open Space: | N | DFL | N |
| Historic Property: | N | Remodel Property: | N |
| Multi-Family Redevelopment: | N | | |
| Township: | 6 | Section: | 18 |
| Range: | 36 |
Location |
| Address: | 2344 STATELINE RD WA 99362 | Mapsco: | |
| Neighborhood: | CYCLE 4 EXCELLENT (A) | Map ID: | |
| Neighborhood CD: | 416012 |
Owner |
| Name: | ROCKEY TIMOTHY M & RENEE MARGOT | Owner ID: | 57605 |
| Mailing Address: | PO BOX 488 COLLEGE PLACE, WA 99324 | % Ownership: | 100.0000000000% |
| | | Exemptions: | |
Taxes and Assessment Details
Values
| (+) Improvement Homesite Value: | + | $0 | |
| (+) Improvement Non-Homesite Value: | + | $582,500 | |
| (+) Land Homesite Value: | + | $0 | |
| (+) Land Non-Homesite Value: | + | $272,000 | |
| (+) Curr Use (HS): | + | $0 | $0 |
| (+) Curr Use (NHS): | + | $0 | $0 |
| | | -------------------------- | |
| (=) Market Value: | = | $854,500 | |
| (–) Productivity Loss: | – | $0 | |
| | | -------------------------- | |
| (=) Subtotal: | = | $854,500 | |
| (+) Senior Appraised Value: | + | $0 | |
| (+) Non-Senior Appraised Value: | + | $854,500 | |
| | | -------------------------- | |
| (=) Total Appraised Value: | = | $854,500 | |
| (–) Senior Exemption Loss: | – | $0 | |
| (–) Exemption Loss: | – | $0 | |
| | | -------------------------- | |
| (=) Taxable Value: | = | $854,500 | |
Taxing Jurisdiction
| Owner: | ROCKEY TIMOTHY M & RENEE MARGOT | | |
| % Ownership: | 100.0000000000% | | |
| Total Value: | $854,500 | | |
| Tax Area: | 101 - 140-4 |
| CERFD | CURRENT EXPENSE REFUND 010 | 0.0000000000 | $854,500 | $854,500 | $0.00 | | |
| CURREXP | CURRENT EXPENSE 010 | 1.0175366760 | $854,500 | $854,500 | $869.49 | | |
| HUMNSERV | HUMAN SERVICES 119 | 0.0250000000 | $854,500 | $854,500 | $21.36 | | |
| SLDREL | SOLDIERS RELIEF 121 | 0.0155990005 | $854,500 | $854,500 | $13.33 | | |
| EMERGSER | EMS 147 | 0.3792580840 | $854,500 | $854,500 | $324.08 | | |
| EMSRFD | EMS REFUND 147 | 0.0000000000 | $854,500 | $854,500 | $0.00 | | |
| FD4EXP | FD #4 EXPENSE 686 | 0.8836993059 | $854,500 | $854,500 | $755.12 | | |
| RLBRFD | RURAL LIBRARY REFUND 623 | 0.0000000000 | $854,500 | $854,500 | $0.00 | | |
| RURALLIB | RURAL LIBRARY 623 | 0.3710609029 | $854,500 | $854,500 | $317.07 | | |
| PORTRFD | PORT REFUND 640 | 0.0000000000 | $854,500 | $854,500 | $0.00 | | |
| PORTWWGEN | PORT OF WW 640 | 0.2460186015 | $854,500 | $854,500 | $210.22 | | |
| SD140BOND | SD #140 BOND 764 | 0.8342371393 | $854,500 | $854,500 | $712.86 | | |
| SD140GEN | SD #140 GENERAL 760 | 2.0646500647 | $854,500 | $854,500 | $1,764.24 | | |
| ST2 | STATE SCHOOL PART 2 600 | 0.8131451643 | $854,500 | $854,500 | $694.83 | | |
| STATESCHL | STATE SCHOOL 600 | 1.5158548041 | $854,500 | $854,500 | $1,295.30 | | |
| STREFUND | STATE REFUND LEVY 603 | 0.0000000000 | $854,500 | $854,500 | $0.00 | | |
| COROAD | COUNTY ROAD 115 | 1.6549953990 | $854,500 | $854,500 | $1,414.19 | | |
| CRPRD | COUNTY ROAD REFUND 115 | 0.0000000000 | $854,500 | $854,500 | $0.00 | | |
| | Total Tax Rate: | 9.8210551422 | | | | | |
| | | | | Taxes w/Current Exemptions: | $8,392.09 | | |
| | | | | Taxes w/o Exemptions: | $8,392.09 | | |
Improvement / Building
| Improvement #1: | RESIDENTIAL | State Code: | 11 | 2496.0 sqft | Value: | $582,500 |
| Exterior Wall: | METAL/STEEL | Heating/Cooling: | HEAT PUMP | | Number of Bathrooms: | 2 | Number of Bedrooms: | 3 | | Plumbing: | 11 | Roof Covering: | METAL ROOFING |
|
| | Type | Description | Class CD | Sub Class CD | Year Built | Area |
| | MA | Main Area | 1 | 40 | 2020 | 2496.0 |
| | ATG | Attached Garage | 1 | 40 | 2020 | 1104.0 |
| | GIF | GARAGE INTERIOR FINISH | 1 | 40 | 2018 | 4200.0 |
| | HBAT | HALF BATH | 1 | 40 | 2018 | 2.0 |
| | SI1 | SITE IMPROVEMENT | 1 | 40 | 2020 | 4.0 |
| | FIXT | AVERAGE FIXTURE | 1 | 40 | 2018 | 2.0 |
| | POL3 | POLE BUILDING-CON,ELEC,INSU | 1 | 40 | 2018 | 1750.0 |
| | POL3 | POLE BUILDING-CON,ELEC,INSU | 1 | 40 | 2018 | 2450.0 |
| | GFP | GAS FIREPLACE | 1 | 40 | 2020 | 1.0 |
Sketch
Property Image
Land
| 1 | RES 1 | Converted: Residential | 10.0000 | 0.00 | 0.00 | 0.00 | 1.00 | $272,000 | $0 |
Roll Value History
| 2025 | N/A | N/A | N/A | N/A | N/A |
| 2024 | $582,500 | $272,000 | $0 | $854,500 | $854,500 |
| 2023 | $582,500 | $272,000 | $0 | $854,500 | $854,500 |
| 2022 | $647,220 | $157,000 | $0 | $804,220 | $804,220 |
| 2021 | $562,800 | $157,000 | $0 | $719,800 | $719,800 |
| 2020 | $195,640 | $157,000 | $0 | $352,640 | $352,640 |
| 2019 | $195,640 | $157,000 | $0 | $352,640 | $352,640 |
| 2018 | $195,640 | $157,000 | $0 | $352,640 | $352,640 |
| 2017 | $0 | $157,000 | $0 | $157,000 | $157,000 |
| 2016 | $0 | $157,000 | $0 | $157,000 | $157,000 |
| 2015 | $0 | $80,000 | $0 | $80,000 | $80,000 |
| 2014 | $0 | $80,000 | $0 | $80,000 | $80,000 |
| 2013 | $0 | $80,000 | $80,000 | $80,000 | $80,000 |
| 2012 | $0 | $129,000 | $0 | $0 | $0 |
| 2011 | $0 | $129,000 | $0 | $0 | $0 |
| 2010 | $0 | $129,000 | $0 | $0 | $0 |
| 2009 | $0 | $129,000 | $0 | $0 | $0 |
| 2008 | $0 | $129,000 | $0 | $0 | $0 |
| 2007 | $0 | $75,500 | $0 | $0 | $0 |
| 2006 | $0 | $75,500 | $0 | $0 | $0 |
Deed and Sales History
| 1 | 10/16/2015 | SWD | STATUTORY WARRANTY DEED | WATTS GERALD A | ROCKEY TIMOTHY M & RENEE MARGOT | | | $300,000.00 | 129020 | 2015-09083 |
| 2 | 12/20/1996 | WARRANTY D | WARRANTY DEED | | | | | $65,000.00 | 87414 | 2479-612601 |
Payout Agreement
| No payout information available.. |