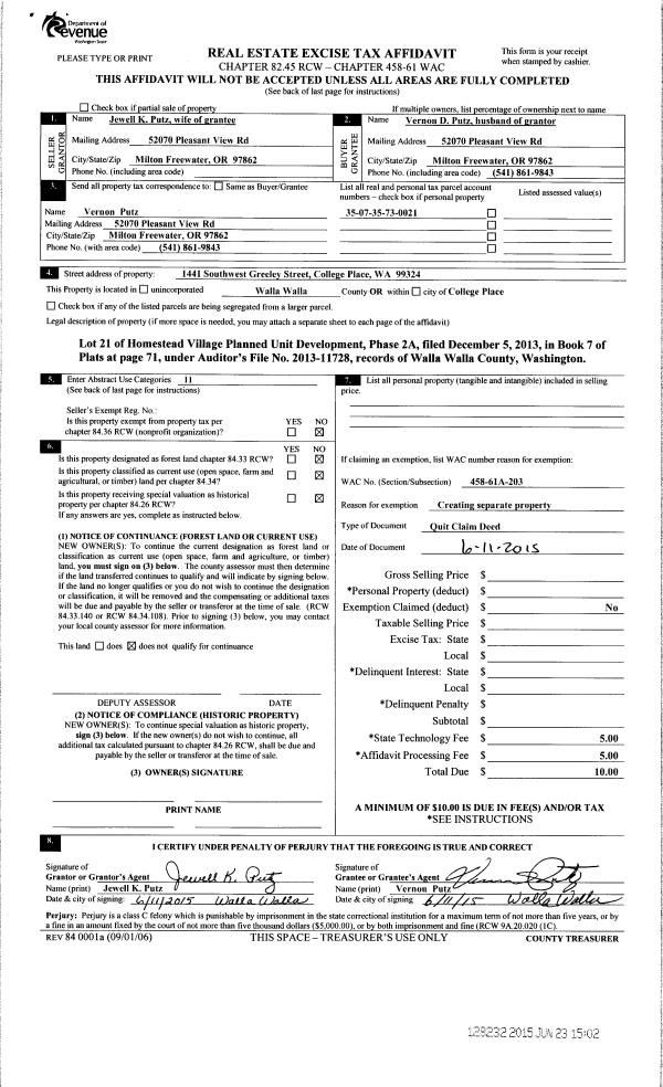
Property
Account |
| Property ID: | 33181 | Abbreviated Legal Description: | ROLLING HILLS ESTATES #1 LT 2 BLK 1 |
| Parcel Number: | 350602520102 | Agent Code: | |
| Type: | Real | | |
| Tax Area: | 311 - 250-4 | Land Use Code | 11 |
| Open Space: | N | DFL | N |
| Historic Property: | N | Remodel Property: | N |
| Multi-Family Redevelopment: | N | | |
| Township: | 6 | Section: | 2 |
| Range: | 35 |
Location |
| Address: | 304 BUSSELL RD WA 99324 | Mapsco: | |
| Neighborhood: | VG SFR RURAL | Map ID: | |
| Neighborhood CD: | 215013 |
Owner |
| Name: | WEISSENFELS JENNIFER & ANDREW KELLER | Owner ID: | 69223 |
| Mailing Address: | 304 BUSSELL RD WALLA WALLA, WA 99362 | % Ownership: | 100.0000000000% |
| | | Exemptions: | |
Taxes and Assessment Details
Values
| (+) Improvement Homesite Value: | + | $297,500 | |
| (+) Improvement Non-Homesite Value: | + | $0 | |
| (+) Land Homesite Value: | + | $152,730 | |
| (+) Land Non-Homesite Value: | + | $0 | |
| (+) Curr Use (HS): | + | $0 | $0 |
| (+) Curr Use (NHS): | + | $0 | $0 |
| | | -------------------------- | |
| (=) Market Value: | = | $450,230 | |
| (–) Productivity Loss: | – | $0 | |
| | | -------------------------- | |
| (=) Subtotal: | = | $450,230 | |
| (+) Senior Appraised Value: | + | $0 | |
| (+) Non-Senior Appraised Value: | + | $450,230 | |
| | | -------------------------- | |
| (=) Total Appraised Value: | = | $450,230 | |
| (–) Senior Exemption Loss: | – | $0 | |
| (–) Exemption Loss: | – | $0 | |
| | | -------------------------- | |
| (=) Taxable Value: | = | $450,230 | |
Taxing Jurisdiction
| Owner: | WEISSENFELS JENNIFER & ANDREW KELLER | | |
| % Ownership: | 100.0000000000% | | |
| Total Value: | $450,230 | | |
| Tax Area: | 311 - 250-4 |
| CERFD | CURRENT EXPENSE REFUND 010 | 0.0000000000 | $450,230 | $450,230 | $0.00 | | |
| CURREXP | CURRENT EXPENSE 010 | 1.0175366760 | $450,230 | $450,230 | $458.13 | | |
| HUMNSERV | HUMAN SERVICES 119 | 0.0250000000 | $450,230 | $450,230 | $11.26 | | |
| SLDREL | SOLDIERS RELIEF 121 | 0.0155990005 | $450,230 | $450,230 | $7.02 | | |
| EMERGSER | EMS 147 | 0.3792580840 | $450,230 | $450,230 | $170.75 | | |
| EMSRFD | EMS REFUND 147 | 0.0000000000 | $450,230 | $450,230 | $0.00 | | |
| FD4EXP | FD #4 EXPENSE 686 | 0.8836993059 | $450,230 | $450,230 | $397.87 | | |
| RLBRFD | RURAL LIBRARY REFUND 623 | 0.0000000000 | $450,230 | $450,230 | $0.00 | | |
| RURALLIB | RURAL LIBRARY 623 | 0.3710609029 | $450,230 | $450,230 | $167.06 | | |
| PORTRFD | PORT REFUND 640 | 0.0000000000 | $450,230 | $450,230 | $0.00 | | |
| PORTWWGEN | PORT OF WW 640 | 0.2460186015 | $450,230 | $450,230 | $110.76 | | |
| SD250BOND | SD #250 BOND 773 | 1.4560608159 | $450,230 | $450,230 | $655.56 | | |
| SD250GEN | SD #250 GENERAL 770 | 2.3880724087 | $450,230 | $450,230 | $1,075.18 | | |
| ST2 | STATE SCHOOL PART 2 600 | 0.8131451643 | $450,230 | $450,230 | $366.10 | | |
| STATESCHL | STATE SCHOOL 600 | 1.5158548041 | $450,230 | $450,230 | $682.48 | | |
| STREFUND | STATE REFUND LEVY 603 | 0.0000000000 | $450,230 | $450,230 | $0.00 | | |
| COROAD | COUNTY ROAD 115 | 1.6549953990 | $450,230 | $450,230 | $745.13 | | |
| CRPRD | COUNTY ROAD REFUND 115 | 0.0000000000 | $450,230 | $450,230 | $0.00 | | |
| | Total Tax Rate: | 10.7663011628 | | | | | |
| | | | | Taxes w/Current Exemptions: | $4,847.30 | | |
| | | | | Taxes w/o Exemptions: | $4,847.30 | | |
Improvement / Building
| Improvement #1: | RESIDENTIAL | State Code: | 11 | 1344.0 sqft | Value: | $297,500 |
| Exterior Wall: | PLYWOOD | Heating/Cooling: | WARM & COOLED AIR | | Number of Bathrooms: | 2 | Number of Bedrooms: | 3 | | Plumbing: | 9 | Roof Covering: | WOOD SHAKE |
|
| | Type | Description | Class CD | Sub Class CD | Year Built | Area |
| | MA | Main Area | 1 | 40 | 1975 | 1344.0 |
| | SI1 | SITE IMPROVEMENT | 1 | 40 | 1975 | 2.5 |
| | SMP | SWIMMING POOL | 1 | 40 | 2008 | 1.0 |
| | BASE | BASEMENT | 1 | 40 | 1975 | 1344.0 |
| | S1F | Single One Story Fireplace | 1 | 40 | 1975 | 1.0 |
| | RPO | OPEN PORCH W/ROOF | 1 | 40 | 1975 | 144.0 |
| | BLW | WOOD BALCONIES | 1 | 40 | 1975 | 240.0 |
| | ATG | Attached Garage | 1 | 40 | 1975 | 528.0 |
| | FIXT | AVERAGE FIXTURE | 1 | 40 | 1975 | 3.0 |
Sketch
Property Image
Land
| 1 | RES 1 | Converted: Residential | 1.1200 | 0.00 | 0.00 | 0.00 | 1.00 | $152,730 | $0 |
Roll Value History
| 2025 | N/A | N/A | N/A | N/A | N/A |
| 2024 | $401,620 | $152,730 | $0 | $554,350 | $554,350 |
| 2023 | $297,500 | $152,730 | $0 | $450,230 | $450,230 |
| 2022 | $283,330 | $152,730 | $0 | $436,060 | $436,060 |
| 2021 | $269,840 | $152,730 | $0 | $422,570 | $422,570 |
| 2020 | $288,940 | $90,500 | $0 | $379,440 | $151,776 |
| 2019 | $288,940 | $90,500 | $0 | $379,440 | $151,776 |
| 2018 | $251,250 | $90,500 | $0 | $341,750 | $341,750 |
| 2017 | $251,250 | $90,500 | $0 | $341,750 | $341,750 |
| 2016 | $167,500 | $90,500 | $0 | $258,000 | $188,000 |
| 2015 | $167,500 | $90,500 | $0 | $258,000 | $127,200 |
| 2014 | $167,500 | $90,500 | $0 | $258,000 | $188,000 |
| 2013 | $127,500 | $90,500 | $0 | $218,000 | $218,000 |
| 2012 | $167,500 | $90,500 | $0 | $0 | $0 |
| 2011 | $137,500 | $120,500 | $0 | $0 | $0 |
| 2010 | $137,500 | $120,500 | $0 | $0 | $0 |
| 2009 | $210,800 | $45,500 | $0 | $0 | $0 |
| 2008 | $154,000 | $45,500 | $0 | $0 | $0 |
| 2007 | $154,000 | $45,500 | $0 | $0 | $0 |
| 2006 | $154,000 | $45,500 | $0 | $0 | $0 |
Deed and Sales History
| 1 | 04/16/2021 | SWD | STATUTORY WARRANTY DEED | ELWELL JAN L | WEISSENFELS JENNIFER & ANDREW KELLER | | | $435,000.00 | 141353 | 2021-04495 |
| 2 | 03/02/2018 | DPR | DEED OF PERSONAL REPRESENTATIVE | VAN DYKE JOANNE L | ELWELL JAN L | | | $0.00 | 134254 | 2018-01758 |
| 3 | 09/15/2006 | WARRANTY D | WARRANTY DEED | BENTTI, CHRISTOPHER A & MICHEL | VAN DYKE, JOANNE L | | | $335,000.00 | 111209 | 2006-11165 |
| 4 | 01/22/2002 | WARRANTY D | WARRANTY DEED | NEVADA TRUSTEES & ADMIN-OZ II | BENTTI, CHRISTOPHER A & MICHEL | | | $174,900.00 | 98769 | 327-0200700 |
| 5 | 11/18/1994 | WARRANTY D | WARRANTY DEED | | | | | $150,000.00 | 82961 | 2259-413287 |
Payout Agreement
| No payout information available.. |