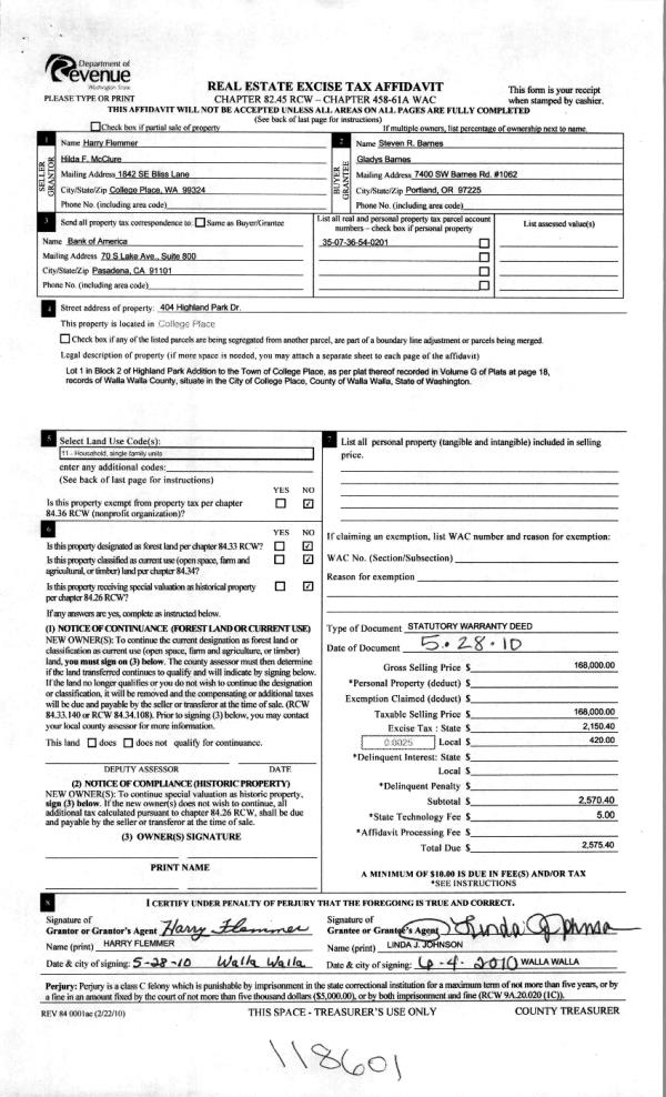
Property
Account |
| Property ID: | 33032 | Abbreviated Legal Description: | RIVER WALK ESTATES LOT 3 |
| Parcel Number: | 340735510003 | Agent Code: | |
| Type: | Real | | |
| Tax Area: | 101 - 140-4 | Land Use Code | 83 |
| Open Space: | Y | DFL | N |
| Historic Property: | N | Remodel Property: | N |
| Multi-Family Redevelopment: | N | | |
| Township: | 7 | Section: | 35 |
| Range: | 34 |
Location |
| Address: | 519 EQUESTRIAN WAY WA 99362 | Mapsco: | |
| Neighborhood: | 0 Farm | Map ID: | |
| Neighborhood CD: | 2220 |
Owner |
| Name: | BOWE PATRICK R & MELISSA A | Owner ID: | 50812 |
| Mailing Address: | 519 EQUESTRAIN WAY WALLA WALLA, WA 99362 | % Ownership: | 100.0000000000% |
| | | Exemptions: | |
Taxes and Assessment Details
Values
| (+) Improvement Homesite Value: | + | $0 | |
| (+) Improvement Non-Homesite Value: | + | $458,300 | |
| (+) Land Homesite Value: | + | $0 | |
| (+) Land Non-Homesite Value: | + | $0 | |
| (+) Curr Use (HS): | + | $150,000 | $370 |
| (+) Curr Use (NHS): | + | $57,660 | $11,350 |
| | | -------------------------- | |
| (=) Market Value: | = | $665,960 | |
| (–) Productivity Loss: | – | $195,940 | |
| | | -------------------------- | |
| (=) Subtotal: | = | $470,020 | |
| (+) Senior Appraised Value: | + | $0 | |
| (+) Non-Senior Appraised Value: | + | $470,020 | |
| | | -------------------------- | |
| (=) Total Appraised Value: | = | $470,020 | |
| (–) Senior Exemption Loss: | – | $0 | |
| (–) Exemption Loss: | – | $0 | |
| | | -------------------------- | |
| (=) Taxable Value: | = | $470,020 | |
Taxing Jurisdiction
| Owner: | BOWE PATRICK R & MELISSA A | | |
| % Ownership: | 100.0000000000% | | |
| Total Value: | $665,960 | | |
| Tax Area: | 101 - 140-4 |
| CERFD | CURRENT EXPENSE REFUND 010 | 0.0000000000 | $470,020 | $470,020 | $0.00 | | |
| CURREXP | CURRENT EXPENSE 010 | 1.0175366760 | $470,020 | $470,020 | $478.26 | | |
| HUMNSERV | HUMAN SERVICES 119 | 0.0250000000 | $470,020 | $470,020 | $11.75 | | |
| SLDREL | SOLDIERS RELIEF 121 | 0.0155990005 | $470,020 | $470,020 | $7.33 | | |
| EMERGSER | EMS 147 | 0.3792580840 | $470,020 | $470,020 | $178.26 | | |
| EMSRFD | EMS REFUND 147 | 0.0000000000 | $470,020 | $470,020 | $0.00 | | |
| FD4EXP | FD #4 EXPENSE 686 | 0.8836993059 | $470,020 | $470,020 | $415.36 | | |
| RLBRFD | RURAL LIBRARY REFUND 623 | 0.0000000000 | $470,020 | $470,020 | $0.00 | | |
| RURALLIB | RURAL LIBRARY 623 | 0.3710609029 | $470,020 | $470,020 | $174.41 | | |
| PORTRFD | PORT REFUND 640 | 0.0000000000 | $470,020 | $470,020 | $0.00 | | |
| PORTWWGEN | PORT OF WW 640 | 0.2460186015 | $470,020 | $470,020 | $115.63 | | |
| SD140BOND | SD #140 BOND 764 | 0.8342371393 | $470,020 | $470,020 | $392.11 | | |
| SD140GEN | SD #140 GENERAL 760 | 2.0646500647 | $470,020 | $470,020 | $970.43 | | |
| ST2 | STATE SCHOOL PART 2 600 | 0.8131451643 | $470,020 | $470,020 | $382.19 | | |
| STATESCHL | STATE SCHOOL 600 | 1.5158548041 | $470,020 | $470,020 | $712.48 | | |
| STREFUND | STATE REFUND LEVY 603 | 0.0000000000 | $470,020 | $470,020 | $0.00 | | |
| COROAD | COUNTY ROAD 115 | 1.6549953990 | $470,020 | $470,020 | $777.88 | | |
| CRPRD | COUNTY ROAD REFUND 115 | 0.0000000000 | $470,020 | $470,020 | $0.00 | | |
| | Total Tax Rate: | 9.8210551422 | | | | | |
| | | | | Taxes w/Current Exemptions: | $4,616.09 | | |
| | | | | Taxes w/o Exemptions: | $4,616.09 | | |
Improvement / Building
| Improvement #1: | RESIDENTIAL | State Code: | 83 | 4144.0 sqft | Value: | $458,300 |
| Exterior Wall: | HARDBOARD | Heating/Cooling: | WARM & COOLED AIR | | Number of Bathrooms: | 2.5 | Number of Bedrooms: | 5 | | Plumbing: | 14 | Roof Covering: | COMP SHINGLE |
|
| | Type | Description | Class CD | Sub Class CD | Year Built | Area |
| | MA | Main Area | 4 | 40 | 2013 | 4144.0 |
| | ATG | Attached Garage | 4 | 40 | 2013 | 774.0 |
| | SI1 | SITE IMPROVEMENT | 4 | 40 | 2013 | 4.0 |
| | WDR | WOOD DECK W/ROOF | 4 | 40 | 2013 | 768.0 |
| | S1F | Single One Story Fireplace | 4 | 40 | 2013 | 1.0 |
| | UPFL | Upper Floor (included in main area) | 4 | 40 | 2013 | 1761.0 |
| | POL3 | POLE BUILDING-CON,ELEC,INSU | 1 | 30 | 2020 | 1920.0 |
| | BON3 | BONUS RM DET/MIN OR NO FINISH | 1 | 30 | 2013 | 560.0 |
| | LEAN TO | LEAN TO | 1 | 30 | 2013 | 480.0 |
| | RPC | OPEN PORCH W/ROOF , CEILED | 1 | 30 | 2013 | 72.0 |
Sketch
Property Image
Land
| 1 | RIVER WALK | River Walk | 9.0100 | 0.00 | 0.00 | 0.00 | 1.00 | $57,660 | $11,350 |
| 2 | 15-HS | HOMESITE 150,000 | 1.0000 | 0.00 | 0.00 | 0.00 | 1.00 | $150,000 | $370 |
Roll Value History
| 2025 | N/A | N/A | N/A | N/A | N/A |
| 2024 | $458,300 | $207,660 | $11,860 | $470,160 | $470,160 |
| 2023 | $458,300 | $207,660 | $11,720 | $470,020 | $470,020 |
| 2022 | $458,300 | $207,660 | $11,530 | $469,830 | $469,830 |
| 2021 | $458,300 | $207,660 | $11,530 | $469,830 | $469,830 |
| 2020 | $379,970 | $118,250 | $84,120 | $464,090 | $464,090 |
| 2019 | $379,970 | $118,250 | $84,400 | $464,370 | $464,370 |
| 2018 | $379,970 | $111,040 | $84,580 | $464,550 | $464,550 |
| 2017 | $379,970 | $111,040 | $84,880 | $464,850 | $464,850 |
| 2016 | $379,970 | $111,040 | $84,920 | $464,890 | $464,890 |
| 2015 | $297,500 | $111,040 | $84,040 | $381,540 | $381,540 |
| 2014 | $297,500 | $111,040 | $84,450 | $381,950 | $381,950 |
| 2013 | $0 | $96,000 | $22,729 | $82,700 | $82,700 |
| 2012 | $0 | $6,500 | $0 | $0 | $0 |
| 2011 | $0 | $6,300 | $0 | $0 | $0 |
| 2010 | $0 | $6,500 | $0 | $0 | $0 |
| 2009 | $0 | $91,100 | $0 | $0 | $0 |
| 2008 | $0 | $91,500 | $0 | $0 | $0 |
| 2007 | $0 | $6,300 | $0 | $0 | $0 |
| 2006 | $0 | $96,000 | $0 | $0 | $0 |
Deed and Sales History
| 1 | 03/02/2012 | WARRANTY D | WARRANTY DEED | ALDEN REAL ESTATE LLC | BOWE, PATRICK R & MELISSA A | | | $95,000.00 | 121471 | 2012-01776 |
| 2 | 12/10/2009 | WARRANTY D | WARRANTY DEED | ROFF, BRYAN & DANA | ALDEN REAL ESTATE LLC | | | | 117795 | 2009-11903 |
Payout Agreement
| No payout information available.. |