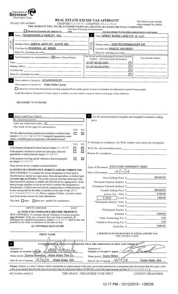
Property
Account |
| Property ID: | 33025 | Abbreviated Legal Description: | BELLA COURT LOT 4 |
| Parcel Number: | 350726750004 | Agent Code: | |
| Type: | Real | | |
| Tax Area: | 75 - CP 250 | Land Use Code | 11 |
| Open Space: | N | DFL | N |
| Historic Property: | N | Remodel Property: | N |
| Multi-Family Redevelopment: | N | | |
| Township: | 7 | Section: | 26 |
| Range: | 35 |
Location |
| Address: | 241 NW RUBY LN WA 99324 | Mapsco: | |
| Neighborhood: | A SFR | Map ID: | |
| Neighborhood CD: | 113011 |
Owner |
| Name: | STANLEY AMANDA L & MICHAEL | Owner ID: | 70767 |
| Mailing Address: | 241 NW RUBY LN COLLEGE PLACE, WA 99324 | % Ownership: | 100.0000000000% |
| | | Exemptions: | |
Taxes and Assessment Details
Values
| (+) Improvement Homesite Value: | + | $0 | |
| (+) Improvement Non-Homesite Value: | + | $362,190 | |
| (+) Land Homesite Value: | + | $0 | |
| (+) Land Non-Homesite Value: | + | $70,000 | |
| (+) Curr Use (HS): | + | $0 | $0 |
| (+) Curr Use (NHS): | + | $0 | $0 |
| | | -------------------------- | |
| (=) Market Value: | = | $432,190 | |
| (–) Productivity Loss: | – | $0 | |
| | | -------------------------- | |
| (=) Subtotal: | = | $432,190 | |
| (+) Senior Appraised Value: | + | $0 | |
| (+) Non-Senior Appraised Value: | + | $432,190 | |
| | | -------------------------- | |
| (=) Total Appraised Value: | = | $432,190 | |
| (–) Senior Exemption Loss: | – | $0 | |
| (–) Exemption Loss: | – | $0 | |
| | | -------------------------- | |
| (=) Taxable Value: | = | $432,190 | |
Taxing Jurisdiction
| Owner: | STANLEY AMANDA L & MICHAEL | | |
| % Ownership: | 100.0000000000% | | |
| Total Value: | $432,190 | | |
| Tax Area: | 75 - CP 250 |
| CERFD | CURRENT EXPENSE REFUND 010 | 0.0000000000 | $432,190 | $432,190 | $0.00 | | |
| CURREXP | CURRENT EXPENSE 010 | 1.0175366760 | $432,190 | $432,190 | $439.77 | | |
| HUMNSERV | HUMAN SERVICES 119 | 0.0250000000 | $432,190 | $432,190 | $10.80 | | |
| SLDREL | SOLDIERS RELIEF 121 | 0.0155990005 | $432,190 | $432,190 | $6.74 | | |
| COLLPLBOND | C OF CP BOND 644 | 0.4374241808 | $432,190 | $432,190 | $189.05 | | |
| COLLPLGEN | CITY OF CP 632 | 1.4453819216 | $432,190 | $432,190 | $624.68 | | |
| EMERGSER | EMS 147 | 0.3792580840 | $432,190 | $432,190 | $163.91 | | |
| EMSRFD | EMS REFUND 147 | 0.0000000000 | $432,190 | $432,190 | $0.00 | | |
| RURALLIB | RURAL LIBRARY 623 | 0.3710609029 | $432,190 | $432,190 | $160.37 | | |
| PORTRFD | PORT REFUND 640 | 0.0000000000 | $432,190 | $432,190 | $0.00 | | |
| PORTWWGEN | PORT OF WW 640 | 0.2460186015 | $432,190 | $432,190 | $106.33 | | |
| SD250BOND | SD #250 BOND 773 | 1.4560608159 | $432,190 | $432,190 | $629.29 | | |
| SD250GEN | SD #250 GENERAL 770 | 2.3880724087 | $432,190 | $432,190 | $1,032.10 | | |
| ST2 | STATE SCHOOL PART 2 600 | 0.8131451643 | $432,190 | $432,190 | $351.43 | | |
| STATESCHL | STATE SCHOOL 600 | 1.5158548041 | $432,190 | $432,190 | $655.14 | | |
| STREFUND | STATE REFUND LEVY 603 | 0.0000000000 | $432,190 | $432,190 | $0.00 | | |
| | Total Tax Rate: | 10.1104125603 | | | | | |
| | | | | Taxes w/Current Exemptions: | $4,369.61 | | |
| | | | | Taxes w/o Exemptions: | $4,369.61 | | |
Improvement / Building
| Improvement #1: | RESIDENTIAL | State Code: | 11 | 2016.0 sqft | Value: | $362,190 |
| Exterior Wall: | PLYWOOD | Heating/Cooling: | WARM & COOLED AIR | | Number of Bathrooms: | 2.5 | Number of Bedrooms: | 4 | | Plumbing: | 11 |   |   |
|
| | Type | Description | Class CD | Sub Class CD | Year Built | Area |
| | MA | Main Area | 2 | 30 | 2006 | 2016.0 |
| | SI1 | SITE IMPROVEMENT | 2 | 30 | 2006 | 2.0 |
| | UPFL | Upper Floor (included in main area) | 2 | 30 | 2006 | 1008.0 |
| | ATG | Attached Garage | 2 | 30 | 2006 | 672.0 |
| | RPC | OPEN PORCH W/ROOF , CEILED | 2 | 30 | 2006 | 156.0 |
| | GFP | GAS FIREPLACE | 2 | 30 | 2006 | 1.0 |
Sketch
Property Image
Land
| 1 | RES 1 | Converted: Residential | 0.1428 | 6219.00 | 0.00 | 0.00 | 1.00 | $70,000 | $0 |
Roll Value History
| 2025 | N/A | N/A | N/A | N/A | N/A |
| 2024 | $362,190 | $70,000 | $0 | $432,190 | $432,190 |
| 2023 | $362,190 | $70,000 | $0 | $432,190 | $432,190 |
| 2022 | $344,940 | $70,000 | $0 | $414,940 | $414,940 |
| 2021 | $246,390 | $70,000 | $0 | $316,390 | $316,390 |
| 2020 | $175,990 | $70,000 | $0 | $245,990 | $245,990 |
| 2019 | $190,990 | $55,000 | $0 | $245,990 | $245,990 |
| 2018 | $159,160 | $55,000 | $0 | $214,160 | $214,160 |
| 2017 | $151,580 | $55,000 | $0 | $206,580 | $206,580 |
| 2016 | $137,800 | $55,000 | $0 | $192,800 | $192,800 |
| 2015 | $137,800 | $55,000 | $0 | $192,800 | $192,800 |
| 2014 | $137,800 | $55,000 | $0 | $192,800 | $192,800 |
| 2013 | $137,800 | $55,000 | $0 | $192,800 | $192,800 |
| 2012 | $137,800 | $55,000 | $0 | $0 | $0 |
| 2011 | $147,900 | $55,000 | $0 | $0 | $0 |
| 2010 | $147,900 | $55,000 | $0 | $0 | $0 |
| 2009 | $170,400 | $55,000 | $0 | $0 | $0 |
| 2008 | $166,000 | $45,000 | $0 | $0 | $0 |
| 2007 | $42,600 | $45,000 | $0 | $0 | $0 |
| 2006 | $0 | $4,400 | $0 | $0 | $0 |
Deed and Sales History
| 1 | 12/09/2021 | SWD | STATUTORY WARRANTY DEED | JOHNSON CALEB J & HEIDI R | STANLEY AMANDA L & MICHAEL | | | $439,000.00 | 143025 | 2021-14505 |
| 2 | 11/01/2012 | WARRANTY D | WARRANTY DEED | FEDERAL HOME LOAN MORTGAGE COR | JOHNSON, CALEB J & HEIDI R | | | $177,133.00 | 122930 | 2012-09713 |
| 3 | 02/17/2012 | WARRANTY D | WARRANTY DEED | NORTHWEST TRUSTEE SERVICES INC | FEDERAL HOME LOAN MORTGAGE COR | | | $234,113.00 | 121407 | 2012-01386 |
| 4 | 10/19/2007 | WARRANTY D | WARRANTY DEED | MAJERUS, DOUGLAS | RUIZ, FRANCISCO J | | | $229,900.00 | 113924 | 2007-12209 |
| 5 | 06/15/2006 | WARRANTY D | WARRANTY DEED | HOOVER, KENT & BRENDA | MAJERUS, DOUGLAS | | | $50,000.00 | 110514 | 2006-06919 |
Payout Agreement
| No payout information available.. |