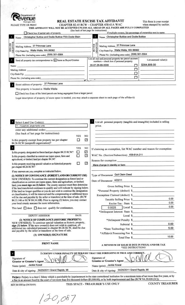
Property
Account |
| Property ID: | 32938 | Abbreviated Legal Description: | 33-7-35 LOT 1-A OF SHORT PLAT (PTN IN SW1/4SE1/4) |
| Parcel Number: | 350733430009 | Agent Code: | |
| Type: | Real | | |
| Tax Area: | 311 - 250-4 | Land Use Code | 11 |
| Open Space: | N | DFL | N |
| Historic Property: | N | Remodel Property: | N |
| Multi-Family Redevelopment: | N | | |
| Township: | 7 | Section: | 33 |
| Range: | 35 |
Location |
| Address: | 201 NARCISSA PL WA 99324 | Mapsco: | |
| Neighborhood: | VG SFR Rural/City Inf | Map ID: | |
| Neighborhood CD: | 115012 |
Owner |
| Name: | BEAMER DOUGLAS J & JANET K | Owner ID: | 59482 |
| Mailing Address: | 201 NARCISSA PL WALLA WALLA, WA 99362 | % Ownership: | 100.0000000000% |
| | | Exemptions: | |
Taxes and Assessment Details
Values
| (+) Improvement Homesite Value: | + | $0 | |
| (+) Improvement Non-Homesite Value: | + | $467,600 | |
| (+) Land Homesite Value: | + | $0 | |
| (+) Land Non-Homesite Value: | + | $160,000 | |
| (+) Curr Use (HS): | + | $0 | $0 |
| (+) Curr Use (NHS): | + | $0 | $0 |
| | | -------------------------- | |
| (=) Market Value: | = | $627,600 | |
| (–) Productivity Loss: | – | $0 | |
| | | -------------------------- | |
| (=) Subtotal: | = | $627,600 | |
| (+) Senior Appraised Value: | + | $0 | |
| (+) Non-Senior Appraised Value: | + | $627,600 | |
| | | -------------------------- | |
| (=) Total Appraised Value: | = | $627,600 | |
| (–) Senior Exemption Loss: | – | $0 | |
| (–) Exemption Loss: | – | $0 | |
| | | -------------------------- | |
| (=) Taxable Value: | = | $627,600 | |
Taxing Jurisdiction
| Owner: | BEAMER DOUGLAS J & JANET K | | |
| % Ownership: | 100.0000000000% | | |
| Total Value: | $627,600 | | |
| Tax Area: | 311 - 250-4 |
| CERFD | CURRENT EXPENSE REFUND 010 | 0.0000000000 | $627,600 | $627,600 | $0.00 | | |
| CURREXP | CURRENT EXPENSE 010 | 1.0175366760 | $627,600 | $627,600 | $638.61 | | |
| HUMNSERV | HUMAN SERVICES 119 | 0.0250000000 | $627,600 | $627,600 | $15.69 | | |
| SLDREL | SOLDIERS RELIEF 121 | 0.0155990005 | $627,600 | $627,600 | $9.79 | | |
| EMERGSER | EMS 147 | 0.3792580840 | $627,600 | $627,600 | $238.02 | | |
| EMSRFD | EMS REFUND 147 | 0.0000000000 | $627,600 | $627,600 | $0.00 | | |
| FD4EXP | FD #4 EXPENSE 686 | 0.8836993059 | $627,600 | $627,600 | $554.61 | | |
| RLBRFD | RURAL LIBRARY REFUND 623 | 0.0000000000 | $627,600 | $627,600 | $0.00 | | |
| RURALLIB | RURAL LIBRARY 623 | 0.3710609029 | $627,600 | $627,600 | $232.88 | | |
| PORTRFD | PORT REFUND 640 | 0.0000000000 | $627,600 | $627,600 | $0.00 | | |
| PORTWWGEN | PORT OF WW 640 | 0.2460186015 | $627,600 | $627,600 | $154.40 | | |
| SD250BOND | SD #250 BOND 773 | 1.4560608159 | $627,600 | $627,600 | $913.82 | | |
| SD250GEN | SD #250 GENERAL 770 | 2.3880724087 | $627,600 | $627,600 | $1,498.75 | | |
| ST2 | STATE SCHOOL PART 2 600 | 0.8131451643 | $627,600 | $627,600 | $510.33 | | |
| STATESCHL | STATE SCHOOL 600 | 1.5158548041 | $627,600 | $627,600 | $951.35 | | |
| STREFUND | STATE REFUND LEVY 603 | 0.0000000000 | $627,600 | $627,600 | $0.00 | | |
| COROAD | COUNTY ROAD 115 | 1.6549953990 | $627,600 | $627,600 | $1,038.68 | | |
| CRPRD | COUNTY ROAD REFUND 115 | 0.0000000000 | $627,600 | $627,600 | $0.00 | | |
| | Total Tax Rate: | 10.7663011628 | | | | | |
| | | | | Taxes w/Current Exemptions: | $6,756.93 | | |
| | | | | Taxes w/o Exemptions: | $6,756.93 | | |
Improvement / Building
| Improvement #1: | RESIDENTIAL | State Code: | 11 | 2322.0 sqft | Value: | $467,600 |
| Exterior Wall: | STUCCO | Heating/Cooling: | HEAT PUMP | | Number of Bathrooms: | 2 | Number of Bedrooms: | 3 | | Plumbing: | 13 | Roof Covering: | COMP SHINGLE |
|
| | Type | Description | Class CD | Sub Class CD | Year Built | Area |
| | MA | Main Area | 1 | 50 | 2015 | 2322.0 |
| | ATG | Attached Garage | 1 | 50 | 2015 | 783.0 |
| | RPC | OPEN PORCH W/ROOF , CEILED | 1 | 50 | 2015 | 216.0 |
| | SI1 | SITE IMPROVEMENT | 1 | 50 | 2015 | 5.5 |
| | RPC | OPEN PORCH W/ROOF , CEILED | 1 | 50 | 2015 | 60.0 |
| | GFP | GAS FIREPLACE | 1 | 50 | 2015 | 1.0 |
| | DTG | Detached Garage | 1 | 30 | 2015 | 952.0 |
Sketch
Property Image
Land
| 1 | RES 1 | Converted: Residential | 1.6300 | 71002.80 | 0.00 | 0.00 | 1.00 | $160,000 | $0 |
Roll Value History
| 2025 | N/A | N/A | N/A | N/A | N/A |
| 2024 | $467,600 | $160,000 | $0 | $627,600 | $627,600 |
| 2023 | $467,600 | $160,000 | $0 | $627,600 | $627,600 |
| 2022 | $467,600 | $160,000 | $0 | $627,600 | $627,600 |
| 2021 | $467,600 | $160,000 | $0 | $627,600 | $627,600 |
| 2020 | $425,090 | $160,000 | $0 | $585,090 | $585,090 |
| 2019 | $475,090 | $110,000 | $0 | $585,090 | $585,090 |
| 2018 | $431,900 | $110,000 | $0 | $541,900 | $541,900 |
| 2017 | $402,960 | $110,000 | $0 | $512,960 | $512,960 |
| 2016 | $335,800 | $110,000 | $0 | $445,800 | $445,800 |
| 2015 | $335,800 | $110,000 | $0 | $445,800 | $445,800 |
| 2014 | $0 | $110,000 | $0 | $110,000 | $110,000 |
| 2013 | $0 | $110,000 | $0 | $110,000 | $110,000 |
| 2012 | $0 | $132,500 | $0 | $0 | $0 |
| 2011 | $0 | $132,500 | $0 | $0 | $0 |
| 2010 | $0 | $132,500 | $0 | $0 | $0 |
| 2009 | $0 | $132,500 | $0 | $0 | $0 |
| 2008 | $0 | $3,700 | $0 | $0 | $0 |
| 2007 | $0 | $3,700 | $0 | $0 | $0 |
| 2006 | $0 | $3,700 | $0 | $0 | $0 |
Deed and Sales History
| 1 | 08/24/2016 | SWD | STATUTORY WARRANTY DEED | HATCH ROBERT T & MARTHA L | BEAMER DOUGLAS J & JANET K | | | $535,000.00 | 130878 | 2016-06783 |
| 2 | 05/06/2014 | SWD | STATUTORY WARRANTY DEED | THAD SIRMON REAL ESTATE LLC | HATCH ROBERT T & MARTHA L | | | $120,000.00 | 125839 | 2014-03098 |
| 3 | 02/02/2012 | WARRANTY D | WARRANTY DEED | BUSBY, KENNETH & KAREN A | THAD SIRMON REAL ESTATE LLC | | | $114,000.00 | 121359 | 2012-00957 |
| 4 | 04/17/2007 | WARRANTY D | WARRANTY DEED | LOCATI, AMBROSE J JR | BUSBY, KENNETH & KAREN A | | | $135,000.00 | 112640 | 2007-04256 |
Payout Agreement
| No payout information available.. |