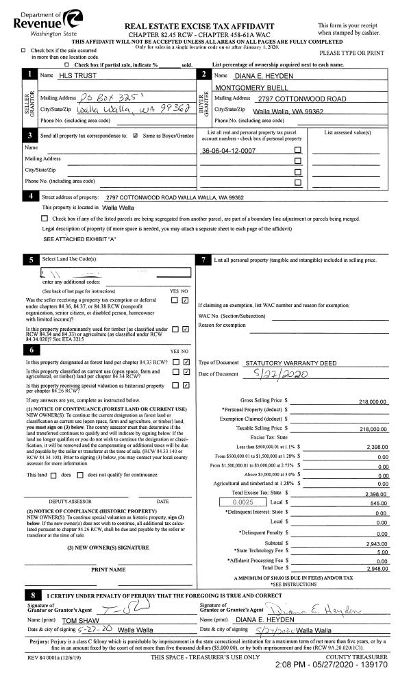
Property
Account |
| Property ID: | 3289 | Abbreviated Legal Description: | ROLLING HILLS ESTATES #3 LOT 12 |
| Parcel Number: | 350603590012 | Agent Code: | |
| Type: | Real | | |
| Tax Area: | 311 - 250-4 | Land Use Code | 11 |
| Open Space: | N | DFL | N |
| Historic Property: | N | Remodel Property: | N |
| Multi-Family Redevelopment: | N | | |
| Township: | 6 | Section: | 3 |
| Range: | 35 |
Location |
| Address: | 594 SNIDER DR WA 99324 | Mapsco: | |
| Neighborhood: | VG SFR RURAL | Map ID: | |
| Neighborhood CD: | 215013 |
Owner |
| Name: | AAMODT LARRY D & TERRY D | Owner ID: | 2426 |
| Mailing Address: | 594 SNIDER DR WALLA WALLA, WA 99362 | % Ownership: | 100.0000000000% |
| | | Exemptions: | |
Taxes and Assessment Details
Values
| (+) Improvement Homesite Value: | + | $0 | |
| (+) Improvement Non-Homesite Value: | + | $452,250 | |
| (+) Land Homesite Value: | + | $0 | |
| (+) Land Non-Homesite Value: | + | $155,950 | |
| (+) Curr Use (HS): | + | $0 | $0 |
| (+) Curr Use (NHS): | + | $0 | $0 |
| | | -------------------------- | |
| (=) Market Value: | = | $608,200 | |
| (–) Productivity Loss: | – | $0 | |
| | | -------------------------- | |
| (=) Subtotal: | = | $608,200 | |
| (+) Senior Appraised Value: | + | $0 | |
| (+) Non-Senior Appraised Value: | + | $608,200 | |
| | | -------------------------- | |
| (=) Total Appraised Value: | = | $608,200 | |
| (–) Senior Exemption Loss: | – | $0 | |
| (–) Exemption Loss: | – | $0 | |
| | | -------------------------- | |
| (=) Taxable Value: | = | $608,200 | |
Taxing Jurisdiction
| Owner: | AAMODT LARRY D & TERRY D | | |
| % Ownership: | 100.0000000000% | | |
| Total Value: | $608,200 | | |
| Tax Area: | 311 - 250-4 |
| CERFD | CURRENT EXPENSE REFUND 010 | 0.0000000000 | $608,200 | $608,200 | $0.00 | | |
| CURREXP | CURRENT EXPENSE 010 | 1.0175366760 | $608,200 | $608,200 | $618.87 | | |
| HUMNSERV | HUMAN SERVICES 119 | 0.0250000000 | $608,200 | $608,200 | $15.21 | | |
| SLDREL | SOLDIERS RELIEF 121 | 0.0155990005 | $608,200 | $608,200 | $9.49 | | |
| EMERGSER | EMS 147 | 0.3792580840 | $608,200 | $608,200 | $230.66 | | |
| EMSRFD | EMS REFUND 147 | 0.0000000000 | $608,200 | $608,200 | $0.00 | | |
| FD4EXP | FD #4 EXPENSE 686 | 0.8836993059 | $608,200 | $608,200 | $537.47 | | |
| RLBRFD | RURAL LIBRARY REFUND 623 | 0.0000000000 | $608,200 | $608,200 | $0.00 | | |
| RURALLIB | RURAL LIBRARY 623 | 0.3710609029 | $608,200 | $608,200 | $225.68 | | |
| PORTRFD | PORT REFUND 640 | 0.0000000000 | $608,200 | $608,200 | $0.00 | | |
| PORTWWGEN | PORT OF WW 640 | 0.2460186015 | $608,200 | $608,200 | $149.63 | | |
| SD250BOND | SD #250 BOND 773 | 1.4560608159 | $608,200 | $608,200 | $885.58 | | |
| SD250GEN | SD #250 GENERAL 770 | 2.3880724087 | $608,200 | $608,200 | $1,452.43 | | |
| ST2 | STATE SCHOOL PART 2 600 | 0.8131451643 | $608,200 | $608,200 | $494.55 | | |
| STATESCHL | STATE SCHOOL 600 | 1.5158548041 | $608,200 | $608,200 | $921.94 | | |
| STREFUND | STATE REFUND LEVY 603 | 0.0000000000 | $608,200 | $608,200 | $0.00 | | |
| COROAD | COUNTY ROAD 115 | 1.6549953990 | $608,200 | $608,200 | $1,006.57 | | |
| CRPRD | COUNTY ROAD REFUND 115 | 0.0000000000 | $608,200 | $608,200 | $0.00 | | |
| | Total Tax Rate: | 10.7663011628 | | | | | |
| | | | | Taxes w/Current Exemptions: | $6,548.08 | | |
| | | | | Taxes w/o Exemptions: | $6,548.08 | | |
Improvement / Building
| Improvement #1: | RESIDENTIAL | State Code: | 11 | 1879.0 sqft | Value: | $452,250 |
| Exterior Wall: | PLYWOOD | Heating/Cooling: | WARM & COOLED AIR | | Number of Bathrooms: | 2 | Number of Bedrooms: | 3 | | Plumbing: | 9 | Roof Covering: | COMP SHINGLE |
|
| | Type | Description | Class CD | Sub Class CD | Year Built | Area |
| | MA | Main Area | 4 | 30 | 1991 | 1879.0 |
| | SI1 | SITE IMPROVEMENT | 4 | 30 | 1991 | 2.5 |
| | BASE | BASEMENT | 4 | 30 | 1991 | 1295.0 |
| | BLW | WOOD BALCONIES | 4 | 30 | 1991 | 135.0 |
| | LOFT | Loft Area | 4 | 30 | 1991 | 210.0 |
| | BIG | Built In Garage | 4 | 30 | 1991 | 782.0 |
| | UPFL | Upper Floor (included in main area) | 4 | 30 | 1991 | 584.0 |
Sketch
Property Image
Land
| 1 | RES 1 | Converted: Residential | 1.6400 | 0.00 | 0.00 | 0.00 | 1.00 | $155,950 | $0 |
Roll Value History
| 2025 | N/A | N/A | N/A | N/A | N/A |
| 2024 | $474,870 | $155,950 | $0 | $630,820 | $630,820 |
| 2023 | $452,250 | $155,950 | $0 | $608,200 | $608,200 |
| 2022 | $347,890 | $155,950 | $0 | $503,840 | $503,840 |
| 2021 | $217,430 | $155,950 | $0 | $373,380 | $373,380 |
| 2020 | $211,490 | $92,600 | $0 | $304,090 | $304,090 |
| 2019 | $211,490 | $92,600 | $0 | $304,090 | $304,090 |
| 2018 | $211,490 | $92,600 | $0 | $304,090 | $304,090 |
| 2017 | $211,490 | $92,600 | $0 | $304,090 | $304,090 |
| 2016 | $183,900 | $92,600 | $0 | $276,500 | $276,500 |
| 2015 | $183,900 | $92,600 | $0 | $276,500 | $276,500 |
| 2014 | $183,900 | $92,600 | $0 | $276,500 | $276,500 |
| 2013 | $183,900 | $92,600 | $0 | $276,500 | $276,500 |
| 2012 | $183,900 | $92,600 | $0 | $0 | $0 |
| 2011 | $153,900 | $122,600 | $0 | $0 | $0 |
| 2010 | $153,900 | $122,600 | $0 | $0 | $0 |
| 2009 | $222,400 | $47,600 | $0 | $0 | $0 |
| 2008 | $160,100 | $47,600 | $0 | $0 | $0 |
| 2007 | $160,100 | $47,600 | $0 | $0 | $0 |
| 2006 | $160,100 | $47,600 | $0 | $0 | $0 |
Deed and Sales History
| 1 | 05/01/1988 | WARRANTY D | WARRANTY DEED | | | | | $15,500.00 | 0 | 1708-803408 |
Payout Agreement
| No payout information available.. |