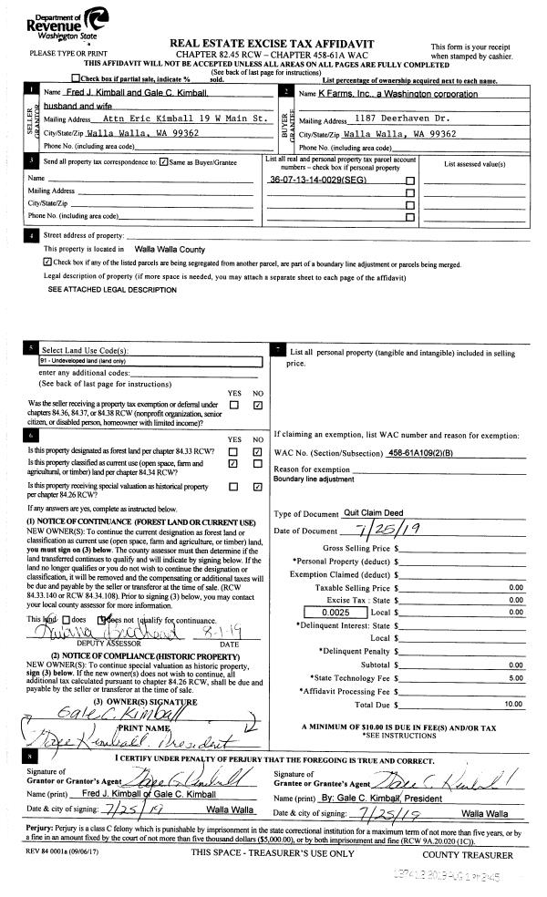
Property
Account |
| Property ID: | 32876 | Abbreviated Legal Description: | BLALOCK ORCHARDS BLK 39 AMENDED TRACT A OF S/P (PTN OF ABAND. RR;LOT 9 & PTN LOT 8) LESS PTN TO CITY OF CP FOR RD RIGHT OF WAY AREA |
| Parcel Number: | 350726523973 | Agent Code: | |
| Type: | Real | | |
| Tax Area: | 75 - CP 250 | Land Use Code | 25 |
| Open Space: | N | DFL | N |
| Historic Property: | N | Remodel Property: | N |
| Multi-Family Redevelopment: | N | | |
| Township: | 7 | Section: | 26 |
| Range: | 35 |
Location |
| Address: | 400 W WHITMAN DR WA 99324 | Mapsco: | |
| Neighborhood: | CP CITY | Map ID: | |
| Neighborhood CD: | 1342 |
Owner |
| Name: | SMITH ROBERT M & SUSAN B | Owner ID: | 39689 |
| Mailing Address: | 915 BRICKNER RD COLLEGE PLACE, WA 99324 | % Ownership: | 100.0000000000% |
| | | Exemptions: | |
Taxes and Assessment Details
Values
| (+) Improvement Homesite Value: | + | $0 | |
| (+) Improvement Non-Homesite Value: | + | $890,400 | |
| (+) Land Homesite Value: | + | $0 | |
| (+) Land Non-Homesite Value: | + | $357,800 | |
| (+) Curr Use (HS): | + | $0 | $0 |
| (+) Curr Use (NHS): | + | $0 | $0 |
| | | -------------------------- | |
| (=) Market Value: | = | $1,248,200 | |
| (–) Productivity Loss: | – | $0 | |
| | | -------------------------- | |
| (=) Subtotal: | = | $1,248,200 | |
| (+) Senior Appraised Value: | + | $0 | |
| (+) Non-Senior Appraised Value: | + | $1,248,200 | |
| | | -------------------------- | |
| (=) Total Appraised Value: | = | $1,248,200 | |
| (–) Senior Exemption Loss: | – | $0 | |
| (–) Exemption Loss: | – | $0 | |
| | | -------------------------- | |
| (=) Taxable Value: | = | $1,248,200 | |
Taxing Jurisdiction
| Owner: | SMITH ROBERT M & SUSAN B | | |
| % Ownership: | 100.0000000000% | | |
| Total Value: | $1,248,200 | | |
| Tax Area: | 75 - CP 250 |
| CERFD | CURRENT EXPENSE REFUND 010 | 0.0000000000 | $1,248,200 | $1,248,200 | $0.00 | | |
| CURREXP | CURRENT EXPENSE 010 | 1.0175366760 | $1,248,200 | $1,248,200 | $1,270.09 | | |
| HUMNSERV | HUMAN SERVICES 119 | 0.0250000000 | $1,248,200 | $1,248,200 | $31.21 | | |
| SLDREL | SOLDIERS RELIEF 121 | 0.0155990005 | $1,248,200 | $1,248,200 | $19.47 | | |
| COLLPLBOND | C OF CP BOND 644 | 0.4374241808 | $1,248,200 | $1,248,200 | $545.99 | | |
| COLLPLGEN | CITY OF CP 632 | 1.4453819216 | $1,248,200 | $1,248,200 | $1,804.13 | | |
| EMERGSER | EMS 147 | 0.3792580840 | $1,248,200 | $1,248,200 | $473.39 | | |
| EMSRFD | EMS REFUND 147 | 0.0000000000 | $1,248,200 | $1,248,200 | $0.00 | | |
| RURALLIB | RURAL LIBRARY 623 | 0.3710609029 | $1,248,200 | $1,248,200 | $463.16 | | |
| PORTRFD | PORT REFUND 640 | 0.0000000000 | $1,248,200 | $1,248,200 | $0.00 | | |
| PORTWWGEN | PORT OF WW 640 | 0.2460186015 | $1,248,200 | $1,248,200 | $307.08 | | |
| SD250BOND | SD #250 BOND 773 | 1.4560608159 | $1,248,200 | $1,248,200 | $1,817.46 | | |
| SD250GEN | SD #250 GENERAL 770 | 2.3880724087 | $1,248,200 | $1,248,200 | $2,980.79 | | |
| ST2 | STATE SCHOOL PART 2 600 | 0.8131451643 | $1,248,200 | $1,248,200 | $1,014.97 | | |
| STATESCHL | STATE SCHOOL 600 | 1.5158548041 | $1,248,200 | $1,248,200 | $1,892.09 | | |
| STREFUND | STATE REFUND LEVY 603 | 0.0000000000 | $1,248,200 | $1,248,200 | $0.00 | | |
| | Total Tax Rate: | 10.1104125603 | | | | | |
| | | | | Taxes w/Current Exemptions: | $12,619.83 | | |
| | | | | Taxes w/o Exemptions: | $12,619.83 | | |
Improvement / Building
| Improvement #1: | COMMERCIAL | State Code: | 25 | 66040.0 sqft | Value: | $890,400 |
| | Type | Description | Class CD | Sub Class CD | Year Built | Area |
| | MA | Main Area | D | | 1979 | 66040.0 |
| | SI1 | SITE IMPROVEMENT | D | * | 1979 | 10.0 |
| | CPC | COVERED CARPORT/PATIO | D | * | 1979 | 800.0 |
| | UTST | Utility Storage Shed | D | * | 1979 | 704.0 |
Sketch
Property Image
Land
| 1 | COM 1 | Converted: Commercial | 3.6500 | 0.00 | 0.00 | 0.00 | 1.00 | $357,800 | $0 |
Roll Value History
| 2025 | N/A | N/A | N/A | N/A | N/A |
| 2024 | $890,400 | $357,800 | $0 | $1,248,200 | $1,248,200 |
| 2023 | $890,400 | $357,800 | $0 | $1,248,200 | $1,248,200 |
| 2022 | $890,400 | $357,800 | $0 | $1,248,200 | $1,248,200 |
| 2021 | $890,400 | $357,800 | $0 | $1,248,200 | $1,248,200 |
| 2020 | $890,400 | $357,800 | $0 | $1,248,200 | $1,248,200 |
| 2019 | $890,400 | $357,800 | $0 | $1,248,200 | $1,248,200 |
| 2018 | $890,400 | $357,800 | $0 | $1,248,200 | $1,248,200 |
| 2017 | $890,400 | $357,800 | $0 | $1,248,200 | $1,248,200 |
| 2016 | $890,400 | $357,800 | $0 | $1,248,200 | $1,248,200 |
| 2015 | $890,400 | $357,800 | $0 | $1,248,200 | $1,248,200 |
| 2014 | $890,400 | $357,800 | $0 | $1,248,200 | $1,248,200 |
| 2013 | $890,400 | $357,800 | $0 | $1,248,200 | $1,248,200 |
| 2012 | $890,400 | $357,800 | $0 | $0 | $0 |
| 2011 | $890,400 | $357,800 | $0 | $0 | $0 |
| 2010 | $890,400 | $357,800 | $0 | $0 | $0 |
| 2009 | $890,400 | $357,800 | $0 | $0 | $0 |
| 2008 | $719,700 | $87,400 | $0 | $0 | $0 |
| 2007 | $719,700 | $87,400 | $0 | $0 | $0 |
| 2006 | $719,700 | $87,400 | $0 | $0 | $0 |
Deed and Sales History
| 1 | 10/27/2017 | SWD | STATUTORY WARRANTY DEED | LARSON HAL D | SMITH ROBERT M & SUSAN B | | | $2,330,000.00 | 133516 | 2017-08643 |
| 2 | 08/05/2015 | DEATH CERT | DEATH CERTIFICATE | LARSON HAL & PHYLLIS | LARSON HAL D | | | | 0 | 2015-06748 |
| 3 | 08/05/2015 | COMMUNITY | COMMUNITY PROPERTY AGREEMENT | LARSON HAL & PHYLLIS | LARSON HAL & PHYLLIS | | | | 0 | 2015-06749 |
| 4 | 01/09/2012 | WARRANTY D | WARRANTY DEED | LARSON, HAL & PHYLLIS | CITY OF COLLEGE PLACE | | | | 0 | 2012-00216 |
Payout Agreement
| No payout information available.. |