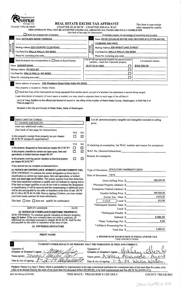
Property
Account |
| Property ID: | 32787 | Abbreviated Legal Description: | STONES LOT 6 BLK 1 |
| Parcel Number: | 360729830106 | Agent Code: | |
| Type: | Real | | |
| Tax Area: | 1 - OL-140-F | Land Use Code | 11 |
| Open Space: | N | DFL | N |
| Historic Property: | N | Remodel Property: | N |
| Multi-Family Redevelopment: | N | | |
| Township: | 7 | Section: | 29 |
| Range: | 36 |
Location |
| Address: | 1221 TILLAMOOK ST WA 99362 | Mapsco: | |
| Neighborhood: | A Res | Map ID: | |
| Neighborhood CD: | 613011 |
Owner |
| Name: | STANLEY TERRI L | Owner ID: | 51586 |
| Mailing Address: | 307 S 9TH AVE #151 WALLA WALLA, WA 99362 | % Ownership: | 100.0000000000% |
| | | Exemptions: | |
Taxes and Assessment Details
Values
| (+) Improvement Homesite Value: | + | $0 | |
| (+) Improvement Non-Homesite Value: | + | $218,830 | |
| (+) Land Homesite Value: | + | $0 | |
| (+) Land Non-Homesite Value: | + | $64,800 | |
| (+) Curr Use (HS): | + | $0 | $0 |
| (+) Curr Use (NHS): | + | $0 | $0 |
| | | -------------------------- | |
| (=) Market Value: | = | $283,630 | |
| (–) Productivity Loss: | – | $0 | |
| | | -------------------------- | |
| (=) Subtotal: | = | $283,630 | |
| (+) Senior Appraised Value: | + | $0 | |
| (+) Non-Senior Appraised Value: | + | $283,630 | |
| | | -------------------------- | |
| (=) Total Appraised Value: | = | $283,630 | |
| (–) Senior Exemption Loss: | – | $0 | |
| (–) Exemption Loss: | – | $0 | |
| | | -------------------------- | |
| (=) Taxable Value: | = | $283,630 | |
Taxing Jurisdiction
| Owner: | STANLEY TERRI L | | |
| % Ownership: | 100.0000000000% | | |
| Total Value: | $283,630 | | |
| Tax Area: | 1 - OL-140-F |
| CERFD | CURRENT EXPENSE REFUND 010 | 0.0000000000 | $283,630 | $283,630 | $0.00 | | |
| CURREXP | CURRENT EXPENSE 010 | 1.0175366760 | $283,630 | $283,630 | $288.60 | | |
| HUMNSERV | HUMAN SERVICES 119 | 0.0250000000 | $283,630 | $283,630 | $7.09 | | |
| SLDREL | SOLDIERS RELIEF 121 | 0.0155990005 | $283,630 | $283,630 | $4.42 | | |
| EMERGSER | EMS 147 | 0.3792580840 | $283,630 | $283,630 | $107.57 | | |
| EMSRFD | EMS REFUND 147 | 0.0000000000 | $283,630 | $283,630 | $0.00 | | |
| PORTRFD | PORT REFUND 640 | 0.0000000000 | $283,630 | $283,630 | $0.00 | | |
| PORTWWGEN | PORT OF WW 640 | 0.2460186015 | $283,630 | $283,630 | $69.78 | | |
| SD140BOND | SD #140 BOND 764 | 0.8342371393 | $283,630 | $283,630 | $236.61 | | |
| SD140GEN | SD #140 GENERAL 760 | 2.0646500647 | $283,630 | $283,630 | $585.60 | | |
| ST2 | STATE SCHOOL PART 2 600 | 0.8131451643 | $283,630 | $283,630 | $230.63 | | |
| STATESCHL | STATE SCHOOL 600 | 1.5158548041 | $283,630 | $283,630 | $429.94 | | |
| STREFUND | STATE REFUND LEVY 603 | 0.0000000000 | $283,630 | $283,630 | $0.00 | | |
| CWWBOND | C OF WW BOND 643 | 0.2760494372 | $283,630 | $283,630 | $78.30 | | |
| CWWGEN | CITY OF WW 631 | 1.6100204973 | $283,630 | $283,630 | $456.65 | | |
| CWWRFD | CITY OF WALLA WALLA REFUND 631 | 0.0000000000 | $283,630 | $283,630 | $0.00 | | |
| | Total Tax Rate: | 8.7973694689 | | | | | |
| | | | | Taxes w/Current Exemptions: | $2,495.19 | | |
| | | | | Taxes w/o Exemptions: | $2,495.19 | | |
Improvement / Building
| Improvement #1: | RESIDENTIAL | State Code: | 11 | 808.0 sqft | Value: | $218,830 |
| Exterior Wall: | HARDBOARD | Heating/Cooling: | WARM & COOLED AIR | | Number of Bathrooms: | 1 | Number of Bedrooms: | 2 | | Plumbing: | 6 | Roof Covering: | COMP SHINGLE |
|
| | Type | Description | Class CD | Sub Class CD | Year Built | Area |
| | MA | Main Area | 1 | 30 | 1947 | 808.0 |
| | SI1 | SITE IMPROVEMENT | 1 | 30 | 1947 | 1.5 |
| | BASE | BASEMENT | 1 | 30 | 1947 | 808.0 |
| | BRF | BASEMENT - REC FINISH | 1 | 30 | 1947 | 808.0 |
| | RPS | PORCH W/STEPS,ROOF | 1 | 30 | 1947 | 16.0 |
| | CPCS | CARPORT/SHED OR FLAT ROOF | 1 | 30 | 1947 | 513.0 |
Sketch
Property Image
Land
| 1 | RES 1 | Converted: Residential | 0.1653 | 7200.00 | 0.00 | 0.00 | 1.00 | $64,800 | $0 |
Roll Value History
| 2025 | N/A | N/A | N/A | N/A | N/A |
| 2024 | $218,830 | $64,800 | $0 | $283,630 | $283,630 |
| 2023 | $218,830 | $64,800 | $0 | $283,630 | $283,630 |
| 2022 | $198,930 | $52,200 | $0 | $251,130 | $251,130 |
| 2021 | $137,200 | $52,200 | $0 | $189,400 | $189,400 |
| 2020 | $119,300 | $52,200 | $0 | $171,500 | $171,500 |
| 2019 | $119,300 | $52,200 | $0 | $171,500 | $171,500 |
| 2018 | $103,610 | $43,200 | $0 | $146,810 | $146,810 |
| 2017 | $103,610 | $43,200 | $0 | $146,810 | $146,810 |
| 2016 | $103,610 | $43,200 | $0 | $146,810 | $146,810 |
| 2015 | $103,610 | $43,200 | $0 | $146,810 | $146,810 |
| 2014 | $79,700 | $43,200 | $0 | $122,900 | $122,900 |
| 2013 | $79,700 | $43,200 | $0 | $122,900 | $122,900 |
| 2012 | $98,600 | $43,200 | $0 | $0 | $0 |
| 2011 | $98,600 | $43,200 | $0 | $0 | $0 |
| 2010 | $65,900 | $43,200 | $0 | $0 | $0 |
| 2009 | $78,000 | $43,200 | $0 | $0 | $0 |
| 2008 | $78,000 | $43,200 | $0 | $0 | $0 |
| 2007 | $67,000 | $14,400 | $0 | $0 | $0 |
| 2006 | $67,000 | $14,400 | $0 | $0 | $0 |
Deed and Sales History
| 1 | 05/03/2024 | SWD | STATUTORY WARRANTY DEED | STANLEY TERRI L | 1858 INVESTMENTS LLC | | | $255,000.00 | 147506 | 2024-02314 |
| 2 | 09/25/2012 | WARRANTY D | WARRANTY DEED | FEDERAL NATIONAL MORTGAGE ASSO | STANLEY, TERRI L | | | $117,900.00 | 122705 | 2012-08413 |
| 3 | 01/03/2012 | WARRANTY D | WARRANTY DEED | NORTHWEST TRUSTEE SERVICES INC | FEDERAL NATIONAL MORTGAGE~ASSO | | | $119,264.00 | 121222 | 2012-00053 |
| 4 | 05/29/2009 | WARRANTY D | WARRANTY DEED | MAUER, JOHN D & JANE A | ROGERS, ERNEST V | | | $150,000.00 | 116806 | 2009-05391 |
| 5 | 05/29/2009 | QCD | QUIT CLAIM DEED | ROGERS, YOLANDA D | ROGERS, ERNEST V | | | $0.00 | 116805 | 2009-05390 |
| 6 | 10/16/2008 | QCD | QUIT CLAIM DEED | VALLEY MECHANICAL INC | MAUER, JOHN D & JANE A | | | $0.00 | 115829 | 2008-10530 |
| 7 | 10/15/2008 | WARRANTY D | WARRANTY DEED | BISHOP, WHITE & MARSHALL PS | VALLEY MECHANICAL INC | | | $96,751.00 | 115820 | 2008-10483 |
| 8 | 08/21/1987 | WARRANTY D | WARRANTY DEED | | | | | $29,700.00 | 0 | 1668-706467 |
Payout Agreement
| No payout information available.. |