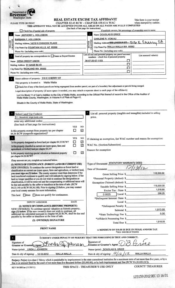
Property
Account |
| Property ID: | 32608 | Abbreviated Legal Description: | BLALOCK ORCHARDS S1/2 OF N 2/3 OF S1/2 OF LOT 1 BLK 39 |
| Parcel Number: | 350726523919 | Agent Code: | |
| Type: | Real | | |
| Tax Area: | 75 - CP 250 | Land Use Code | 12 |
| Open Space: | N | DFL | N |
| Historic Property: | N | Remodel Property: | N |
| Multi-Family Redevelopment: | N | | |
| Township: | 7 | Section: | 26 |
| Range: | 35 |
Location |
| Address: | 53 N COLLEGE AVE WA 99324 | Mapsco: | |
| Neighborhood: | A SFR Multi Res | Map ID: | |
| Neighborhood CD: | 113081 |
Owner |
| Name: | PETERSEN CLYDE E TESTAMENTARY TRUST | Owner ID: | 50505 |
| Mailing Address: | C/O GAIL ROBERTS 18525 NE MARINE DRIVE A3 PORTLAND, OR 97230 | % Ownership: | 100.0000000000% |
| | | Exemptions: | |
Taxes and Assessment Details
Values
| (+) Improvement Homesite Value: | + | $0 | |
| (+) Improvement Non-Homesite Value: | + | $383,070 | |
| (+) Land Homesite Value: | + | $0 | |
| (+) Land Non-Homesite Value: | + | $63,820 | |
| (+) Curr Use (HS): | + | $0 | $0 |
| (+) Curr Use (NHS): | + | $0 | $0 |
| | | -------------------------- | |
| (=) Market Value: | = | $446,890 | |
| (–) Productivity Loss: | – | $0 | |
| | | -------------------------- | |
| (=) Subtotal: | = | $446,890 | |
| (+) Senior Appraised Value: | + | $0 | |
| (+) Non-Senior Appraised Value: | + | $446,890 | |
| | | -------------------------- | |
| (=) Total Appraised Value: | = | $446,890 | |
| (–) Senior Exemption Loss: | – | $0 | |
| (–) Exemption Loss: | – | $0 | |
| | | -------------------------- | |
| (=) Taxable Value: | = | $446,890 | |
Taxing Jurisdiction
| Owner: | PETERSEN CLYDE E TESTAMENTARY TRUST | | |
| % Ownership: | 100.0000000000% | | |
| Total Value: | $446,890 | | |
| Tax Area: | 75 - CP 250 |
| CERFD | CURRENT EXPENSE REFUND 010 | 0.0000000000 | $446,890 | $446,890 | $0.00 | | |
| CURREXP | CURRENT EXPENSE 010 | 1.0175366760 | $446,890 | $446,890 | $454.73 | | |
| HUMNSERV | HUMAN SERVICES 119 | 0.0250000000 | $446,890 | $446,890 | $11.17 | | |
| SLDREL | SOLDIERS RELIEF 121 | 0.0155990005 | $446,890 | $446,890 | $6.97 | | |
| COLLPLBOND | C OF CP BOND 644 | 0.4374241808 | $446,890 | $446,890 | $195.48 | | |
| COLLPLGEN | CITY OF CP 632 | 1.4453819216 | $446,890 | $446,890 | $645.93 | | |
| EMERGSER | EMS 147 | 0.3792580840 | $446,890 | $446,890 | $169.49 | | |
| EMSRFD | EMS REFUND 147 | 0.0000000000 | $446,890 | $446,890 | $0.00 | | |
| RURALLIB | RURAL LIBRARY 623 | 0.3710609029 | $446,890 | $446,890 | $165.82 | | |
| PORTRFD | PORT REFUND 640 | 0.0000000000 | $446,890 | $446,890 | $0.00 | | |
| PORTWWGEN | PORT OF WW 640 | 0.2460186015 | $446,890 | $446,890 | $109.94 | | |
| SD250BOND | SD #250 BOND 773 | 1.4560608159 | $446,890 | $446,890 | $650.70 | | |
| SD250GEN | SD #250 GENERAL 770 | 2.3880724087 | $446,890 | $446,890 | $1,067.21 | | |
| ST2 | STATE SCHOOL PART 2 600 | 0.8131451643 | $446,890 | $446,890 | $363.39 | | |
| STATESCHL | STATE SCHOOL 600 | 1.5158548041 | $446,890 | $446,890 | $677.42 | | |
| STREFUND | STATE REFUND LEVY 603 | 0.0000000000 | $446,890 | $446,890 | $0.00 | | |
| | Total Tax Rate: | 10.1104125603 | | | | | |
| | | | | Taxes w/Current Exemptions: | $4,518.25 | | |
| | | | | Taxes w/o Exemptions: | $4,518.25 | | |
Improvement / Building
| Improvement #1: | RESIDENTIAL | State Code: | 12 | 1840.0 sqft | Value: | $261,400 |
| Exterior Wall: | SIDING | Heating/Cooling: | FORCED AIR | | Number of Bathrooms: | 3 | Number of Bedrooms: | 5 | | Plumbing: | 16 | Roof Covering: | COMP SHINGLE |
|
| | Type | Description | Class CD | Sub Class CD | Year Built | Area |
| | MA | Main Area | 4 | 35 | 1917 | 1840.0 |
| | UPFL | Upper Floor (included in main area) | 4 | 35 | 1917 | 468.0 |
| | SI1 | SITE IMPROVEMENT | 4 | 35 | 1917 | 2.0 |
| | BASE | BASEMENT | 4 | 35 | 1917 | 1326.0 |
| | BPF | BASEMENT -PARTITIONED FINISH | 4 | 35 | 1917 | 894.0 |
| | OSP | Open | 4 | 35 | 1917 | 35.0 |
| | S1F | Single One Story Fireplace | 4 | 35 | 1917 | 1.0 |
| | WDR | WOOD DECK W/ROOF | 4 | 35 | 1917 | 184.0 |
| | DTG | Detached Garage | 4 | 35 | 1917 | 288.0 |
| Improvement #2: | MANUFACTURED HOME | State Code: | 12 | 1296.0 sqft | Value: | $121,670 |
| Exterior Wall: | RIBBED ALUMINUM | Heating/Cooling: | FORCED AIR | | Number of Bathrooms: | 2 | Number of Bedrooms: | 3 | | Plumbing: | 7 | Roof Covering: | COMP SHINGLE |
|
| | Type | Description | Class CD | Sub Class CD | Year Built | Area |
| | MOBHOME | MANUFACTURD HOMES | 1 | 30 | 1982 | 1296.0 |
| | MI1 | MH SET-UP COSTS | 1 | 30 | 0 | 1.0 |
| | WDR | WOOD DECK W/ROOF | 1 | 30 | 0 | 160.0 |
Sketch
Property Image
Land
| 1 | RES 1 | Converted: Residential | 0.3300 | 14374.00 | 0.00 | 0.00 | 1.00 | $63,820 | $0 |
Roll Value History
| 2025 | N/A | N/A | N/A | N/A | N/A |
| 2024 | $385,100 | $63,800 | $0 | $448,900 | $448,900 |
| 2023 | $383,070 | $63,820 | $0 | $446,890 | $446,890 |
| 2022 | $333,100 | $63,820 | $0 | $396,920 | $396,920 |
| 2021 | $307,580 | $63,820 | $0 | $371,400 | $371,400 |
| 2020 | $205,050 | $63,820 | $0 | $268,870 | $268,870 |
| 2019 | $218,070 | $50,800 | $0 | $268,870 | $268,870 |
| 2018 | $218,070 | $50,800 | $0 | $268,870 | $268,870 |
| 2017 | $181,730 | $50,800 | $0 | $232,530 | $232,530 |
| 2016 | $173,070 | $50,800 | $0 | $223,870 | $223,870 |
| 2015 | $173,070 | $50,800 | $0 | $223,870 | $223,870 |
| 2014 | $192,300 | $50,800 | $0 | $243,100 | $243,100 |
| 2013 | $192,300 | $50,800 | $0 | $243,100 | $243,100 |
| 2012 | $192,300 | $50,800 | $0 | $0 | $0 |
| 2011 | $192,300 | $50,800 | $0 | $0 | $0 |
| 2010 | $192,300 | $50,800 | $0 | $0 | $0 |
| 2009 | $192,300 | $50,800 | $0 | $0 | $0 |
| 2008 | $134,600 | $28,600 | $0 | $0 | $0 |
| 2007 | $134,600 | $28,600 | $0 | $0 | $0 |
| 2006 | $134,600 | $28,600 | $0 | $0 | $0 |
Deed and Sales History
| 1 | 11/09/2011 | WARRANTY D | WARRANTY DEED | PETERSEN, CLYDE ESTATE OF | PETERSEN, CLYDE E TESTAMENTARY | | | | 120947 | 2011-08811 |
| 2 | 07/21/2006 | WARRANTY D | WARRANTY DEED | PAB, LLC | PETERSEN, CLYDE & BARBARA | | | $240,000.00 | 110772 | 2006-08573 |
| 3 | 10/08/2003 | QCD | QUIT CLAIM DEED | BAGLEY, HARLEY E & ELLA | PAB, LLC | | | | 103213 | 2003-15535 |
| 4 | 02/01/2002 | WARRANTY D | WARRANTY DEED | | | | | $168,900.00 | 98844 | 3280-201227 |
Payout Agreement
| No payout information available.. |