Property
Account |
| Property ID: | 32578 | Abbreviated Legal Description: | 20-7-36 PARCEL 13 |
| Parcel Number: | 360720240013 | Agent Code: | |
| Type: | Real | | |
| Tax Area: | 1 - OL-140-F | Land Use Code | 12 |
| Open Space: | N | DFL | N |
| Historic Property: | N | Remodel Property: | N |
| Multi-Family Redevelopment: | N | | |
| Township: | 7 | Section: | 20 |
| Range: | 36 |
Location |
| Address: | 323 E PINE ST WA 99362 | Mapsco: | |
| Neighborhood: | F SFR Multi Res | Map ID: | |
| Neighborhood CD: | 512081 |
Owner |
| Name: | HALLOWELL RANDY W & KRISTI A | Owner ID: | 50956 |
| Mailing Address: | PO BOX 1515 WALLA WALLA, WA 99362 | % Ownership: | 100.0000000000% |
| | | Exemptions: | |
Taxes and Assessment Details
Values
| (+) Improvement Homesite Value: | + | $0 | |
| (+) Improvement Non-Homesite Value: | + | $90,770 | |
| (+) Land Homesite Value: | + | $0 | |
| (+) Land Non-Homesite Value: | + | $36,590 | |
| (+) Curr Use (HS): | + | $0 | $0 |
| (+) Curr Use (NHS): | + | $0 | $0 |
| | | -------------------------- | |
| (=) Market Value: | = | $127,360 | |
| (–) Productivity Loss: | – | $0 | |
| | | -------------------------- | |
| (=) Subtotal: | = | $127,360 | |
| (+) Senior Appraised Value: | + | $0 | |
| (+) Non-Senior Appraised Value: | + | $127,360 | |
| | | -------------------------- | |
| (=) Total Appraised Value: | = | $127,360 | |
| (–) Senior Exemption Loss: | – | $0 | |
| (–) Exemption Loss: | – | $0 | |
| | | -------------------------- | |
| (=) Taxable Value: | = | $127,360 | |
Taxing Jurisdiction
| Owner: | HALLOWELL RANDY W & KRISTI A | | |
| % Ownership: | 100.0000000000% | | |
| Total Value: | $127,360 | | |
| Tax Area: | 1 - OL-140-F |
| CERFD | CURRENT EXPENSE REFUND 010 | 0.0000000000 | $127,360 | $127,360 | $0.00 | | |
| CURREXP | CURRENT EXPENSE 010 | 1.0175366760 | $127,360 | $127,360 | $129.59 | | |
| HUMNSERV | HUMAN SERVICES 119 | 0.0250000000 | $127,360 | $127,360 | $3.18 | | |
| SLDREL | SOLDIERS RELIEF 121 | 0.0155990005 | $127,360 | $127,360 | $1.99 | | |
| EMERGSER | EMS 147 | 0.3792580840 | $127,360 | $127,360 | $48.30 | | |
| EMSRFD | EMS REFUND 147 | 0.0000000000 | $127,360 | $127,360 | $0.00 | | |
| PORTRFD | PORT REFUND 640 | 0.0000000000 | $127,360 | $127,360 | $0.00 | | |
| PORTWWGEN | PORT OF WW 640 | 0.2460186015 | $127,360 | $127,360 | $31.33 | | |
| SD140BOND | SD #140 BOND 764 | 0.8342371393 | $127,360 | $127,360 | $106.25 | | |
| SD140GEN | SD #140 GENERAL 760 | 2.0646500647 | $127,360 | $127,360 | $262.95 | | |
| ST2 | STATE SCHOOL PART 2 600 | 0.8131451643 | $127,360 | $127,360 | $103.56 | | |
| STATESCHL | STATE SCHOOL 600 | 1.5158548041 | $127,360 | $127,360 | $193.06 | | |
| STREFUND | STATE REFUND LEVY 603 | 0.0000000000 | $127,360 | $127,360 | $0.00 | | |
| CWWBOND | C OF WW BOND 643 | 0.2760494372 | $127,360 | $127,360 | $35.16 | | |
| CWWGEN | CITY OF WW 631 | 1.6100204973 | $127,360 | $127,360 | $205.05 | | |
| CWWRFD | CITY OF WALLA WALLA REFUND 631 | 0.0000000000 | $127,360 | $127,360 | $0.00 | | |
| | Total Tax Rate: | 8.7973694689 | | | | | |
| | | | | Taxes w/Current Exemptions: | $1,120.42 | | |
| | | | | Taxes w/o Exemptions: | $1,120.42 | | |
Improvement / Building
| Improvement #1: | RESIDENTIAL | State Code: | 12 | 462.0 sqft | Value: | $44,550 |
| Exterior Wall: | PLYWOOD | Heating/Cooling: | FLOOR FURNACE | | Number of Bathrooms: | 1 | Number of Bedrooms: | 1 | | Plumbing: | 6 | Roof Covering: | COMP SHINGLE |
|
| | Type | Description | Class CD | Sub Class CD | Year Built | Area |
| | MA | Main Area | 1 | 20 | 1935 | 462.0 |
| | SI1 | SITE IMPROVEMENT | 1 | 20 | 1935 | 1.0 |
| | OPS | OPEN PORCH W/STEPS | 1 | 20 | 1935 | 25.0 |
| | CPC | COVERED CARPORT/PATIO | 1 | 20 | 1935 | 336.0 |
| | TOOL | TOOL SHED | 1 | 20 | 1935 | 60.0 |
| Improvement #2: | RESIDENTIAL | State Code: | 12 | 462.0 sqft | Value: | $46,220 |
| Exterior Wall: | SIDING | Heating/Cooling: | FLOOR FURNACE | | Number of Bathrooms: | 1 | Number of Bedrooms: | 1 | | Plumbing: | 6 | Roof Covering: | COMP SHINGLE |
|
| | Type | Description | Class CD | Sub Class CD | Year Built | Area |
| | MA | Main Area | 1 | 20 | 1935 | 462.0 |
| | SI1 | SITE IMPROVEMENT | 1 | 20 | 1935 | 1.0 |
| | OPS | OPEN PORCH W/STEPS | 1 | 20 | 1935 | 35.0 |
| | UTST | Utility Storage Shed | 1 | 20 | 1935 | 240.0 |
Sketch
Property Image
Land
| 1 | RES 1 | Converted: Residential | 0.1600 | 6970.00 | 0.00 | 0.00 | 1.00 | $36,590 | $0 |
Roll Value History
| 2025 | N/A | N/A | N/A | N/A | N/A |
| 2024 | $82,800 | $41,800 | $0 | $124,600 | $124,600 |
| 2023 | $90,770 | $36,590 | $0 | $127,360 | $127,360 |
| 2022 | $82,520 | $36,590 | $0 | $119,110 | $119,110 |
| 2021 | $66,010 | $36,590 | $0 | $102,600 | $102,600 |
| 2020 | $55,010 | $36,590 | $0 | $91,600 | $91,600 |
| 2019 | $55,010 | $36,590 | $0 | $91,600 | $91,600 |
| 2018 | $55,010 | $36,590 | $0 | $91,600 | $91,600 |
| 2017 | $53,640 | $20,900 | $0 | $74,540 | $74,540 |
| 2016 | $53,640 | $20,900 | $0 | $74,540 | $74,540 |
| 2015 | $63,100 | $20,900 | $0 | $84,000 | $84,000 |
| 2014 | $63,100 | $20,900 | $0 | $84,000 | $84,000 |
| 2013 | $63,100 | $20,900 | $0 | $84,000 | $84,000 |
| 2012 | $63,100 | $20,900 | $0 | $0 | $0 |
| 2011 | $63,100 | $20,900 | $0 | $0 | $0 |
| 2010 | $63,100 | $20,900 | $0 | $0 | $0 |
| 2009 | $63,100 | $20,900 | $0 | $0 | $0 |
| 2008 | $63,100 | $20,900 | $0 | $0 | $0 |
| 2007 | $63,100 | $20,900 | $0 | $0 | $0 |
| 2006 | $35,100 | $13,900 | $0 | $0 | $0 |
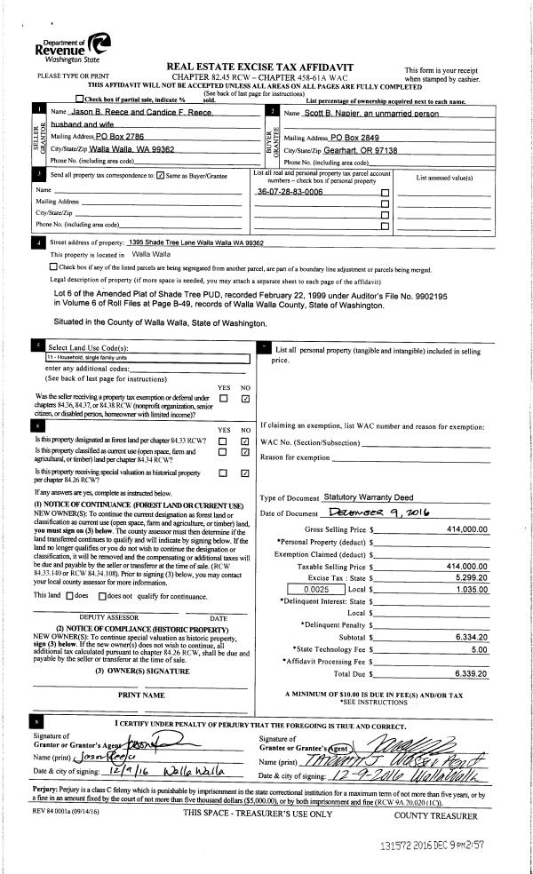
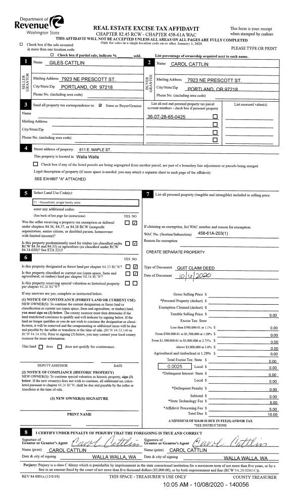
Deed and Sales History
| 1 | 08/01/2022 | QCD | QUIT CLAIM DEED | HALLOWELL RANDALL W | HALLOWELL RANDY W & KRISTI A | | | $0.00 | 144421 | 2022-06453 |
| 2 | 12/07/2015 | SWD | STATUTORY WARRANTY DEED | CONNECTICUT INVESTMENT CO | HALLOWELL RANDALL W | | 2-PARCLES | $160,000.00 | 129303 | 2015-10475 |
|   | |
| 3 | 01/01/1956 | WARRANTY D | WARRANTY DEED | | | | | $0.00 | 0 | 2780-389958 |
Payout Agreement
| No payout information available.. |