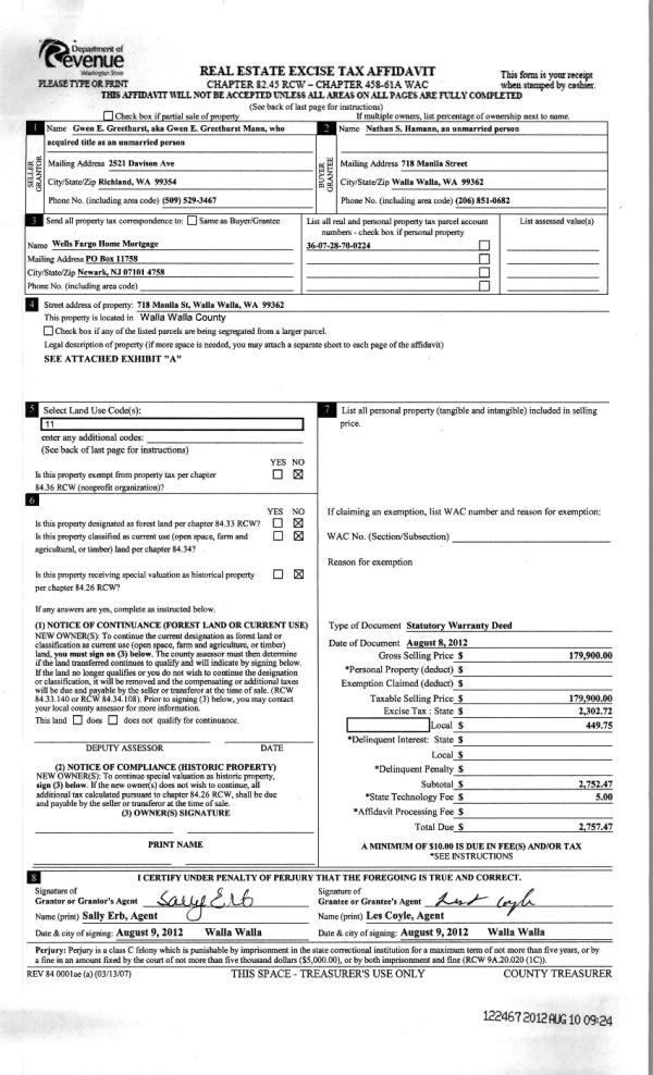
Property
Account |
| Property ID: | 3253 | Abbreviated Legal Description: | ROLLING HILLS ESTATES #3 LOT 6 |
| Parcel Number: | 350602590006 | Agent Code: | |
| Type: | Real | | |
| Tax Area: | 311 - 250-4 | Land Use Code | 11 |
| Open Space: | N | DFL | N |
| Historic Property: | N | Remodel Property: | N |
| Multi-Family Redevelopment: | N | | |
| Township: | 6 | Section: | 2 |
| Range: | 35 |
Location |
| Address: | 31 ROLAND CT WA 99324 | Mapsco: | |
| Neighborhood: | VG SFR RURAL | Map ID: | |
| Neighborhood CD: | 215013 |
Owner |
| Name: | SHEPERD STANN NORMAN RICHARD | Owner ID: | 71517 |
| Mailing Address: | 31 ROLAND CT WALLA WALLA, WA 99362 | % Ownership: | 100.0000000000% |
| | | Exemptions: | |
Taxes and Assessment Details
Values
| (+) Improvement Homesite Value: | + | $0 | |
| (+) Improvement Non-Homesite Value: | + | $437,810 | |
| (+) Land Homesite Value: | + | $0 | |
| (+) Land Non-Homesite Value: | + | $154,940 | |
| (+) Curr Use (HS): | + | $0 | $0 |
| (+) Curr Use (NHS): | + | $0 | $0 |
| | | -------------------------- | |
| (=) Market Value: | = | $592,750 | |
| (–) Productivity Loss: | – | $0 | |
| | | -------------------------- | |
| (=) Subtotal: | = | $592,750 | |
| (+) Senior Appraised Value: | + | $0 | |
| (+) Non-Senior Appraised Value: | + | $592,750 | |
| | | -------------------------- | |
| (=) Total Appraised Value: | = | $592,750 | |
| (–) Senior Exemption Loss: | – | $0 | |
| (–) Exemption Loss: | – | $0 | |
| | | -------------------------- | |
| (=) Taxable Value: | = | $592,750 | |
Taxing Jurisdiction
| Owner: | SHEPERD STANN NORMAN RICHARD | | |
| % Ownership: | 100.0000000000% | | |
| Total Value: | $592,750 | | |
| Tax Area: | 311 - 250-4 |
| CERFD | CURRENT EXPENSE REFUND 010 | 0.0000000000 | $592,750 | $592,750 | $0.00 | | |
| CURREXP | CURRENT EXPENSE 010 | 1.0175366760 | $592,750 | $592,750 | $603.14 | | |
| HUMNSERV | HUMAN SERVICES 119 | 0.0250000000 | $592,750 | $592,750 | $14.82 | | |
| SLDREL | SOLDIERS RELIEF 121 | 0.0155990005 | $592,750 | $592,750 | $9.25 | | |
| EMERGSER | EMS 147 | 0.3792580840 | $592,750 | $592,750 | $224.81 | | |
| EMSRFD | EMS REFUND 147 | 0.0000000000 | $592,750 | $592,750 | $0.00 | | |
| FD4EXP | FD #4 EXPENSE 686 | 0.8836993059 | $592,750 | $592,750 | $523.81 | | |
| RLBRFD | RURAL LIBRARY REFUND 623 | 0.0000000000 | $592,750 | $592,750 | $0.00 | | |
| RURALLIB | RURAL LIBRARY 623 | 0.3710609029 | $592,750 | $592,750 | $219.95 | | |
| PORTRFD | PORT REFUND 640 | 0.0000000000 | $592,750 | $592,750 | $0.00 | | |
| PORTWWGEN | PORT OF WW 640 | 0.2460186015 | $592,750 | $592,750 | $145.83 | | |
| SD250BOND | SD #250 BOND 773 | 1.4560608159 | $592,750 | $592,750 | $863.08 | | |
| SD250GEN | SD #250 GENERAL 770 | 2.3880724087 | $592,750 | $592,750 | $1,415.53 | | |
| ST2 | STATE SCHOOL PART 2 600 | 0.8131451643 | $592,750 | $592,750 | $481.99 | | |
| STATESCHL | STATE SCHOOL 600 | 1.5158548041 | $592,750 | $592,750 | $898.52 | | |
| STREFUND | STATE REFUND LEVY 603 | 0.0000000000 | $592,750 | $592,750 | $0.00 | | |
| COROAD | COUNTY ROAD 115 | 1.6549953990 | $592,750 | $592,750 | $981.00 | | |
| CRPRD | COUNTY ROAD REFUND 115 | 0.0000000000 | $592,750 | $592,750 | $0.00 | | |
| | Total Tax Rate: | 10.7663011628 | | | | | |
| | | | | Taxes w/Current Exemptions: | $6,381.73 | | |
| | | | | Taxes w/o Exemptions: | $6,381.73 | | |
Improvement / Building
| Improvement #1: | RESIDENTIAL | State Code: | 11 | 1868.0 sqft | Value: | $437,810 |
| Exterior Wall: | PLYWOOD | Heating/Cooling: | REV-HEAT-PUMP-W/DUCT | | Number of Bathrooms: | 2 | Number of Bedrooms: | 3 | | Plumbing: | 9 | Roof Covering: | COMP SHINGLE |
|
| | Type | Description | Class CD | Sub Class CD | Year Built | Area |
| | MA | Main Area | 1 | 35 | 1988 | 1868.0 |
| | SI1 | SITE IMPROVEMENT | 1 | 35 | 1988 | 2.5 |
| | S1F | Single One Story Fireplace | 1 | 35 | 1988 | 1.0 |
| | RPO | OPEN PORCH W/ROOF | 1 | 35 | 1988 | 132.0 |
| | WOD | Wood Deck | 1 | 35 | 1988 | 128.0 |
| | ATG | Attached Garage | 1 | 35 | 1988 | 528.0 |
Sketch
Property Image
Land
| 1 | RES 1 | Converted: Residential | 1.5500 | 0.00 | 0.00 | 0.00 | 1.00 | $154,940 | $0 |
Roll Value History
| 2025 | N/A | N/A | N/A | N/A | N/A |
| 2024 | $481,590 | $154,940 | $0 | $636,530 | $636,530 |
| 2023 | $437,810 | $154,940 | $0 | $592,750 | $592,750 |
| 2022 | $380,700 | $154,940 | $0 | $535,640 | $535,640 |
| 2021 | $237,940 | $154,940 | $0 | $392,880 | $392,880 |
| 2020 | $215,050 | $92,200 | $0 | $307,250 | $307,250 |
| 2019 | $215,050 | $92,200 | $0 | $307,250 | $307,250 |
| 2018 | $187,000 | $92,200 | $0 | $279,200 | $279,200 |
| 2017 | $187,000 | $92,200 | $0 | $279,200 | $279,200 |
| 2016 | $187,000 | $92,200 | $0 | $279,200 | $279,200 |
| 2015 | $187,000 | $92,200 | $0 | $279,200 | $279,200 |
| 2014 | $187,000 | $92,200 | $0 | $279,200 | $279,200 |
| 2013 | $187,000 | $92,200 | $0 | $279,200 | $279,200 |
| 2012 | $187,000 | $92,200 | $0 | $0 | $0 |
| 2011 | $171,700 | $122,200 | $0 | $0 | $0 |
| 2010 | $171,700 | $122,200 | $0 | $0 | $0 |
| 2009 | $247,900 | $47,200 | $0 | $0 | $0 |
| 2008 | $163,600 | $47,200 | $0 | $0 | $0 |
| 2007 | $163,600 | $47,200 | $0 | $0 | $0 |
| 2006 | $163,600 | $47,200 | $0 | $0 | $0 |
Deed and Sales History
| 1 | 04/21/2022 | QCD | QUIT CLAIM DEED | SHEPERD JANETTE LYNN | SHEPERD STANN NORMAN RICHARD | | | | 143806 | 2022-03407 |
| 2 | 04/21/2022 | SWD | STATUTORY WARRANTY DEED | BROWN TOMMY ORLAND | SHEPERD STANN NORMAN RICHARD | | | $615,000.00 | 143804 | 2022-03406 |
| 3 | 06/30/2020 | COMMUNITY | COMMUNITY PROPERTY AGREEMENT | BROWN TOMMY O & PATRICIA K | BROWN TOMMY ORLAND | | | | 0 | 2020-06130 |
| 4 | 09/12/2019 | QCD | QUIT CLAIM DEED | BROWN TOMMY O & PATRICIA K | BROWN TOMMY ORLAND | | | $0.00 | 137665 | 2019-07095 |
| 5 | 11/04/1987 | WARRANTY D | WARRANTY DEED | | | | | $15,000.00 | 0 | 1678-708283 |
Payout Agreement
| No payout information available.. |