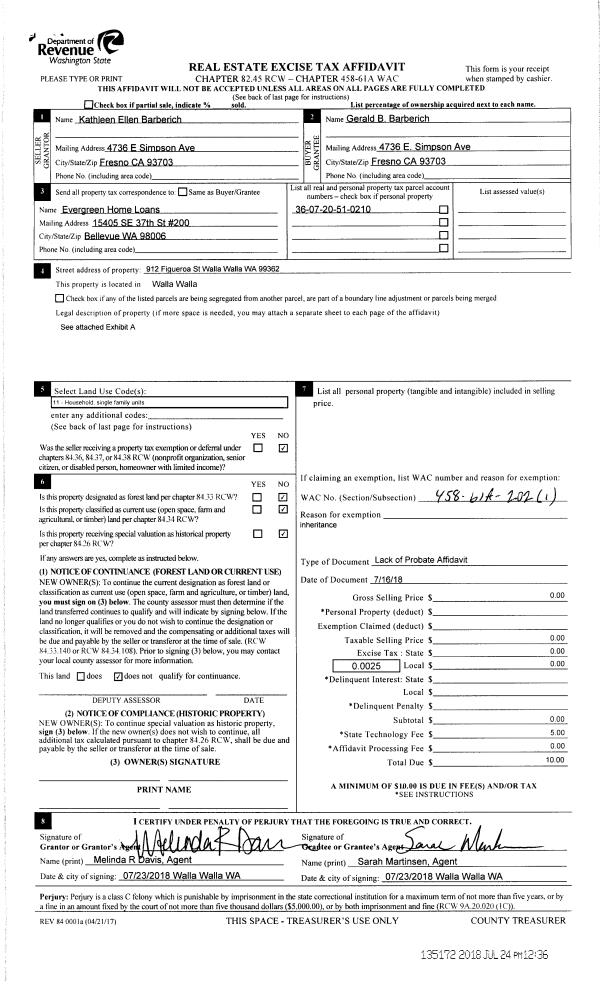
Property
Account |
| Property ID: | 32331 | Abbreviated Legal Description: | HATCH ADDN LT 1 BLK 1 LESS N 130' |
| Parcel Number: | 360728590106 | Agent Code: | |
| Type: | Real | | |
| Tax Area: | 1 - OL-140-F | Land Use Code | 11 |
| Open Space: | N | DFL | N |
| Historic Property: | N | Remodel Property: | N |
| Multi-Family Redevelopment: | N | | |
| Township: | 7 | Section: | 28 |
| Range: | 36 |
Location |
| Address: | 1259 DAKOTA ST WA 99362 | Mapsco: | |
| Neighborhood: | A Res | Map ID: | |
| Neighborhood CD: | 613011 |
Owner |
| Name: | SORENSEN BRADLEY J & ABBY | Owner ID: | 62916 |
| Mailing Address: | 1259 DAKOTA ST WALLA WALLA, WA 99362 | % Ownership: | 100.0000000000% |
| | | Exemptions: | |
Taxes and Assessment Details
Values
| (+) Improvement Homesite Value: | + | $0 | |
| (+) Improvement Non-Homesite Value: | + | $567,420 | |
| (+) Land Homesite Value: | + | $0 | |
| (+) Land Non-Homesite Value: | + | $96,340 | |
| (+) Curr Use (HS): | + | $0 | $0 |
| (+) Curr Use (NHS): | + | $0 | $0 |
| | | -------------------------- | |
| (=) Market Value: | = | $663,760 | |
| (–) Productivity Loss: | – | $0 | |
| | | -------------------------- | |
| (=) Subtotal: | = | $663,760 | |
| (+) Senior Appraised Value: | + | $0 | |
| (+) Non-Senior Appraised Value: | + | $663,760 | |
| | | -------------------------- | |
| (=) Total Appraised Value: | = | $663,760 | |
| (–) Senior Exemption Loss: | – | $0 | |
| (–) Exemption Loss: | – | $0 | |
| | | -------------------------- | |
| (=) Taxable Value: | = | $663,760 | |
Taxing Jurisdiction
| Owner: | SORENSEN BRADLEY J & ABBY | | |
| % Ownership: | 100.0000000000% | | |
| Total Value: | $663,760 | | |
| Tax Area: | 1 - OL-140-F |
| CERFD | CURRENT EXPENSE REFUND 010 | 0.0000000000 | $663,760 | $663,760 | $0.00 | | |
| CURREXP | CURRENT EXPENSE 010 | 1.0175366760 | $663,760 | $663,760 | $675.40 | | |
| HUMNSERV | HUMAN SERVICES 119 | 0.0250000000 | $663,760 | $663,760 | $16.59 | | |
| SLDREL | SOLDIERS RELIEF 121 | 0.0155990005 | $663,760 | $663,760 | $10.35 | | |
| EMERGSER | EMS 147 | 0.3792580840 | $663,760 | $663,760 | $251.74 | | |
| EMSRFD | EMS REFUND 147 | 0.0000000000 | $663,760 | $663,760 | $0.00 | | |
| PORTRFD | PORT REFUND 640 | 0.0000000000 | $663,760 | $663,760 | $0.00 | | |
| PORTWWGEN | PORT OF WW 640 | 0.2460186015 | $663,760 | $663,760 | $163.30 | | |
| SD140BOND | SD #140 BOND 764 | 0.8342371393 | $663,760 | $663,760 | $553.73 | | |
| SD140GEN | SD #140 GENERAL 760 | 2.0646500647 | $663,760 | $663,760 | $1,370.43 | | |
| ST2 | STATE SCHOOL PART 2 600 | 0.8131451643 | $663,760 | $663,760 | $539.73 | | |
| STATESCHL | STATE SCHOOL 600 | 1.5158548041 | $663,760 | $663,760 | $1,006.16 | | |
| STREFUND | STATE REFUND LEVY 603 | 0.0000000000 | $663,760 | $663,760 | $0.00 | | |
| CWWBOND | C OF WW BOND 643 | 0.2760494372 | $663,760 | $663,760 | $183.23 | | |
| CWWGEN | CITY OF WW 631 | 1.6100204973 | $663,760 | $663,760 | $1,068.67 | | |
| CWWRFD | CITY OF WALLA WALLA REFUND 631 | 0.0000000000 | $663,760 | $663,760 | $0.00 | | |
| | Total Tax Rate: | 8.7973694689 | | | | | |
| | | | | Taxes w/Current Exemptions: | $5,839.33 | | |
| | | | | Taxes w/o Exemptions: | $5,839.33 | | |
Improvement / Building
| Improvement #1: | RESIDENTIAL | State Code: | 11 | 2627.0 sqft | Value: | $567,420 |
| Exterior Wall: | SIDING | Heating/Cooling: | HEAT PUMP | | Number of Bathrooms: | 2 | Number of Bedrooms: | 4 | | Plumbing: | 11 | Roof Covering: | COMP SHINGLE |
|
| | Type | Description | Class CD | Sub Class CD | Year Built | Area |
| | MA | Main Area | 4 | 40 | 1920 | 2627.0 |
| | UPFL | Upper Floor (included in main area) | 4 | 40 | 1920 | 1055.0 |
| | SI1 | SITE IMPROVEMENT | 4 | 40 | 1920 | 3.5 |
| | BASE | BASEMENT | 4 | 40 | 1920 | 936.0 |
| | OSP | Open | 4 | 40 | 1920 | 25.0 |
| | RCD | WOOD DECK W/ROOF, CEILED | 4 | 40 | 1920 | 184.0 |
| | DTG | Detached Garage | 4 | 40 | 1920 | 768.0 |
Sketch
Property Image
Land
| 1 | RES 1 | Converted: Residential | 0.4278 | 18634.00 | 0.00 | 0.00 | 1.00 | $96,340 | $0 |
Roll Value History
| 2025 | N/A | N/A | N/A | N/A | N/A |
| 2024 | $567,420 | $96,340 | $0 | $663,760 | $663,760 |
| 2023 | $567,420 | $96,340 | $0 | $663,760 | $663,760 |
| 2022 | $567,420 | $76,960 | $0 | $644,380 | $644,380 |
| 2021 | $405,300 | $76,960 | $0 | $482,260 | $482,260 |
| 2020 | $337,750 | $76,960 | $0 | $414,710 | $414,710 |
| 2019 | $337,750 | $76,960 | $0 | $414,710 | $414,710 |
| 2018 | $330,120 | $54,500 | $0 | $384,620 | $384,620 |
| 2017 | $275,100 | $54,500 | $0 | $329,600 | $329,600 |
| 2016 | $275,100 | $54,500 | $0 | $329,600 | $329,600 |
| 2015 | $275,100 | $54,500 | $0 | $329,600 | $329,600 |
| 2014 | $262,000 | $54,500 | $0 | $316,500 | $316,500 |
| 2013 | $262,000 | $54,500 | $0 | $316,500 | $316,500 |
| 2012 | $156,500 | $54,500 | $0 | $0 | $0 |
| 2011 | $156,500 | $54,500 | $0 | $0 | $0 |
| 2010 | $156,500 | $54,500 | $0 | $0 | $0 |
| 2009 | $179,900 | $54,500 | $0 | $0 | $0 |
| 2008 | $179,900 | $54,500 | $0 | $0 | $0 |
| 2007 | $115,700 | $32,000 | $0 | $0 | $0 |
| 2006 | $115,700 | $32,000 | $0 | $0 | $0 |
Deed and Sales History
| 1 | 04/20/2018 | SWD | STATUTORY WARRANTY DEED | THE GARY & LUANNE SPICER FAMILY TRUST | SORENSEN BRADLEY J & ABBY | | | $425,000.00 | 134536 | 2018-03099 |
| 2 | 09/28/2017 | SWD | STATUTORY WARRANTY DEED | HUNDLEY CHARLES & PAMELA | THE GARY & LUANNE SPICER FAMILY TRUST | | | $410,000.00 | 133300 | 2017-07662 |
| 3 | 09/01/2011 | WARRANTY D | WARRANTY DEED | GRAVES, JUDITH A | HUNDLEY, CHARLES & PAMELA | | | $340,000.00 | 120643 | 2011-06917 |
| 4 | 12/17/2009 | QCD | QUIT CLAIM DEED | GRAVES, TYSON | GRAVES, JUDITH A | | | | 117829 | 2009-12131 |
| 5 | 11/13/2009 | WARRANTY D | WARRANTY DEED | GRAVES, TYSON N | GRAVES, JUDITH A | | | | 0 | CC #09-3-00154-0 |
| 6 | 02/28/2003 | WARRANTY D | WARRANTY DEED | MAHAN, LOYD WALLACE | GRAVES, TYSON N & JUDITH A | | | $152,500.00 | 101496 | 2003-02693 |
| 7 | 09/01/1967 | WARRANTY D | WARRANTY DEED | | | | | $11,000.00 | 0 | 3230-488718 |
Payout Agreement
| No payout information available.. |