Property
Account |
| Property ID: | 3232 | Abbreviated Legal Description: | ROLLING HILLS ESTATES #1 LOT 7 BLK 1 |
| Parcel Number: | 350602520107 | Agent Code: | |
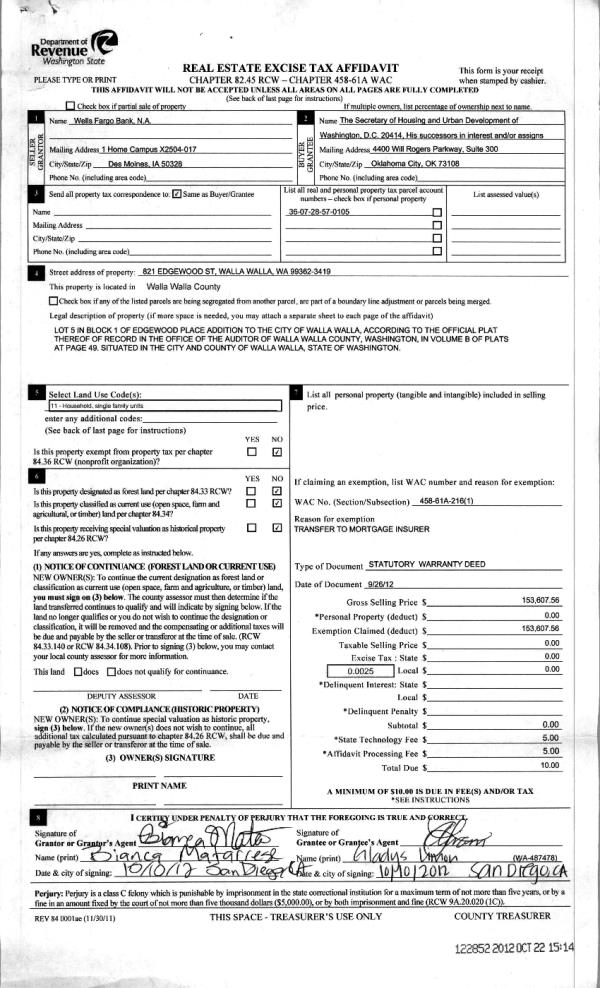
| Type: | Real | | |
| Tax Area: | 311 - 250-4 | Land Use Code | 11 |
| Open Space: | N | DFL | N |
| Historic Property: | N | Remodel Property: | N |
| Multi-Family Redevelopment: | N | | |
| Township: | 6 | Section: | 2 |
| Range: | 35 |
Location |
| Address: | 120 BUSSELL RD WA 99324 | Mapsco: | |
| Neighborhood: | VG SFR RURAL | Map ID: | |
| Neighborhood CD: | 215013 |
Owner |
| Name: | WIESSNER HARRY W & REBECCA | Owner ID: | 68952 |
| Mailing Address: | 120 BUSSEL RD WALLA WALLA, WA 99362 | % Ownership: | 100.0000000000% |
| | | Exemptions: | |
Taxes and Assessment Details
Values
| (+) Improvement Homesite Value: | + | $0 | |
| (+) Improvement Non-Homesite Value: | + | $431,000 | |
| (+) Land Homesite Value: | + | $0 | |
| (+) Land Non-Homesite Value: | + | $152,730 | |
| (+) Curr Use (HS): | + | $0 | $0 |
| (+) Curr Use (NHS): | + | $0 | $0 |
| | | -------------------------- | |
| (=) Market Value: | = | $583,730 | |
| (–) Productivity Loss: | – | $0 | |
| | | -------------------------- | |
| (=) Subtotal: | = | $583,730 | |
| (+) Senior Appraised Value: | + | $0 | |
| (+) Non-Senior Appraised Value: | + | $583,730 | |
| | | -------------------------- | |
| (=) Total Appraised Value: | = | $583,730 | |
| (–) Senior Exemption Loss: | – | $0 | |
| (–) Exemption Loss: | – | $0 | |
| | | -------------------------- | |
| (=) Taxable Value: | = | $583,730 | |
Taxing Jurisdiction
| Owner: | WIESSNER HARRY W & REBECCA | | |
| % Ownership: | 100.0000000000% | | |
| Total Value: | $583,730 | | |
| Tax Area: | 311 - 250-4 |
| CERFD | CURRENT EXPENSE REFUND 010 | 0.0000000000 | $583,730 | $583,730 | $0.00 | | |
| CURREXP | CURRENT EXPENSE 010 | 1.0175366760 | $583,730 | $583,730 | $593.97 | | |
| HUMNSERV | HUMAN SERVICES 119 | 0.0250000000 | $583,730 | $583,730 | $14.59 | | |
| SLDREL | SOLDIERS RELIEF 121 | 0.0155990005 | $583,730 | $583,730 | $9.11 | | |
| EMERGSER | EMS 147 | 0.3792580840 | $583,730 | $583,730 | $221.38 | | |
| EMSRFD | EMS REFUND 147 | 0.0000000000 | $583,730 | $583,730 | $0.00 | | |
| FD4EXP | FD #4 EXPENSE 686 | 0.8836993059 | $583,730 | $583,730 | $515.84 | | |
| RLBRFD | RURAL LIBRARY REFUND 623 | 0.0000000000 | $583,730 | $583,730 | $0.00 | | |
| RURALLIB | RURAL LIBRARY 623 | 0.3710609029 | $583,730 | $583,730 | $216.60 | | |
| PORTRFD | PORT REFUND 640 | 0.0000000000 | $583,730 | $583,730 | $0.00 | | |
| PORTWWGEN | PORT OF WW 640 | 0.2460186015 | $583,730 | $583,730 | $143.61 | | |
| SD250BOND | SD #250 BOND 773 | 1.4560608159 | $583,730 | $583,730 | $849.95 | | |
| SD250GEN | SD #250 GENERAL 770 | 2.3880724087 | $583,730 | $583,730 | $1,393.99 | | |
| ST2 | STATE SCHOOL PART 2 600 | 0.8131451643 | $583,730 | $583,730 | $474.66 | | |
| STATESCHL | STATE SCHOOL 600 | 1.5158548041 | $583,730 | $583,730 | $884.85 | | |
| STREFUND | STATE REFUND LEVY 603 | 0.0000000000 | $583,730 | $583,730 | $0.00 | | |
| COROAD | COUNTY ROAD 115 | 1.6549953990 | $583,730 | $583,730 | $966.07 | | |
| CRPRD | COUNTY ROAD REFUND 115 | 0.0000000000 | $583,730 | $583,730 | $0.00 | | |
| | Total Tax Rate: | 10.7663011628 | | | | | |
| | | | | Taxes w/Current Exemptions: | $6,284.62 | | |
| | | | | Taxes w/o Exemptions: | $6,284.62 | | |
Improvement / Building
| Improvement #1: | RESIDENTIAL | State Code: | 11 | 2126.0 sqft | Value: | $431,000 |
| Exterior Wall: | SIDING | Heating/Cooling: | WARM & COOLED AIR | | Number of Bathrooms: | 3 | Number of Bedrooms: | 5 | | Plumbing: | 16 | Roof Covering: | WOOD SHAKE |
|
| | Type | Description | Class CD | Sub Class CD | Year Built | Area |
| | MA | Main Area | 1 | 40 | 1975 | 2126.0 |
| | SI1 | SITE IMPROVEMENT | 1 | 40 | 1975 | 3.0 |
| | BASE | BASEMENT | 1 | 40 | 1975 | 2108.0 |
| | S1F | Single One Story Fireplace | 1 | 40 | 1975 | 1.0 |
| | WOD | Wood Deck | 1 | 40 | 1975 | 392.0 |
| | ATG | Attached Garage | 1 | 40 | 1975 | 1074.0 |
Sketch
Property Image
Land
| 1 | RES 1 | Converted: Residential | 1.1200 | 0.00 | 0.00 | 0.00 | 1.00 | $152,730 | $0 |
Roll Value History
| 2025 | N/A | N/A | N/A | N/A | N/A |
| 2024 | $474,100 | $152,730 | $0 | $626,830 | $626,830 |
| 2023 | $431,000 | $152,730 | $0 | $583,730 | $583,730 |
| 2022 | $410,480 | $152,730 | $0 | $563,210 | $563,210 |
| 2021 | $315,750 | $152,730 | $0 | $468,480 | $468,480 |
| 2020 | $302,170 | $90,500 | $0 | $392,670 | $392,670 |
| 2019 | $302,170 | $90,500 | $0 | $392,670 | $392,670 |
| 2018 | $274,700 | $90,500 | $0 | $365,200 | $365,200 |
| 2017 | $274,700 | $90,500 | $0 | $365,200 | $365,200 |
| 2016 | $274,700 | $90,500 | $0 | $365,200 | $365,200 |
| 2015 | $274,700 | $90,500 | $0 | $365,200 | $365,200 |
| 2014 | $274,700 | $90,500 | $0 | $365,200 | $365,200 |
| 2013 | $274,700 | $90,500 | $0 | $365,200 | $365,200 |
| 2012 | $274,700 | $90,500 | $0 | $0 | $0 |
| 2011 | $263,900 | $120,500 | $0 | $0 | $0 |
| 2010 | $263,900 | $120,500 | $0 | $0 | $0 |
| 2009 | $360,600 | $45,500 | $0 | $0 | $0 |
| 2008 | $255,300 | $45,500 | $0 | $0 | $0 |
| 2007 | $255,300 | $45,500 | $0 | $0 | $0 |
| 2006 | $255,300 | $45,500 | $0 | $0 | $0 |
Deed and Sales History
| 1 | 05/19/2020 | SURVEY | SURVEY | | | 13 | 197 | | 0 | 2020-03507 |
| 2 | 07/19/1994 | WARRANTY D | WARRANTY DEED | | | | | $190,000.00 | 82138 | 2219-408425 |
Payout Agreement
| No payout information available.. |