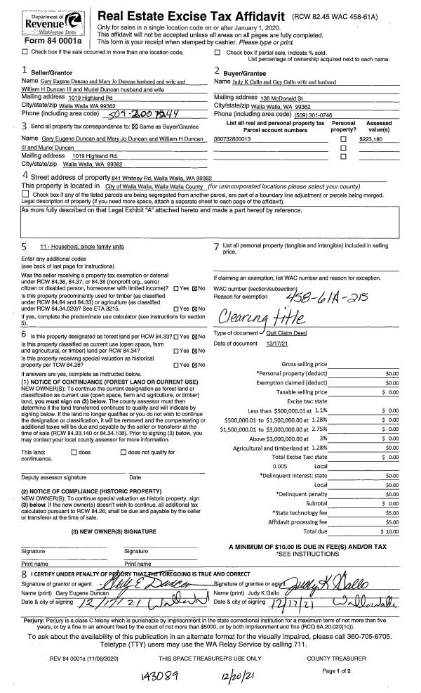
Property
Account |
| Property ID: | 32269 | Abbreviated Legal Description: | 38 07 08 NW4NE4 LESS SELY PTN;NE4NW4 LESS SELY TRIANGLE |
| Parcel Number: | 380708120003 | Agent Code: | |
| Type: | Real | | |
| Tax Area: | 310 - 101-8 | Land Use Code | 83 |
| Open Space: | Y | DFL | N |
| Historic Property: | N | Remodel Property: | N |
| Multi-Family Redevelopment: | N | | |
| Township: | 7 | Section: | 8 |
| Range: | 38 |
Location |
| Address: | 3268 SEAMAN RD WA 99329 | Mapsco: | |
| Neighborhood: | 0 Farm | Map ID: | |
| Neighborhood CD: | 5250 |
Owner |
| Name: | CREELEY SCOTT E & MONICA A | Owner ID: | 67791 |
| Mailing Address: | 84925 TUM A LUM RD MILTON FREEWATER, OR 97862 | % Ownership: | 100.0000000000% |
| | | Exemptions: | |
Taxes and Assessment Details
Values
| (+) Improvement Homesite Value: | + | $0 | |
| (+) Improvement Non-Homesite Value: | + | $258,600 | |
| (+) Land Homesite Value: | + | $0 | |
| (+) Land Non-Homesite Value: | + | $0 | |
| (+) Curr Use (HS): | + | $25,000 | $370 |
| (+) Curr Use (NHS): | + | $107,230 | $42,340 |
| | | -------------------------- | |
| (=) Market Value: | = | $390,830 | |
| (–) Productivity Loss: | – | $89,530 | |
| | | -------------------------- | |
| (=) Subtotal: | = | $301,300 | |
| (+) Senior Appraised Value: | + | $0 | |
| (+) Non-Senior Appraised Value: | + | $301,310 | |
| | | -------------------------- | |
| (=) Total Appraised Value: | = | $301,310 | |
| (–) Senior Exemption Loss: | – | $0 | |
| (–) Exemption Loss: | – | $0 | |
| | | -------------------------- | |
| (=) Taxable Value: | = | $301,310 | |
Taxing Jurisdiction
| Owner: | CREELEY SCOTT E & MONICA A | | |
| % Ownership: | 100.0000000000% | | |
| Total Value: | $390,830 | | |
| Tax Area: | 310 - 101-8 |
| CERFD | CURRENT EXPENSE REFUND 010 | 0.0000000000 | $301,310 | $301,310 | $0.00 | | |
| CURREXP | CURRENT EXPENSE 010 | 1.0175366760 | $301,310 | $301,310 | $306.59 | | |
| HUMNSERV | HUMAN SERVICES 119 | 0.0250000000 | $301,310 | $301,310 | $7.53 | | |
| SLDREL | SOLDIERS RELIEF 121 | 0.0155990005 | $301,310 | $301,310 | $4.70 | | |
| EMERGSER | EMS 147 | 0.3792580840 | $301,310 | $301,310 | $114.27 | | |
| EMSRFD | EMS REFUND 147 | 0.0000000000 | $301,310 | $301,310 | $0.00 | | |
| FD8EXP | FD #8 EXPENSE 697 | 0.6647992540 | $301,310 | $301,310 | $200.31 | | |
| RLBRFD | RURAL LIBRARY REFUND 623 | 0.0000000000 | $301,310 | $301,310 | $0.00 | | |
| RURALLIB | RURAL LIBRARY 623 | 0.3710609029 | $301,310 | $301,310 | $111.80 | | |
| PORTRFD | PORT REFUND 640 | 0.0000000000 | $301,310 | $301,310 | $0.00 | | |
| PORTWWGEN | PORT OF WW 640 | 0.2460186015 | $301,310 | $301,310 | $74.13 | | |
| SD101CAP | SD #101 CAP 752 | 0.5894423472 | $301,310 | $301,310 | $177.60 | | |
| SD101GEN | SD #101 GENERAL 750 | 0.7455117868 | $301,310 | $301,310 | $224.63 | | |
| ST2 | STATE SCHOOL PART 2 600 | 0.8131451643 | $301,310 | $301,310 | $245.01 | | |
| STATESCHL | STATE SCHOOL 600 | 1.5158548041 | $301,310 | $301,310 | $456.74 | | |
| STREFUND | STATE REFUND LEVY 603 | 0.0000000000 | $301,310 | $301,310 | $0.00 | | |
| COROAD | COUNTY ROAD 115 | 1.6549953990 | $301,310 | $301,310 | $498.67 | | |
| CRPRD | COUNTY ROAD REFUND 115 | 0.0000000000 | $301,310 | $301,310 | $0.00 | | |
| | Total Tax Rate: | 8.0382220203 | | | | | |
| | | | | Taxes w/Current Exemptions: | $2,421.98 | | |
| | | | | Taxes w/o Exemptions: | $2,421.98 | | |
Improvement / Building
| Improvement #1: | RESIDENTIAL | State Code: | 83 | 2400.0 sqft | Value: | $258,600 |
| Exterior Wall: | METAL/STEEL | Heating/Cooling: | HEAT PUMP | | Number of Bathrooms: | 2 | Number of Bedrooms: | 3 | | Plumbing: | 12 | Roof Covering: | METAL ROOFING |
|
| | Type | Description | Class CD | Sub Class CD | Year Built | Area |
| | POL3 | POLE BUILDING-CON,ELEC,INSU | 1 | 30 | 2010 | 9000.0 |
| | MA | Main Area | POLE LVG G | POLE LVG G | 2010 | 2400.0 |
| | UTILITY | UTILITY BUILDING | * | 30 | 2010 | 100.0 |
Sketch
| No sketches available for this property. |
Property Image
Land
| 1 | 9-MTN | Mountain | 19.2000 | 0.00 | 0.00 | 0.00 | 1.00 | $9,600 | $6,720 |
| 2 | 25000-HS | Homesite 25000 | 1.0000 | 0.00 | 0.00 | 0.00 | 1.00 | $25,000 | $370 |
| 3 | 80-C1AN | Class 1 80 BU Annual | 32.0000 | 0.00 | 0.00 | 0.00 | 1.00 | $97,630 | $35,620 |
Roll Value History
| 2025 | N/A | N/A | N/A | N/A | N/A |
| 2024 | $258,600 | $184,790 | $42,430 | $301,030 | $301,030 |
| 2023 | $258,600 | $132,230 | $42,710 | $301,310 | $301,310 |
| 2022 | $258,600 | $127,530 | $41,170 | $299,770 | $299,770 |
| 2021 | $258,600 | $122,410 | $40,980 | $299,580 | $299,580 |
| 2020 | $258,600 | $117,420 | $40,920 | $299,520 | $299,520 |
| 2019 | $258,600 | $114,860 | $41,580 | $300,180 | $300,180 |
| 2018 | $133,550 | $114,600 | $46,520 | $180,070 | $180,070 |
| 2017 | $120,000 | $113,960 | $47,190 | $167,190 | $167,190 |
| 2016 | $120,000 | $113,960 | $46,660 | $166,660 | $166,660 |
| 2015 | $120,000 | $113,960 | $42,050 | $162,050 | $162,050 |
| 2014 | $120,000 | $113,960 | $42,370 | $162,370 | $162,370 |
| 2013 | $120,000 | $110,100 | $35,200 | $155,200 | $155,200 |
| 2012 | $120,000 | $24,600 | $0 | $0 | $0 |
| 2011 | $0 | $23,600 | $0 | $0 | $0 |
| 2010 | $0 | $21,800 | $0 | $0 | $0 |
| 2009 | $0 | $22,300 | $0 | $0 | $0 |
| 2008 | $0 | $30,400 | $0 | $0 | $0 |
| 2007 | $0 | $30,400 | $0 | $0 | $0 |
| 2006 | $0 | $30,400 | $0 | $0 | $0 |
Deed and Sales History
| 1 | 08/14/2020 | SWD | STATUTORY WARRANTY DEED | MILLER DENA L | CREELEY SCOTT E & MONICA A | | 2-PARCELS | $415,000.00 | 139710 | 2020-08085 |
|   | |
| 2 | 08/14/2020 | PACD | PURCHASER'S ASSG CONTRACT&DEED | MILLER RODNEY D & DENA L | MILLER DENA L | | 2-PARCELS | $0.00 | 139709 | 2020-08083 |
| 3 | 08/14/2020 | FUL | FULFILLMENT DEED | SCHWERIN ROBERT S & FRANCES REA | MILLER RODNEY D & DENA L | | 2-PARCELS | | 0 | 2020-08084 |
| 4 | 11/26/2003 | WARRANTY D | WARRANTY DEED | SCHWERIN FRANCES | MILLER RODNEY D & DENA L | | | | 103606 | 2003-18196 |
| 5 | 10/10/2002 | WARRANTY D | WARRANTY DEED | ZYSKOWSKI, JOHN S & CHARLOTTE | SCHWERIN FRANCES | | | | 100551 | 2002-11395 |
| 6 | 10/11/1995 | WARRANTY D | WARRANTY DEED | | | | | $91,500.00 | 84893 | 2349-509812 |
|   | |
Payout Agreement
| No payout information available.. |