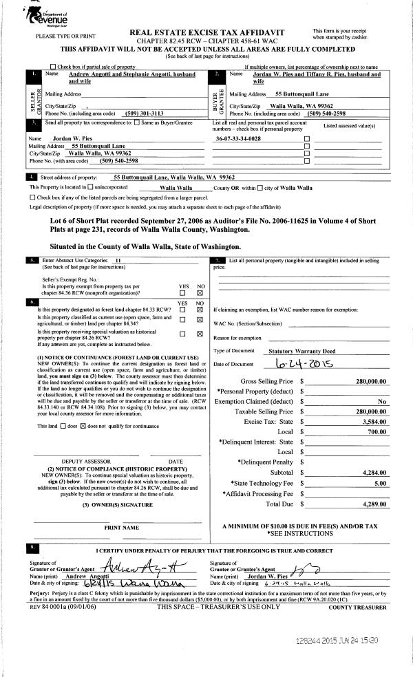
Property
Account |
| Property ID: | 32193 | Abbreviated Legal Description: | 24-7-35 TAX 8 |
| Parcel Number: | 350724320013 | Agent Code: | |
| Type: | Real | | |
| Tax Area: | 101 - 140-4 | Land Use Code | 11 |
| Open Space: | N | DFL | N |
| Historic Property: | N | Remodel Property: | N |
| Multi-Family Redevelopment: | N | | |
| Township: | 7 | Section: | 24 |
| Range: | 35 |
Location |
| Address: | 2637 DELL AVE WA 99362 | Mapsco: | |
| Neighborhood: | A SFR Rural/City Infl | Map ID: | |
| Neighborhood CD: | 313012 |
Owner |
| Name: | NOKES STEVEN C & MARILYN H | Owner ID: | 69959 |
| Mailing Address: | 731 EDGEWOOD AVE WALLA WALLA, WA 99362 | % Ownership: | 100.0000000000% |
| | | Exemptions: | |
Taxes and Assessment Details
Values
| (+) Improvement Homesite Value: | + | $0 | |
| (+) Improvement Non-Homesite Value: | + | $434,560 | |
| (+) Land Homesite Value: | + | $0 | |
| (+) Land Non-Homesite Value: | + | $153,450 | |
| (+) Curr Use (HS): | + | $0 | $0 |
| (+) Curr Use (NHS): | + | $0 | $0 |
| | | -------------------------- | |
| (=) Market Value: | = | $588,010 | |
| (–) Productivity Loss: | – | $0 | |
| | | -------------------------- | |
| (=) Subtotal: | = | $588,010 | |
| (+) Senior Appraised Value: | + | $0 | |
| (+) Non-Senior Appraised Value: | + | $588,010 | |
| | | -------------------------- | |
| (=) Total Appraised Value: | = | $588,010 | |
| (–) Senior Exemption Loss: | – | $0 | |
| (–) Exemption Loss: | – | $0 | |
| | | -------------------------- | |
| (=) Taxable Value: | = | $588,010 | |
Taxing Jurisdiction
| Owner: | NOKES STEVEN C & MARILYN H | | |
| % Ownership: | 100.0000000000% | | |
| Total Value: | $588,010 | | |
| Tax Area: | 101 - 140-4 |
| CERFD | CURRENT EXPENSE REFUND 010 | 0.0000000000 | $588,010 | $588,010 | $0.00 | | |
| CURREXP | CURRENT EXPENSE 010 | 1.0175366760 | $588,010 | $588,010 | $598.32 | | |
| HUMNSERV | HUMAN SERVICES 119 | 0.0250000000 | $588,010 | $588,010 | $14.70 | | |
| SLDREL | SOLDIERS RELIEF 121 | 0.0155990005 | $588,010 | $588,010 | $9.17 | | |
| EMERGSER | EMS 147 | 0.3792580840 | $588,010 | $588,010 | $223.01 | | |
| EMSRFD | EMS REFUND 147 | 0.0000000000 | $588,010 | $588,010 | $0.00 | | |
| FD4EXP | FD #4 EXPENSE 686 | 0.8836993059 | $588,010 | $588,010 | $519.62 | | |
| RLBRFD | RURAL LIBRARY REFUND 623 | 0.0000000000 | $588,010 | $588,010 | $0.00 | | |
| RURALLIB | RURAL LIBRARY 623 | 0.3710609029 | $588,010 | $588,010 | $218.19 | | |
| PORTRFD | PORT REFUND 640 | 0.0000000000 | $588,010 | $588,010 | $0.00 | | |
| PORTWWGEN | PORT OF WW 640 | 0.2460186015 | $588,010 | $588,010 | $144.66 | | |
| SD140BOND | SD #140 BOND 764 | 0.8342371393 | $588,010 | $588,010 | $490.54 | | |
| SD140GEN | SD #140 GENERAL 760 | 2.0646500647 | $588,010 | $588,010 | $1,214.03 | | |
| ST2 | STATE SCHOOL PART 2 600 | 0.8131451643 | $588,010 | $588,010 | $478.14 | | |
| STATESCHL | STATE SCHOOL 600 | 1.5158548041 | $588,010 | $588,010 | $891.34 | | |
| STREFUND | STATE REFUND LEVY 603 | 0.0000000000 | $588,010 | $588,010 | $0.00 | | |
| COROAD | COUNTY ROAD 115 | 1.6549953990 | $588,010 | $588,010 | $973.15 | | |
| CRPRD | COUNTY ROAD REFUND 115 | 0.0000000000 | $588,010 | $588,010 | $0.00 | | |
| | Total Tax Rate: | 9.8210551422 | | | | | |
| | | | | Taxes w/Current Exemptions: | $5,774.87 | | |
| | | | | Taxes w/o Exemptions: | $5,774.87 | | |
Improvement / Building
| Improvement #1: | RESIDENTIAL | State Code: | 11 | 1974.0 sqft | Value: | $434,560 |
| Exterior Wall: | SIDING | Heating/Cooling: | BASEBOARD ELECTRIC | | Number of Bathrooms: | 2 | Number of Bedrooms: | 3 | | Plumbing: | 10 | Roof Covering: | COMP SHINGLE |
|
| | Type | Description | Class CD | Sub Class CD | Year Built | Area |
| | MA | Main Area | 1 | 30 | 1895 | 1974.0 |
| | SI1 | SITE IMPROVEMENT | 1 | 30 | 1895 | 4.5 |
| | DTG | Detached Garage | 1 | 30 | 1895 | 483.0 |
| | UTST | Utility Storage Shed | 1 | 30 | 1895 | 288.0 |
| | POL2 | POLE BUILDING-CONCRETE | 1 | 30 | 2023 | 6500.0 |
Sketch
Property Image
Land
| 1 | RES 1 | Converted: Residential | 5.6800 | 0.00 | 0.00 | 0.00 | 1.00 | $153,450 | $0 |
Roll Value History
| 2025 | N/A | N/A | N/A | N/A | N/A |
| 2024 | $434,560 | $153,450 | $0 | $588,010 | $588,010 |
| 2023 | $434,560 | $153,450 | $0 | $588,010 | $588,010 |
| 2022 | $274,080 | $153,450 | $0 | $427,530 | $427,530 |
| 2021 | $124,560 | $112,400 | $0 | $236,960 | $236,960 |
| 2020 | $77,850 | $112,400 | $0 | $190,250 | $190,250 |
| 2019 | $77,850 | $112,400 | $0 | $190,250 | $190,250 |
| 2018 | $77,850 | $112,400 | $0 | $190,250 | $190,250 |
| 2017 | $77,850 | $112,400 | $0 | $190,250 | $190,250 |
| 2016 | $77,850 | $112,400 | $0 | $190,250 | $190,250 |
| 2015 | $46,400 | $112,400 | $0 | $158,800 | $158,800 |
| 2014 | $46,400 | $112,400 | $0 | $158,800 | $158,800 |
| 2013 | $46,400 | $112,400 | $0 | $158,800 | $158,800 |
| 2012 | $86,100 | $112,400 | $0 | $0 | $0 |
| 2011 | $86,100 | $112,400 | $0 | $0 | $0 |
| 2010 | $91,600 | $112,400 | $0 | $0 | $0 |
| 2009 | $96,400 | $112,400 | $0 | $0 | $0 |
| 2008 | $72,200 | $63,700 | $0 | $0 | $0 |
| 2007 | $72,200 | $63,700 | $0 | $0 | $0 |
| 2006 | $72,200 | $63,700 | $0 | $0 | $0 |
Deed and Sales History
| 1 | 05/09/2022 | FUL | FULFILLMENT DEED | AICHELE GERALD & MONTI | NOKES STEVEN C & MARILYN H | | | | 0 | 2022-03899 |
| 2 | 07/27/2021 | REAL ESTAT | REAL ESTATE CONTRACT | AICHELE GERALD & MONTI | NOKES STEVEN C & MARILYN H | | | $450,000.00 | 142129 | 2021-09129 |
| 3 | 08/01/2011 | WARRANTY D | WARRANTY DEED | CONKEY, GEORGE T | AICHELE, GERALD & MONTI | | | $160,000.00 | 120488 | 2011-05974 |
| 4 | 07/16/2003 | QCD | QUIT CLAIM DEED | CONKEY, CARLTON G | CONKEY, GEORGE T | | | | 102573 | 2003-10521 |
| 5 | 01/01/1954 | QCD | QUIT CLAIM DEED | | | | | $0.00 | 0 | 1879-101471 |
Payout Agreement
| No payout information available.. |