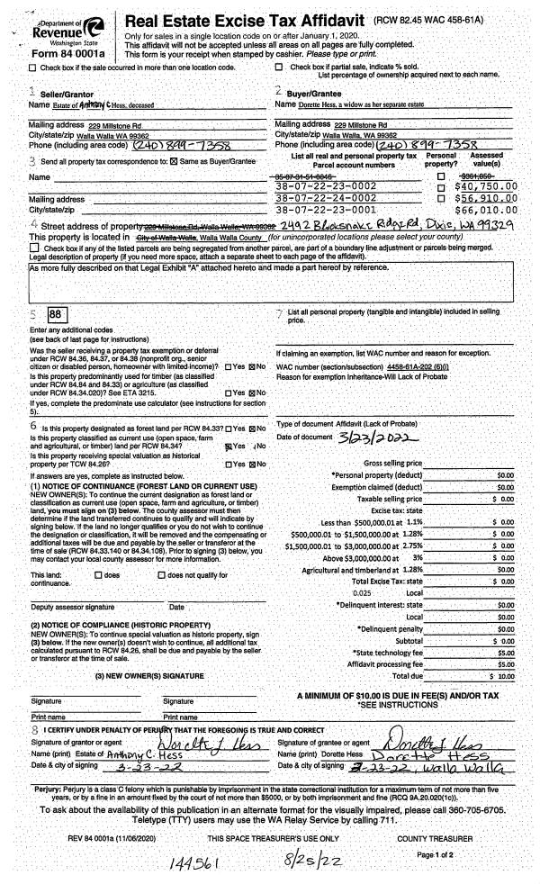
Property
Account |
| Property ID: | 32156 | Abbreviated Legal Description: | 23-7-36 PARCEL 1 OF 1992 (ORIGINAL) SURVEY (PTNS OF SE1/4NE1/4 SEC22 & THE SW1/4 OF NW1/4 SEC 23) PLUS PTN OF RD |
| Parcel Number: | 360723230046 | Agent Code: | |
| Type: | Real | | |
| Tax Area: | 105 - 140-F-4 | Land Use Code | 11 |
| Open Space: | N | DFL | N |
| Historic Property: | N | Remodel Property: | N |
| Multi-Family Redevelopment: | N | | |
| Township: | 7 | Section: | 23 |
| Range: | 36 |
Location |
| Address: | 3010 RESERVOIR RD WALLA WALLA, WA 99362 | Mapsco: | |
| Neighborhood: | SFR MH | Map ID: | |
| Neighborhood CD: | 413061 |
Owner |
| Name: | PRISACARIU CONSTANTIN & KAITLYN D | Owner ID: | 64903 |
| Mailing Address: | 3010 RESERVOR RD WALLA WALLA, WA 99362 | % Ownership: | 100.0000000000% |
| | | Exemptions: | |
Taxes and Assessment Details
Values
| (+) Improvement Homesite Value: | + | $0 | |
| (+) Improvement Non-Homesite Value: | + | $376,350 | |
| (+) Land Homesite Value: | + | $0 | |
| (+) Land Non-Homesite Value: | + | $110,150 | |
| (+) Curr Use (HS): | + | $0 | $0 |
| (+) Curr Use (NHS): | + | $0 | $0 |
| | | -------------------------- | |
| (=) Market Value: | = | $486,500 | |
| (–) Productivity Loss: | – | $0 | |
| | | -------------------------- | |
| (=) Subtotal: | = | $486,500 | |
| (+) Senior Appraised Value: | + | $0 | |
| (+) Non-Senior Appraised Value: | + | $486,500 | |
| | | -------------------------- | |
| (=) Total Appraised Value: | = | $486,500 | |
| (–) Senior Exemption Loss: | – | $0 | |
| (–) Exemption Loss: | – | $0 | |
| | | -------------------------- | |
| (=) Taxable Value: | = | $486,500 | |
Taxing Jurisdiction
| Owner: | PRISACARIU CONSTANTIN & KAITLYN D | | |
| % Ownership: | 100.0000000000% | | |
| Total Value: | $486,500 | | |
| Tax Area: | 105 - 140-F-4 |
| CERFD | CURRENT EXPENSE REFUND 010 | 0.0000000000 | $486,500 | $486,500 | $0.00 | | |
| CURREXP | CURRENT EXPENSE 010 | 1.0175366760 | $486,500 | $486,500 | $495.03 | | |
| HUMNSERV | HUMAN SERVICES 119 | 0.0250000000 | $486,500 | $486,500 | $12.16 | | |
| SLDREL | SOLDIERS RELIEF 121 | 0.0155990005 | $486,500 | $486,500 | $7.59 | | |
| EMERGSER | EMS 147 | 0.3792580840 | $486,500 | $486,500 | $184.51 | | |
| EMSRFD | EMS REFUND 147 | 0.0000000000 | $486,500 | $486,500 | $0.00 | | |
| FD4EXP | FD #4 EXPENSE 686 | 0.8836993059 | $486,500 | $486,500 | $429.92 | | |
| RLBRFD | RURAL LIBRARY REFUND 623 | 0.0000000000 | $486,500 | $486,500 | $0.00 | | |
| RURALLIB | RURAL LIBRARY 623 | 0.3710609029 | $486,500 | $486,500 | $180.52 | | |
| PORTRFD | PORT REFUND 640 | 0.0000000000 | $486,500 | $486,500 | $0.00 | | |
| PORTWWGEN | PORT OF WW 640 | 0.2460186015 | $486,500 | $486,500 | $119.69 | | |
| SD140BOND | SD #140 BOND 764 | 0.8342371393 | $486,500 | $486,500 | $405.86 | | |
| SD140GEN | SD #140 GENERAL 760 | 2.0646500647 | $486,500 | $486,500 | $1,004.45 | | |
| ST2 | STATE SCHOOL PART 2 600 | 0.8131451643 | $486,500 | $486,500 | $395.60 | | |
| STATESCHL | STATE SCHOOL 600 | 1.5158548041 | $486,500 | $486,500 | $737.46 | | |
| STREFUND | STATE REFUND LEVY 603 | 0.0000000000 | $486,500 | $486,500 | $0.00 | | |
| COROAD | COUNTY ROAD 115 | 1.6549953990 | $486,500 | $486,500 | $805.16 | | |
| CRPRD | COUNTY ROAD REFUND 115 | 0.0000000000 | $486,500 | $486,500 | $0.00 | | |
| | Total Tax Rate: | 9.8210551422 | | | | | |
| | | | | Taxes w/Current Exemptions: | $4,777.95 | | |
| | | | | Taxes w/o Exemptions: | $4,777.95 | | |
Improvement / Building
| Improvement #1: | MANUFACTURED HOME | State Code: | 11 | 1890.0 sqft | Value: | $376,350 |
| Exterior Wall: | STUCCO | Heating/Cooling: | WARM & COOLED AIR | | Number of Bathrooms: | 2 | Number of Bedrooms: | 3 | | Plumbing: | 8 | Roof Covering: | COMP SHINGLE |
|
| | Type | Description | Class CD | Sub Class CD | Year Built | Area |
| | MOBHOME | MANUFACTURD HOMES | 1 | 50 | 1992 | 1296.0 |
| | MI1 | MH SET-UP COSTS | 1 | 50 | 1992 | 1.0 |
| | RPC | OPEN PORCH W/ROOF , CEILED | 1 | 50 | 2019 | 144.0 |
| | RPC | OPEN PORCH W/ROOF , CEILED | 1 | 50 | 2019 | 192.0 |
| | DTG | Detached Garage | 1 | 50 | 2019 | 1281.0 |
| | BON5 | BONUS RM ATT FIN,W&C,FIXTURES | 1 | 50 | 2019 | 594.0 |
| | UTST | Utility Storage Shed | 1 | 50 | 1992 | 204.0 |
Sketch
Property Image
Land
| 1 | RES 1 | Converted: Residential | 2.0100 | 0.00 | 0.00 | 0.00 | 1.00 | $110,150 | $0 |
Roll Value History
| 2025 | N/A | N/A | N/A | N/A | N/A |
| 2024 | $376,350 | $110,150 | $0 | $486,500 | $486,500 |
| 2023 | $376,350 | $110,150 | $0 | $486,500 | $486,500 |
| 2022 | $385,930 | $85,130 | $0 | $471,060 | $471,060 |
| 2021 | $385,930 | $85,130 | $0 | $471,060 | $471,060 |
| 2020 | $132,850 | $85,130 | $0 | $217,980 | $217,980 |
| 2019 | $67,980 | $85,130 | $0 | $153,110 | $153,110 |
| 2018 | $67,980 | $85,130 | $0 | $153,110 | $53,440 |
| 2017 | $67,980 | $85,130 | $0 | $153,110 | $53,440 |
| 2016 | $70,140 | $71,100 | $0 | $141,240 | $53,440 |
| 2015 | $70,140 | $71,100 | $0 | $141,240 | $53,440 |
| 2014 | $68,100 | $71,100 | $0 | $139,200 | $53,440 |
| 2013 | $68,100 | $71,100 | $0 | $139,200 | $53,440 |
| 2012 | $55,400 | $71,100 | $0 | $0 | $0 |
| 2011 | $62,500 | $71,100 | $0 | $0 | $0 |
| 2010 | $62,500 | $71,100 | $0 | $0 | $0 |
| 2009 | $69,500 | $71,100 | $0 | $0 | $0 |
| 2008 | $69,500 | $71,100 | $0 | $0 | $0 |
| 2007 | $69,500 | $71,100 | $0 | $0 | $0 |
| 2006 | $54,100 | $37,600 | $0 | $0 | $0 |
Deed and Sales History
| 1 | 04/02/2019 | SWD | STATUTORY WARRANTY DEED | HEISER DONNA | PRISACARIU CONSTANTIN & KAITLYN D | | | $239,000.00 | 136597 | 2019-02060 |
| 2 | 03/03/2009 | QCD | QUIT CLAIM DEED | HEISER, CASPER TRUST | HEISER, DONNA | | | | 116413 | 2009-02066 |
Payout Agreement
| No payout information available.. |