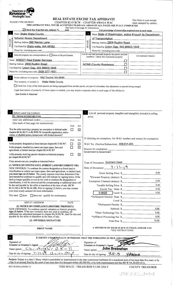
Property
Account |
| Property ID: | 32130 | Abbreviated Legal Description: | 29-7-36 TAX 139 & 143 |
| Parcel Number: | 360729140029 | Agent Code: | |
| Type: | Real | | |
| Tax Area: | 1 - OL-140-F | Land Use Code | 11 |
| Open Space: | N | DFL | N |
| Historic Property: | N | Remodel Property: | N |
| Multi-Family Redevelopment: | N | | |
| Township: | 7 | Section: | 29 |
| Range: | 36 |
Location |
| Address: | 920 CATHERINE ST WA 99362 | Mapsco: | |
| Neighborhood: | G Res | Map ID: | |
| Neighborhood CD: | 614011 |
Owner |
| Name: | GORDON ADAM S | Owner ID: | 65262 |
| Mailing Address: | 920 CATHERINE ST WALLA WALLA, WA 99362 | % Ownership: | 100.0000000000% |
| | | Exemptions: | |
Taxes and Assessment Details
Values
| (+) Improvement Homesite Value: | + | $0 | |
| (+) Improvement Non-Homesite Value: | + | $379,080 | |
| (+) Land Homesite Value: | + | $0 | |
| (+) Land Non-Homesite Value: | + | $103,000 | |
| (+) Curr Use (HS): | + | $0 | $0 |
| (+) Curr Use (NHS): | + | $0 | $0 |
| | | -------------------------- | |
| (=) Market Value: | = | $482,080 | |
| (–) Productivity Loss: | – | $0 | |
| | | -------------------------- | |
| (=) Subtotal: | = | $482,080 | |
| (+) Senior Appraised Value: | + | $0 | |
| (+) Non-Senior Appraised Value: | + | $482,080 | |
| | | -------------------------- | |
| (=) Total Appraised Value: | = | $482,080 | |
| (–) Senior Exemption Loss: | – | $0 | |
| (–) Exemption Loss: | – | $0 | |
| | | -------------------------- | |
| (=) Taxable Value: | = | $482,080 | |
Taxing Jurisdiction
| Owner: | GORDON ADAM S | | |
| % Ownership: | 100.0000000000% | | |
| Total Value: | $482,080 | | |
| Tax Area: | 1 - OL-140-F |
| CERFD | CURRENT EXPENSE REFUND 010 | 0.0000000000 | $482,080 | $482,080 | $0.00 | | |
| CURREXP | CURRENT EXPENSE 010 | 1.0175366760 | $482,080 | $482,080 | $490.53 | | |
| HUMNSERV | HUMAN SERVICES 119 | 0.0250000000 | $482,080 | $482,080 | $12.05 | | |
| SLDREL | SOLDIERS RELIEF 121 | 0.0155990005 | $482,080 | $482,080 | $7.52 | | |
| EMERGSER | EMS 147 | 0.3792580840 | $482,080 | $482,080 | $182.83 | | |
| EMSRFD | EMS REFUND 147 | 0.0000000000 | $482,080 | $482,080 | $0.00 | | |
| PORTRFD | PORT REFUND 640 | 0.0000000000 | $482,080 | $482,080 | $0.00 | | |
| PORTWWGEN | PORT OF WW 640 | 0.2460186015 | $482,080 | $482,080 | $118.60 | | |
| SD140BOND | SD #140 BOND 764 | 0.8342371393 | $482,080 | $482,080 | $402.17 | | |
| SD140GEN | SD #140 GENERAL 760 | 2.0646500647 | $482,080 | $482,080 | $995.33 | | |
| ST2 | STATE SCHOOL PART 2 600 | 0.8131451643 | $482,080 | $482,080 | $392.00 | | |
| STATESCHL | STATE SCHOOL 600 | 1.5158548041 | $482,080 | $482,080 | $730.76 | | |
| STREFUND | STATE REFUND LEVY 603 | 0.0000000000 | $482,080 | $482,080 | $0.00 | | |
| CWWBOND | C OF WW BOND 643 | 0.2760494372 | $482,080 | $482,080 | $133.08 | | |
| CWWGEN | CITY OF WW 631 | 1.6100204973 | $482,080 | $482,080 | $776.16 | | |
| CWWRFD | CITY OF WALLA WALLA REFUND 631 | 0.0000000000 | $482,080 | $482,080 | $0.00 | | |
| | Total Tax Rate: | 8.7973694689 | | | | | |
| | | | | Taxes w/Current Exemptions: | $4,241.03 | | |
| | | | | Taxes w/o Exemptions: | $4,241.03 | | |
Improvement / Building
| Improvement #1: | RESIDENTIAL | State Code: | 11 | 1299.0 sqft | Value: | $379,080 |
| Exterior Wall: | SIDING | Heating/Cooling: | WARM & COOLED AIR | | Number of Bathrooms: | 2.5 | Number of Bedrooms: | 3 | | Plumbing: | 15 | Roof Covering: | COMP SHINGLE |
|
| | Type | Description | Class CD | Sub Class CD | Year Built | Area |
| | MA | Main Area | 1 | 35 | 1925 | 1299.0 |
| | SI1 | SITE IMPROVEMENT | 1 | 35 | 1925 | 3.0 |
| | BASE | BASEMENT | 1 | 35 | 1925 | 965.0 |
| | BPF | BASEMENT -PARTITIONED FINISH | 1 | 35 | 1925 | 965.0 |
| | DTG | Detached Garage | 1 | 35 | 1925 | 396.0 |
| | RPS | PORCH W/STEPS,ROOF | 1 | 35 | 1925 | 48.0 |
| | WOD | Wood Deck | 1 | 35 | 1925 | 80.0 |
| | S1F | Single One Story Fireplace | 1 | 35 | 0 | 1.0 |
Sketch
Property Image
Land
| 1 | RES 1 | Converted: Residential | 0.2365 | 10300.00 | 0.00 | 0.00 | 1.00 | $103,000 | $0 |
Roll Value History
| 2025 | N/A | N/A | N/A | N/A | N/A |
| 2024 | $379,080 | $103,000 | $0 | $482,080 | $482,080 |
| 2023 | $379,080 | $103,000 | $0 | $482,080 | $482,080 |
| 2022 | $315,900 | $84,980 | $0 | $400,880 | $400,880 |
| 2021 | $274,690 | $84,980 | $0 | $359,670 | $359,670 |
| 2020 | $249,720 | $84,980 | $0 | $334,700 | $334,700 |
| 2019 | $249,720 | $84,980 | $0 | $334,700 | $334,700 |
| 2018 | $204,790 | $47,400 | $0 | $252,190 | $252,190 |
| 2017 | $204,790 | $47,400 | $0 | $252,190 | $252,190 |
| 2016 | $178,080 | $47,400 | $0 | $225,480 | $225,480 |
| 2015 | $178,080 | $47,400 | $0 | $225,480 | $225,480 |
| 2014 | $169,600 | $47,400 | $0 | $217,000 | $217,000 |
| 2013 | $169,600 | $47,400 | $0 | $217,000 | $217,000 |
| 2012 | $159,300 | $47,400 | $0 | $0 | $0 |
| 2011 | $159,300 | $47,400 | $0 | $0 | $0 |
| 2010 | $149,500 | $47,400 | $0 | $0 | $0 |
| 2009 | $171,400 | $47,400 | $0 | $0 | $0 |
| 2008 | $171,400 | $47,400 | $0 | $0 | $0 |
| 2007 | $89,300 | $20,100 | $0 | $0 | $0 |
| 2006 | $89,300 | $20,100 | $0 | $0 | $0 |
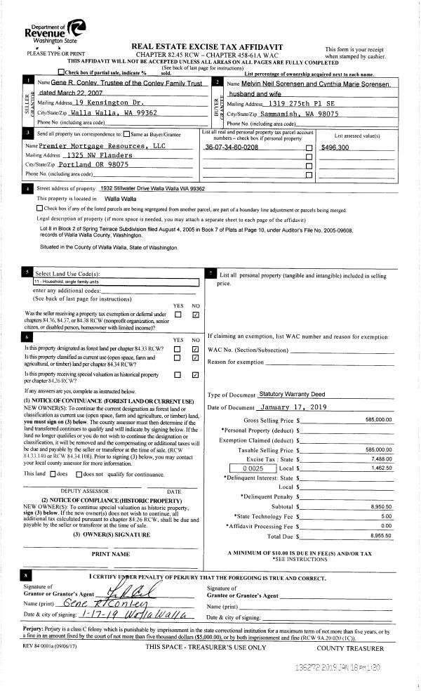
Deed and Sales History
| 1 | 06/11/2019 | SWD | STATUTORY WARRANTY DEED | SIMON MICHAEL T | GORDON ADAM S | | | $369,000.00 | 137047 | 2019-04041 |
| 2 | 07/26/2011 | WARRANTY D | WARRANTY DEED | ROSSO, GARY L | SIMON, MICHAEL T | | | $225,000.00 | 120464 | 2011-05811 |
| 3 | 04/14/1995 | WARRANTY D | WARRANTY DEED | | | | | $85,000.00 | 83836 | 2299-503461 |
Payout Agreement
| No payout information available.. |