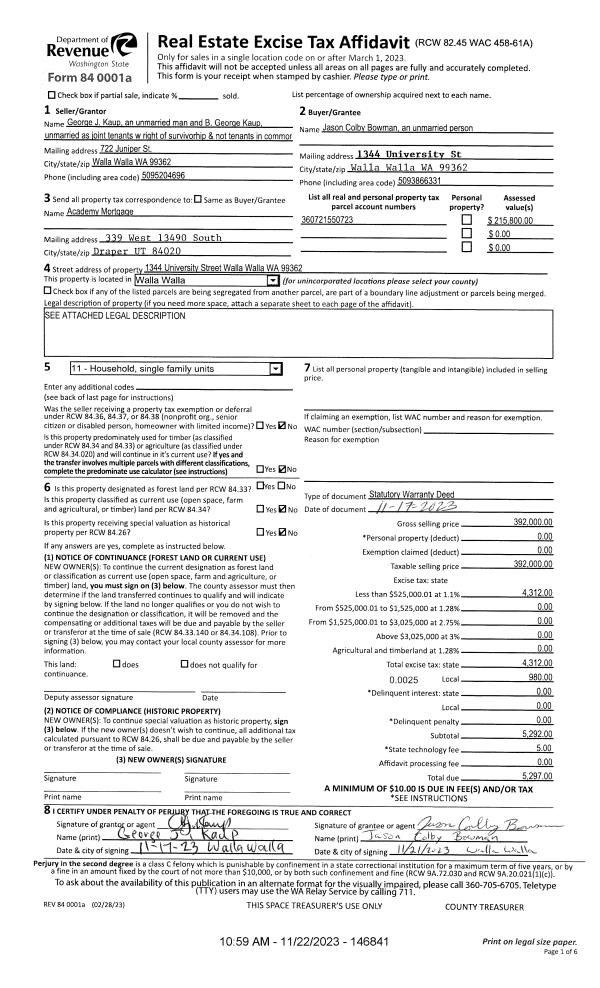
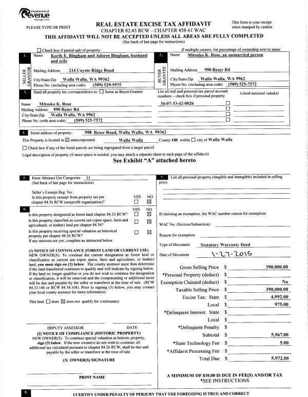
Property
Account |
| Property ID: | 32115 | Abbreviated Legal Description: | VALLEY HOMES LOT 2 OF SHORT PLAT (NELY PTN LOT 35) |
| Parcel Number: | 360722560243 | Agent Code: | |
| Type: | Real | | |
| Tax Area: | 6 - OL-140-F-FB | Land Use Code | 11 |
| Open Space: | N | DFL | N |
| Historic Property: | N | Remodel Property: | N |
| Multi-Family Redevelopment: | N | | |
| Township: | 7 | Section: | 22 |
| Range: | 36 |
Location |
| Address: | 1840 GARDEN ST WA 99362 | Mapsco: | |
| Neighborhood: | A SFR | Map ID: | |
| Neighborhood CD: | 413011 |
Owner |
| Name: | GARY AND LOUISE WILLIAMS TRUST | Owner ID: | 72989 |
| Mailing Address: | 155 NORTH TAMARACK SISTERS, OR 97759 | % Ownership: | 100.0000000000% |
| | | Exemptions: | |
Taxes and Assessment Details
Values
| (+) Improvement Homesite Value: | + | $0 | |
| (+) Improvement Non-Homesite Value: | + | $277,000 | |
| (+) Land Homesite Value: | + | $0 | |
| (+) Land Non-Homesite Value: | + | $56,660 | |
| (+) Curr Use (HS): | + | $0 | $0 |
| (+) Curr Use (NHS): | + | $0 | $0 |
| | | -------------------------- | |
| (=) Market Value: | = | $333,660 | |
| (–) Productivity Loss: | – | $0 | |
| | | -------------------------- | |
| (=) Subtotal: | = | $333,660 | |
| (+) Senior Appraised Value: | + | $0 | |
| (+) Non-Senior Appraised Value: | + | $333,660 | |
| | | -------------------------- | |
| (=) Total Appraised Value: | = | $333,660 | |
| (–) Senior Exemption Loss: | – | $0 | |
| (–) Exemption Loss: | – | $0 | |
| | | -------------------------- | |
| (=) Taxable Value: | = | $333,660 | |
Taxing Jurisdiction
| Owner: | GARY AND LOUISE WILLIAMS TRUST | | |
| % Ownership: | 100.0000000000% | | |
| Total Value: | $333,660 | | |
| Tax Area: | 6 - OL-140-F-FB |
| CERFD | CURRENT EXPENSE REFUND 010 | 0.0000000000 | $333,660 | $333,660 | $0.00 | | |
| CURREXP | CURRENT EXPENSE 010 | 1.0175366760 | $333,660 | $333,660 | $339.51 | | |
| HUMNSERV | HUMAN SERVICES 119 | 0.0250000000 | $333,660 | $333,660 | $8.34 | | |
| SLDREL | SOLDIERS RELIEF 121 | 0.0155990005 | $333,660 | $333,660 | $5.20 | | |
| EMERGSER | EMS 147 | 0.3792580840 | $333,660 | $333,660 | $126.54 | | |
| EMSRFD | EMS REFUND 147 | 0.0000000000 | $333,660 | $333,660 | $0.00 | | |
| PORTRFD | PORT REFUND 640 | 0.0000000000 | $333,660 | $333,660 | $0.00 | | |
| PORTWWGEN | PORT OF WW 640 | 0.2460186015 | $333,660 | $333,660 | $82.09 | | |
| SD140BOND | SD #140 BOND 764 | 0.8342371393 | $333,660 | $333,660 | $278.35 | | |
| SD140GEN | SD #140 GENERAL 760 | 2.0646500647 | $333,660 | $333,660 | $688.89 | | |
| ST2 | STATE SCHOOL PART 2 600 | 0.8131451643 | $333,660 | $333,660 | $271.31 | | |
| STATESCHL | STATE SCHOOL 600 | 1.5158548041 | $333,660 | $333,660 | $505.78 | | |
| STREFUND | STATE REFUND LEVY 603 | 0.0000000000 | $333,660 | $333,660 | $0.00 | | |
| CWWBOND | C OF WW BOND 643 | 0.2760494372 | $333,660 | $333,660 | $92.11 | | |
| CWWGEN | CITY OF WW 631 | 1.6100204973 | $333,660 | $333,660 | $537.20 | | |
| CWWRFD | CITY OF WALLA WALLA REFUND 631 | 0.0000000000 | $333,660 | $333,660 | $0.00 | | |
| | Total Tax Rate: | 8.7973694689 | | | | | |
| | | | | Taxes w/Current Exemptions: | $2,935.32 | | |
| | | | | Taxes w/o Exemptions: | $2,935.32 | | |
Improvement / Building
| Improvement #1: | RESIDENTIAL | State Code: | 11 | 1364.0 sqft | Value: | $277,000 |
| Exterior Wall: | PLYWOOD | Heating/Cooling: | HEAT PUMP | | Number of Bathrooms: | 2 | Number of Bedrooms: | 3 | | Plumbing: | 9 | Roof Covering: | COMP SHINGLE |
|
| | Type | Description | Class CD | Sub Class CD | Year Built | Area |
| | MA | Main Area | 1 | 35 | 2008 | 1364.0 |
| | PRC | PORCH W STEPS, ROOF,CEILED | 1 | 35 | 0 | 176.0 |
| | RPC | OPEN PORCH W/ROOF , CEILED | 1 | 35 | 0 | 24.0 |
| | SI1 | SITE IMPROVEMENT | 1 | 35 | 0 | 3.0 |
| | ATG | Attached Garage | 1 | 35 | 2008 | 420.0 |
Sketch
Property Image
Land
| 1 | RES 1 | Converted: Residential | 0.1626 | 7083.00 | 0.00 | 0.00 | 1.00 | $56,660 | $0 |
Roll Value History
| 2025 | N/A | N/A | N/A | N/A | N/A |
| 2024 | $277,000 | $56,660 | $0 | $333,660 | $333,660 |
| 2023 | $277,000 | $56,660 | $0 | $333,660 | $333,660 |
| 2022 | $287,850 | $45,000 | $0 | $332,850 | $332,850 |
| 2021 | $261,680 | $45,000 | $0 | $306,680 | $306,680 |
| 2020 | $163,550 | $45,000 | $0 | $208,550 | $208,550 |
| 2019 | $163,550 | $45,000 | $0 | $208,550 | $208,550 |
| 2018 | $148,680 | $45,000 | $0 | $193,680 | $193,680 |
| 2017 | $148,680 | $45,000 | $0 | $193,680 | $193,680 |
| 2016 | $148,680 | $45,000 | $0 | $193,680 | $193,680 |
| 2015 | $136,180 | $45,000 | $0 | $181,180 | $181,180 |
| 2014 | $123,800 | $45,000 | $0 | $168,800 | $168,800 |
| 2013 | $123,800 | $45,000 | $0 | $168,800 | $168,800 |
| 2012 | $142,600 | $45,000 | $0 | $0 | $0 |
| 2011 | $147,500 | $45,000 | $0 | $0 | $0 |
| 2010 | $147,500 | $45,000 | $0 | $0 | $0 |
| 2009 | $164,600 | $45,000 | $0 | $0 | $0 |
| 2008 | $22,000 | $9,400 | $0 | $0 | $0 |
| 2007 | $123,800 | $45,000 | $0 | $0 | $0 |
Deed and Sales History
| 1 | 01/06/2023 | QCD | QUIT CLAIM DEED | WILLIAMS GARY & LOUISE C | GARY AND LOUISE WILLIAMS TRUST | | 3-PARCELS | $0.00 | 145231 | 2023-00081 |
| 2 | 03/14/2022 | QCD | QUIT CLAIM DEED | WILLIAMS GARY THORPE | WILLIAMS GARY & LOUISE C | | | $0.00 | 143553 | 2022-02166 |
| 3 | 07/29/2011 | WARRANTY D | WARRANTY DEED | UNCK, CHAEMI | WILLIAMS, GARY THORPE | | | $185,000.00 | 120477 | 2011-05901 |
| 4 | 03/17/2008 | WARRANTY D | WARRANTY DEED | DAWSON, BEN J | PREAS, CHAEMI | | | $212,500.00 | 114686 | 2008-02471 |
Payout Agreement
| No payout information available.. |