Property
Account |
| Property ID: | 32089 | Abbreviated Legal Description: | SEC 36 TWN 7 RNG 34 PARCEL 5 |
| Parcel Number: | 340736430005 | Agent Code: | |
| Type: | Real | | |
| Tax Area: | 101 - 140-4 | Land Use Code | 83 |
| Open Space: | Y | DFL | N |
| Historic Property: | N | Remodel Property: | N |
| Multi-Family Redevelopment: | N | | |
| Township: | 7 | Section: | 36 |
| Range: | 34 |
Location |
| Address: | 929 DETOUR RD WA 99362 | Mapsco: | |
| Neighborhood: | 0 Farm | Map ID: | |
| Neighborhood CD: | 2220 |
Owner |
| Name: | RAU BENJAMIN & MAEVE MCCLELLAN | Owner ID: | 70876 |
| Mailing Address: | 929 DETOUR RD WALLA WALLA, WA 99362 | % Ownership: | 100.0000000000% |
| | | Exemptions: | |
Taxes and Assessment Details
Values
| (+) Improvement Homesite Value: | + | $0 | |
| (+) Improvement Non-Homesite Value: | + | $408,200 | |
| (+) Land Homesite Value: | + | $0 | |
| (+) Land Non-Homesite Value: | + | $0 | |
| (+) Curr Use (HS): | + | $150,000 | $150,000 |
| (+) Curr Use (NHS): | + | $49,320 | $4,320 |
| | | -------------------------- | |
| (=) Market Value: | = | $607,520 | |
| (–) Productivity Loss: | – | $45,000 | |
| | | -------------------------- | |
| (=) Subtotal: | = | $562,520 | |
| (+) Senior Appraised Value: | + | $0 | |
| (+) Non-Senior Appraised Value: | + | $562,520 | |
| | | -------------------------- | |
| (=) Total Appraised Value: | = | $562,520 | |
| (–) Senior Exemption Loss: | – | $0 | |
| (–) Exemption Loss: | – | $0 | |
| | | -------------------------- | |
| (=) Taxable Value: | = | $562,520 | |
Taxing Jurisdiction
| Owner: | RAU BENJAMIN & MAEVE MCCLELLAN | | |
| % Ownership: | 100.0000000000% | | |
| Total Value: | $607,520 | | |
| Tax Area: | 101 - 140-4 |
| CERFD | CURRENT EXPENSE REFUND 010 | 0.0000000000 | $562,520 | $562,520 | $0.00 | | |
| CURREXP | CURRENT EXPENSE 010 | 1.0175366760 | $562,520 | $562,520 | $572.38 | | |
| HUMNSERV | HUMAN SERVICES 119 | 0.0250000000 | $562,520 | $562,520 | $14.06 | | |
| SLDREL | SOLDIERS RELIEF 121 | 0.0155990005 | $562,520 | $562,520 | $8.77 | | |
| EMERGSER | EMS 147 | 0.3792580840 | $562,520 | $562,520 | $213.34 | | |
| EMSRFD | EMS REFUND 147 | 0.0000000000 | $562,520 | $562,520 | $0.00 | | |
| FD4EXP | FD #4 EXPENSE 686 | 0.8836993059 | $562,520 | $562,520 | $497.10 | | |
| RLBRFD | RURAL LIBRARY REFUND 623 | 0.0000000000 | $562,520 | $562,520 | $0.00 | | |
| RURALLIB | RURAL LIBRARY 623 | 0.3710609029 | $562,520 | $562,520 | $208.73 | | |
| PORTRFD | PORT REFUND 640 | 0.0000000000 | $562,520 | $562,520 | $0.00 | | |
| PORTWWGEN | PORT OF WW 640 | 0.2460186015 | $562,520 | $562,520 | $138.39 | | |
| SD140BOND | SD #140 BOND 764 | 0.8342371393 | $562,520 | $562,520 | $469.28 | | |
| SD140GEN | SD #140 GENERAL 760 | 2.0646500647 | $562,520 | $562,520 | $1,161.41 | | |
| ST2 | STATE SCHOOL PART 2 600 | 0.8131451643 | $562,520 | $562,520 | $457.41 | | |
| STATESCHL | STATE SCHOOL 600 | 1.5158548041 | $562,520 | $562,520 | $852.70 | | |
| STREFUND | STATE REFUND LEVY 603 | 0.0000000000 | $562,520 | $562,520 | $0.00 | | |
| COROAD | COUNTY ROAD 115 | 1.6549953990 | $562,520 | $562,520 | $930.97 | | |
| CRPRD | COUNTY ROAD REFUND 115 | 0.0000000000 | $562,520 | $562,520 | $0.00 | | |
| | Total Tax Rate: | 9.8210551422 | | | | | |
| | | | | Taxes w/Current Exemptions: | $5,524.54 | | |
| | | | | Taxes w/o Exemptions: | $5,524.54 | | |
Improvement / Building
| Improvement #1: | RESIDENTIAL | State Code: | 83 | 1654.0 sqft | Value: | $408,200 |
| Exterior Wall: | SIDING | Heating/Cooling: | WARM & COOLED AIR | | Number of Bathrooms: | 2 | Number of Bedrooms: | 3 | | Plumbing: | 12 | Roof Covering: | GALVANIZED METAL |
|
| | Type | Description | Class CD | Sub Class CD | Year Built | Area |
| | MA | Main Area | 4 | 35 | 2020 | 1654.0 |
| | SI1 | SITE IMPROVEMENT | 4 | 35 | 2020 | 5.5 |
| | ATG | Attached Garage | 4 | 35 | 2020 | 1081.0 |
| | ATG | Attached Garage | 4 | 35 | 2020 | 432.0 |
| | RPO | OPEN PORCH W/ROOF | 4 | 35 | 2020 | 90.0 |
| | UPFL | Upper Floor (included in main area) | 4 | 35 | 2020 | 635.0 |
Sketch
Property Image
Land
| 1 | HS-150,000 | Homesite 150,000 | 1.0000 | 0.00 | 0.00 | 0.00 | 1.00 | $150,000 | $150,000 |
| 2 | 4000-PAST | Pasture | 12.3300 | 0.00 | 0.00 | 0.00 | 1.00 | $49,320 | $4,320 |
Roll Value History
| 2025 | N/A | N/A | N/A | N/A | N/A |
| 2024 | $408,200 | $199,320 | $154,870 | $563,070 | $563,070 |
| 2023 | $408,200 | $199,320 | $154,320 | $562,520 | $562,520 |
| 2022 | $295,480 | $199,320 | $154,320 | $449,800 | $449,800 |
| 2021 | $295,480 | $199,320 | $154,320 | $449,800 | $449,800 |
| 2020 | $257,490 | $124,320 | $78,700 | $336,190 | $336,190 |
| 2019 | $0 | $124,320 | $78,700 | $78,700 | $78,700 |
| 2018 | $0 | $124,320 | $78,700 | $78,700 | $78,700 |
| 2017 | $0 | $124,320 | $78,700 | $78,700 | $78,700 |
| 2016 | $0 | $124,320 | $78,330 | $78,330 | $78,330 |
| 2015 | $0 | $124,320 | $78,330 | $78,330 | $78,330 |
| 2014 | $0 | $124,320 | $78,330 | $78,330 | $78,330 |
| 2013 | $0 | $124,300 | $3,310 | $78,300 | $78,300 |
| 2012 | $0 | $3,700 | $0 | $0 | $0 |
| 2011 | $0 | $3,700 | $0 | $0 | $0 |
| 2010 | $0 | $3,700 | $0 | $0 | $0 |
| 2009 | $0 | $3,700 | $0 | $0 | $0 |
| 2008 | $0 | $3,700 | $0 | $0 | $0 |
| 2007 | $0 | $33,300 | $0 | $0 | $0 |
| 2006 | $0 | $33,300 | $0 | $0 | $0 |
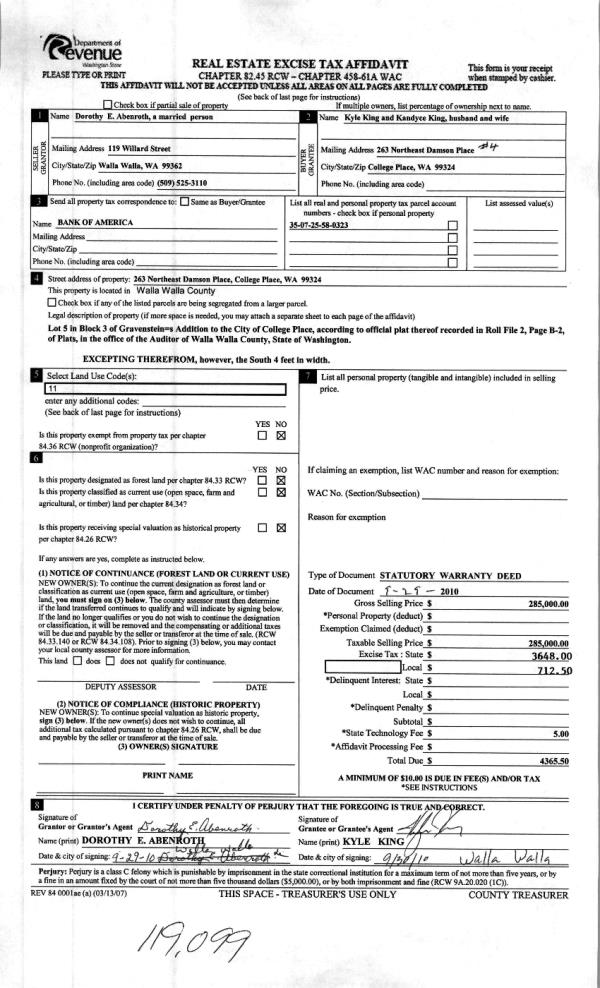
Deed and Sales History
| 1 | 12/20/2021 | SWD | STATUTORY WARRANTY DEED | ALLEN THOMAS S & DESIREE S | RAU BENJAMIN & MAEVE MCCLELLAN | | | $750,000.00 | 143090 | 2021-14898 |
| 2 | 08/27/2018 | SWD | STATUTORY WARRANTY DEED | KELLY RAYMOND S | ALLEN THOMAS S & DESIREE S | | | $0.00 | 135417 | 2018-07099 |
| 3 | 10/29/2012 | WARRANTY D | WARRANTY DEED | KELLY, HOWARD J TESTAMENTARY T | KELLY, RAYMOND S | | | $0.00 | 122896 | 2012-09555 |
| 4 | 07/26/2011 | WARRANTY D | WARRANTY DEED | KELLY, HOWARD J ESTATE | KELLY HOWARD J TESTAMENTARY TRUST | | | | 120462 | 2011-05805 |
Payout Agreement
| No payout information available.. |