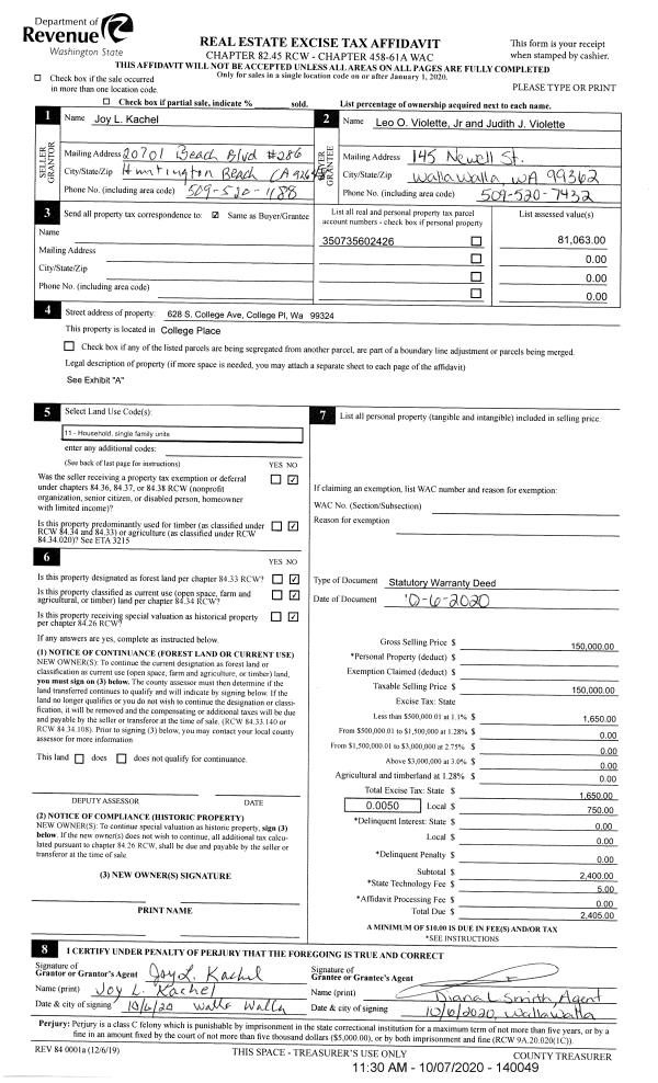
Property
Account |
| Property ID: | 32077 | Abbreviated Legal Description: | CRESTVIEW LOT 14 BLK 1 |
| Parcel Number: | 360729500114 | Agent Code: | |
| Type: | Real | | |
| Tax Area: | 1 - OL-140-F | Land Use Code | 11 |
| Open Space: | N | DFL | N |
| Historic Property: | N | Remodel Property: | N |
| Multi-Family Redevelopment: | N | | |
| Township: | 7 | Section: | 29 |
| Range: | 36 |
Location |
| Address: | 15 E TIETAN ST WA 99362 | Mapsco: | |
| Neighborhood: | A Res | Map ID: | |
| Neighborhood CD: | 613011 |
Owner |
| Name: | GOMEZ JOSE M & MARIELA GOMEZ SERRATO | Owner ID: | 68065 |
| Mailing Address: | 15 E TIETAN ST WALLA WALLA, WA 99362 | % Ownership: | 100.0000000000% |
| | | Exemptions: | |
Taxes and Assessment Details
Values
| (+) Improvement Homesite Value: | + | $0 | |
| (+) Improvement Non-Homesite Value: | + | $324,410 | |
| (+) Land Homesite Value: | + | $0 | |
| (+) Land Non-Homesite Value: | + | $92,350 | |
| (+) Curr Use (HS): | + | $0 | $0 |
| (+) Curr Use (NHS): | + | $0 | $0 |
| | | -------------------------- | |
| (=) Market Value: | = | $416,760 | |
| (–) Productivity Loss: | – | $0 | |
| | | -------------------------- | |
| (=) Subtotal: | = | $416,760 | |
| (+) Senior Appraised Value: | + | $0 | |
| (+) Non-Senior Appraised Value: | + | $416,760 | |
| | | -------------------------- | |
| (=) Total Appraised Value: | = | $416,760 | |
| (–) Senior Exemption Loss: | – | $0 | |
| (–) Exemption Loss: | – | $0 | |
| | | -------------------------- | |
| (=) Taxable Value: | = | $416,760 | |
Taxing Jurisdiction
| Owner: | GOMEZ JOSE M & MARIELA GOMEZ SERRATO | | |
| % Ownership: | 100.0000000000% | | |
| Total Value: | $416,760 | | |
| Tax Area: | 1 - OL-140-F |
| CERFD | CURRENT EXPENSE REFUND 010 | 0.0000000000 | $416,760 | $416,760 | $0.00 | | |
| CURREXP | CURRENT EXPENSE 010 | 1.0175366760 | $416,760 | $416,760 | $424.07 | | |
| HUMNSERV | HUMAN SERVICES 119 | 0.0250000000 | $416,760 | $416,760 | $10.42 | | |
| SLDREL | SOLDIERS RELIEF 121 | 0.0155990005 | $416,760 | $416,760 | $6.50 | | |
| EMERGSER | EMS 147 | 0.3792580840 | $416,760 | $416,760 | $158.06 | | |
| EMSRFD | EMS REFUND 147 | 0.0000000000 | $416,760 | $416,760 | $0.00 | | |
| PORTRFD | PORT REFUND 640 | 0.0000000000 | $416,760 | $416,760 | $0.00 | | |
| PORTWWGEN | PORT OF WW 640 | 0.2460186015 | $416,760 | $416,760 | $102.53 | | |
| SD140BOND | SD #140 BOND 764 | 0.8342371393 | $416,760 | $416,760 | $347.68 | | |
| SD140GEN | SD #140 GENERAL 760 | 2.0646500647 | $416,760 | $416,760 | $860.46 | | |
| ST2 | STATE SCHOOL PART 2 600 | 0.8131451643 | $416,760 | $416,760 | $338.89 | | |
| STATESCHL | STATE SCHOOL 600 | 1.5158548041 | $416,760 | $416,760 | $631.75 | | |
| STREFUND | STATE REFUND LEVY 603 | 0.0000000000 | $416,760 | $416,760 | $0.00 | | |
| CWWBOND | C OF WW BOND 643 | 0.2760494372 | $416,760 | $416,760 | $115.05 | | |
| CWWGEN | CITY OF WW 631 | 1.6100204973 | $416,760 | $416,760 | $670.99 | | |
| CWWRFD | CITY OF WALLA WALLA REFUND 631 | 0.0000000000 | $416,760 | $416,760 | $0.00 | | |
| | Total Tax Rate: | 8.7973694689 | | | | | |
| | | | | Taxes w/Current Exemptions: | $3,666.40 | | |
| | | | | Taxes w/o Exemptions: | $3,666.40 | | |
Improvement / Building
| Improvement #1: | RESIDENTIAL | State Code: | 11 | 1600.0 sqft | Value: | $324,410 |
| Exterior Wall: | PLYWOOD | Heating/Cooling: | WARM & COOLED AIR | | Number of Bathrooms: | 2 | Number of Bedrooms: | 3 | | Plumbing: | 9 | Roof Covering: | COMP SHINGLE |
|
| | Type | Description | Class CD | Sub Class CD | Year Built | Area |
| | MA | Main Area | 1 | 30 | 1963 | 1600.0 |
| | SI1 | SITE IMPROVEMENT | 1 | 30 | 1963 | 2.0 |
| | BASE | BASEMENT | 1 | 30 | 1963 | 936.0 |
| | BPF | BASEMENT -PARTITIONED FINISH | 1 | 30 | 1963 | 936.0 |
| | ATG | Attached Garage | 1 | 30 | 1963 | 546.0 |
| | RPO | OPEN PORCH W/ROOF | 1 | 30 | 1963 | 120.0 |
| | CPC | COVERED CARPORT/PATIO | 1 | 30 | 1963 | 240.0 |
| | S1F | Single One Story Fireplace | 1 | 30 | 1963 | 3.0 |
Sketch
Property Image
Land
| 1 | RES 1 | Converted: Residential | 0.3029 | 13193.00 | 0.00 | 0.00 | 1.00 | $92,350 | $0 |
Roll Value History
| 2025 | N/A | N/A | N/A | N/A | N/A |
| 2024 | $324,410 | $92,350 | $0 | $416,760 | $416,760 |
| 2023 | $324,410 | $92,350 | $0 | $416,760 | $416,760 |
| 2022 | $308,970 | $74,280 | $0 | $383,250 | $383,250 |
| 2021 | $237,670 | $74,280 | $0 | $311,950 | $311,950 |
| 2020 | $182,820 | $74,280 | $0 | $257,100 | $257,100 |
| 2019 | $182,820 | $74,280 | $0 | $257,100 | $257,100 |
| 2018 | $197,930 | $31,400 | $0 | $229,330 | $229,330 |
| 2017 | $197,930 | $31,400 | $0 | $229,330 | $85,360 |
| 2016 | $188,500 | $31,400 | $0 | $219,900 | $85,360 |
| 2015 | $188,500 | $31,400 | $0 | $219,900 | $85,360 |
| 2014 | $188,500 | $31,400 | $0 | $219,900 | $143,400 |
| 2013 | $188,500 | $31,400 | $0 | $219,900 | $143,400 |
| 2012 | $81,800 | $24,900 | $0 | $0 | $0 |
| 2011 | $81,800 | $24,900 | $0 | $0 | $0 |
| 2010 | $153,400 | $49,800 | $0 | $0 | $0 |
| 2009 | $176,000 | $49,800 | $0 | $0 | $0 |
| 2008 | $176,000 | $49,800 | $0 | $0 | $0 |
| 2007 | $122,300 | $27,300 | $0 | $0 | $0 |
| 2006 | $122,300 | $27,300 | $0 | $0 | $0 |
Deed and Sales History
| 1 | 10/06/2020 | SWD | STATUTORY WARRANTY DEED | COUR VIRGINIA | GOMEZ JOSE M & MARIELA GOMEZ SERRATO | | | $315,000.00 | 140039 | 2020-10309 |
| 2 | 04/09/2012 | QCD | QUIT CLAIM DEED | BARRAGAR, EDWARD K | COUR, VIRGINIA | | | | 121641 | 2012-02829 |
| 3 | 02/19/2009 | WARRANTY D | WARRANTY DEED | BARRAGAR, EDWARD K | BARRAGAR, EDWARD K | | | | 116349 | 2009-01566 |
| 4 | 02/18/2009 | WARRANTY D | WARRANTY DEED | BARRAGAR, PAUL E ESTATE OF | BARRAGAR, EDWARD K | | | | 116345 | 2009-01527 |
| 5 | 08/10/2007 | WARRANTY D | WARRANTY DEED | WARWICK, ELAINE R | BARRAGAR, PAUL E | | | $225,000.00 | 113485 | 2007-09327 |
| 6 | 07/30/1997 | WARRANTY D | WARRANTY DEED | | | | | $127,500.00 | 88608 | 2549-706952 |
Payout Agreement
| No payout information available.. |