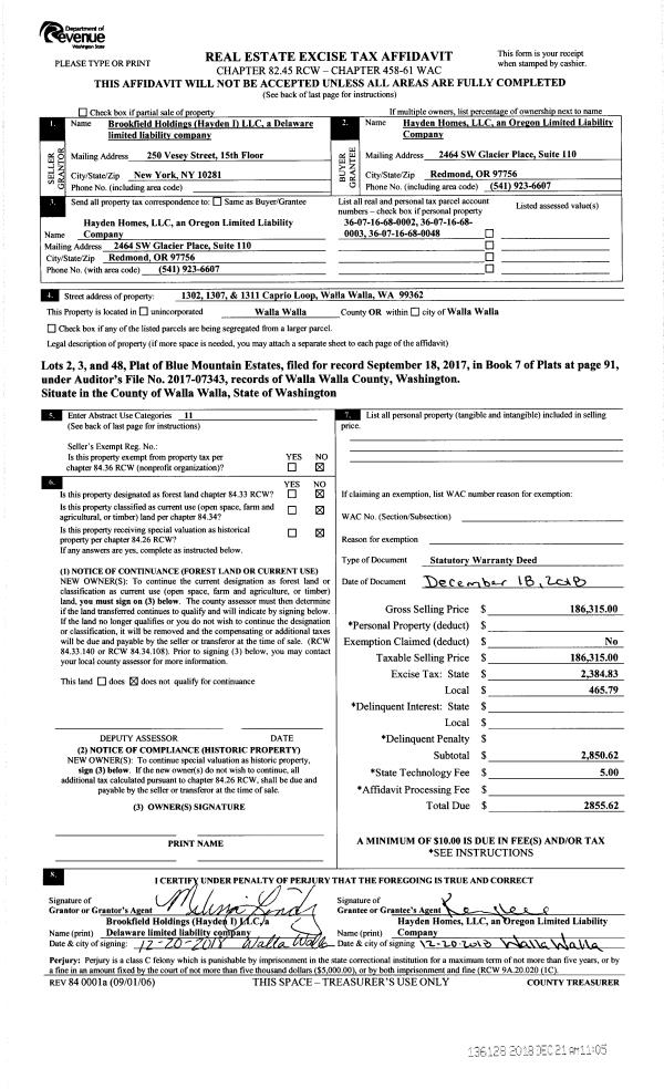
Property
Account |
| Property ID: | 32064 | Abbreviated Legal Description: | 22-7-36 TAX 46F LESS TAX 111 |
| Parcel Number: | 360722210004 | Agent Code: | |
| Type: | Real | | |
| Tax Area: | 7 - OL-140-FB | Land Use Code | 91 |
| Open Space: | N | DFL | N |
| Historic Property: | N | Remodel Property: | N |
| Multi-Family Redevelopment: | N | | |
| Township: | 7 | Section: | 22 |
| Range: | 36 |
Location |
| Address: | 2599 ISAACS AVE WA 99362 | Mapsco: | |
| Neighborhood: | Walla Walla Commercial 5 | Map ID: | |
| Neighborhood CD: | 4306 |
Owner |
| Name: | CROOK NOLA M REV LIVING TRUST | Owner ID: | 62878 |
| Mailing Address: | ROBERT GLENN CORY 2599 ISAACS AVE WALLA WALLA, WA 99362 | % Ownership: | 100.0000000000% |
| | | Exemptions: | |
Taxes and Assessment Details
Values
| (+) Improvement Homesite Value: | + | $0 | |
| (+) Improvement Non-Homesite Value: | + | $0 | |
| (+) Land Homesite Value: | + | $0 | |
| (+) Land Non-Homesite Value: | + | $38,300 | |
| (+) Curr Use (HS): | + | $0 | $0 |
| (+) Curr Use (NHS): | + | $0 | $0 |
| | | -------------------------- | |
| (=) Market Value: | = | $38,300 | |
| (–) Productivity Loss: | – | $0 | |
| | | -------------------------- | |
| (=) Subtotal: | = | $38,300 | |
| (+) Senior Appraised Value: | + | $0 | |
| (+) Non-Senior Appraised Value: | + | $38,300 | |
| | | -------------------------- | |
| (=) Total Appraised Value: | = | $38,300 | |
| (–) Senior Exemption Loss: | – | $0 | |
| (–) Exemption Loss: | – | $0 | |
| | | -------------------------- | |
| (=) Taxable Value: | = | $38,300 | |
Taxing Jurisdiction
| Owner: | CROOK NOLA M REV LIVING TRUST | | |
| % Ownership: | 100.0000000000% | | |
| Total Value: | $38,300 | | |
| Tax Area: | 7 - OL-140-FB |
| CERFD | CURRENT EXPENSE REFUND 010 | 0.0000000000 | $38,300 | $38,300 | $0.00 | | |
| CURREXP | CURRENT EXPENSE 010 | 1.0175366760 | $38,300 | $38,300 | $38.97 | | |
| HUMNSERV | HUMAN SERVICES 119 | 0.0250000000 | $38,300 | $38,300 | $0.96 | | |
| SLDREL | SOLDIERS RELIEF 121 | 0.0155990005 | $38,300 | $38,300 | $0.60 | | |
| EMERGSER | EMS 147 | 0.3792580840 | $38,300 | $38,300 | $14.53 | | |
| EMSRFD | EMS REFUND 147 | 0.0000000000 | $38,300 | $38,300 | $0.00 | | |
| PORTRFD | PORT REFUND 640 | 0.0000000000 | $38,300 | $38,300 | $0.00 | | |
| PORTWWGEN | PORT OF WW 640 | 0.2460186015 | $38,300 | $38,300 | $9.42 | | |
| SD140BOND | SD #140 BOND 764 | 0.8342371393 | $38,300 | $38,300 | $31.95 | | |
| SD140GEN | SD #140 GENERAL 760 | 2.0646500647 | $38,300 | $38,300 | $79.08 | | |
| ST2 | STATE SCHOOL PART 2 600 | 0.8131451643 | $38,300 | $38,300 | $31.14 | | |
| STATESCHL | STATE SCHOOL 600 | 1.5158548041 | $38,300 | $38,300 | $58.06 | | |
| STREFUND | STATE REFUND LEVY 603 | 0.0000000000 | $38,300 | $38,300 | $0.00 | | |
| CWWBOND | C OF WW BOND 643 | 0.2760494372 | $38,300 | $38,300 | $10.57 | | |
| CWWGEN | CITY OF WW 631 | 1.6100204973 | $38,300 | $38,300 | $61.66 | | |
| CWWRFD | CITY OF WALLA WALLA REFUND 631 | 0.0000000000 | $38,300 | $38,300 | $0.00 | | |
| | Total Tax Rate: | 8.7973694689 | | | | | |
| | | | | Taxes w/Current Exemptions: | $336.94 | | |
| | | | | Taxes w/o Exemptions: | $336.94 | | |
Improvement / Building
| Improvement #1: | COMMERCIAL | State Code: | 91 | 0.0 sqft | Value: | $0 |
Sketch
Property Image
Land
| 1 | COM 1 | Converted: Commercial | 0.2200 | 9583.20 | 0.00 | 0.00 | 1.00 | $38,300 | $0 |
Roll Value History
| 2025 | N/A | N/A | N/A | N/A | N/A |
| 2024 | $0 | $38,300 | $0 | $38,300 | $38,300 |
| 2023 | $0 | $38,300 | $0 | $38,300 | $38,300 |
| 2022 | $0 | $38,330 | $0 | $38,330 | $38,330 |
| 2021 | $0 | $38,330 | $0 | $38,330 | $38,330 |
| 2020 | $0 | $38,330 | $0 | $38,330 | $38,330 |
| 2019 | $0 | $38,330 | $0 | $38,330 | $38,330 |
| 2018 | $0 | $38,330 | $0 | $38,330 | $38,330 |
| 2017 | $0 | $38,330 | $0 | $38,330 | $38,330 |
| 2016 | $0 | $9,600 | $0 | $9,600 | $9,600 |
| 2015 | $0 | $9,600 | $0 | $9,600 | $9,600 |
| 2014 | $0 | $9,600 | $0 | $9,600 | $9,600 |
| 2013 | $0 | $9,600 | $0 | $9,600 | $9,600 |
| 2012 | $0 | $9,600 | $0 | $0 | $0 |
| 2011 | $0 | $9,600 | $0 | $0 | $0 |
| 2010 | $0 | $9,600 | $0 | $0 | $0 |
| 2009 | $0 | $9,600 | $0 | $0 | $0 |
| 2008 | $0 | $9,600 | $0 | $0 | $0 |
| 2007 | $0 | $9,600 | $0 | $0 | $0 |
| 2006 | $0 | $5,700 | $0 | $0 | $0 |
Deed and Sales History
| 1 | 04/19/2018 | QCD | QUIT CLAIM DEED | CROOK NOLA M AS TRUSTEE | CROOK NOLA M REV LIVING TRUST | | | $0.00 | 134531 | 2018-03064 |
| 2 | 07/25/2011 | QCD | QUIT CLAIM DEED | CROOK NOLA M | CROOK NOLA M AS TRUSTEE | | | | 120453 | 2011-05721 |
| 3 | 02/14/2007 | QCD | QUIT CLAIM DEED | CROOK NOLA M | CROOK NOLA M | | | | 112237 | 2007-01808 |
| 4 | 11/12/1985 | PACD | PURCHASER'S ASSG CONTRACT&DEED | | | | | $140,000.00 | 0 | 1859-006725 |
|   | |
Payout Agreement
| No payout information available.. |