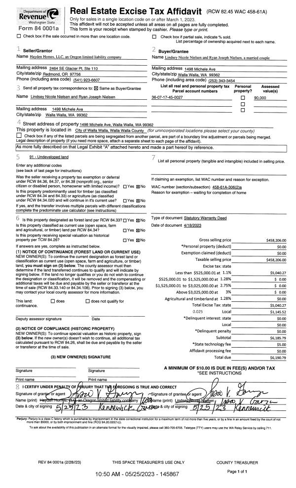
Property
Account |
| Property ID: | 32057 | Abbreviated Legal Description: | 24-8-37 S1/2SW1/4 LESS LD SD, RR & RD LESS ST HWY |
| Parcel Number: | 370824330008 | Agent Code: | |
| Type: | Real | | |
| Tax Area: | 310 - 101-8 | Land Use Code | 83 |
| Open Space: | Y | DFL | N |
| Historic Property: | N | Remodel Property: | N |
| Multi-Family Redevelopment: | N | | |
| Township: | 8 | Section: | 24 |
| Range: | 37 |
Location |
| Address: | WA 99329 | Mapsco: | |
| Neighborhood: | 0 Farm | Map ID: | |
| Neighborhood CD: | 4240 |
Owner |
| Name: | FILAN R W REVOCABLE FAMILY TRUST | Owner ID: | 68661 |
| Mailing Address: | 1848 STURM AVE WALLA WALLA, WA 99362 | % Ownership: | 100.0000000000% |
| | | Exemptions: | |
Taxes and Assessment Details
Values
| (+) Improvement Homesite Value: | + | $0 | |
| (+) Improvement Non-Homesite Value: | + | $0 | |
| (+) Land Homesite Value: | + | $0 | |
| (+) Land Non-Homesite Value: | + | $0 | |
| (+) Curr Use (HS): | + | $0 | $0 |
| (+) Curr Use (NHS): | + | $130,090 | $46,340 |
| | | -------------------------- | |
| (=) Market Value: | = | $130,090 | |
| (–) Productivity Loss: | – | $83,750 | |
| | | -------------------------- | |
| (=) Subtotal: | = | $46,340 | |
| (+) Senior Appraised Value: | + | $0 | |
| (+) Non-Senior Appraised Value: | + | $46,340 | |
| | | -------------------------- | |
| (=) Total Appraised Value: | = | $46,340 | |
| (–) Senior Exemption Loss: | – | $0 | |
| (–) Exemption Loss: | – | $0 | |
| | | -------------------------- | |
| (=) Taxable Value: | = | $46,340 | |
Taxing Jurisdiction
| Owner: | FILAN R W REVOCABLE FAMILY TRUST | | |
| % Ownership: | 100.0000000000% | | |
| Total Value: | $130,090 | | |
| Tax Area: | 310 - 101-8 |
| CERFD | CURRENT EXPENSE REFUND 010 | 0.0000000000 | $46,340 | $46,340 | $0.00 | | |
| CURREXP | CURRENT EXPENSE 010 | 1.0175366760 | $46,340 | $46,340 | $47.15 | | |
| HUMNSERV | HUMAN SERVICES 119 | 0.0250000000 | $46,340 | $46,340 | $1.16 | | |
| SLDREL | SOLDIERS RELIEF 121 | 0.0155990005 | $46,340 | $46,340 | $0.72 | | |
| EMERGSER | EMS 147 | 0.3792580840 | $46,340 | $46,340 | $17.57 | | |
| EMSRFD | EMS REFUND 147 | 0.0000000000 | $46,340 | $46,340 | $0.00 | | |
| FD8EXP | FD #8 EXPENSE 697 | 0.6647992540 | $46,340 | $46,340 | $30.81 | | |
| RLBRFD | RURAL LIBRARY REFUND 623 | 0.0000000000 | $46,340 | $46,340 | $0.00 | | |
| RURALLIB | RURAL LIBRARY 623 | 0.3710609029 | $46,340 | $46,340 | $17.19 | | |
| PORTRFD | PORT REFUND 640 | 0.0000000000 | $46,340 | $46,340 | $0.00 | | |
| PORTWWGEN | PORT OF WW 640 | 0.2460186015 | $46,340 | $46,340 | $11.40 | | |
| SD101CAP | SD #101 CAP 752 | 0.5894423472 | $46,340 | $46,340 | $27.31 | | |
| SD101GEN | SD #101 GENERAL 750 | 0.7455117868 | $46,340 | $46,340 | $34.55 | | |
| ST2 | STATE SCHOOL PART 2 600 | 0.8131451643 | $46,340 | $46,340 | $37.68 | | |
| STATESCHL | STATE SCHOOL 600 | 1.5158548041 | $46,340 | $46,340 | $70.24 | | |
| STREFUND | STATE REFUND LEVY 603 | 0.0000000000 | $46,340 | $46,340 | $0.00 | | |
| COROAD | COUNTY ROAD 115 | 1.6549953990 | $46,340 | $46,340 | $76.69 | | |
| CRPRD | COUNTY ROAD REFUND 115 | 0.0000000000 | $46,340 | $46,340 | $0.00 | | |
| | Total Tax Rate: | 8.0382220203 | | | | | |
| | | | | Taxes w/Current Exemptions: | $372.47 | | |
| | | | | Taxes w/o Exemptions: | $372.47 | | |
Improvement / Building
Sketch
| No sketches available for this property. |
Property Image
Land
| 1 | WASTE | Waste | 6.0000 | 0.00 | 0.00 | 0.00 | 1.00 | $0 | $0 |
| 2 | 85-C2AN | Class 2 85 BU Annual | 43.8000 | 0.00 | 0.00 | 0.00 | 1.00 | $130,090 | $46,340 |
Roll Value History
| 2025 | N/A | N/A | N/A | N/A | N/A |
| 2024 | $0 | $133,420 | $44,760 | $44,760 | $44,760 |
| 2023 | $0 | $130,090 | $46,340 | $46,340 | $46,340 |
| 2022 | $0 | $124,660 | $44,370 | $44,370 | $44,370 |
| 2021 | $0 | $117,950 | $44,110 | $44,110 | $44,110 |
| 2020 | $0 | $111,250 | $45,290 | $45,290 | $45,290 |
| 2019 | $0 | $107,700 | $46,120 | $46,120 | $46,120 |
| 2018 | $0 | $107,400 | $52,520 | $52,520 | $52,520 |
| 2017 | $0 | $106,390 | $53,390 | $53,390 | $53,390 |
| 2016 | $0 | $106,390 | $53,480 | $53,480 | $53,480 |
| 2015 | $0 | $106,390 | $47,440 | $47,440 | $47,440 |
| 2014 | $0 | $106,390 | $47,830 | $47,830 | $47,830 |
| 2013 | $0 | $101,400 | $38,600 | $38,600 | $38,600 |
| 2012 | $0 | $24,900 | $0 | $0 | $0 |
| 2011 | $0 | $23,600 | $0 | $0 | $0 |
| 2010 | $0 | $21,200 | $0 | $0 | $0 |
| 2009 | $0 | $21,900 | $0 | $0 | $0 |
| 2008 | $0 | $32,300 | $0 | $0 | $0 |
| 2007 | $0 | $32,300 | $0 | $0 | $0 |
| 2006 | $0 | $32,300 | $0 | $0 | $0 |
Deed and Sales History
| 1 | 01/15/2021 | QCD | QUIT CLAIM DEED | FILAN VERNON O & EVELYN M | FILAN R W REVOCABLE FAMILY TRUST | | 10 PARCELS | $0.00 | 140748 | 2021-00748 |
| 2 | 07/05/2011 | QCD | QUIT CLAIM DEED | FILAN, VERNON O | FILAN VERNON O & EVELYN M | | | | 120357 | 2011-05136 |
| 3 | 01/01/1961 | QCD | QUIT CLAIM DEED | | | | | $0.00 | 0 | 2990-434119 |
Payout Agreement
| No payout information available.. |