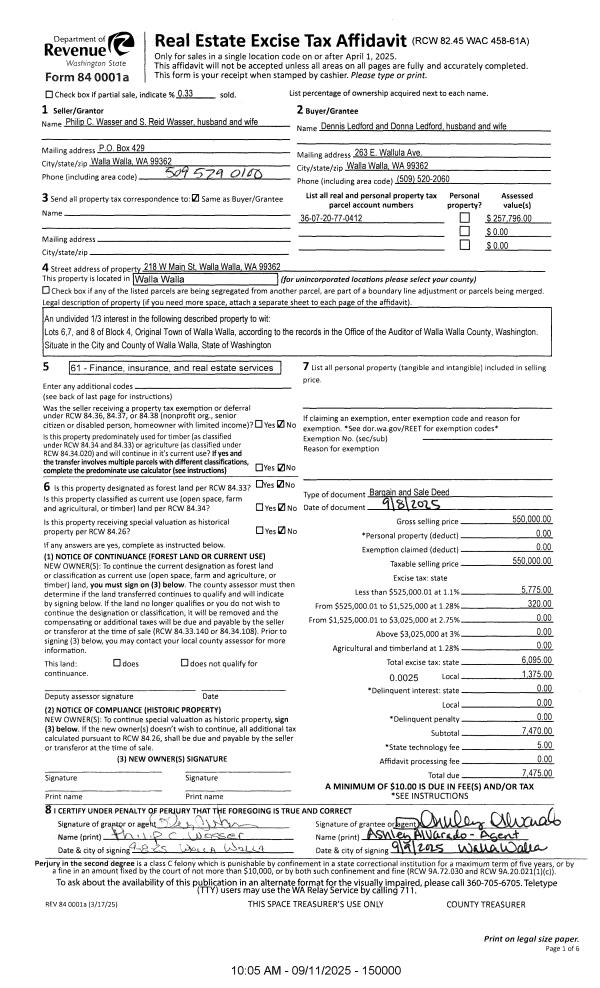
Property
Account |
| Property ID: | 32024 | Abbreviated Legal Description: | TAYLORS PTN SE CORNER LOT 4 BLK 3 (TRACT C) |
| Parcel Number: | 360728750313 | Agent Code: | |
| Type: | Real | | |
| Tax Area: | 1 - OL-140-F | Land Use Code | 11 |
| Open Space: | N | DFL | N |
| Historic Property: | N | Remodel Property: | N |
| Multi-Family Redevelopment: | N | | |
| Township: | 7 | Section: | 28 |
| Range: | 36 |
Location |
| Address: | 1021 PLEASANT ST WA 99362 | Mapsco: | |
| Neighborhood: | G Res | Map ID: | |
| Neighborhood CD: | 614011 |
Owner |
| Name: | WATTS TYRONE & TISH FAMILY TRUST | Owner ID: | 62942 |
| Mailing Address: | 826 WHEATLAND ST WALLA WALLA, WA 99362 | % Ownership: | 100.0000000000% |
| | | Exemptions: | |
Taxes and Assessment Details
Values
| (+) Improvement Homesite Value: | + | $0 | |
| (+) Improvement Non-Homesite Value: | + | $145,170 | |
| (+) Land Homesite Value: | + | $0 | |
| (+) Land Non-Homesite Value: | + | $70,000 | |
| (+) Curr Use (HS): | + | $0 | $0 |
| (+) Curr Use (NHS): | + | $0 | $0 |
| | | -------------------------- | |
| (=) Market Value: | = | $215,170 | |
| (–) Productivity Loss: | – | $0 | |
| | | -------------------------- | |
| (=) Subtotal: | = | $215,170 | |
| (+) Senior Appraised Value: | + | $0 | |
| (+) Non-Senior Appraised Value: | + | $215,170 | |
| | | -------------------------- | |
| (=) Total Appraised Value: | = | $215,170 | |
| (–) Senior Exemption Loss: | – | $0 | |
| (–) Exemption Loss: | – | $0 | |
| | | -------------------------- | |
| (=) Taxable Value: | = | $215,170 | |
Taxing Jurisdiction
| Owner: | WATTS TYRONE & TISH FAMILY TRUST | | |
| % Ownership: | 100.0000000000% | | |
| Total Value: | $215,170 | | |
| Tax Area: | 1 - OL-140-F |
| CERFD | CURRENT EXPENSE REFUND 010 | 0.0000000000 | $215,170 | $215,170 | $0.00 | | |
| CURREXP | CURRENT EXPENSE 010 | 1.0175366760 | $215,170 | $215,170 | $218.94 | | |
| HUMNSERV | HUMAN SERVICES 119 | 0.0250000000 | $215,170 | $215,170 | $5.38 | | |
| SLDREL | SOLDIERS RELIEF 121 | 0.0155990005 | $215,170 | $215,170 | $3.36 | | |
| EMERGSER | EMS 147 | 0.3792580840 | $215,170 | $215,170 | $81.60 | | |
| EMSRFD | EMS REFUND 147 | 0.0000000000 | $215,170 | $215,170 | $0.00 | | |
| PORTRFD | PORT REFUND 640 | 0.0000000000 | $215,170 | $215,170 | $0.00 | | |
| PORTWWGEN | PORT OF WW 640 | 0.2460186015 | $215,170 | $215,170 | $52.94 | | |
| SD140BOND | SD #140 BOND 764 | 0.8342371393 | $215,170 | $215,170 | $179.50 | | |
| SD140GEN | SD #140 GENERAL 760 | 2.0646500647 | $215,170 | $215,170 | $444.25 | | |
| ST2 | STATE SCHOOL PART 2 600 | 0.8131451643 | $215,170 | $215,170 | $174.96 | | |
| STATESCHL | STATE SCHOOL 600 | 1.5158548041 | $215,170 | $215,170 | $326.17 | | |
| STREFUND | STATE REFUND LEVY 603 | 0.0000000000 | $215,170 | $215,170 | $0.00 | | |
| CWWBOND | C OF WW BOND 643 | 0.2760494372 | $215,170 | $215,170 | $59.40 | | |
| CWWGEN | CITY OF WW 631 | 1.6100204973 | $215,170 | $215,170 | $346.43 | | |
| CWWRFD | CITY OF WALLA WALLA REFUND 631 | 0.0000000000 | $215,170 | $215,170 | $0.00 | | |
| | Total Tax Rate: | 8.7973694689 | | | | | |
| | | | | Taxes w/Current Exemptions: | $1,892.93 | | |
| | | | | Taxes w/o Exemptions: | $1,892.93 | | |
Improvement / Building
| Improvement #1: | RESIDENTIAL | State Code: | 11 | 872.0 sqft | Value: | $145,170 |
| Exterior Wall: | SHINGLE | Heating/Cooling: | FORCED AIR | | Number of Bathrooms: | 1 | Number of Bedrooms: | 2 | | Plumbing: | 6 | Roof Covering: | COMP SHINGLE |
|
| | Type | Description | Class CD | Sub Class CD | Year Built | Area |
| | MA | Main Area | 1 | 20 | 1948 | 872.0 |
| | SI1 | SITE IMPROVEMENT | 1 | 20 | 1948 | 1.0 |
| | RPS | PORCH W/STEPS,ROOF | 1 | 20 | 1948 | 24.0 |
| | DTG | Detached Garage | 1 | 20 | 1948 | 240.0 |
Sketch
Property Image
Land
| 1 | RES 1 | Converted: Residential | 0.1335 | 5815.00 | 0.00 | 0.00 | 1.00 | $70,000 | $0 |
Roll Value History
| 2025 | N/A | N/A | N/A | N/A | N/A |
| 2024 | $145,170 | $70,000 | $0 | $215,170 | $215,170 |
| 2023 | $145,170 | $70,000 | $0 | $215,170 | $215,170 |
| 2022 | $145,170 | $55,000 | $0 | $200,170 | $200,170 |
| 2021 | $120,970 | $55,000 | $0 | $175,970 | $175,970 |
| 2020 | $100,810 | $55,000 | $0 | $155,810 | $155,810 |
| 2019 | $100,810 | $55,000 | $0 | $155,810 | $155,810 |
| 2018 | $64,870 | $34,900 | $0 | $99,770 | $99,770 |
| 2017 | $64,870 | $34,900 | $0 | $99,770 | $99,770 |
| 2016 | $64,870 | $34,900 | $0 | $99,770 | $99,770 |
| 2015 | $64,870 | $34,900 | $0 | $99,770 | $99,770 |
| 2014 | $49,900 | $34,900 | $0 | $84,800 | $84,800 |
| 2013 | $49,900 | $34,900 | $0 | $84,800 | $84,800 |
| 2012 | $32,800 | $34,900 | $0 | $0 | $0 |
| 2011 | $32,800 | $34,900 | $0 | $0 | $0 |
| 2010 | $44,800 | $34,900 | $0 | $0 | $0 |
| 2009 | $53,700 | $34,900 | $0 | $0 | $0 |
| 2008 | $53,700 | $34,900 | $0 | $0 | $0 |
| 2007 | $40,500 | $17,400 | $0 | $0 | $0 |
| 2006 | $40,500 | $17,400 | $0 | $0 | $0 |
Deed and Sales History
| 1 | 04/23/2018 | QCD | QUIT CLAIM DEED | WATTS TYRONE L | WATTS TYRONE & TISH FAMILY TRUST | | | $0.00 | 134551 | 2018-03166 |
| 2 | 07/18/2011 | WARRANTY D | WARRANTY DEED | WATTS, ISABEL ESTATE OF | WATTS, TYRONE L | | | | 120422 | 2011-05540 |
Payout Agreement
| No payout information available.. |