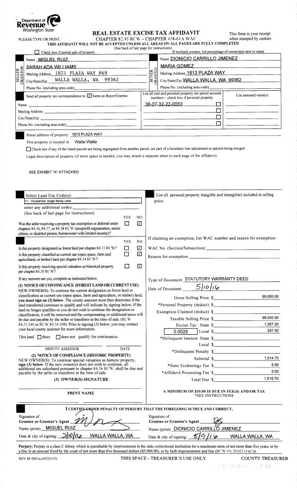
Property
Account |
| Property ID: | 3202 | Abbreviated Legal Description: | HARVEST MEADOWS LOT 16 BLK 3 LESS NELY 2' STRIP |
| Parcel Number: | 350601520319 | Agent Code: | |
| Type: | Real | | |
| Tax Area: | 75 - CP 250 | Land Use Code | 11 |
| Open Space: | N | DFL | N |
| Historic Property: | N | Remodel Property: | N |
| Multi-Family Redevelopment: | N | | |
| Township: | 6 | Section: | 1 |
| Range: | 35 |
Location |
| Address: | 1726 SE GRASSLAND CT WA 99324 | Mapsco: | |
| Neighborhood: | G SFR Rural/City Inf | Map ID: | |
| Neighborhood CD: | 114012 |
Owner |
| Name: | MCKINNEY JAMES F & CHLOE | Owner ID: | 59737 |
| Mailing Address: | 1726 SE GRASSLAND CT COLLEGE PLACE, WA 99324 | % Ownership: | 100.0000000000% |
| | | Exemptions: | |
Taxes and Assessment Details
Values
| (+) Improvement Homesite Value: | + | $0 | |
| (+) Improvement Non-Homesite Value: | + | $347,670 | |
| (+) Land Homesite Value: | + | $0 | |
| (+) Land Non-Homesite Value: | + | $75,000 | |
| (+) Curr Use (HS): | + | $0 | $0 |
| (+) Curr Use (NHS): | + | $0 | $0 |
| | | -------------------------- | |
| (=) Market Value: | = | $422,670 | |
| (–) Productivity Loss: | – | $0 | |
| | | -------------------------- | |
| (=) Subtotal: | = | $422,670 | |
| (+) Senior Appraised Value: | + | $0 | |
| (+) Non-Senior Appraised Value: | + | $422,670 | |
| | | -------------------------- | |
| (=) Total Appraised Value: | = | $422,670 | |
| (–) Senior Exemption Loss: | – | $0 | |
| (–) Exemption Loss: | – | $0 | |
| | | -------------------------- | |
| (=) Taxable Value: | = | $422,670 | |
Taxing Jurisdiction
| Owner: | MCKINNEY JAMES F & CHLOE | | |
| % Ownership: | 100.0000000000% | | |
| Total Value: | $422,670 | | |
| Tax Area: | 75 - CP 250 |
| CERFD | CURRENT EXPENSE REFUND 010 | 0.0000000000 | $422,670 | $422,670 | $0.00 | | |
| CURREXP | CURRENT EXPENSE 010 | 1.0175366760 | $422,670 | $422,670 | $430.08 | | |
| HUMNSERV | HUMAN SERVICES 119 | 0.0250000000 | $422,670 | $422,670 | $10.57 | | |
| SLDREL | SOLDIERS RELIEF 121 | 0.0155990005 | $422,670 | $422,670 | $6.59 | | |
| COLLPLBOND | C OF CP BOND 644 | 0.4374241808 | $422,670 | $422,670 | $184.89 | | |
| COLLPLGEN | CITY OF CP 632 | 1.4453819216 | $422,670 | $422,670 | $610.92 | | |
| EMERGSER | EMS 147 | 0.3792580840 | $422,670 | $422,670 | $160.30 | | |
| EMSRFD | EMS REFUND 147 | 0.0000000000 | $422,670 | $422,670 | $0.00 | | |
| RURALLIB | RURAL LIBRARY 623 | 0.3710609029 | $422,670 | $422,670 | $156.84 | | |
| PORTRFD | PORT REFUND 640 | 0.0000000000 | $422,670 | $422,670 | $0.00 | | |
| PORTWWGEN | PORT OF WW 640 | 0.2460186015 | $422,670 | $422,670 | $103.98 | | |
| SD250BOND | SD #250 BOND 773 | 1.4560608159 | $422,670 | $422,670 | $615.43 | | |
| SD250GEN | SD #250 GENERAL 770 | 2.3880724087 | $422,670 | $422,670 | $1,009.37 | | |
| ST2 | STATE SCHOOL PART 2 600 | 0.8131451643 | $422,670 | $422,670 | $343.69 | | |
| STATESCHL | STATE SCHOOL 600 | 1.5158548041 | $422,670 | $422,670 | $640.71 | | |
| STREFUND | STATE REFUND LEVY 603 | 0.0000000000 | $422,670 | $422,670 | $0.00 | | |
| | Total Tax Rate: | 10.1104125603 | | | | | |
| | | | | Taxes w/Current Exemptions: | $4,273.37 | | |
| | | | | Taxes w/o Exemptions: | $4,273.37 | | |
Improvement / Building
| Improvement #1: | RESIDENTIAL | State Code: | 11 | 1584.0 sqft | Value: | $347,670 |
| Exterior Wall: | HARDBOARD | Heating/Cooling: | WARM & COOLED AIR | | Number of Bathrooms: | 2 | Number of Bedrooms: | 3 | | Plumbing: | 12 | Roof Covering: | COMP SHINGLE |
|
| | Type | Description | Class CD | Sub Class CD | Year Built | Area |
| | MA | Main Area | 1 | 40 | 2001 | 1584.0 |
| | SI1 | SITE IMPROVEMENT | 1 | 40 | 2001 | 3.0 |
| | ATG | Attached Garage | 1 | 40 | 2001 | 582.0 |
| | RPC | OPEN PORCH W/ROOF , CEILED | 1 | 40 | 2001 | 35.0 |
| | RPC | OPEN PORCH W/ROOF , CEILED | 1 | 40 | 2001 | 233.0 |
| | GFP | GAS FIREPLACE | 1 | 40 | 2001 | 1.0 |
Sketch
Property Image
Land
| 1 | RES 1 | Converted: Residential | 0.2538 | 11057.00 | 0.00 | 0.00 | 1.00 | $75,000 | $0 |
Roll Value History
| 2025 | N/A | N/A | N/A | N/A | N/A |
| 2024 | $347,670 | $75,000 | $0 | $422,670 | $422,670 |
| 2023 | $347,670 | $75,000 | $0 | $422,670 | $422,670 |
| 2022 | $289,730 | $75,000 | $0 | $364,730 | $364,730 |
| 2021 | $241,440 | $75,000 | $0 | $316,440 | $316,440 |
| 2020 | $241,440 | $75,000 | $0 | $316,440 | $316,440 |
| 2019 | $251,440 | $65,000 | $0 | $316,440 | $316,440 |
| 2018 | $218,650 | $65,000 | $0 | $283,650 | $283,650 |
| 2017 | $218,650 | $65,000 | $0 | $283,650 | $283,650 |
| 2016 | $198,770 | $65,000 | $0 | $263,770 | $263,770 |
| 2015 | $198,770 | $65,000 | $0 | $263,770 | $263,770 |
| 2014 | $180,700 | $65,000 | $0 | $245,700 | $245,700 |
| 2013 | $180,700 | $65,000 | $0 | $245,700 | $245,700 |
| 2012 | $193,600 | $65,000 | $0 | $0 | $0 |
| 2011 | $193,600 | $65,000 | $0 | $0 | $0 |
| 2010 | $193,600 | $65,000 | $0 | $0 | $0 |
| 2009 | $222,300 | $65,000 | $0 | $0 | $0 |
| 2008 | $147,700 | $35,000 | $0 | $0 | $0 |
| 2007 | $147,700 | $35,000 | $0 | $0 | $0 |
| 2006 | $147,700 | $35,000 | $0 | $0 | $0 |
Deed and Sales History
| 1 | 09/30/2016 | SWD | STATUTORY WARRANTY DEED | ANFINSON TONY E & SUSAN D | MCKINNEY JAMES F & CHLOE | | | $287,000.00 | 131171 | 2016-08085 |
| 2 | 03/29/2002 | WARRANTY D | WARRANTY DEED | | | | | $181,000.00 | 99212 | 2002-0003917 |
Payout Agreement
| No payout information available.. |