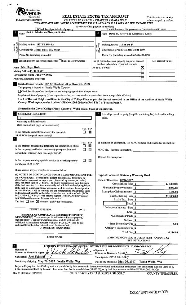
Property
Account |
| Property ID: | 3198 | Abbreviated Legal Description: | HARVEST MEADOWS LOT 8 BLK 3 |
| Parcel Number: | 350601520308 | Agent Code: | |
| Type: | Real | | |
| Tax Area: | 75 - CP 250 | Land Use Code | 11 |
| Open Space: | N | DFL | N |
| Historic Property: | N | Remodel Property: | N |
| Multi-Family Redevelopment: | N | | |
| Township: | 6 | Section: | 1 |
| Range: | 35 |
Location |
| Address: | 940 SE HARVEST DR WA 99324 | Mapsco: | |
| Neighborhood: | G SFR Rural/City Inf | Map ID: | |
| Neighborhood CD: | 114012 |
Owner |
| Name: | GREENWOOD RICHARD & DARLENE | Owner ID: | 62012 |
| Mailing Address: | 940 SE HARVEST DR COLLEGE PLACE, WA 99324 | % Ownership: | 100.0000000000% |
| | | Exemptions: | |
Taxes and Assessment Details
Values
| (+) Improvement Homesite Value: | + | $0 | |
| (+) Improvement Non-Homesite Value: | + | $331,020 | |
| (+) Land Homesite Value: | + | $0 | |
| (+) Land Non-Homesite Value: | + | $75,000 | |
| (+) Curr Use (HS): | + | $0 | $0 |
| (+) Curr Use (NHS): | + | $0 | $0 |
| | | -------------------------- | |
| (=) Market Value: | = | $406,020 | |
| (–) Productivity Loss: | – | $0 | |
| | | -------------------------- | |
| (=) Subtotal: | = | $406,020 | |
| (+) Senior Appraised Value: | + | $0 | |
| (+) Non-Senior Appraised Value: | + | $406,020 | |
| | | -------------------------- | |
| (=) Total Appraised Value: | = | $406,020 | |
| (–) Senior Exemption Loss: | – | $0 | |
| (–) Exemption Loss: | – | $0 | |
| | | -------------------------- | |
| (=) Taxable Value: | = | $406,020 | |
Taxing Jurisdiction
| Owner: | GREENWOOD RICHARD & DARLENE | | |
| % Ownership: | 100.0000000000% | | |
| Total Value: | $406,020 | | |
| Tax Area: | 75 - CP 250 |
| CERFD | CURRENT EXPENSE REFUND 010 | 0.0000000000 | $406,020 | $406,020 | $0.00 | | |
| CURREXP | CURRENT EXPENSE 010 | 1.0175366760 | $406,020 | $406,020 | $413.14 | | |
| HUMNSERV | HUMAN SERVICES 119 | 0.0250000000 | $406,020 | $406,020 | $10.15 | | |
| SLDREL | SOLDIERS RELIEF 121 | 0.0155990005 | $406,020 | $406,020 | $6.33 | | |
| COLLPLBOND | C OF CP BOND 644 | 0.4374241808 | $406,020 | $406,020 | $177.60 | | |
| COLLPLGEN | CITY OF CP 632 | 1.4453819216 | $406,020 | $406,020 | $586.85 | | |
| EMERGSER | EMS 147 | 0.3792580840 | $406,020 | $406,020 | $153.99 | | |
| EMSRFD | EMS REFUND 147 | 0.0000000000 | $406,020 | $406,020 | $0.00 | | |
| RURALLIB | RURAL LIBRARY 623 | 0.3710609029 | $406,020 | $406,020 | $150.66 | | |
| PORTRFD | PORT REFUND 640 | 0.0000000000 | $406,020 | $406,020 | $0.00 | | |
| PORTWWGEN | PORT OF WW 640 | 0.2460186015 | $406,020 | $406,020 | $99.89 | | |
| SD250BOND | SD #250 BOND 773 | 1.4560608159 | $406,020 | $406,020 | $591.19 | | |
| SD250GEN | SD #250 GENERAL 770 | 2.3880724087 | $406,020 | $406,020 | $969.61 | | |
| ST2 | STATE SCHOOL PART 2 600 | 0.8131451643 | $406,020 | $406,020 | $330.15 | | |
| STATESCHL | STATE SCHOOL 600 | 1.5158548041 | $406,020 | $406,020 | $615.47 | | |
| STREFUND | STATE REFUND LEVY 603 | 0.0000000000 | $406,020 | $406,020 | $0.00 | | |
| | Total Tax Rate: | 10.1104125603 | | | | | |
| | | | | Taxes w/Current Exemptions: | $4,105.03 | | |
| | | | | Taxes w/o Exemptions: | $4,105.03 | | |
Improvement / Building
| Improvement #1: | RESIDENTIAL | State Code: | 11 | 1515.0 sqft | Value: | $331,020 |
| Exterior Wall: | HARDBOARD | Heating/Cooling: | WARM & COOLED AIR | | Number of Bathrooms: | 2 | Number of Bedrooms: | 2 | | Plumbing: | 10 | Roof Covering: | COMP SHINGLE |
|
| | Type | Description | Class CD | Sub Class CD | Year Built | Area |
| | MA | Main Area | 1 | 35 | 2000 | 1515.0 |
| | SI1 | SITE IMPROVEMENT | 1 | 35 | 2000 | 2.0 |
| | ATG | Attached Garage | 1 | 35 | 2000 | 960.0 |
| | RPC | OPEN PORCH W/ROOF , CEILED | 1 | 35 | 2000 | 160.0 |
| | GFP | GAS FIREPLACE | 1 | 35 | 2000 | 1.0 |
| | TOOL | TOOL SHED | 1 | 35 | 2000 | 120.0 |
| | RPC | OPEN PORCH W/ROOF , CEILED | 1 | 35 | 2000 | 272.0 |
Sketch
Property Image
Land
| 1 | RES 1 | Converted: Residential | 0.2132 | 9289.00 | 0.00 | 0.00 | 1.00 | $75,000 | $0 |
Roll Value History
| 2025 | N/A | N/A | N/A | N/A | N/A |
| 2024 | $331,020 | $75,000 | $0 | $406,020 | $406,020 |
| 2023 | $331,020 | $75,000 | $0 | $406,020 | $406,020 |
| 2022 | $331,020 | $75,000 | $0 | $406,020 | $406,020 |
| 2021 | $206,890 | $75,000 | $0 | $281,890 | $281,890 |
| 2020 | $188,080 | $75,000 | $0 | $263,080 | $263,080 |
| 2019 | $198,080 | $65,000 | $0 | $263,080 | $263,080 |
| 2018 | $180,070 | $65,000 | $0 | $245,070 | $245,070 |
| 2017 | $180,070 | $65,000 | $0 | $245,070 | $245,070 |
| 2016 | $180,070 | $65,000 | $0 | $245,070 | $245,070 |
| 2015 | $180,070 | $65,000 | $0 | $245,070 | $245,070 |
| 2014 | $163,700 | $65,000 | $0 | $228,700 | $228,700 |
| 2013 | $147,300 | $65,000 | $0 | $212,300 | $212,300 |
| 2012 | $147,300 | $65,000 | $0 | $0 | $0 |
| 2011 | $147,300 | $65,000 | $0 | $0 | $0 |
| 2010 | $147,300 | $65,000 | $0 | $0 | $0 |
| 2009 | $170,900 | $65,000 | $0 | $0 | $0 |
| 2008 | $131,100 | $35,000 | $0 | $0 | $0 |
| 2007 | $131,100 | $35,000 | $0 | $0 | $0 |
| 2006 | $131,100 | $35,000 | $0 | $0 | $0 |
Deed and Sales History
| 1 | 10/20/2017 | SWD | STATUTORY WARRANTY DEED | BARBER FAMILY TRUST | GREENWOOD RICHARD & DARLENE | | | $256,000.00 | 133450 | 2017-08395 |
| 2 | 02/07/1997 | WARRANTY D | WARRANTY DEED | | | | | $26,000.00 | 87646 | 2489-701173 |
Payout Agreement
| No payout information available.. |