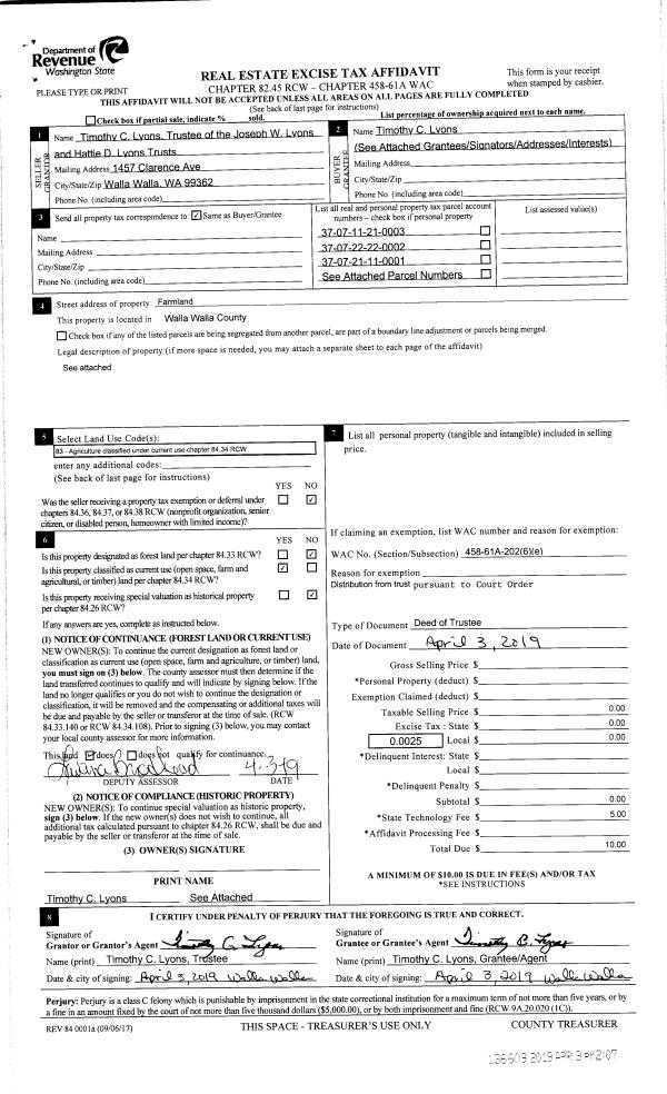
Property
Account |
| Property ID: | 31881 | Abbreviated Legal Description: | 18-7-38 LOT B OF S/P 1994-01211(SLY PTN TAX 16) |
| Parcel Number: | 380718240021 | Agent Code: | |
| Type: | Real | | |
| Tax Area: | 310 - 101-8 | Land Use Code | 11 |
| Open Space: | N | DFL | N |
| Historic Property: | N | Remodel Property: | N |
| Multi-Family Redevelopment: | N | | |
| Township: | 7 | Section: | 18 |
| Range: | 38 |
Location |
| Address: | 245 TRACY RD WA 99329 | Mapsco: | |
| Neighborhood: | Tracy Road | Map ID: | |
| Neighborhood CD: | 512014 |
Owner |
| Name: | NOVAK NICOLE M | Owner ID: | 65800 |
| Mailing Address: | CORY L COON 245 TRACY RD WAITSBURG, WA 99361 | % Ownership: | 100.0000000000% |
| | | Exemptions: | |
Taxes and Assessment Details
Values
| (+) Improvement Homesite Value: | + | $0 | |
| (+) Improvement Non-Homesite Value: | + | $182,520 | |
| (+) Land Homesite Value: | + | $0 | |
| (+) Land Non-Homesite Value: | + | $75,600 | |
| (+) Curr Use (HS): | + | $0 | $0 |
| (+) Curr Use (NHS): | + | $0 | $0 |
| | | -------------------------- | |
| (=) Market Value: | = | $258,120 | |
| (–) Productivity Loss: | – | $0 | |
| | | -------------------------- | |
| (=) Subtotal: | = | $258,120 | |
| (+) Senior Appraised Value: | + | $0 | |
| (+) Non-Senior Appraised Value: | + | $258,120 | |
| | | -------------------------- | |
| (=) Total Appraised Value: | = | $258,120 | |
| (–) Senior Exemption Loss: | – | $0 | |
| (–) Exemption Loss: | – | $0 | |
| | | -------------------------- | |
| (=) Taxable Value: | = | $258,120 | |
Taxing Jurisdiction
| Owner: | NOVAK NICOLE M | | |
| % Ownership: | 100.0000000000% | | |
| Total Value: | $258,120 | | |
| Tax Area: | 310 - 101-8 |
| CERFD | CURRENT EXPENSE REFUND 010 | 0.0000000000 | $258,120 | $258,120 | $0.00 | | |
| CURREXP | CURRENT EXPENSE 010 | 1.0175366760 | $258,120 | $258,120 | $262.65 | | |
| HUMNSERV | HUMAN SERVICES 119 | 0.0250000000 | $258,120 | $258,120 | $6.45 | | |
| SLDREL | SOLDIERS RELIEF 121 | 0.0155990005 | $258,120 | $258,120 | $4.03 | | |
| EMERGSER | EMS 147 | 0.3792580840 | $258,120 | $258,120 | $97.89 | | |
| EMSRFD | EMS REFUND 147 | 0.0000000000 | $258,120 | $258,120 | $0.00 | | |
| FD8EXP | FD #8 EXPENSE 697 | 0.6647992540 | $258,120 | $258,120 | $171.60 | | |
| RLBRFD | RURAL LIBRARY REFUND 623 | 0.0000000000 | $258,120 | $258,120 | $0.00 | | |
| RURALLIB | RURAL LIBRARY 623 | 0.3710609029 | $258,120 | $258,120 | $95.78 | | |
| PORTRFD | PORT REFUND 640 | 0.0000000000 | $258,120 | $258,120 | $0.00 | | |
| PORTWWGEN | PORT OF WW 640 | 0.2460186015 | $258,120 | $258,120 | $63.50 | | |
| SD101CAP | SD #101 CAP 752 | 0.5894423472 | $258,120 | $258,120 | $152.15 | | |
| SD101GEN | SD #101 GENERAL 750 | 0.7455117868 | $258,120 | $258,120 | $192.43 | | |
| ST2 | STATE SCHOOL PART 2 600 | 0.8131451643 | $258,120 | $258,120 | $209.89 | | |
| STATESCHL | STATE SCHOOL 600 | 1.5158548041 | $258,120 | $258,120 | $391.27 | | |
| STREFUND | STATE REFUND LEVY 603 | 0.0000000000 | $258,120 | $258,120 | $0.00 | | |
| COROAD | COUNTY ROAD 115 | 1.6549953990 | $258,120 | $258,120 | $427.19 | | |
| CRPRD | COUNTY ROAD REFUND 115 | 0.0000000000 | $258,120 | $258,120 | $0.00 | | |
| | Total Tax Rate: | 8.0382220203 | | | | | |
| | | | | Taxes w/Current Exemptions: | $2,074.83 | | |
| | | | | Taxes w/o Exemptions: | $2,074.83 | | |
Improvement / Building
| Improvement #1: | RESIDENTIAL | State Code: | 11 | 1494.0 sqft | Value: | $182,520 |
| Exterior Wall: | SIDING | Heating/Cooling: | BASEBOARD ELECTRIC | | Number of Bathrooms: | 2 | Number of Bedrooms: | 3 | | Plumbing: | 10 | Roof Covering: | METAL ROOFING |
|
| | Type | Description | Class CD | Sub Class CD | Year Built | Area |
| | MA | Main Area | 4 | 30 | 1983 | 1494.0 |
| | POL3 | POLE BUILDING-CON,ELEC,INSU | 4 | 30 | 1983 | 720.0 |
| | SI1 | SITE IMPROVEMENT | 4 | 30 | 1983 | 1.0 |
| | UPFL | Upper Floor (included in main area) | 4 | 30 | 1983 | 368.0 |
| | WOD | Wood Deck | 4 | 30 | 1983 | 174.0 |
| | UTIL-STOR | UTILITY STORAGE | 1 | 20 | 1983 | 72.0 |
Sketch
Property Image
Land
| 1 | RES 1 | Converted: Residential | 27.9900 | 1219244.40 | 0.00 | 0.00 | 1.00 | $75,600 | $0 |
Roll Value History
| 2025 | N/A | N/A | N/A | N/A | N/A |
| 2024 | $198,010 | $110,090 | $0 | $308,100 | $308,100 |
| 2023 | $182,520 | $75,600 | $0 | $258,120 | $258,120 |
| 2022 | $182,520 | $75,600 | $0 | $258,120 | $258,120 |
| 2021 | $152,100 | $75,600 | $0 | $227,700 | $227,700 |
| 2020 | $102,120 | $75,600 | $0 | $177,720 | $177,720 |
| 2019 | $102,120 | $75,600 | $0 | $177,720 | $177,720 |
| 2018 | $92,840 | $75,600 | $0 | $168,440 | $168,440 |
| 2017 | $92,840 | $54,600 | $0 | $147,440 | $147,440 |
| 2016 | $84,400 | $73,600 | $0 | $158,000 | $158,000 |
| 2015 | $84,400 | $73,600 | $0 | $158,000 | $158,000 |
| 2014 | $84,400 | $73,600 | $0 | $158,000 | $158,000 |
| 2013 | $83,600 | $54,600 | $0 | $138,200 | $138,200 |
| 2012 | $78,300 | $54,600 | $0 | $0 | $0 |
| 2011 | $71,800 | $54,600 | $0 | $0 | $0 |
| 2010 | $71,800 | $54,600 | $0 | $0 | $0 |
| 2009 | $71,800 | $54,600 | $0 | $0 | $0 |
| 2008 | $71,800 | $33,000 | $0 | $0 | $0 |
| 2007 | $71,800 | $33,000 | $0 | $0 | $0 |
| 2006 | $71,800 | $33,000 | $0 | $0 | $0 |
Deed and Sales History
| 1 | 08/23/2019 | QCD | QUIT CLAIM DEED | NOVAK NICOLE | NOVAK NICOLE M | | | $0.00 | 137585 | 2019-06703 |
| 2 | 08/11/2014 | WARRANTY D | WARRANTY DEED | HANSEN BARBARA B WHITEAKER | NOVAK NICOLE | | | $150,000.00 | 124904 | 2013-10896 |
Payout Agreement
| No payout information available.. |