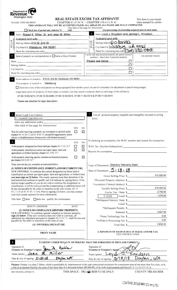
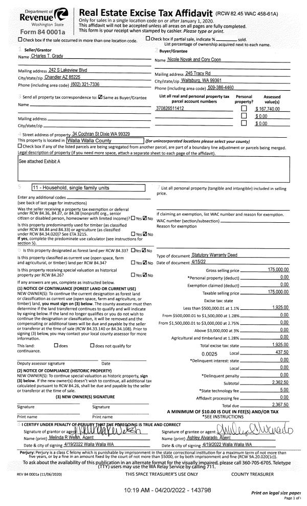
Property
Account |
| Property ID: | 31824 | Abbreviated Legal Description: | 29-7-36 TAX 21 |
| Parcel Number: | 360729210014 | Agent Code: | |
| Type: | Real | | |
| Tax Area: | 1 - OL-140-F | Land Use Code | 11 |
| Open Space: | N | DFL | N |
| Historic Property: | N | Remodel Property: | N |
| Multi-Family Redevelopment: | N | | |
| Township: | 7 | Section: | 29 |
| Range: | 36 |
Location |
| Address: | 339 S 4TH AVE WA 99362 | Mapsco: | |
| Neighborhood: | Fair Inferior Res | Map ID: | |
| Neighborhood CD: | 512111 |
Owner |
| Name: | HERNANDEZ ABEL | Owner ID: | 68041 |
| Mailing Address: | 339 S 4TH AVE WALLA WALLA, WA 99362 | % Ownership: | 100.0000000000% |
| | | Exemptions: | |
Taxes and Assessment Details
Values
| (+) Improvement Homesite Value: | + | $222,490 | |
| (+) Improvement Non-Homesite Value: | + | $0 | |
| (+) Land Homesite Value: | + | $44,230 | |
| (+) Land Non-Homesite Value: | + | $0 | |
| (+) Curr Use (HS): | + | $0 | $0 |
| (+) Curr Use (NHS): | + | $0 | $0 |
| | | -------------------------- | |
| (=) Market Value: | = | $266,720 | |
| (–) Productivity Loss: | – | $0 | |
| | | -------------------------- | |
| (=) Subtotal: | = | $266,720 | |
| (+) Senior Appraised Value: | + | $0 | |
| (+) Non-Senior Appraised Value: | + | $266,720 | |
| | | -------------------------- | |
| (=) Total Appraised Value: | = | $266,720 | |
| (–) Senior Exemption Loss: | – | $0 | |
| (–) Exemption Loss: | – | $0 | |
| | | -------------------------- | |
| (=) Taxable Value: | = | $266,720 | |
Taxing Jurisdiction
| Owner: | HERNANDEZ ABEL | | |
| % Ownership: | 100.0000000000% | | |
| Total Value: | $266,720 | | |
| Tax Area: | 1 - OL-140-F |
| CERFD | CURRENT EXPENSE REFUND 010 | 0.0000000000 | $266,720 | $266,720 | $0.00 | | |
| CURREXP | CURRENT EXPENSE 010 | 1.0175366760 | $266,720 | $266,720 | $271.40 | | |
| HUMNSERV | HUMAN SERVICES 119 | 0.0250000000 | $266,720 | $266,720 | $6.67 | | |
| SLDREL | SOLDIERS RELIEF 121 | 0.0155990005 | $266,720 | $266,720 | $4.16 | | |
| EMERGSER | EMS 147 | 0.3792580840 | $266,720 | $266,720 | $101.16 | | |
| EMSRFD | EMS REFUND 147 | 0.0000000000 | $266,720 | $266,720 | $0.00 | | |
| PORTRFD | PORT REFUND 640 | 0.0000000000 | $266,720 | $266,720 | $0.00 | | |
| PORTWWGEN | PORT OF WW 640 | 0.2460186015 | $266,720 | $266,720 | $65.62 | | |
| SD140BOND | SD #140 BOND 764 | 0.8342371393 | $266,720 | $266,720 | $222.51 | | |
| SD140GEN | SD #140 GENERAL 760 | 2.0646500647 | $266,720 | $266,720 | $550.68 | | |
| ST2 | STATE SCHOOL PART 2 600 | 0.8131451643 | $266,720 | $266,720 | $216.88 | | |
| STATESCHL | STATE SCHOOL 600 | 1.5158548041 | $266,720 | $266,720 | $404.31 | | |
| STREFUND | STATE REFUND LEVY 603 | 0.0000000000 | $266,720 | $266,720 | $0.00 | | |
| CWWBOND | C OF WW BOND 643 | 0.2760494372 | $266,720 | $266,720 | $73.63 | | |
| CWWGEN | CITY OF WW 631 | 1.6100204973 | $266,720 | $266,720 | $429.42 | | |
| CWWRFD | CITY OF WALLA WALLA REFUND 631 | 0.0000000000 | $266,720 | $266,720 | $0.00 | | |
| | Total Tax Rate: | 8.7973694689 | | | | | |
| | | | | Taxes w/Current Exemptions: | $2,346.44 | | |
| | | | | Taxes w/o Exemptions: | $2,346.44 | | |
Improvement / Building
| Improvement #1: | RESIDENTIAL | State Code: | 11 | 2543.0 sqft | Value: | $222,490 |
| Exterior Wall: | SIDING | Heating/Cooling: | FORCED AIR | | Number of Bathrooms: | 4 | Number of Bedrooms: | 4 | | Plumbing: | 17 | Roof Covering: | COMP SHINGLE |
|
| | Type | Description | Class CD | Sub Class CD | Year Built | Area |
| | MA | Main Area | 2 | 30 | 1900 | 2543.0 |
| | UPFL | Upper Floor (included in main area) | 2 | 30 | 1900 | 1147.0 |
| | SI1 | SITE IMPROVEMENT | 2 | 30 | 1900 | 1.0 |
| | BASE | BASEMENT | 2 | 30 | 1900 | 648.0 |
| | BRF | BASEMENT - REC FINISH | 2 | 30 | 1900 | 600.0 |
| | RPO | OPEN PORCH W/ROOF | 2 | 30 | 1900 | 21.0 |
| | RPO | OPEN PORCH W/ROOF | 2 | 30 | 1900 | 188.0 |
Sketch
Property Image
Land
| 1 | RES 1 | Converted: Residential | 0.1624 | 7076.00 | 0.00 | 0.00 | 1.00 | $44,230 | $0 |
Roll Value History
| 2025 | N/A | N/A | N/A | N/A | N/A |
| 2024 | $205,900 | $63,700 | $0 | $269,600 | $269,600 |
| 2023 | $222,490 | $44,230 | $0 | $266,720 | $266,720 |
| 2022 | $193,470 | $44,230 | $0 | $237,700 | $237,700 |
| 2021 | $148,820 | $44,230 | $0 | $193,050 | $193,050 |
| 2020 | $148,820 | $44,230 | $0 | $193,050 | $193,050 |
| 2019 | $148,820 | $44,230 | $0 | $193,050 | $19,800 |
| 2018 | $124,020 | $44,230 | $0 | $168,250 | $19,800 |
| 2017 | $111,400 | $42,500 | $0 | $153,900 | $19,800 |
| 2016 | $111,400 | $42,500 | $0 | $153,900 | $19,800 |
| 2015 | $111,400 | $42,500 | $0 | $153,900 | $19,800 |
| 2014 | $111,400 | $42,500 | $0 | $153,900 | $19,800 |
| 2013 | $111,400 | $42,500 | $0 | $153,900 | $0 |
| 2012 | $55,700 | $42,500 | $0 | $0 | $0 |
| 2011 | $55,700 | $42,500 | $0 | $0 | $0 |
| 2010 | $55,700 | $42,500 | $0 | $0 | $0 |
| 2009 | $64,300 | $42,500 | $0 | $0 | $0 |
| 2008 | $64,300 | $42,500 | $0 | $0 | $0 |
| 2007 | $58,100 | $17,700 | $0 | $0 | $0 |
| 2006 | $58,100 | $17,700 | $0 | $0 | $0 |
Deed and Sales History
| 1 | 10/02/2020 | SWD | STATUTORY WARRANTY DEED | HOLDCROFT JOANNE | HERNANDEZ ABEL | | | $140,000.00 | 140019 | 2020-10119 |
| 2 | 08/19/1991 | WARRANTY D | WARRANTY DEED | | | | | $36,500.00 | 75282 | 1919-105642 |
Payout Agreement
| No payout information available.. |