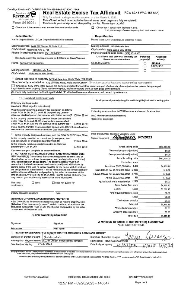
Property
Account |
| Property ID: | 31648 | Abbreviated Legal Description: | LUCARELLI'S 2ND SUBDIVISION LOT 2 |
| Parcel Number: | 350726680002 | Agent Code: | |
| Type: | Real | | |
| Tax Area: | 311 - 250-4 | Land Use Code | 11 |
| Open Space: | N | DFL | N |
| Historic Property: | N | Remodel Property: | N |
| Multi-Family Redevelopment: | N | | |
| Township: | 7 | Section: | 26 |
| Range: | 35 |
Location |
| Address: | 747 BLALOCK DR WA 99324 | Mapsco: | |
| Neighborhood: | A SFR Rural/City Infl | Map ID: | |
| Neighborhood CD: | 313012 |
Owner |
| Name: | RUFF AMY L | Owner ID: | 72757 |
| Mailing Address: | 747 BLALOCK DR WALLA WALLA, WA 99362 | % Ownership: | 100.0000000000% |
| | | Exemptions: | |
Taxes and Assessment Details
Values
| (+) Improvement Homesite Value: | + | $0 | |
| (+) Improvement Non-Homesite Value: | + | $644,740 | |
| (+) Land Homesite Value: | + | $0 | |
| (+) Land Non-Homesite Value: | + | $90,000 | |
| (+) Curr Use (HS): | + | $0 | $0 |
| (+) Curr Use (NHS): | + | $0 | $0 |
| | | -------------------------- | |
| (=) Market Value: | = | $734,740 | |
| (–) Productivity Loss: | – | $0 | |
| | | -------------------------- | |
| (=) Subtotal: | = | $734,740 | |
| (+) Senior Appraised Value: | + | $0 | |
| (+) Non-Senior Appraised Value: | + | $734,740 | |
| | | -------------------------- | |
| (=) Total Appraised Value: | = | $734,740 | |
| (–) Senior Exemption Loss: | – | $0 | |
| (–) Exemption Loss: | – | $0 | |
| | | -------------------------- | |
| (=) Taxable Value: | = | $734,740 | |
Taxing Jurisdiction
| Owner: | RUFF AMY L | | |
| % Ownership: | 100.0000000000% | | |
| Total Value: | $734,740 | | |
| Tax Area: | 311 - 250-4 |
| CERFD | CURRENT EXPENSE REFUND 010 | 0.0000000000 | $734,740 | $734,740 | $0.00 | | |
| CURREXP | CURRENT EXPENSE 010 | 1.0175366760 | $734,740 | $734,740 | $747.62 | | |
| HUMNSERV | HUMAN SERVICES 119 | 0.0250000000 | $734,740 | $734,740 | $18.37 | | |
| SLDREL | SOLDIERS RELIEF 121 | 0.0155990005 | $734,740 | $734,740 | $11.46 | | |
| EMERGSER | EMS 147 | 0.3792580840 | $734,740 | $734,740 | $278.66 | | |
| EMSRFD | EMS REFUND 147 | 0.0000000000 | $734,740 | $734,740 | $0.00 | | |
| FD4EXP | FD #4 EXPENSE 686 | 0.8836993059 | $734,740 | $734,740 | $649.29 | | |
| RLBRFD | RURAL LIBRARY REFUND 623 | 0.0000000000 | $734,740 | $734,740 | $0.00 | | |
| RURALLIB | RURAL LIBRARY 623 | 0.3710609029 | $734,740 | $734,740 | $272.63 | | |
| PORTRFD | PORT REFUND 640 | 0.0000000000 | $734,740 | $734,740 | $0.00 | | |
| PORTWWGEN | PORT OF WW 640 | 0.2460186015 | $734,740 | $734,740 | $180.76 | | |
| SD250BOND | SD #250 BOND 773 | 1.4560608159 | $734,740 | $734,740 | $1,069.83 | | |
| SD250GEN | SD #250 GENERAL 770 | 2.3880724087 | $734,740 | $734,740 | $1,754.61 | | |
| ST2 | STATE SCHOOL PART 2 600 | 0.8131451643 | $734,740 | $734,740 | $597.45 | | |
| STATESCHL | STATE SCHOOL 600 | 1.5158548041 | $734,740 | $734,740 | $1,113.76 | | |
| STREFUND | STATE REFUND LEVY 603 | 0.0000000000 | $734,740 | $734,740 | $0.00 | | |
| COROAD | COUNTY ROAD 115 | 1.6549953990 | $734,740 | $734,740 | $1,215.99 | | |
| CRPRD | COUNTY ROAD REFUND 115 | 0.0000000000 | $734,740 | $734,740 | $0.00 | | |
| | Total Tax Rate: | 10.7663011628 | | | | | |
| | | | | Taxes w/Current Exemptions: | $7,910.43 | | |
| | | | | Taxes w/o Exemptions: | $7,910.43 | | |
Improvement / Building
| Improvement #1: | RESIDENTIAL | State Code: | 11 | 3061.0 sqft | Value: | $644,740 |
| Exterior Wall: | STUCCO | Heating/Cooling: | WARM & COOLED AIR | | Number of Bathrooms: | 3 | Number of Bedrooms: | 4 | | Plumbing: | 13 | Roof Covering: | COMP SHINGLE |
|
| | Type | Description | Class CD | Sub Class CD | Year Built | Area |
| | MA | Main Area | 1 | 45 | 2011 | 3061.0 |
| | GFP | GAS FIREPLACE | 1 | 45 | 2011 | 1.0 |
| | RCD | WOOD DECK W/ROOF, CEILED | 1 | 45 | 2011 | 270.0 |
| | RPC | OPEN PORCH W/ROOF , CEILED | 1 | 45 | 2011 | 64.0 |
| | SI1 | SITE IMPROVEMENT | 1 | 45 | 0 | 5.0 |
| | ATG | Attached Garage | 1 | 45 | 2011 | 1240.0 |
| | DTG | Detached Garage | 1 | 45 | 2011 | 200.0 |
Sketch
Property Image
Land
| 1 | RES 1 | Converted: Residential | 0.0000 | 0.00 | 0.00 | 0.00 | 1.00 | $90,000 | $0 |
Roll Value History
| 2025 | N/A | N/A | N/A | N/A | N/A |
| 2024 | $644,740 | $90,000 | $0 | $734,740 | $734,740 |
| 2023 | $644,740 | $90,000 | $0 | $734,740 | $734,740 |
| 2022 | $614,040 | $90,000 | $0 | $704,040 | $704,040 |
| 2021 | $592,900 | $55,000 | $0 | $647,900 | $647,900 |
| 2020 | $494,090 | $55,000 | $0 | $549,090 | $549,090 |
| 2019 | $494,090 | $55,000 | $0 | $549,090 | $549,090 |
| 2018 | $479,700 | $55,000 | $0 | $534,700 | $534,700 |
| 2017 | $383,760 | $55,000 | $0 | $438,760 | $438,760 |
| 2016 | $348,870 | $55,000 | $0 | $403,870 | $403,870 |
| 2015 | $337,060 | $55,000 | $0 | $392,060 | $392,060 |
| 2014 | $354,800 | $55,000 | $0 | $409,800 | $409,800 |
| 2013 | $354,800 | $55,000 | $0 | $409,800 | $409,800 |
| 2012 | $0 | $55,000 | $0 | $0 | $0 |
| 2011 | $0 | $55,000 | $0 | $0 | $0 |
| 2010 | $0 | $55,000 | $0 | $0 | $0 |
| 2009 | $0 | $60,000 | $0 | $0 | $0 |
| 2008 | $0 | $2,000 | $0 | $0 | $0 |
| 2007 | $0 | $2,000 | $0 | $0 | $0 |
| 2006 | $0 | $2,000 | $0 | $0 | $0 |
Deed and Sales History
| 1 | 06/12/2025 | SWD | STATUTORY WARRANTY DEED | RUFF AMY L | BURGER STEVEN HENRY & PAMELA JOAN | | | $900,000.00 | 149520 | 2025-03309 |
| 2 | 11/29/2022 | AFFIDAVIT | AFFIDAVIT | RUFF MICHAEL G ESTATE OF & AMY L | RUFF AMY L | | | $0.00 | 145088 | 2022-09466 |
| 3 | 10/06/2017 | SWD | STATUTORY WARRANTY DEED | KUZNETSOV SLAVIK & OLGA | RUFF MICHAEL G ESTATE OF & AMY L | | | $553,000.00 | 133369 | 2017-07966 |
| 4 | 05/13/2011 | WARRANTY D | WARRANTY DEED | PREAS, DAN D & MARVA | KUZNETSOV, SLAVIK & OLGA | | | $85,000.00 | 120127 | 2011-03769 |
| 5 | 08/20/2007 | WARRANTY D | WARRANTY DEED | LUCARELLI, JOHN | PREAS DAN D & MARVA | | | $175,000.00 | 113541 | 2007-09706 |
|   | |
| 6 | 05/10/2007 | WARRANTY D | WARRANTY DEED | "LUCARELLI, RHEA" | LUCARELLI JOHN | | | | 112783 | 2007-05249 |
Payout Agreement
| No payout information available.. |