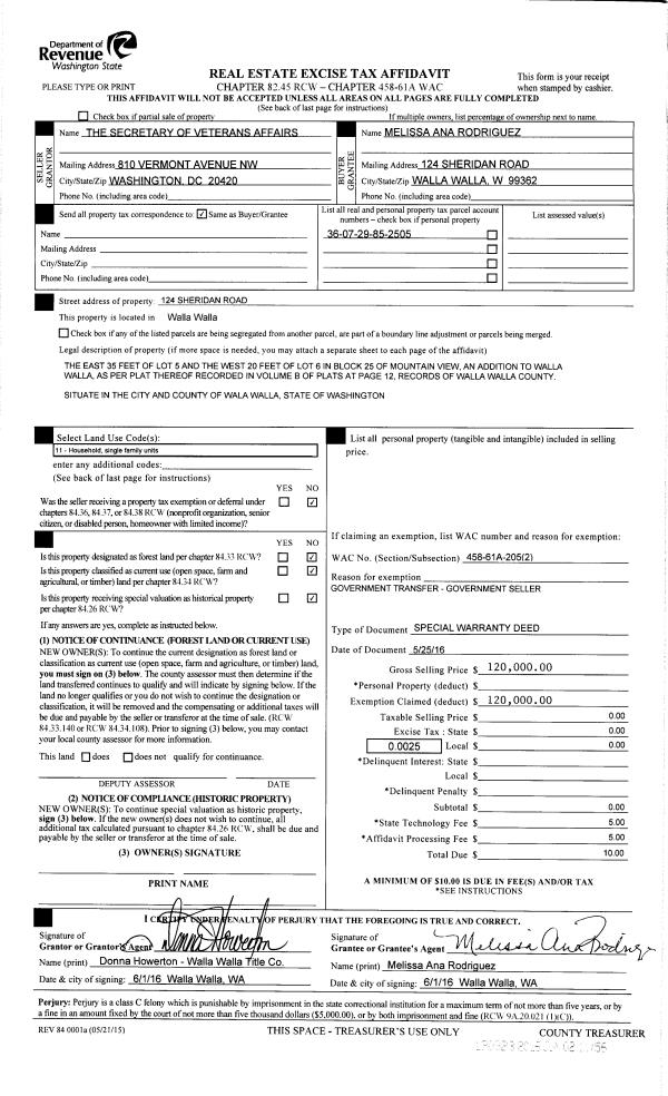
Property
Account |
| Property ID: | 31490 | Abbreviated Legal Description: | 11-7-38 SM PTN IN NLY PT OF S1/2SW1/4 LESS RD |
| Parcel Number: | 380711330009 | Agent Code: | |
| Type: | Real | | |
| Tax Area: | 309 - 101 | Land Use Code | 81 |
| Open Space: | N | DFL | N |
| Historic Property: | N | Remodel Property: | N |
| Multi-Family Redevelopment: | N | | |
| Township: | 7 | Section: | 11 |
| Range: | 38 |
Location |
| Address: | WA 99329 | Mapsco: | |
| Neighborhood: | F+ Mnt Prop Land | Map ID: | |
| Neighborhood CD: | 512295 |
Owner |
| Name: | BLANC HILLARY MARIE | Owner ID: | 64371 |
| Mailing Address: | 1644 PLAZA WAY #116 WALLA WALLA, WA 99362 | % Ownership: | 100.0000000000% |
| | | Exemptions: | |
Taxes and Assessment Details
Values
| (+) Improvement Homesite Value: | + | $0 | |
| (+) Improvement Non-Homesite Value: | + | $0 | |
| (+) Land Homesite Value: | + | $0 | |
| (+) Land Non-Homesite Value: | + | $1,500 | |
| (+) Curr Use (HS): | + | $0 | $0 |
| (+) Curr Use (NHS): | + | $0 | $0 |
| | | -------------------------- | |
| (=) Market Value: | = | $1,500 | |
| (–) Productivity Loss: | – | $0 | |
| | | -------------------------- | |
| (=) Subtotal: | = | $1,500 | |
| (+) Senior Appraised Value: | + | $0 | |
| (+) Non-Senior Appraised Value: | + | $1,500 | |
| | | -------------------------- | |
| (=) Total Appraised Value: | = | $1,500 | |
| (–) Senior Exemption Loss: | – | $0 | |
| (–) Exemption Loss: | – | $0 | |
| | | -------------------------- | |
| (=) Taxable Value: | = | $1,500 | |
Taxing Jurisdiction
| Owner: | BLANC HILLARY MARIE | | |
| % Ownership: | 100.0000000000% | | |
| Total Value: | $1,500 | | |
| Tax Area: | 309 - 101 |
| CERFD | CURRENT EXPENSE REFUND 010 | 0.0000000000 | $1,500 | $1,500 | $0.00 | | |
| CURREXP | CURRENT EXPENSE 010 | 1.0175366760 | $1,500 | $1,500 | $1.53 | | |
| HUMNSERV | HUMAN SERVICES 119 | 0.0250000000 | $1,500 | $1,500 | $0.04 | | |
| SLDREL | SOLDIERS RELIEF 121 | 0.0155990005 | $1,500 | $1,500 | $0.02 | | |
| EMERGSER | EMS 147 | 0.3792580840 | $1,500 | $1,500 | $0.57 | | |
| EMSRFD | EMS REFUND 147 | 0.0000000000 | $1,500 | $1,500 | $0.00 | | |
| RLBRFD | RURAL LIBRARY REFUND 623 | 0.0000000000 | $1,500 | $1,500 | $0.00 | | |
| RURALLIB | RURAL LIBRARY 623 | 0.3710609029 | $1,500 | $1,500 | $0.56 | | |
| PORTRFD | PORT REFUND 640 | 0.0000000000 | $1,500 | $1,500 | $0.00 | | |
| PORTWWGEN | PORT OF WW 640 | 0.2460186015 | $1,500 | $1,500 | $0.37 | | |
| SD101CAP | SD #101 CAP 752 | 0.5894423472 | $1,500 | $1,500 | $0.88 | | |
| SD101GEN | SD #101 GENERAL 750 | 0.7455117868 | $1,500 | $1,500 | $1.12 | | |
| ST2 | STATE SCHOOL PART 2 600 | 0.8131451643 | $1,500 | $1,500 | $1.22 | | |
| STATESCHL | STATE SCHOOL 600 | 1.5158548041 | $1,500 | $1,500 | $2.27 | | |
| STREFUND | STATE REFUND LEVY 603 | 0.0000000000 | $1,500 | $1,500 | $0.00 | | |
| COROAD | COUNTY ROAD 115 | 1.6549953990 | $1,500 | $1,500 | $2.48 | | |
| CRPRD | COUNTY ROAD REFUND 115 | 0.0000000000 | $1,500 | $1,500 | $0.00 | | |
| | Total Tax Rate: | 7.3734227663 | | | | | |
| | | | | Taxes w/Current Exemptions: | $11.06 | | |
| | | | | Taxes w/o Exemptions: | $11.06 | | |
Improvement / Building
Sketch
| No sketches available for this property. |
Property Image
Land
| 1 | RES 1 | Converted: Residential | 3.0000 | 0.00 | 0.00 | 0.00 | 1.00 | $1,500 | $0 |
Roll Value History
| 2025 | N/A | N/A | N/A | N/A | N/A |
| 2024 | $0 | $3,000 | $0 | $3,000 | $3,000 |
| 2023 | $0 | $1,500 | $0 | $1,500 | $1,500 |
| 2022 | $0 | $1,500 | $0 | $1,500 | $1,500 |
| 2021 | $0 | $1,500 | $0 | $1,500 | $1,500 |
| 2020 | $0 | $1,500 | $0 | $1,500 | $1,500 |
| 2019 | $0 | $1,500 | $0 | $1,500 | $1,500 |
| 2018 | $0 | $1,500 | $0 | $1,500 | $1,500 |
| 2017 | $0 | $2,900 | $0 | $2,900 | $2,900 |
| 2016 | $0 | $2,900 | $0 | $2,900 | $2,900 |
| 2015 | $0 | $2,900 | $0 | $2,900 | $2,900 |
| 2014 | $0 | $2,900 | $0 | $2,900 | $2,900 |
| 2013 | $0 | $2,900 | $0 | $2,900 | $2,900 |
| 2012 | $0 | $2,900 | $0 | $0 | $0 |
| 2011 | $0 | $2,900 | $0 | $0 | $0 |
| 2010 | $0 | $2,900 | $0 | $0 | $0 |
| 2009 | $0 | $2,900 | $0 | $0 | $0 |
| 2008 | $0 | $1,800 | $0 | $0 | $0 |
| 2007 | $0 | $1,800 | $0 | $0 | $0 |
| 2006 | $0 | $1,800 | $0 | $0 | $0 |
Deed and Sales History
| 1 | 12/31/2018 | QCD | QUIT CLAIM DEED | BLANC JONATHAN MATTHEW | BLANC HILLARY MARIE | | | $0.00 | 136194 | 2018-10765 |
| 2 | 04/22/2016 | DPR | DEED OF PERSONAL REPRESENTATIVE | BLANC MARCEL C & G GAYE | BLANC JONATHAN MATTHEW | | | | 130079 | 2016-03005 |
| 3 | 08/06/1992 | WARRANTY D | WARRANTY DEED | | | | | $65,000.00 | 77376 | 1999-206940 |
|   | |
Payout Agreement
| No payout information available.. |