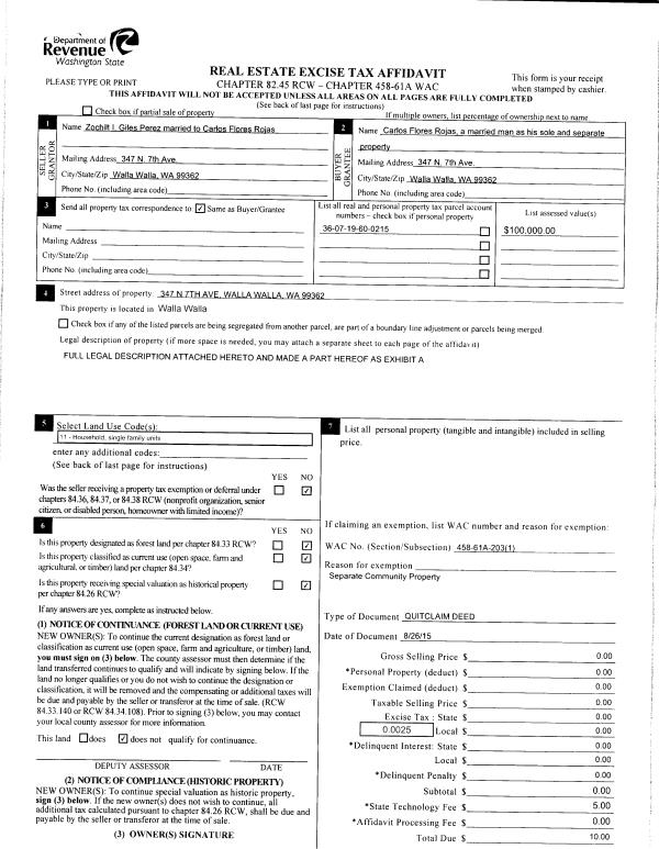
Property
Account |
| Property ID: | 31466 | Abbreviated Legal Description: | 10-7-38 PTN LOT 12 SCOTT CANYON TRACTS (WLY PTN NW1/4NW1/4) |
| Parcel Number: | 380710220006 | Agent Code: | |
| Type: | Real | | |
| Tax Area: | 309 - 101 | Land Use Code | 91 |
| Open Space: | N | DFL | N |
| Historic Property: | N | Remodel Property: | N |
| Multi-Family Redevelopment: | N | | |
| Township: | 7 | Section: | 10 |
| Range: | 38 |
Location |
| Address: | 1465 SCOTT RD WA 99329 | Mapsco: | |
| Neighborhood: | F+ Mnt Prop Land | Map ID: | |
| Neighborhood CD: | 512295 |
Owner |
| Name: | NIMS PAUL & ARICIA | Owner ID: | 72190 |
| Mailing Address: | 2835 SAWGRASS LOOP RICHLAND, WA 99354 | % Ownership: | 100.0000000000% |
| | | Exemptions: | |
Taxes and Assessment Details
Values
| (+) Improvement Homesite Value: | + | $0 | |
| (+) Improvement Non-Homesite Value: | + | $0 | |
| (+) Land Homesite Value: | + | $0 | |
| (+) Land Non-Homesite Value: | + | $50,340 | |
| (+) Curr Use (HS): | + | $0 | $0 |
| (+) Curr Use (NHS): | + | $0 | $0 |
| | | -------------------------- | |
| (=) Market Value: | = | $50,340 | |
| (–) Productivity Loss: | – | $0 | |
| | | -------------------------- | |
| (=) Subtotal: | = | $50,340 | |
| (+) Senior Appraised Value: | + | $0 | |
| (+) Non-Senior Appraised Value: | + | $50,340 | |
| | | -------------------------- | |
| (=) Total Appraised Value: | = | $50,340 | |
| (–) Senior Exemption Loss: | – | $0 | |
| (–) Exemption Loss: | – | $0 | |
| | | -------------------------- | |
| (=) Taxable Value: | = | $50,340 | |
Taxing Jurisdiction
| Owner: | NIMS PAUL & ARICIA | | |
| % Ownership: | 100.0000000000% | | |
| Total Value: | $50,340 | | |
| Tax Area: | 309 - 101 |
| CERFD | CURRENT EXPENSE REFUND 010 | 0.0000000000 | $50,340 | $50,340 | $0.00 | | |
| CURREXP | CURRENT EXPENSE 010 | 1.0175366760 | $50,340 | $50,340 | $51.22 | | |
| HUMNSERV | HUMAN SERVICES 119 | 0.0250000000 | $50,340 | $50,340 | $1.26 | | |
| SLDREL | SOLDIERS RELIEF 121 | 0.0155990005 | $50,340 | $50,340 | $0.79 | | |
| EMERGSER | EMS 147 | 0.3792580840 | $50,340 | $50,340 | $19.09 | | |
| EMSRFD | EMS REFUND 147 | 0.0000000000 | $50,340 | $50,340 | $0.00 | | |
| RLBRFD | RURAL LIBRARY REFUND 623 | 0.0000000000 | $50,340 | $50,340 | $0.00 | | |
| RURALLIB | RURAL LIBRARY 623 | 0.3710609029 | $50,340 | $50,340 | $18.68 | | |
| PORTRFD | PORT REFUND 640 | 0.0000000000 | $50,340 | $50,340 | $0.00 | | |
| PORTWWGEN | PORT OF WW 640 | 0.2460186015 | $50,340 | $50,340 | $12.38 | | |
| SD101CAP | SD #101 CAP 752 | 0.5894423472 | $50,340 | $50,340 | $29.67 | | |
| SD101GEN | SD #101 GENERAL 750 | 0.7455117868 | $50,340 | $50,340 | $37.53 | | |
| ST2 | STATE SCHOOL PART 2 600 | 0.8131451643 | $50,340 | $50,340 | $40.93 | | |
| STATESCHL | STATE SCHOOL 600 | 1.5158548041 | $50,340 | $50,340 | $76.31 | | |
| STREFUND | STATE REFUND LEVY 603 | 0.0000000000 | $50,340 | $50,340 | $0.00 | | |
| COROAD | COUNTY ROAD 115 | 1.6549953990 | $50,340 | $50,340 | $83.31 | | |
| CRPRD | COUNTY ROAD REFUND 115 | 0.0000000000 | $50,340 | $50,340 | $0.00 | | |
| | Total Tax Rate: | 7.3734227663 | | | | | |
| | | | | Taxes w/Current Exemptions: | $371.17 | | |
| | | | | Taxes w/o Exemptions: | $371.17 | | |
Improvement / Building
Sketch
| No sketches available for this property. |
Property Image
Land
| 1 | RES 1 | Converted: Residential | 16.1700 | 0.00 | 0.00 | 0.00 | 1.00 | $50,340 | $0 |
Roll Value History
| 2025 | N/A | N/A | N/A | N/A | N/A |
| 2024 | $43,800 | $85,700 | $0 | $129,500 | $129,500 |
| 2023 | $0 | $50,340 | $0 | $50,340 | $50,340 |
| 2022 | $0 | $50,340 | $0 | $50,340 | $50,340 |
| 2021 | $0 | $50,340 | $0 | $50,340 | $50,340 |
| 2020 | $0 | $50,340 | $0 | $50,340 | $50,340 |
| 2019 | $0 | $50,340 | $0 | $50,340 | $50,340 |
| 2018 | $0 | $50,340 | $0 | $50,340 | $50,340 |
| 2017 | $0 | $27,700 | $0 | $27,700 | $27,700 |
| 2016 | $0 | $27,700 | $0 | $27,700 | $27,700 |
| 2015 | $0 | $27,700 | $0 | $27,700 | $27,700 |
| 2014 | $0 | $27,700 | $0 | $27,700 | $27,700 |
| 2013 | $0 | $27,700 | $0 | $27,700 | $27,700 |
| 2012 | $0 | $27,700 | $0 | $0 | $0 |
| 2011 | $0 | $17,700 | $0 | $0 | $0 |
| 2010 | $100 | $17,700 | $0 | $0 | $0 |
| 2009 | $100 | $17,700 | $0 | $0 | $0 |
| 2008 | $0 | $17,800 | $0 | $0 | $0 |
| 2007 | $0 | $17,800 | $0 | $0 | $0 |
| 2006 | $0 | $17,800 | $0 | $0 | $0 |
Deed and Sales History
| 1 | 08/31/2022 | SWD | STATUTORY WARRANTY DEED | | NIMS PAUL & ARICIA | | 2-PARCELS | $116,500.00 | 144605 | 2022-07339 |
|   | |
| 2 | 08/31/2022 | LOPA | LACK OF PROBATE AFFIDAVIT | | BENSEL LORRIE | | 2-PARCELS | | 144603 | 2022-07338 |
| 3 | 01/08/2018 | FUL | FULFILLMENT DEED | | BENSEL TOM & LORRIE | | | | 0 | 2018-00204 |
| 4 | 11/13/2015 | REAL ESTAT | REAL ESTATE CONTRACT | BIRGE MICHAEL L | BENSEL TOM & LORRIE | | 2-PARCELS | $73,000.00 | 129189 | 2015-09889 |
|   | |
| 5 | 07/15/1988 | WARRANTY D | WARRANTY DEED | | | | | $23,000.00 | 0 | 2089-306637 |
|   | |
Payout Agreement
| No payout information available.. |