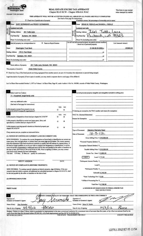
Property
Account |
| Property ID: | 31464 | Abbreviated Legal Description: | 10-7-38 TRACT 24; PT TRACT 28 LY IN NW CORNER OF NE1/4NW1/4 SEC 10;SM PTN IN SELY CORNER SE1/4SW1/4 3-7-38 LESS RDS (THIS IS ADJUSTEDLOT 24 OF LEWIS RIDGE TRACTS SURVEY) |
| Parcel Number: | 380710210014 | Agent Code: | |
| Type: | Real | | |
| Tax Area: | 309 - 101 | Land Use Code | 19 |
| Open Space: | N | DFL | N |
| Historic Property: | N | Remodel Property: | N |
| Multi-Family Redevelopment: | N | | |
| Township: | 7 | Section: | 10 |
| Range: | 38 |
Location |
| Address: | 1737 SCOTT RD WA 99329 | Mapsco: | |
| Neighborhood: | F+ Mnt Prop Cabin | Map ID: | |
| Neighborhood CD: | 512275 |
Owner |
| Name: | ANDREWJESKI RODNEY D | Owner ID: | 54998 |
| Mailing Address: | 4730 RINGOLD RD ELTOPIA, WA 99330 | % Ownership: | 100.0000000000% |
| | | Exemptions: | |
Taxes and Assessment Details
Values
| (+) Improvement Homesite Value: | + | $0 | |
| (+) Improvement Non-Homesite Value: | + | $7,000 | |
| (+) Land Homesite Value: | + | $0 | |
| (+) Land Non-Homesite Value: | + | $51,290 | |
| (+) Curr Use (HS): | + | $0 | $0 |
| (+) Curr Use (NHS): | + | $0 | $0 |
| | | -------------------------- | |
| (=) Market Value: | = | $58,290 | |
| (–) Productivity Loss: | – | $0 | |
| | | -------------------------- | |
| (=) Subtotal: | = | $58,290 | |
| (+) Senior Appraised Value: | + | $0 | |
| (+) Non-Senior Appraised Value: | + | $58,290 | |
| | | -------------------------- | |
| (=) Total Appraised Value: | = | $58,290 | |
| (–) Senior Exemption Loss: | – | $0 | |
| (–) Exemption Loss: | – | $0 | |
| | | -------------------------- | |
| (=) Taxable Value: | = | $58,290 | |
Taxing Jurisdiction
| Owner: | ANDREWJESKI RODNEY D | | |
| % Ownership: | 100.0000000000% | | |
| Total Value: | $58,290 | | |
| Tax Area: | 309 - 101 |
| CERFD | CURRENT EXPENSE REFUND 010 | 0.0000000000 | $58,290 | $58,290 | $0.00 | | |
| CURREXP | CURRENT EXPENSE 010 | 1.0175366760 | $58,290 | $58,290 | $59.31 | | |
| HUMNSERV | HUMAN SERVICES 119 | 0.0250000000 | $58,290 | $58,290 | $1.46 | | |
| SLDREL | SOLDIERS RELIEF 121 | 0.0155990005 | $58,290 | $58,290 | $0.91 | | |
| EMERGSER | EMS 147 | 0.3792580840 | $58,290 | $58,290 | $22.11 | | |
| EMSRFD | EMS REFUND 147 | 0.0000000000 | $58,290 | $58,290 | $0.00 | | |
| RLBRFD | RURAL LIBRARY REFUND 623 | 0.0000000000 | $58,290 | $58,290 | $0.00 | | |
| RURALLIB | RURAL LIBRARY 623 | 0.3710609029 | $58,290 | $58,290 | $21.63 | | |
| PORTRFD | PORT REFUND 640 | 0.0000000000 | $58,290 | $58,290 | $0.00 | | |
| PORTWWGEN | PORT OF WW 640 | 0.2460186015 | $58,290 | $58,290 | $14.34 | | |
| SD101CAP | SD #101 CAP 752 | 0.5894423472 | $58,290 | $58,290 | $34.36 | | |
| SD101GEN | SD #101 GENERAL 750 | 0.7455117868 | $58,290 | $58,290 | $43.46 | | |
| ST2 | STATE SCHOOL PART 2 600 | 0.8131451643 | $58,290 | $58,290 | $47.40 | | |
| STATESCHL | STATE SCHOOL 600 | 1.5158548041 | $58,290 | $58,290 | $88.36 | | |
| STREFUND | STATE REFUND LEVY 603 | 0.0000000000 | $58,290 | $58,290 | $0.00 | | |
| COROAD | COUNTY ROAD 115 | 1.6549953990 | $58,290 | $58,290 | $96.47 | | |
| CRPRD | COUNTY ROAD REFUND 115 | 0.0000000000 | $58,290 | $58,290 | $0.00 | | |
| | Total Tax Rate: | 7.3734227663 | | | | | |
| | | | | Taxes w/Current Exemptions: | $429.81 | | |
| | | | | Taxes w/o Exemptions: | $429.81 | | |
Improvement / Building
| Improvement #1: | RESIDENTIAL | State Code: | 19 | 216.0 sqft | Value: | $7,000 |
| Exterior Wall: | UNFINISHED CABIN | Foundation: | POST & PIER |
|
Sketch
| No sketches available for this property. |
Property Image
Land
| 1 | RES 1 | Converted: Residential | 25.4800 | 0.00 | 0.00 | 0.00 | 1.00 | $51,290 | $0 |
Roll Value History
| 2025 | N/A | N/A | N/A | N/A | N/A |
| 2024 | $7,000 | $57,410 | $0 | $64,410 | $64,410 |
| 2023 | $7,000 | $51,290 | $0 | $58,290 | $58,290 |
| 2022 | $7,000 | $51,290 | $0 | $58,290 | $58,290 |
| 2021 | $5,000 | $51,290 | $0 | $56,290 | $56,290 |
| 2020 | $5,000 | $51,290 | $0 | $56,290 | $56,290 |
| 2019 | $5,000 | $51,290 | $0 | $56,290 | $56,290 |
| 2018 | $5,000 | $51,290 | $0 | $56,290 | $56,290 |
| 2017 | $5,000 | $35,700 | $0 | $40,700 | $40,700 |
| 2016 | $5,000 | $35,700 | $0 | $40,700 | $40,700 |
| 2015 | $5,000 | $35,700 | $0 | $40,700 | $40,700 |
| 2014 | $5,000 | $35,700 | $0 | $40,700 | $40,700 |
| 2013 | $5,000 | $35,700 | $0 | $40,700 | $40,700 |
| 2012 | $5,000 | $35,700 | $0 | $0 | $0 |
| 2011 | $5,200 | $24,200 | $0 | $0 | $0 |
| 2010 | $5,200 | $24,200 | $0 | $0 | $0 |
| 2009 | $5,200 | $27,100 | $0 | $0 | $0 |
| 2008 | $5,000 | $35,700 | $0 | $0 | $0 |
Deed and Sales History
| 1 | 06/23/2014 | SWP | Special Warranty Deed | CAL SCOTT ROAD REAL ESTATE LLC | ANDREWJESKI RODNEY D | 2-PARCELS | | $45,000.00 | 126111 | 2014-04279 |
| 2 | 07/12/2013 | TRUSTEES D | TRUSTEE'S DEED | "ROSENFIELD, KEVIN R~TRUSTEE" | | 2-PARCLES | | $62,000.00 | 124276 | 2013-07001 |
|   | |
Payout Agreement
| No payout information available.. |