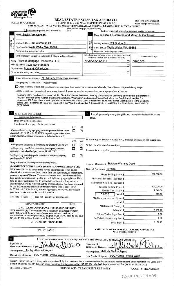
Property
Account |
| Property ID: | 31462 | Abbreviated Legal Description: | 10-7-38 PARCEL B OF S/P (PTN WITHIN SE1/4NE1/4 & NE1/4SE1/4 SEC 10;& WITHIN SW1/4NW1/4 SEC 11, LESS RD) |
| Parcel Number: | 380710140014 | Agent Code: | |
| Type: | Real | | |
| Tax Area: | 309 - 101 | Land Use Code | 11 |
| Open Space: | N | DFL | N |
| Historic Property: | N | Remodel Property: | N |
| Multi-Family Redevelopment: | N | | |
| Township: | 7 | Section: | 10 |
| Range: | 38 |
Location |
| Address: | 8049 LEWIS PEAK RD WA 99329 | Mapsco: | |
| Neighborhood: | A Sup SFR MNT PROP | Map ID: | |
| Neighborhood CD: | 513215 |
Owner |
| Name: | SIMONIS JASON & MEGAN | Owner ID: | 64055 |
| Mailing Address: | 59 BLUEBERRY LANE BURBANK, WA 99323 | % Ownership: | 100.0000000000% |
| | | Exemptions: | |
Taxes and Assessment Details
Values
| (+) Improvement Homesite Value: | + | $0 | |
| (+) Improvement Non-Homesite Value: | + | $461,230 | |
| (+) Land Homesite Value: | + | $0 | |
| (+) Land Non-Homesite Value: | + | $81,420 | |
| (+) Curr Use (HS): | + | $0 | $0 |
| (+) Curr Use (NHS): | + | $0 | $0 |
| | | -------------------------- | |
| (=) Market Value: | = | $542,650 | |
| (–) Productivity Loss: | – | $0 | |
| | | -------------------------- | |
| (=) Subtotal: | = | $542,650 | |
| (+) Senior Appraised Value: | + | $0 | |
| (+) Non-Senior Appraised Value: | + | $542,650 | |
| | | -------------------------- | |
| (=) Total Appraised Value: | = | $542,650 | |
| (–) Senior Exemption Loss: | – | $0 | |
| (–) Exemption Loss: | – | $0 | |
| | | -------------------------- | |
| (=) Taxable Value: | = | $542,650 | |
Taxing Jurisdiction
| Owner: | SIMONIS JASON & MEGAN | | |
| % Ownership: | 100.0000000000% | | |
| Total Value: | $542,650 | | |
| Tax Area: | 309 - 101 |
| CERFD | CURRENT EXPENSE REFUND 010 | 0.0000000000 | $542,650 | $542,650 | $0.00 | | |
| CURREXP | CURRENT EXPENSE 010 | 1.0175366760 | $542,650 | $542,650 | $552.17 | | |
| HUMNSERV | HUMAN SERVICES 119 | 0.0250000000 | $542,650 | $542,650 | $13.57 | | |
| SLDREL | SOLDIERS RELIEF 121 | 0.0155990005 | $542,650 | $542,650 | $8.46 | | |
| EMERGSER | EMS 147 | 0.3792580840 | $542,650 | $542,650 | $205.80 | | |
| EMSRFD | EMS REFUND 147 | 0.0000000000 | $542,650 | $542,650 | $0.00 | | |
| RLBRFD | RURAL LIBRARY REFUND 623 | 0.0000000000 | $542,650 | $542,650 | $0.00 | | |
| RURALLIB | RURAL LIBRARY 623 | 0.3710609029 | $542,650 | $542,650 | $201.36 | | |
| PORTRFD | PORT REFUND 640 | 0.0000000000 | $542,650 | $542,650 | $0.00 | | |
| PORTWWGEN | PORT OF WW 640 | 0.2460186015 | $542,650 | $542,650 | $133.50 | | |
| SD101CAP | SD #101 CAP 752 | 0.5894423472 | $542,650 | $542,650 | $319.86 | | |
| SD101GEN | SD #101 GENERAL 750 | 0.7455117868 | $542,650 | $542,650 | $404.55 | | |
| ST2 | STATE SCHOOL PART 2 600 | 0.8131451643 | $542,650 | $542,650 | $441.25 | | |
| STATESCHL | STATE SCHOOL 600 | 1.5158548041 | $542,650 | $542,650 | $822.58 | | |
| STREFUND | STATE REFUND LEVY 603 | 0.0000000000 | $542,650 | $542,650 | $0.00 | | |
| COROAD | COUNTY ROAD 115 | 1.6549953990 | $542,650 | $542,650 | $898.08 | | |
| CRPRD | COUNTY ROAD REFUND 115 | 0.0000000000 | $542,650 | $542,650 | $0.00 | | |
| | Total Tax Rate: | 7.3734227663 | | | | | |
| | | | | Taxes w/Current Exemptions: | $4,001.18 | | |
| | | | | Taxes w/o Exemptions: | $4,001.18 | | |
Improvement / Building
| Improvement #1: | RESIDENTIAL | State Code: | 11 | 3240.0 sqft | Value: | $461,230 |
| Exterior Wall: | METAL/STEEL | Heating/Cooling: | MINI-SPLIT HP SYSTEM | | Number of Bathrooms: | 2 | Number of Bedrooms: | 4 | | Plumbing: | 16 | Roof Covering: | METAL ROOFING |
|
| | Type | Description | Class CD | Sub Class CD | Year Built | Area |
| | MA | Main Area | POLE LVG A | POLE LVG A | 2020 | 3240.0 |
| | POL3 | POLE BUILDING-CON,ELEC,INSU | 2 | 30 | 2020 | 2400.0 |
| | SI1 | SITE IMPROVEMENT | 1 | 30 | 2020 | 3.0 |
| | UPFL | Upper Floor (included in main area) | 1 | 30 | 2020 | 2400.0 |
| | WOD | Wood Deck | 1 | 30 | 2020 | 400.0 |
| | RPO | OPEN PORCH W/ROOF | 1 | 30 | 2020 | 120.0 |
Sketch
Property Image
Land
| 1 | RES 1 | Converted: Residential | 11.5700 | 0.00 | 0.00 | 0.00 | 1.00 | $81,420 | $0 |
Roll Value History
| 2025 | N/A | N/A | N/A | N/A | N/A |
| 2024 | $461,230 | $114,150 | $0 | $575,380 | $575,380 |
| 2023 | $461,230 | $81,420 | $0 | $542,650 | $542,650 |
| 2022 | $368,980 | $81,420 | $0 | $450,400 | $450,400 |
| 2021 | $170,900 | $81,420 | $0 | $252,320 | $252,320 |
| 2020 | $63,500 | $81,420 | $0 | $144,920 | $144,920 |
| 2019 | $0 | $81,420 | $0 | $81,420 | $81,420 |
| 2018 | $0 | $81,420 | $0 | $81,420 | $81,420 |
| 2017 | $0 | $36,600 | $0 | $36,600 | $36,600 |
| 2016 | $0 | $36,600 | $0 | $36,600 | $36,600 |
| 2015 | $0 | $36,600 | $0 | $36,600 | $36,600 |
| 2014 | $0 | $36,600 | $0 | $36,600 | $36,600 |
| 2013 | $0 | $36,600 | $0 | $36,600 | $36,600 |
| 2012 | $0 | $36,600 | $0 | $0 | $0 |
| 2011 | $0 | $36,600 | $0 | $0 | $0 |
| 2010 | $0 | $36,600 | $0 | $0 | $0 |
| 2009 | $0 | $36,600 | $0 | $0 | $0 |
| 2008 | $0 | $36,600 | $0 | $0 | $0 |
| 2007 | $0 | $36,600 | $0 | $0 | $0 |
| 2006 | $0 | $36,600 | $0 | $0 | $0 |
Deed and Sales History
| 1 | 04/29/2024 | SWD | STATUTORY WARRANTY DEED | SIMONIS JASON & MEGAN | DEBEAUMONT BLAIR SHANNON | | | $849,999.00 | 147464 | 2024-02172 |
| 2 | 04/29/2024 | QCD | QUIT CLAIM DEED | CLARK JUSTIN | DEBEAUMONT BLAIR SHANNON | | | | 147465 | 2024-02173 |
| 3 | 10/03/2018 | SWD | STATUTORY WARRANTY DEED | WAGNER JOAN D | SIMONIS JASON & MEGAN | | | $80,000.00 | 135682 | 2018-08245 |
| 4 | 05/14/2018 | ADMD | ADMINISTRATOR'S DEED | WAGNER DAVID G & JOAN D | WAGNER JOAN D | | | $0.00 | 134697 | 2018-03760 |
| 5 | 06/02/1998 | WARRANTY D | WARRANTY DEED | | | | | $32,000.00 | 90533 | 2689-806046 |
Payout Agreement
| No payout information available.. |